← West Lancashire Borough Council

Status

Registered Change of use
Received
23 Jan 2026
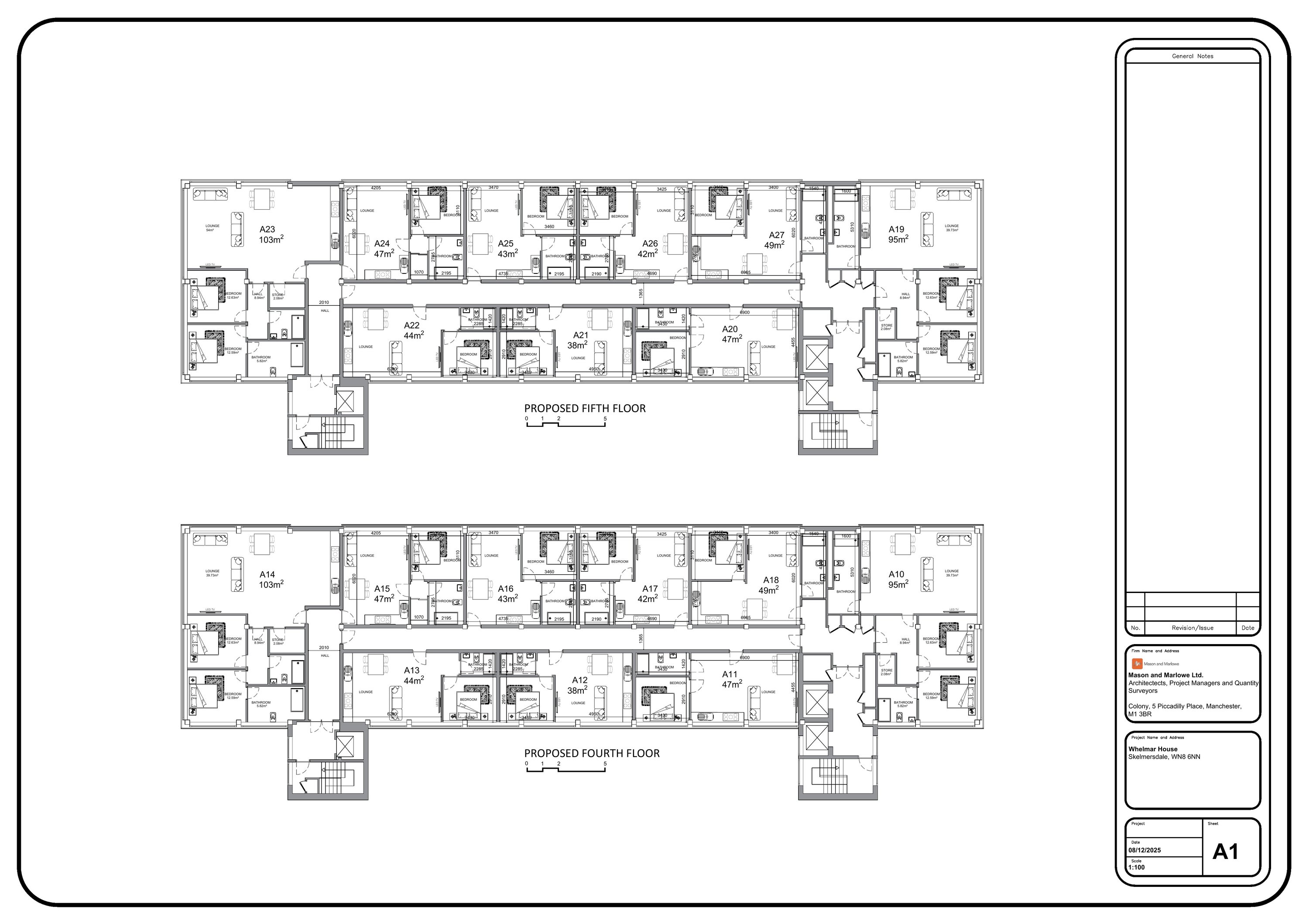
New homes
27

Full proposal

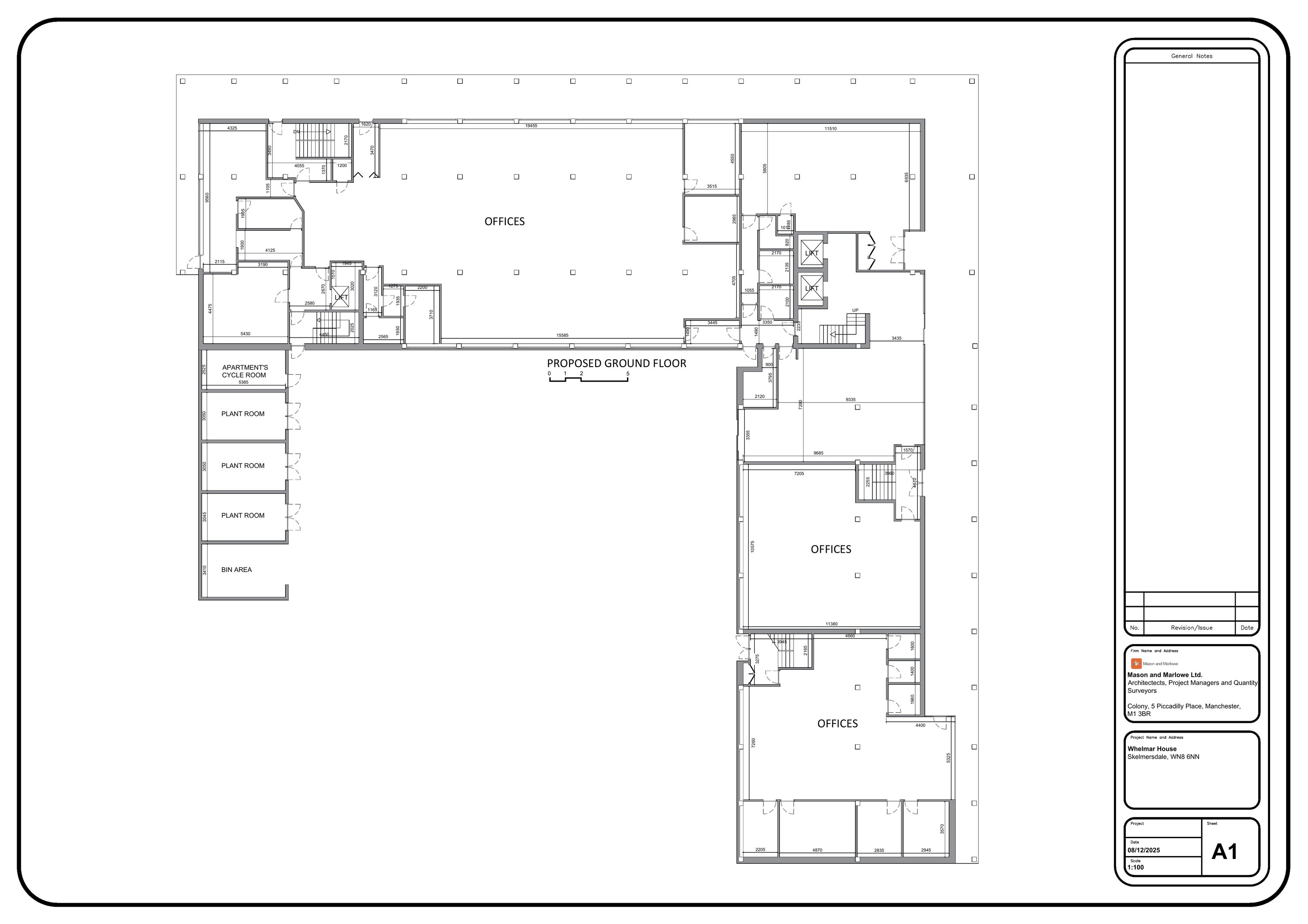
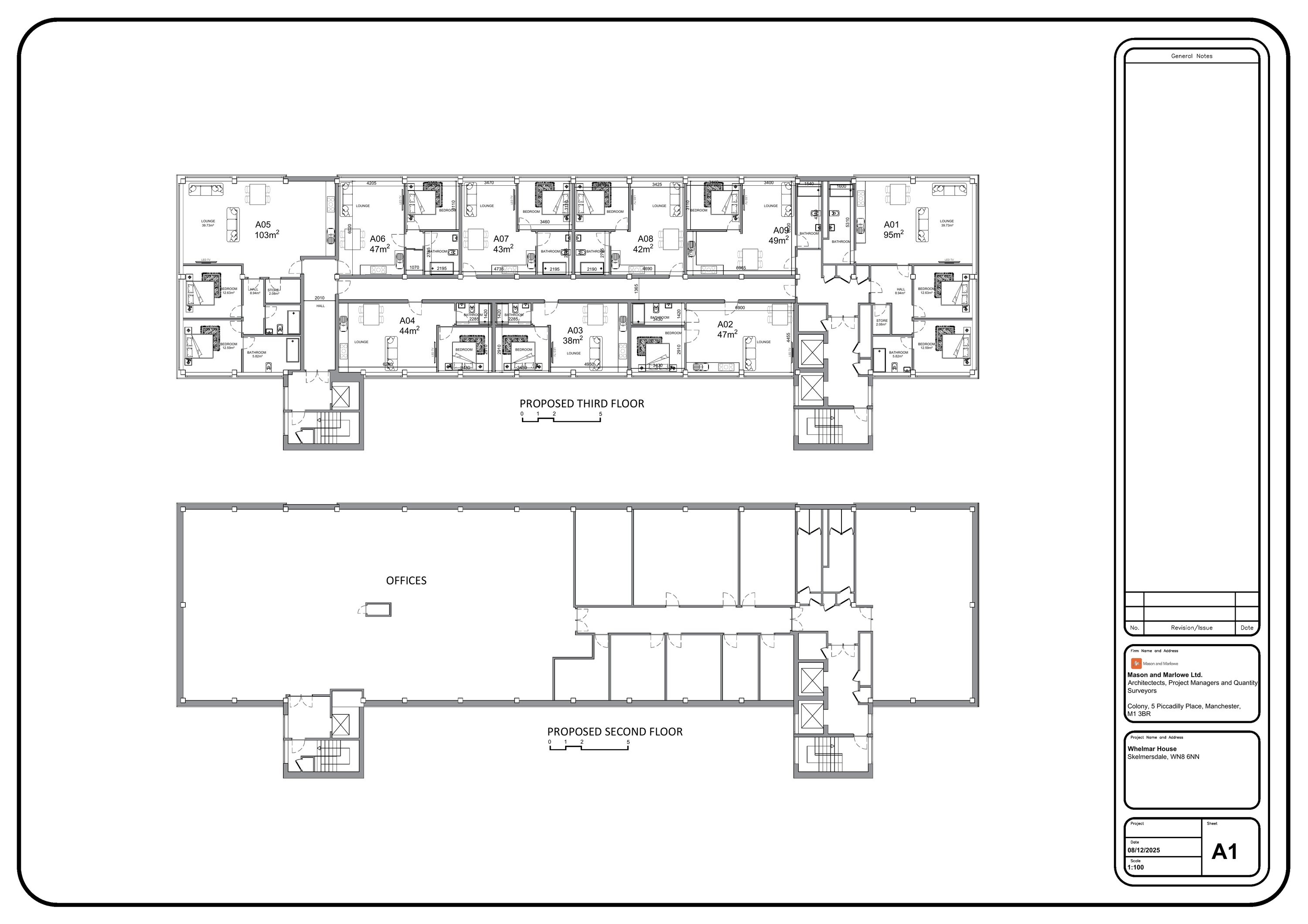
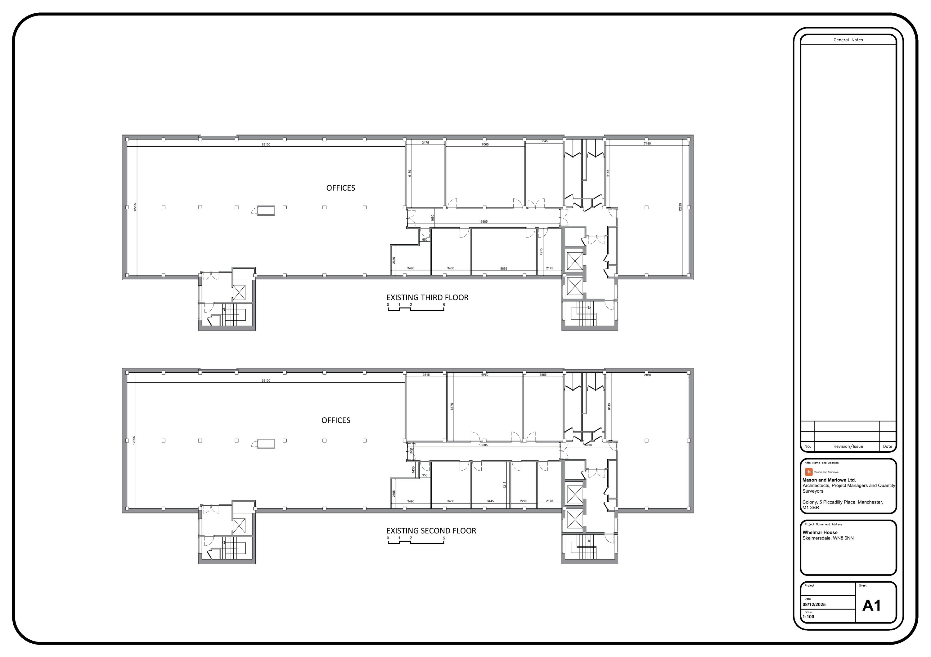
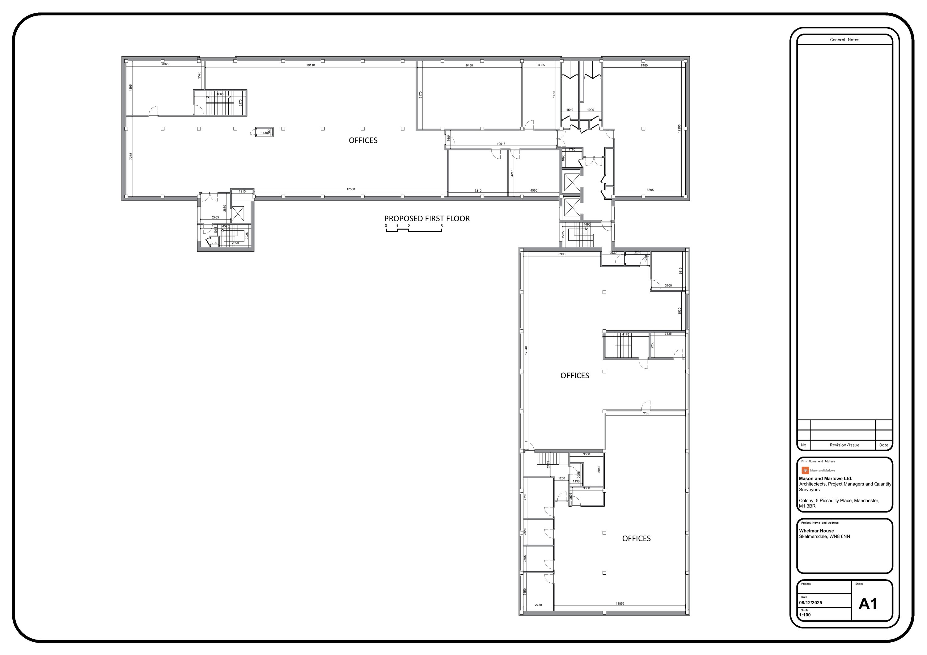
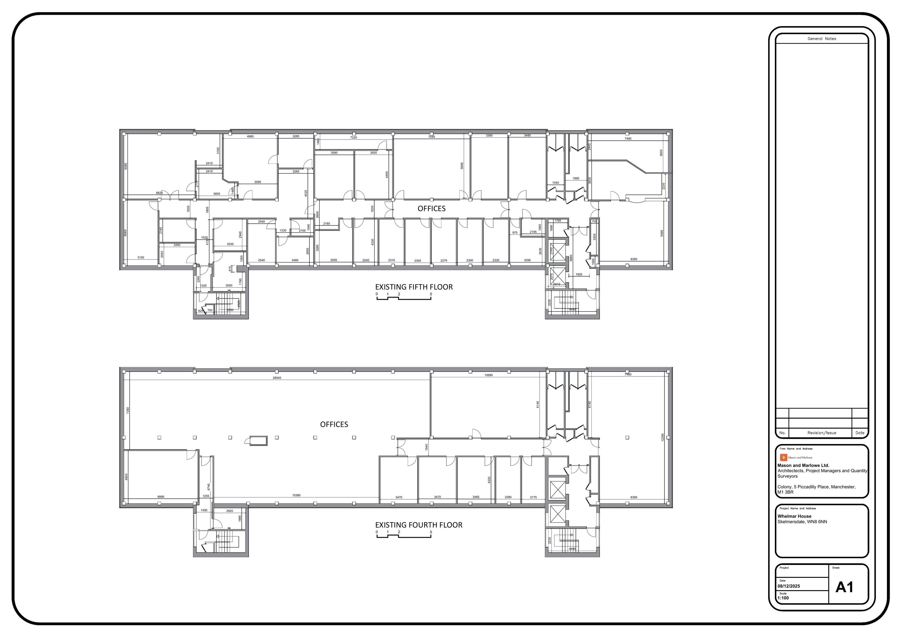
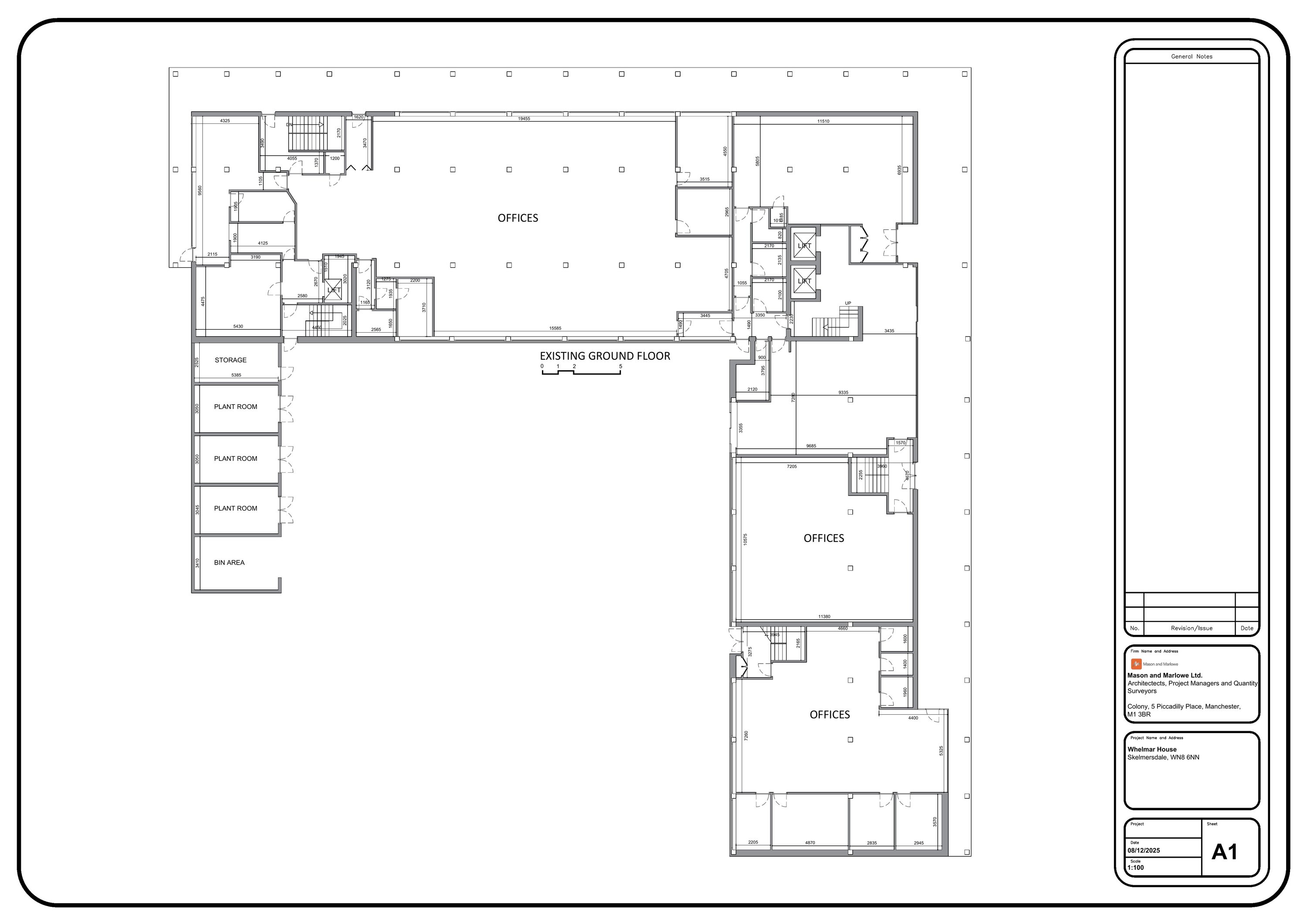
Part conversion of building: mixed use development: conversion of third, fourth and fifth floors of building from offices to 27 apartments

Documents

Floor Layout Plan
Archived · Original link
Floor Layout Plan
Archived · Original link
Elevation Plan
Archived · Original link
Floor Layout Plan
Archived · Original link
Floor Layout Plan
Archived · Original link
Elevation Plan
Archived · Original link
Floor Layout Plan
Archived · Original link
Floor Layout Plan
Archived · Original link
Elevation Plan
Archived · Original link
Floor Layout Plan
Archived · Original link
Floor Layout Plan
Archived · Original link
Site Layout Plan
Archived · Original link
Elevation Plan
Archived · Original link
Site Location Plan
Archived · Original link

Have your say

Your comment matters. Councils must consider every representation that raises material planning considerations.

Write a comment