← West Lancashire Borough Council

Status

Registered Change of use
Received
Last month
New homes
0

Full proposal

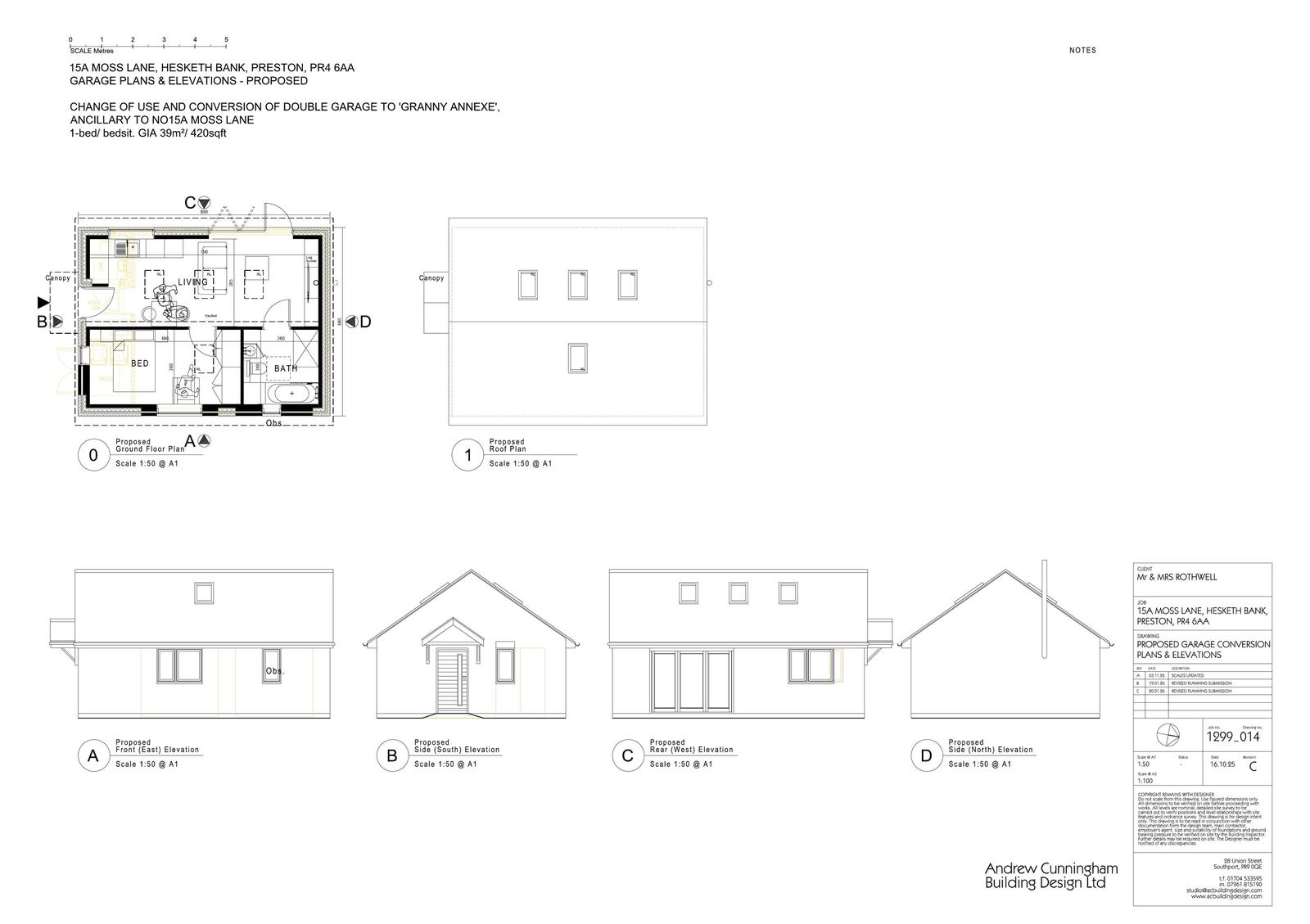
Change of Use and conversion of double garage to 'Granny Annexe', ancillary to No15A Moss Lane dwelling.

Documents

Existing location & site block plan
Plans
Not yet archived · Original link
Existing plans
Plans
Not yet archived · Original link
Phase 2 site investigation report
Miscellaneous
Not yet archived · Original link
Plans
Archived · Original link
The location plan
Site Location Plan
Not yet archived · Original link

Have your say

Your comment matters. Councils must consider every representation that raises material planning considerations.

Write a comment