← West Lancashire Borough Council

Status

Registered Change of use
Received
28 days ago
New homes
0

Full proposal

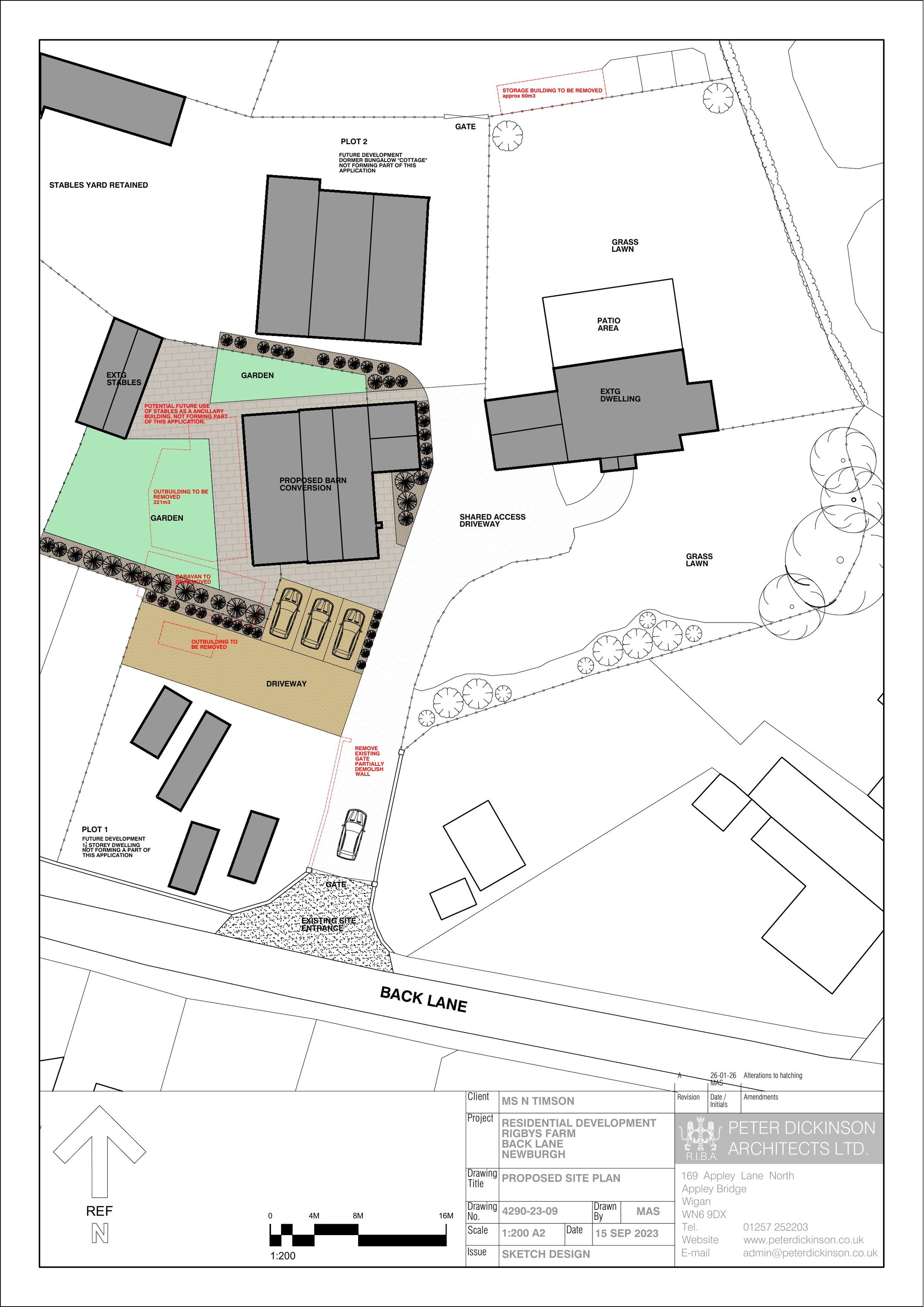
Proposed Residential Development at Rigby's Farm, Back Lane, Newburgh - Consisting of a conversion of an existing barn associated with the equestrian use of the site.

Documents

Surveys / Reports
Archived · Original link
Elevation Plan
Archived · Original link
Site Layout Plan
Archived · Original link
Site Layout Plan
Archived · Original link
Site Location Plan
Archived · Original link

Have your say

Your comment matters. Councils must consider every representation that raises material planning considerations.

Write a comment