← West Oxfordshire District Council

Status

Awaiting decision New housing
Received
Not recorded
New homes
8

Summary

Erection of eight dwellings with new access and landscaping.

Full proposal

Erection of eight dwellings with associated works to include formation of a new access and landscaping works

Documents

ADDENDUM ECOLOGICAL INFORMATION
Supporting Documents
Not yet archived · Original link
Application Form
Application Form
Not yet archived · Original link
ASTON PARISH COUNCIL
Consultee Comment
Not yet archived · Original link
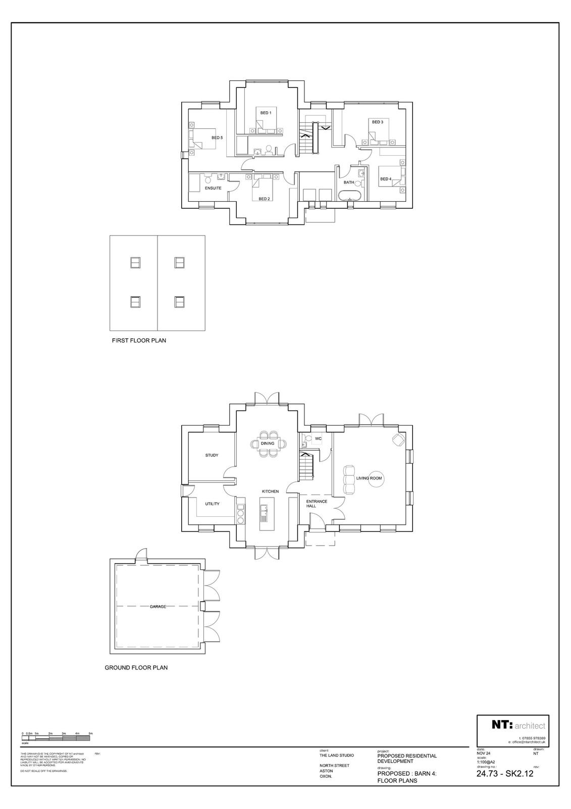
BARN 4 PROPOSED ELEVATIONS
Drawing
Not yet archived · Original link
BARN 4 PROPOSED FLOOR PLANS
Drawing
Not yet archived · Original link
BARN 5 PROPOSED FLOOR PLANS AND ELEVATIONS
Drawing
Not yet archived · Original link
BARN 6 PROPOSED FLOOR PLANS AND ELEVATIONS
Drawing
Not yet archived · Original link
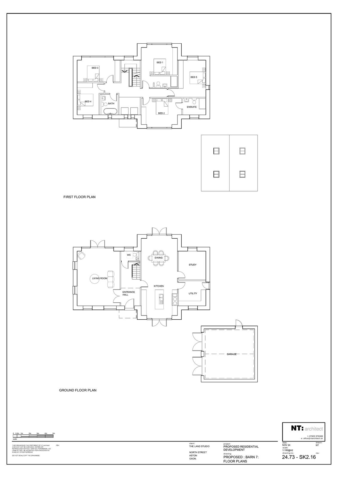
BARN 7: PROPOSED ELEVATIONS
Drawing
Not yet archived · Original link
BIODIVERSITY SELF ASSESSMENT FORM
Supporting Documents
Not yet archived · Original link
CONSERVATION AND DESIGN
Consultee Comment
Not yet archived · Original link
COOPER, J
Objection Comment
Not yet archived · Original link
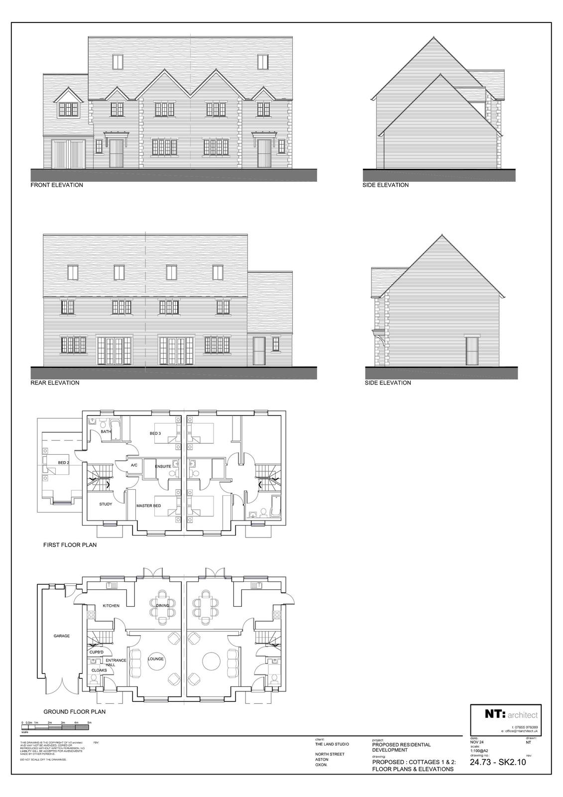
COTTAGE 1: PROPOSED FLOOR PLANS AND ELEVATIONS
Drawing
Not yet archived · Original link
COTTAGE 2: PROPOSED FLOOR PLANS AND ELEVATIONS
Drawing
Not yet archived · Original link
COTTAGE 3 PROPOSED FLOOR PLANS AND ELEVATIONS
Drawing
Not yet archived · Original link
DISTRICT ECOLOGIST
Consultee Comment
Not yet archived · Original link
DISTRICT ECOLOGIST
Consultee Comment
Not yet archived · Original link
DRAINAGE DESIGN
Drawing
Not yet archived · Original link
DRAINAGE DESIGN
Drawing
Not yet archived · Original link
DRAINAGE ISSUE SHEET
Supporting Documents
Not yet archived · Original link
DRAINAGE STRATEGY
Supporting Documents
Not yet archived · Original link
ECOLOGICAL IMPACT ASSESSMENT AND BNG
Supporting Documents
Not yet archived · Original link
ECOLOGY CONSULTATION
Consultee Comment
Not yet archived · Original link
ENVIRONMENT AGENCY
Consultee Comment
Not yet archived · Original link
ERS HEALTH AND CONTAMINATION
Consultee Comment
Not yet archived · Original link
Drawing
Archived · Original link
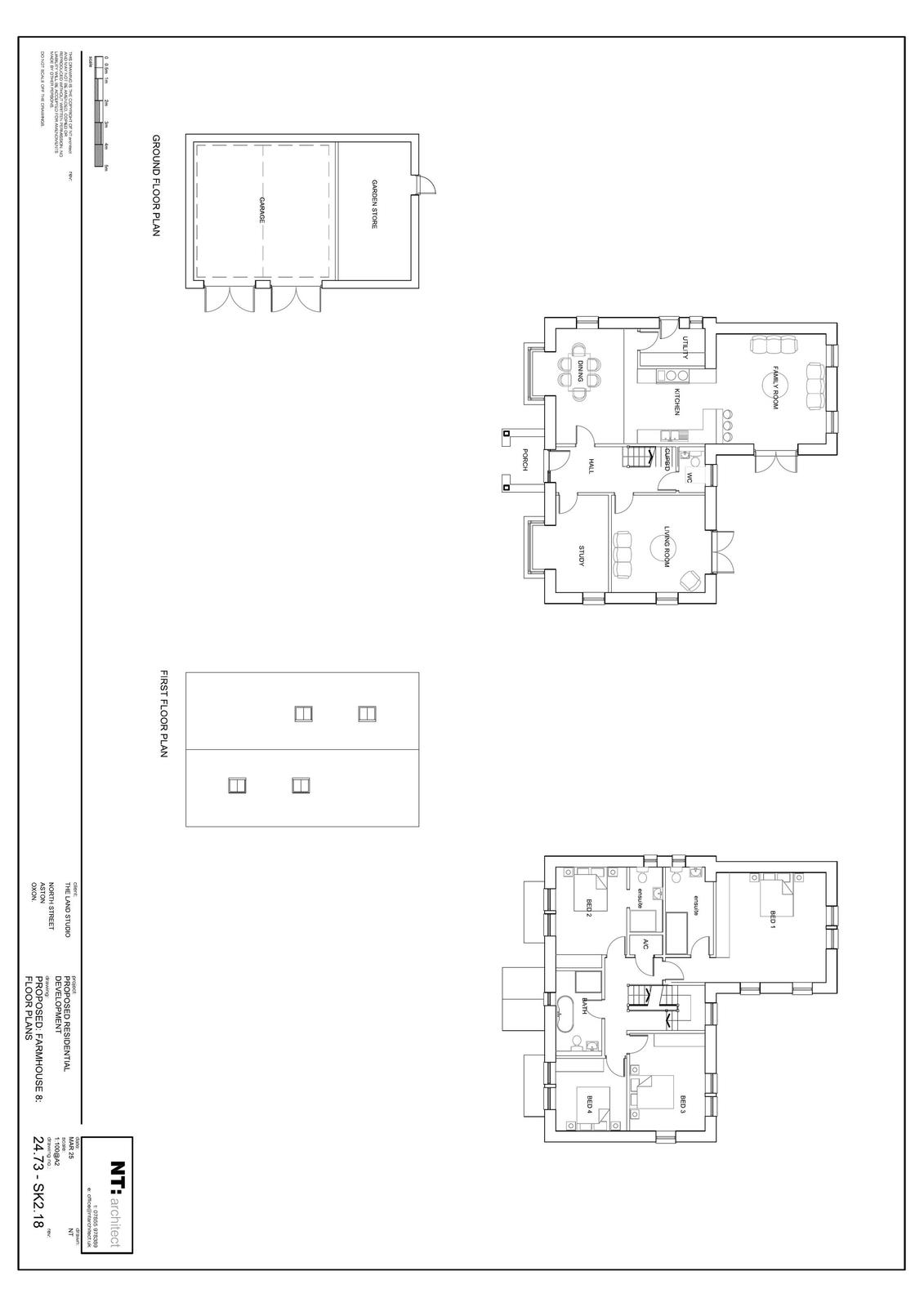
FARMHOUSE 8 PROPOSED ELEVATIONS
Drawing
Not yet archived · Original link
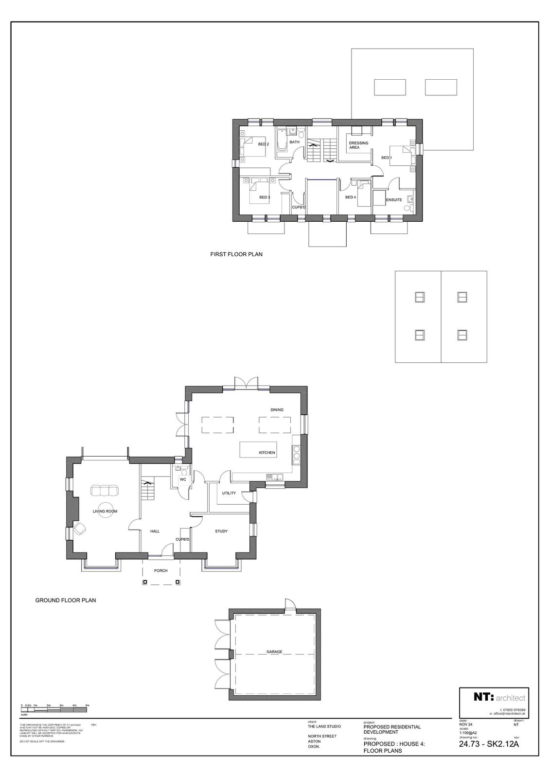
HOUSE 4 PROPOSED ELEVATIONS
Drawing
Not yet archived · Original link
HYDRUALIC CALCULATIONS
Supporting Documents
Not yet archived · Original link
LOCATION PLAN
Drawing
Not yet archived · Original link
MILDREN, A
Objection Comment
Not yet archived · Original link
NATURESPACE
Consultee Comment
Not yet archived · Original link
OCC HIGHWAYS
Consultee Comment
Not yet archived · Original link
PLANNING DESIGN ACCESS AND HERITAGE STATEMENT
Design and Access Statement
Not yet archived · Original link
PRE-PLANNING THAMES WATER RESPONSE
Supporting Documents
Not yet archived · Original link
PROJECT SPECIFICATION FOR AN ARCHAEOLOGICAL EVALUATION
Supporting Documents
Not yet archived · Original link
Drawing
Archived · Original link
SHORTER, E
Objection Comment
Not yet archived · Original link
SLADE, R
Objection Comment
Not yet archived · Original link
STATUTORY BIODIVERSITY METRIC
Supporting Documents
Not yet archived · Original link
SUPERSEDED BARN 4 PROPOSED ELEVATIONS
Drawing
Not yet archived · Original link
SUPERSEDED BARN 7 PROPOSED ELEVATIONS
Drawing
Not yet archived · Original link
SUSTAINABILITY STANDARDS CHECKLIST
Supporting Documents
Not yet archived · Original link
THAMES WATER
Consultee Comment
Not yet archived · Original link
TOPOGRAPHICAL SURVEY
Drawing
Not yet archived · Original link
TRANSPORT STATEMENT
Supporting Documents
Not yet archived · Original link
TREE SURVEY REPORT
Supporting Documents
Not yet archived · Original link
WODC CONSERVATION AND DESIGN
Consultee Comment
Not yet archived · Original link
WODC DRAINAGE OFFICER
Consultee Comment
Not yet archived · Original link

Have your say

Your comment matters. Councils must consider every representation that raises material planning considerations.

Write a comment