← West Oxfordshire District Council

Status

Under consideration New housing
Received
Not recorded
New homes
1

Summary

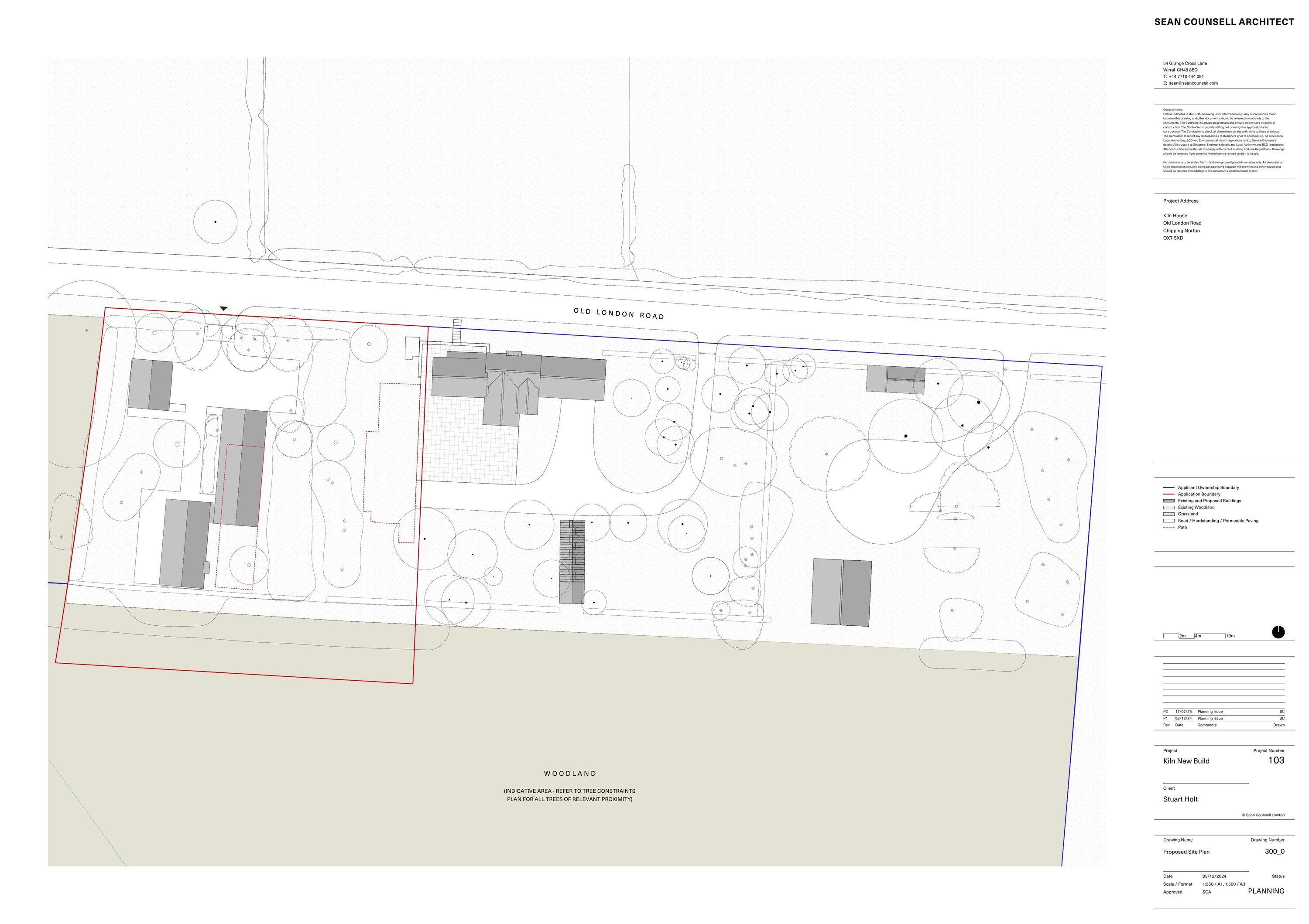
Demolish holiday lets and kennels and erect one dwelling.

Full proposal

Demolition of existing holiday lets and kennels and erection of a dwelling

Documents

AIA DRAWING
Drawing
Not yet archived · Original link
Application Form
Application Form
Not yet archived · Original link
BIODIVERSITY NET GAIN METRIC
BNG Metric
Not yet archived · Original link
BIODIVERSITY NET GAIN STATEMENT FORM
BNG Statement
Not yet archived · Original link
BNG COMMENTS RESPONSE
Supporting Documents
Not yet archived · Original link
Drawing
Archived · Original link
DESIGN AND ACCESS STATEMENT
Design and Access Statement
Not yet archived · Original link
DRAINAGE COMMENTS
Consultee Comment
Not yet archived · Original link
DRAINAGE COMMENTS
Consultee Comment
Not yet archived · Original link
ECOLOGICAL ASSESSMENT
Report
Not yet archived · Original link
ERS CONTAMINATED LAND
Consultee Comment
Not yet archived · Original link
ERS NOISE AND AMENITIES
Consultee Comment
Not yet archived · Original link
EXISTING ELEVATIONS
Drawing
Not yet archived · Original link
EXISTING ELEVATIONS KENNELS
Drawing
Not yet archived · Original link
EXISTING GROUND FLOOR PLAN
Drawing
Not yet archived · Original link
EXISTING GROUND FLOOR PLAN - KENNELS
Drawing
Not yet archived · Original link
Drawing
Archived · Original link
INFORMATION SCHEDULE
Supporting Documents
Not yet archived · Original link
LOCATION PLAN
Drawing
Not yet archived · Original link
OCC HIGHWAYS COMMENT
Consultee Comment
Not yet archived · Original link
PLANNING STATEMENT
Supporting Documents
Not yet archived · Original link
PROPOSED ELEVATIONS NORTH AND EAST
Drawing
Not yet archived · Original link
PROPOSED ELEVATIONS SOUTH AND WEST
Drawing
Not yet archived · Original link
PROPOSED FIRST FLOOR PLAN
Drawing
Not yet archived · Original link
PROPOSED GROUND FLOOR PLAN
Drawing
Not yet archived · Original link
PROPOSED LANDSCAPE PLAN
Drawing
Not yet archived · Original link
PROPOSED ROOF PLAN
Drawing
Not yet archived · Original link
PROPOSED SECTIONS
Drawing
Not yet archived · Original link
Drawing
Archived · Original link
REBUTTAL TO ECOLOGISTS COMMENTS
Supporting Documents
Not yet archived · Original link
SMALL SITE BNG CALCULATIONS
BNG Report
Not yet archived · Original link
SUSTAINABILITY STATEMENT
Supporting Documents
Not yet archived · Original link
TREE CONSTRAINTS PLAN
Drawing
Not yet archived · Original link
TREE RELOCATION EMAIL
Supporting Documents
Not yet archived · Original link
TREE SURVEY AND AIA REPORT
Report
Not yet archived · Original link

Have your say

Your comment matters. Councils must consider every representation that raises material planning considerations.

Write a comment