← West Oxfordshire District Council

Status

Under consideration Listed building
Received
Not recorded
New homes
0

Full proposal

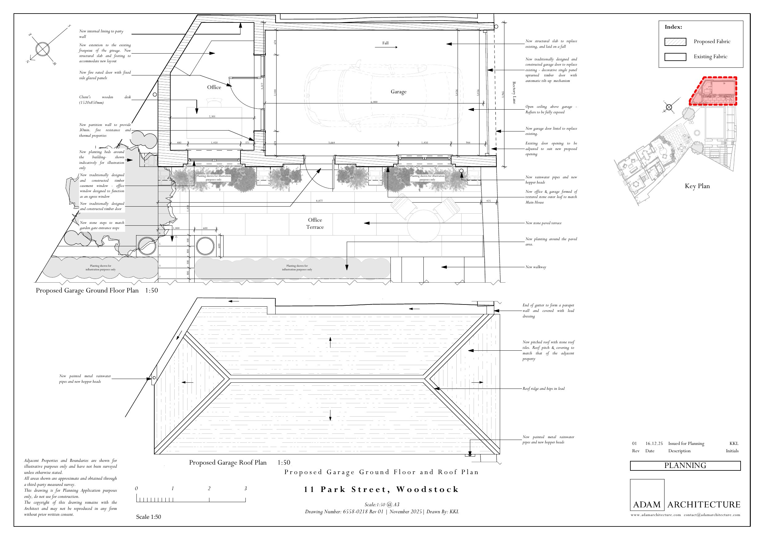
Internal and external alterations to include erection of orangery to rear elevation and sensitive repair and refurbishment works throughout the existing building to include alterations to fenestration, doorways and floor layouts, construction of rear dormer windows and reduction in height of existing rear chimney stack

Documents

Drawing
Archived · Original link
Drawing
Archived · Original link
Drawing
Archived · Original link
Design and Access Statement
Archived · Original link
Drawing
Archived · Original link
Drawing
Archived · Original link
Drawing
Archived · Original link
Drawing
Archived · Original link
Drawing
Archived · Original link
Drawing
Archived · Original link
Drawing
Archived · Original link
Drawing
Archived · Original link
Drawing
Archived · Original link
Drawing
Archived · Original link
Drawing
Archived · Original link
Drawing
Archived · Original link
Drawing
Archived · Original link

Have your say

Your comment matters. Councils must consider every representation that raises material planning considerations.

Write a comment