← West Oxfordshire District Council
25/03135/HHD
West Oxfordshire District Council
Status
Awaiting decision
House extension
Received
Not recorded
New homes
0
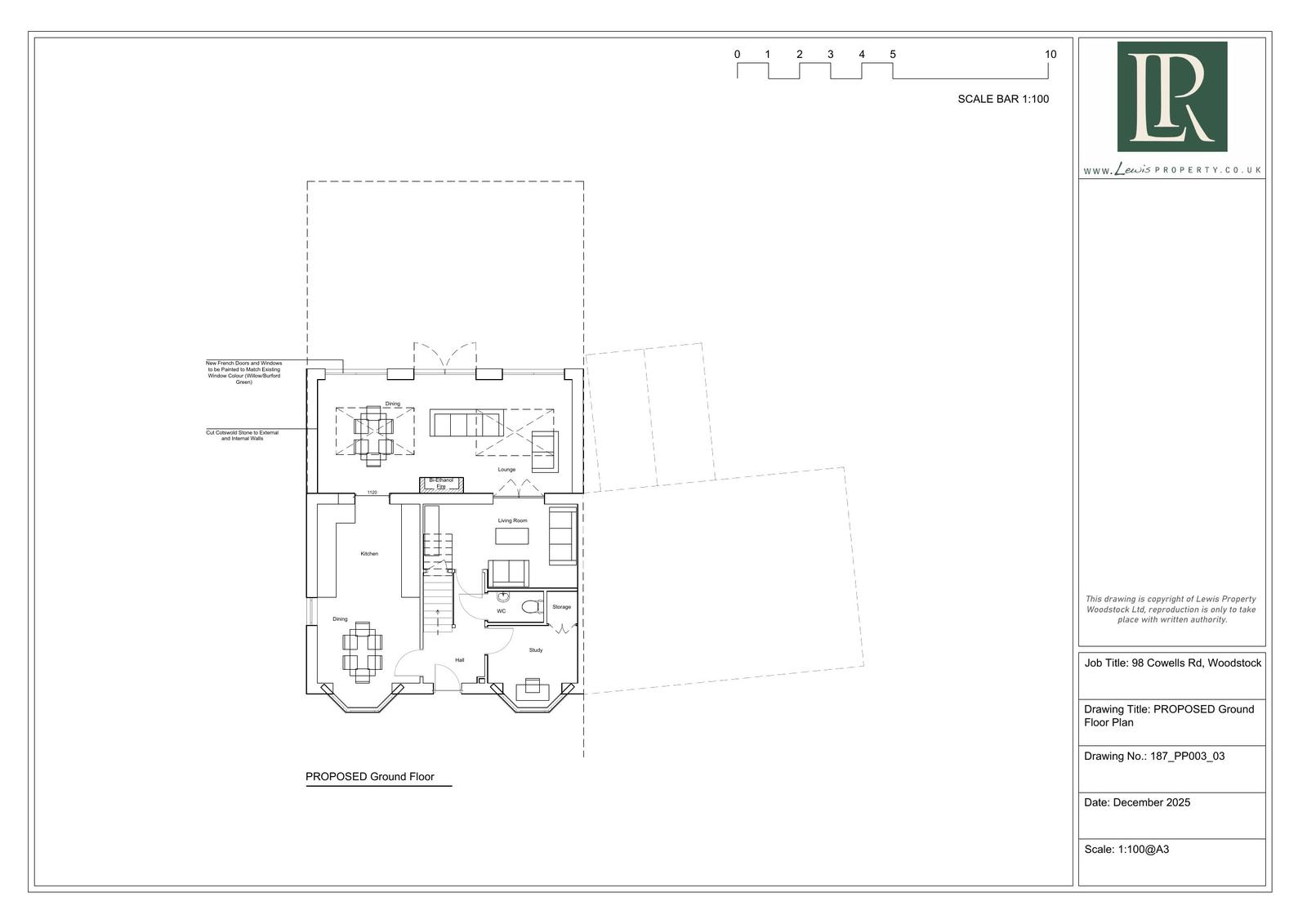
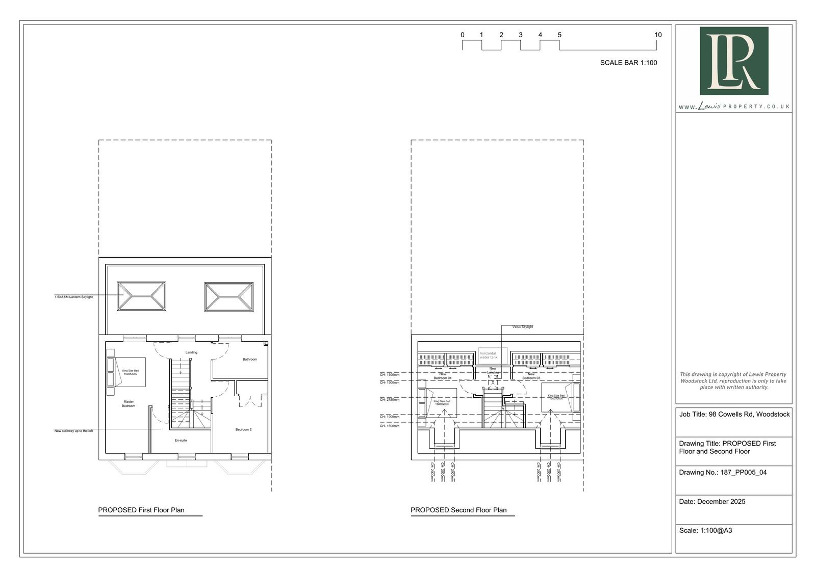
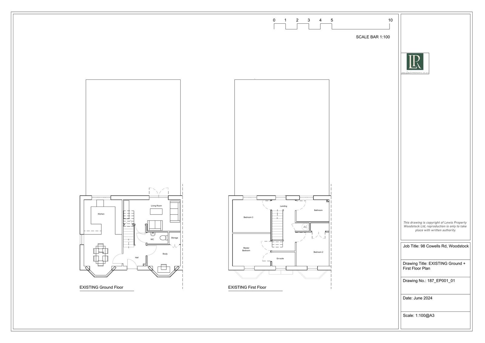
Full proposal
Erection of single storey rear extension and loft conversion with two front dormer windows.
Documents
Have your say
Your comment matters. Councils must consider every representation that raises material planning considerations.