← West Oxfordshire District Council

Status

Under consideration New housing
Received
Not recorded
New homes
1

Full proposal

Erection of single storey dwellinghouse, with detached double garage and associated works

Documents

APPENDIX 8. HABITAT CONDITION ASSESSMENT SHEETS
BNG Metric
Not yet archived · Original link
Application Form
Application Form
Not yet archived · Original link
BNG METRIC
BNG Metric
Not yet archived · Original link
ECOLOGICAL IMPACT ASSESSMENT AND BNG ASSESSMENT
Report
Not yet archived · Original link
ERS CONTAMINATED LAND
Consultee Comment
Not yet archived · Original link
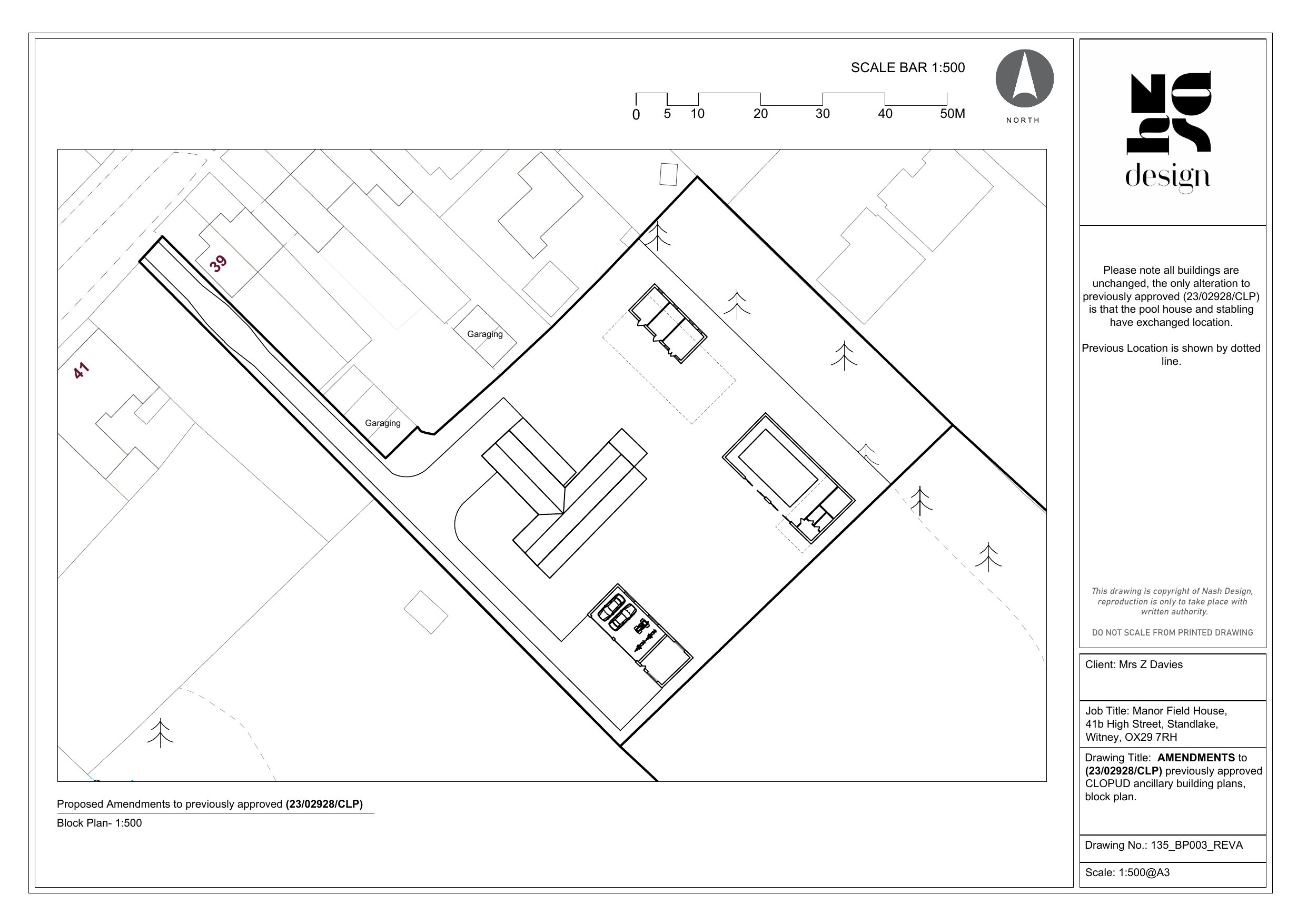
Drawing
Archived · Original link
PLANNING, DESIGN AND ACCESS STATEMENT
Design and Access Statement
Not yet archived · Original link
PREVIOUSLY APPROVED ELEVATIONS
Drawing
Not yet archived · Original link
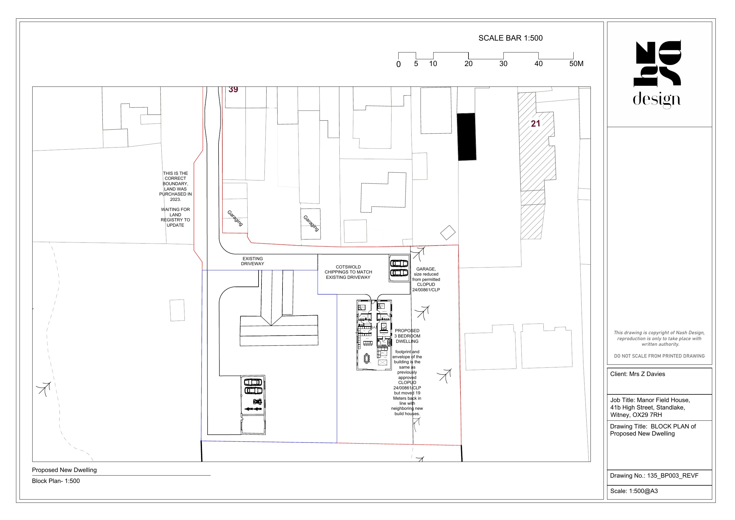
PROPOSED BLOCK PLAN
Drawing
Not yet archived · Original link
PROPOSED DOUBLE GARAGE
Drawing
Not yet archived · Original link
PROPOSED ELEVATIONS
Drawing
Not yet archived · Original link
PROPOSED GROUND FLOOR PLAN AND ROOF PLAN
Drawing
Not yet archived · Original link
Drawing
Archived · Original link
Drawing
Archived · Original link
WODC DRAINAGE
Consultee Comment
Not yet archived · Original link

Have your say

Your comment matters. Councils must consider every representation that raises material planning considerations.

Write a comment