← West Oxfordshire District Council

Status

Under consideration Change of use
Received
Not recorded
New homes
1

Full proposal

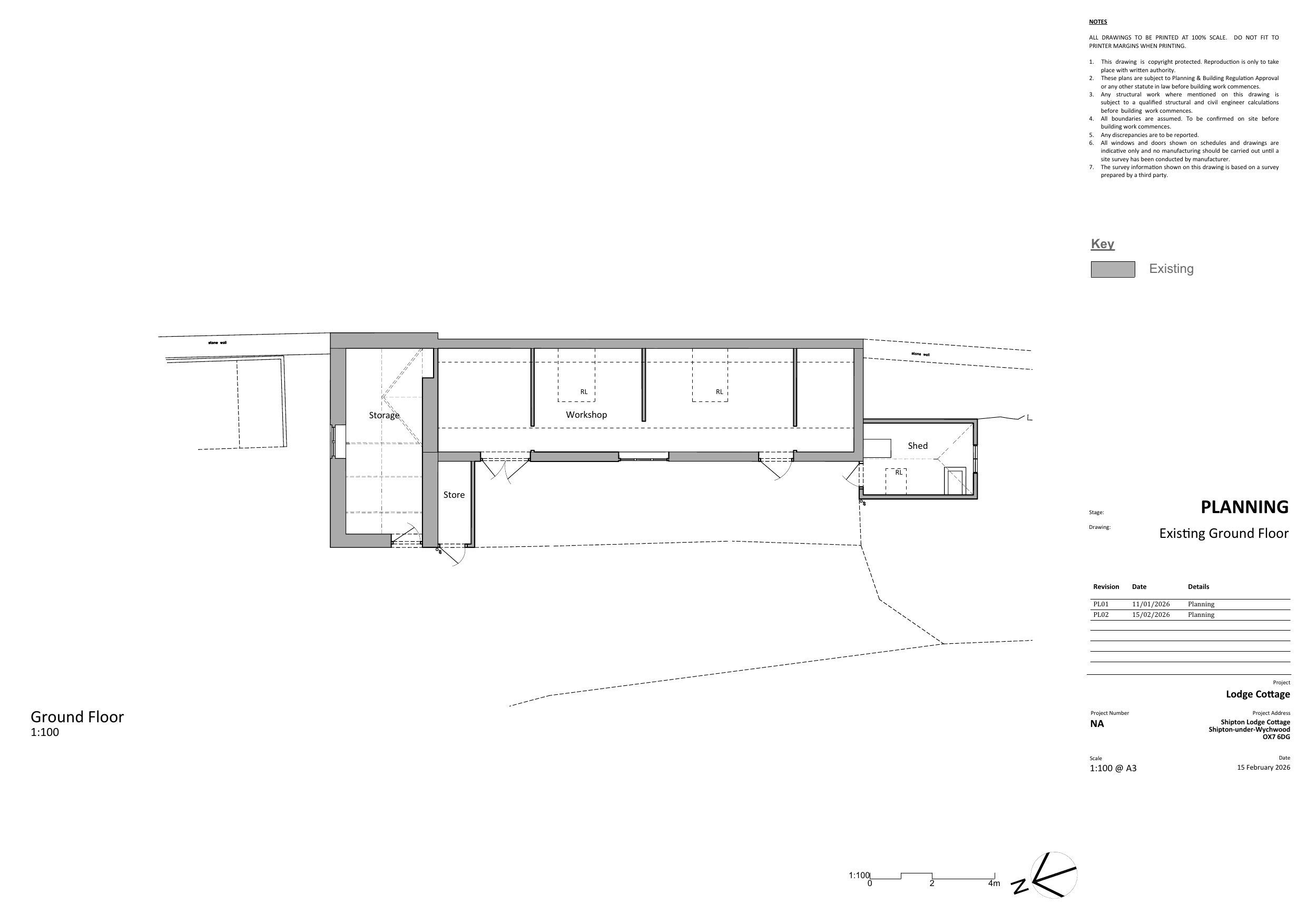
Conversion of existing workshop out building to self contained dwelling, including construction on new porch entrance.

Documents

Application Form
Archived · Original link
Drawing
Archived · Original link
Design and Access Statement
Archived · Original link
Consultee Comment
Archived · Original link
Drawing
Archived · Original link
Drawing
Archived · Original link
Drawing
Archived · Original link
Supporting Documents
Archived · Original link
Drawing
Archived · Original link
Drawing
Archived · Original link
Supporting Documents
Archived · Original link

Have your say

Your comment matters. Councils must consider every representation that raises material planning considerations.

Write a comment