← West Oxfordshire District Council

Status

Under consideration House extension
Received
Not recorded
New homes
0

Full proposal

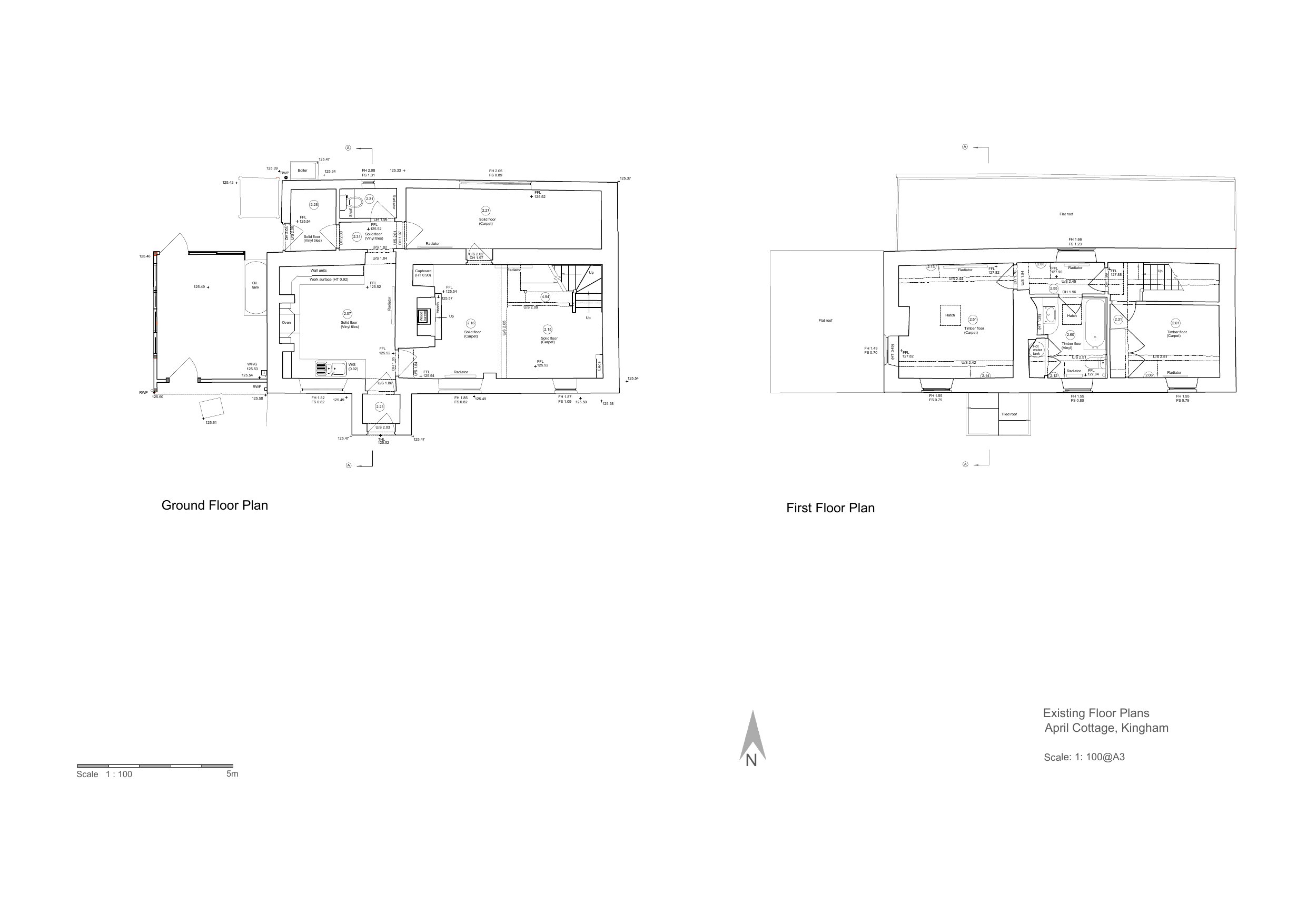
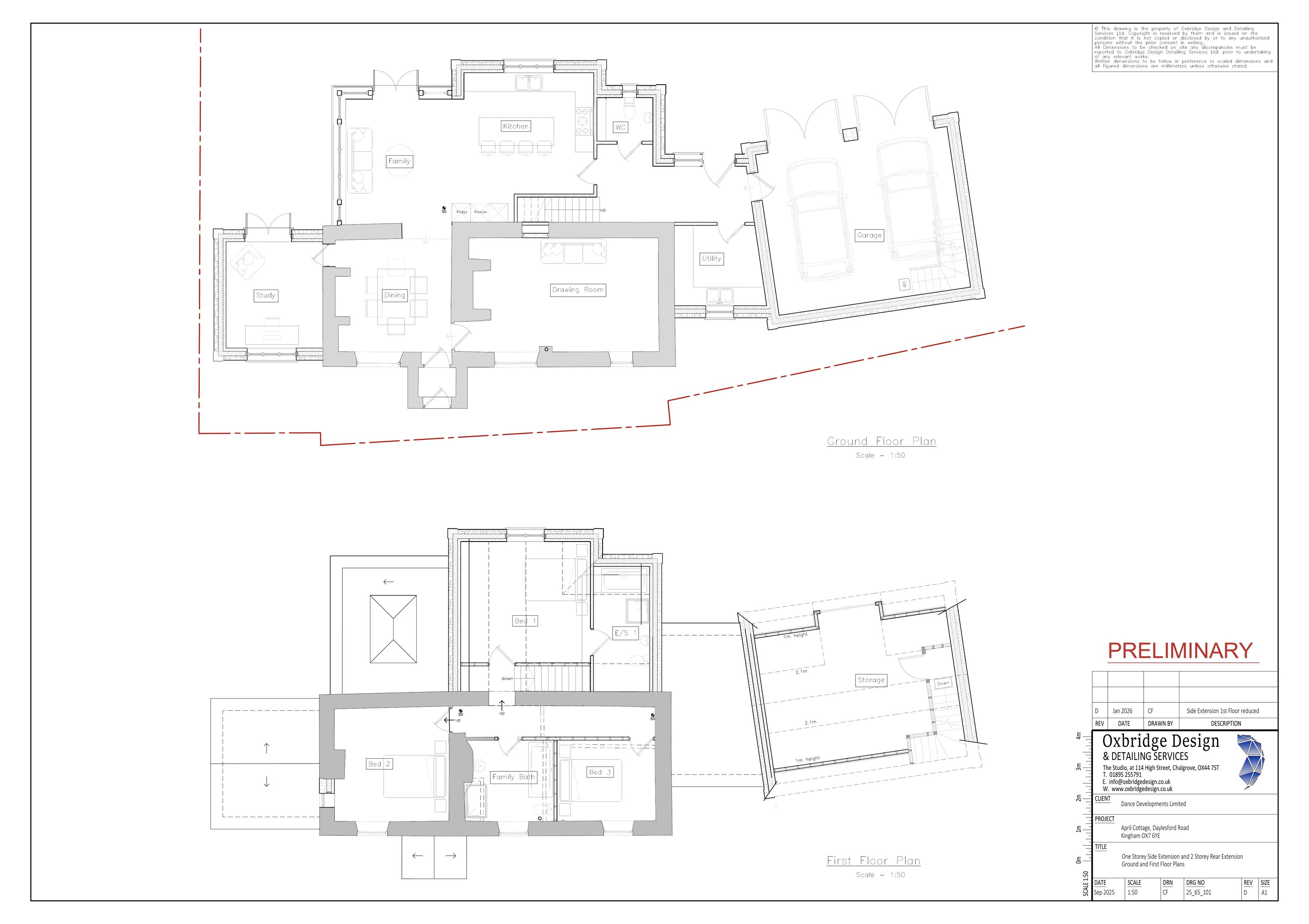
Erection of single and two storey extensions and linked garage. (Part Retrospective).

Documents

Application Form
Archived · Original link
Supporting Documents
Archived · Original link
Design and Access Statement
Archived · Original link
Supporting Documents
Archived · Original link
Drawing
Archived · Original link
Drawing
Archived · Original link
Drawing
Archived · Original link
Supporting Documents
Archived · Original link
Supporting Documents
Archived · Original link
Drawing
Archived · Original link
Drawing
Archived · Original link
Drawing
Archived · Original link
Drawing
Archived · Original link
Supporting Documents
Archived · Original link

Have your say

Your comment matters. Councils must consider every representation that raises material planning considerations.

Write a comment