← West Oxfordshire District Council
26/00470/HHD
West Oxfordshire District Council
Status
Under consideration
House extension
Received
Not recorded
New homes
0
Full proposal
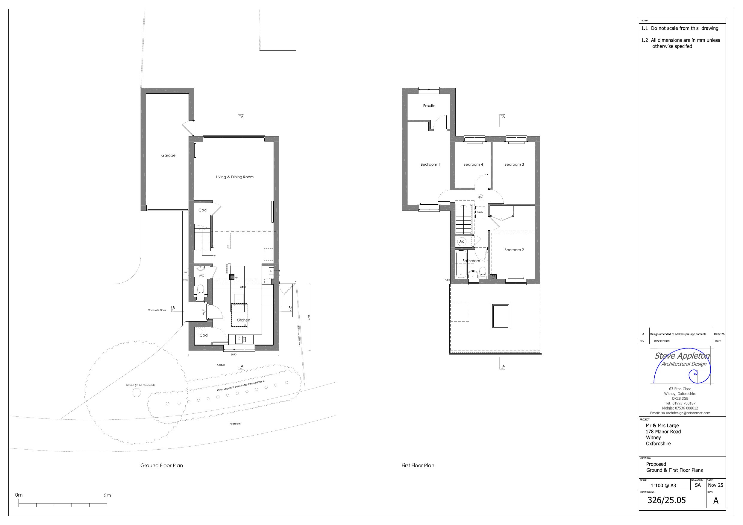
Erection of single storey front extension.
Documents
Have your say
Your comment matters. Councils must consider every representation that raises material planning considerations.