← West Oxfordshire District Council

Status

Under consideration Change of use
Received
Not recorded
New homes
0

Full proposal

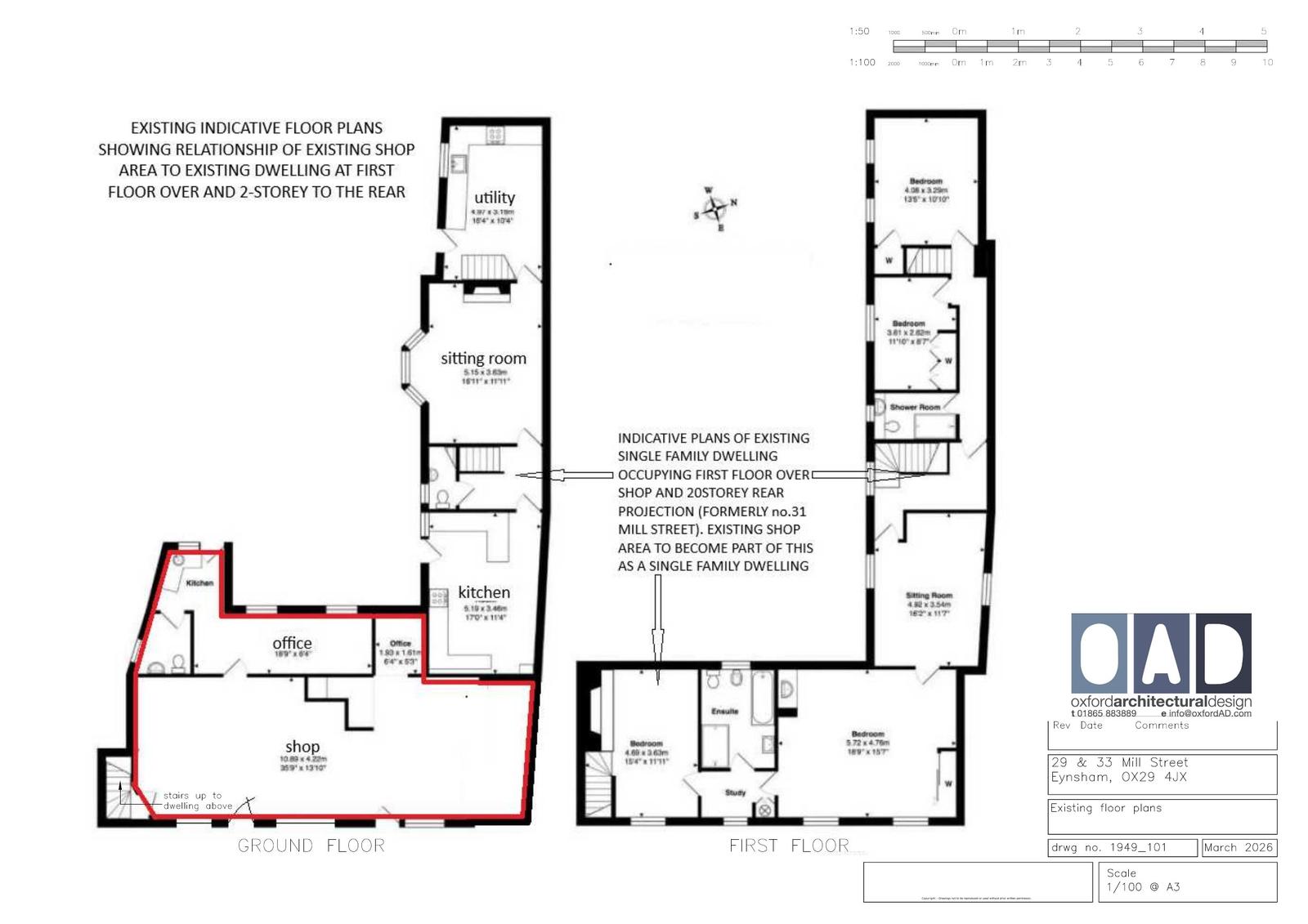
Change of use of shop premises (Class E) to residential (Class C3) incorporated into existing dwelling over and to the rear of the application site.

Documents

Application Form
Archived · Original link
Drawing
Archived · Original link
Supporting Documents
Archived · Original link
Drawing
Archived · Original link

Have your say

Your comment matters. Councils must consider every representation that raises material planning considerations.

Write a comment