← West Suffolk Council

Status

Pending Consideration New housing
Received
06 Feb 2026
New homes
3

Full proposal

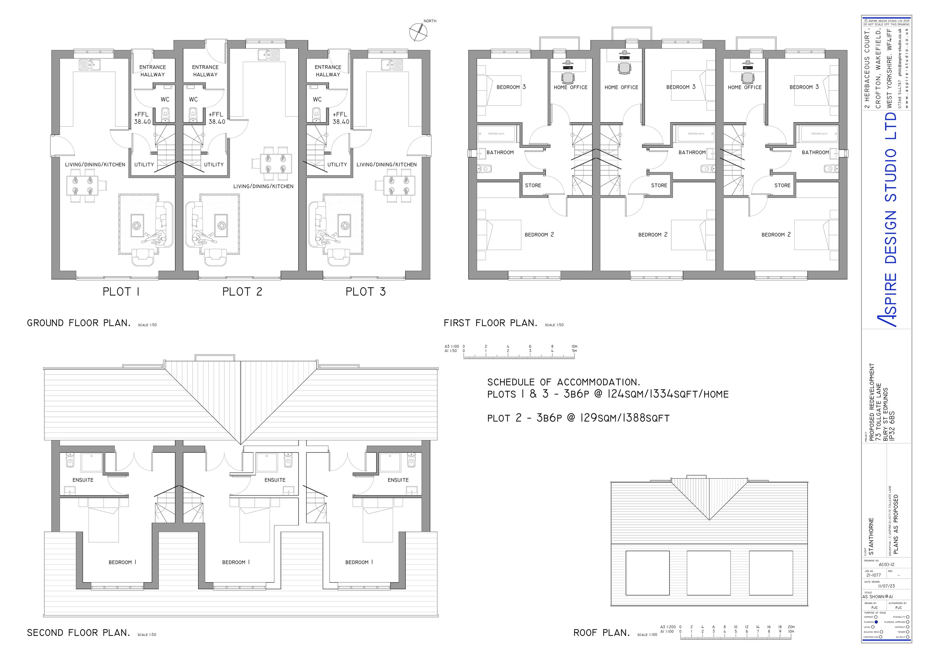
Outline planning application (means of access/layout/scale) - three dwellings and associated external parking and garden areas

Documents

APPLICATION FORM - WITHOUT PERSONAL DATA
Application Form
Not yet archived · Original link
BIODIVERSITY CREDITS DETAILS
Supporting Documents
Not yet archived · Original link
BIODIVERSITY NET GAIN - BASELINE MAP
Supporting Documents
Not yet archived · Original link
BIODIVERSITY NET GAIN - METRIC
Supporting Documents
Not yet archived · Original link
BIODIVERSITY SURVEY AND REPORT
Supporting Documents
Not yet archived · Original link
ENVIRONMENT TEAM - COMMENTS
Consultation Response
Not yet archived · Original link
Site and Other Plans/Drawings
Archived · Original link
Site and Other Plans/Drawings
Archived · Original link
PHASE 1 DESK STUDY REPORT
Supporting Documents
Not yet archived · Original link
PROPOSED ELEVATIONS
Site and Other Plans/Drawings
Not yet archived · Original link
Site and Other Plans/Drawings
Archived · Original link
TREE SURVEY
Supporting Documents
Not yet archived · Original link

Have your say

Your comment matters. Councils must consider every representation that raises material planning considerations.

Write a comment