← City of Westminster

Status

Decided House extension
Received
26 Nov 2024
New homes
0

Full proposal

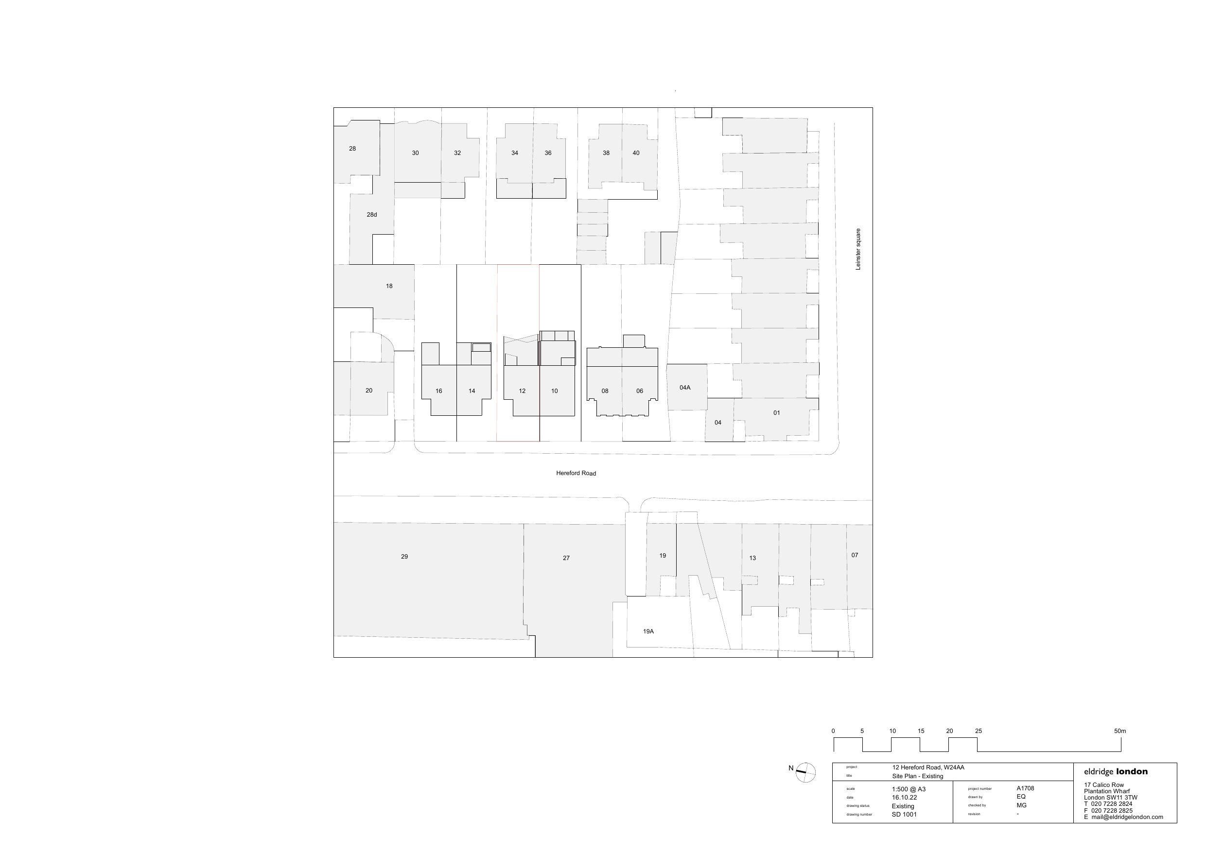
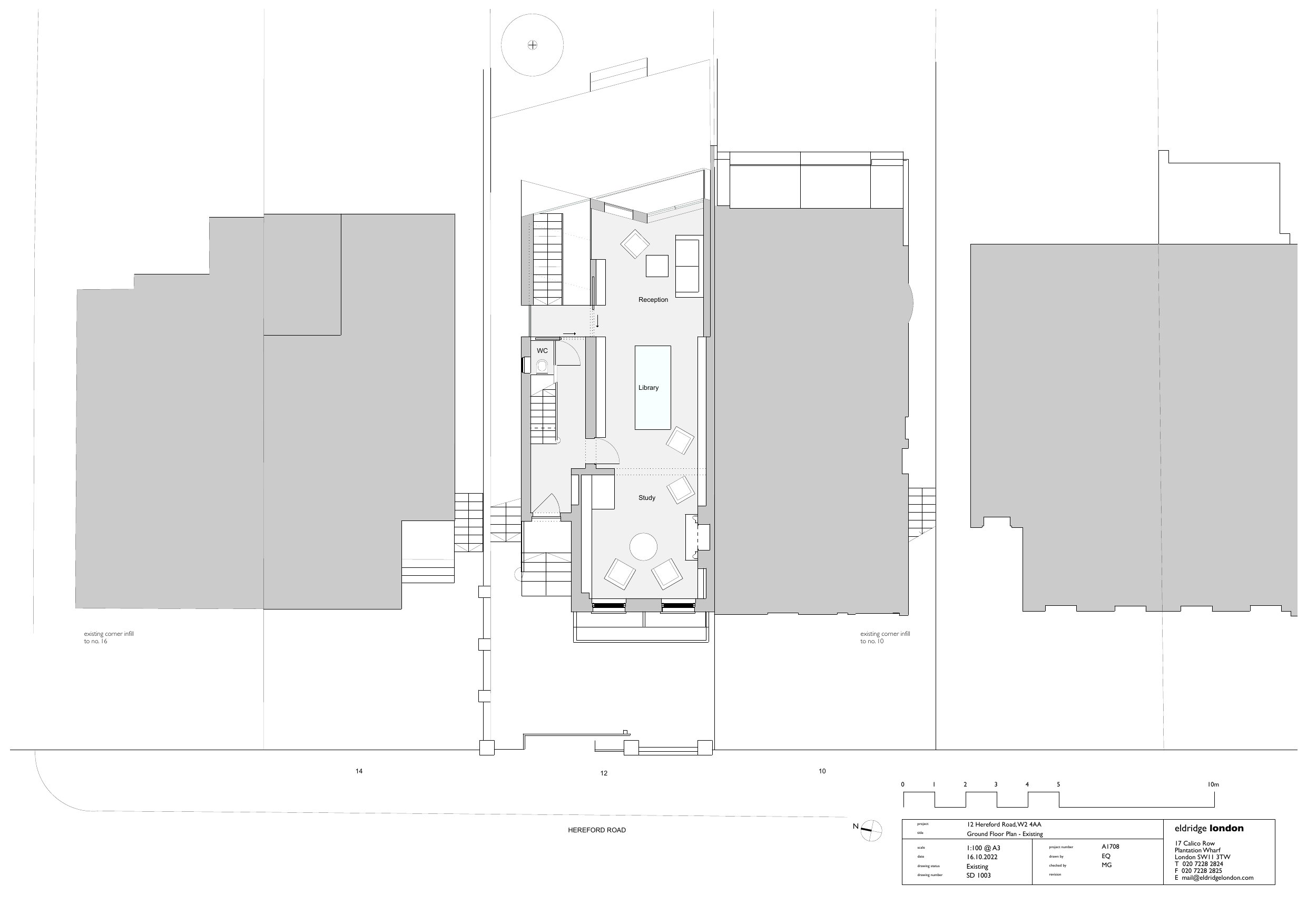
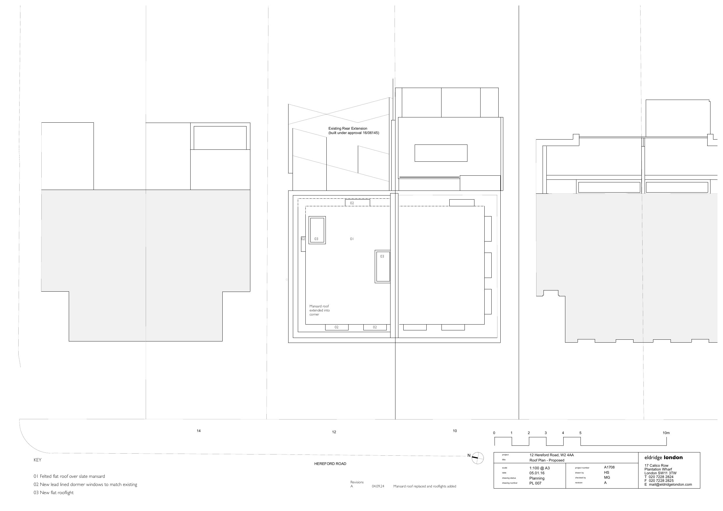
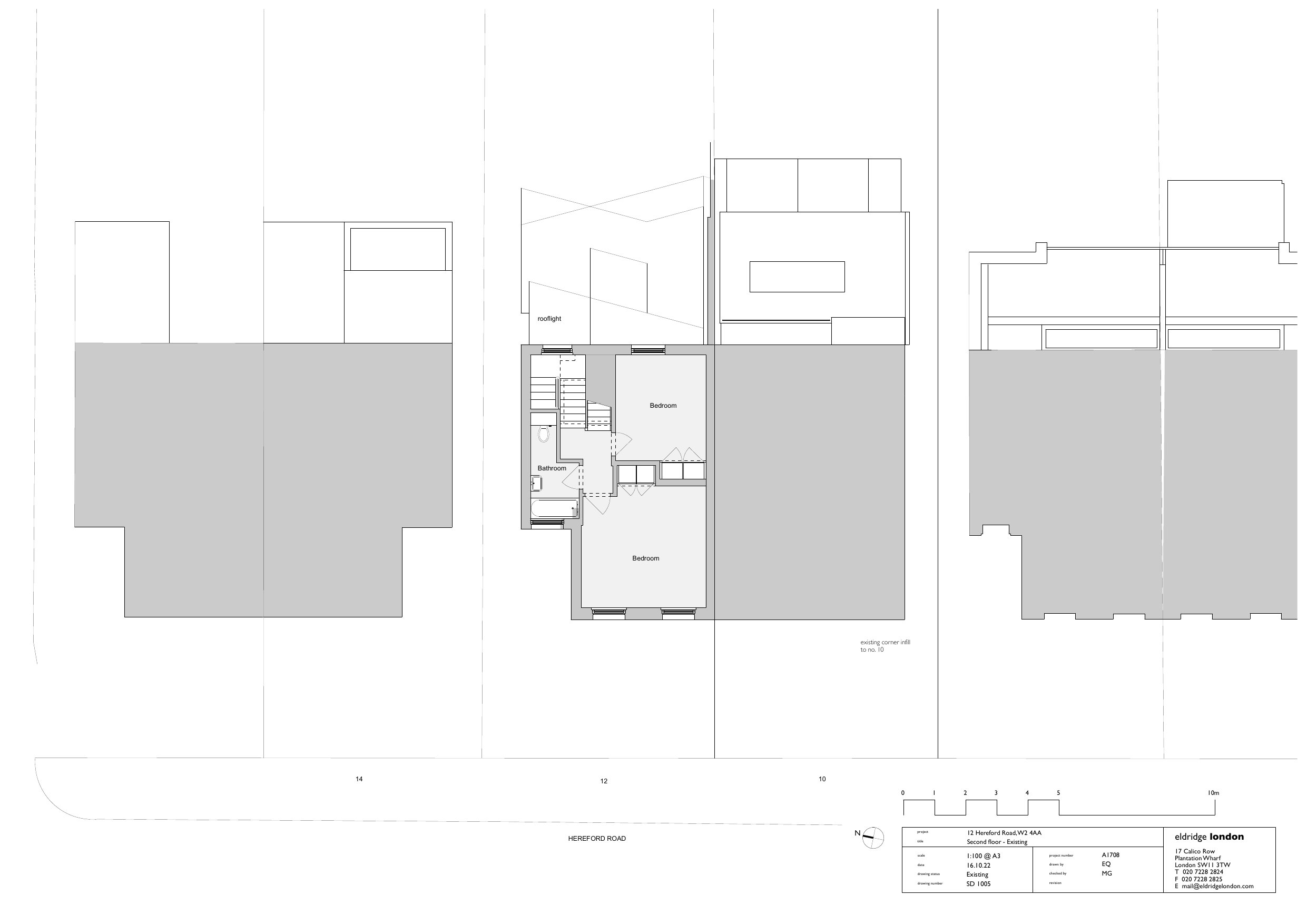
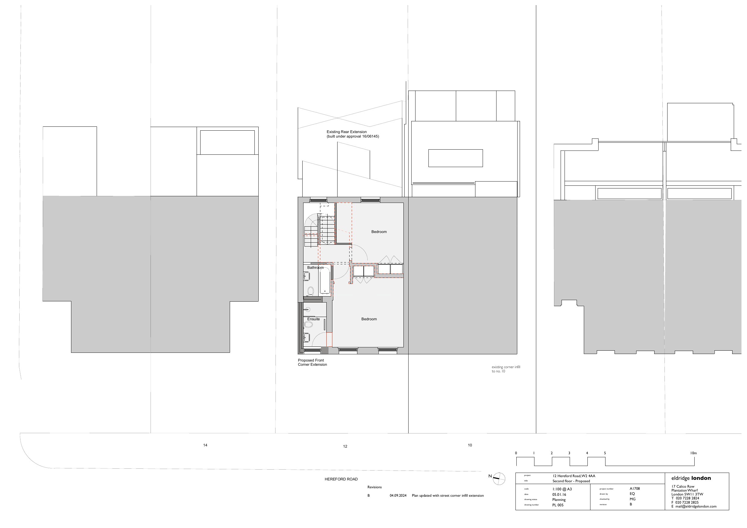
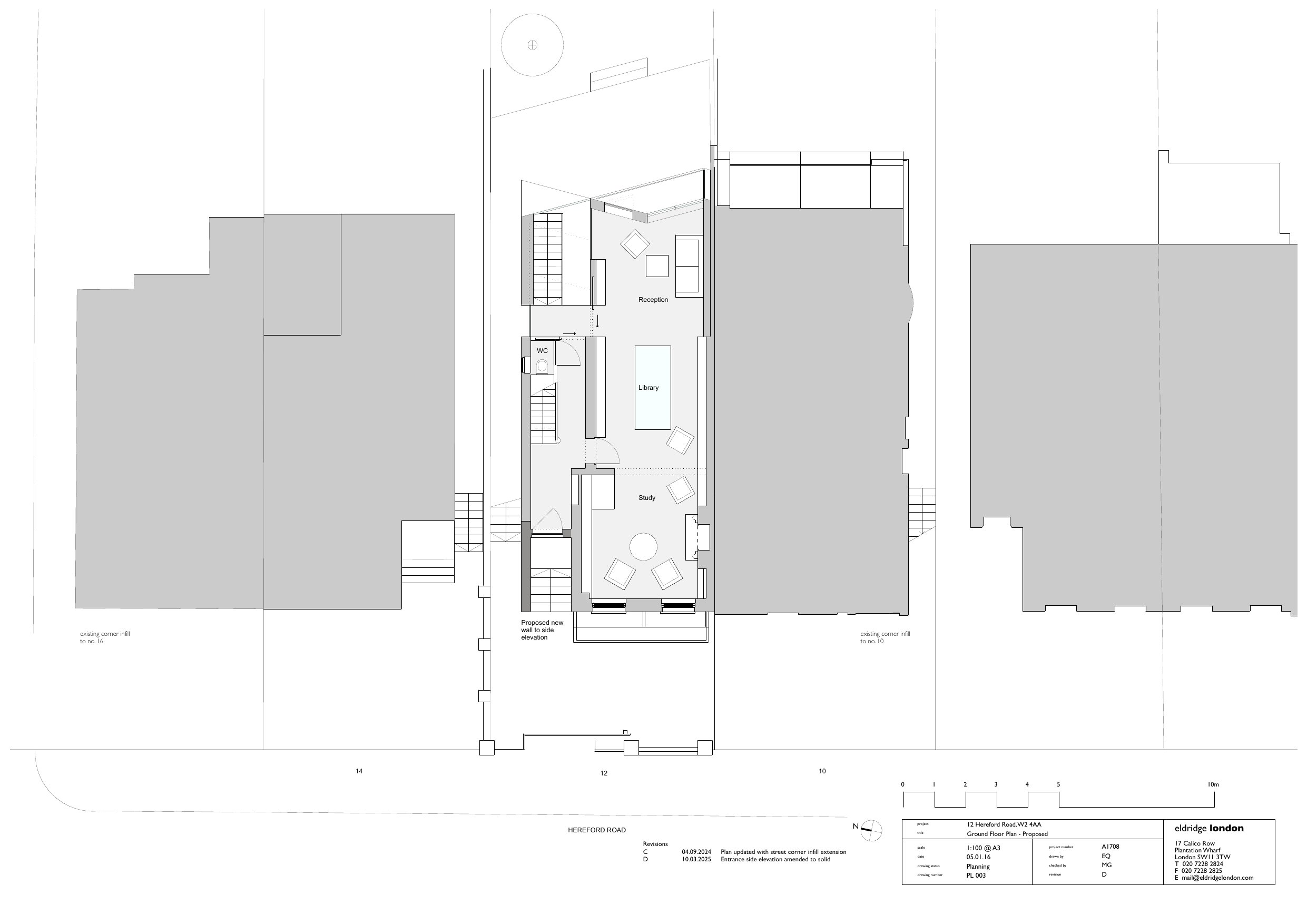
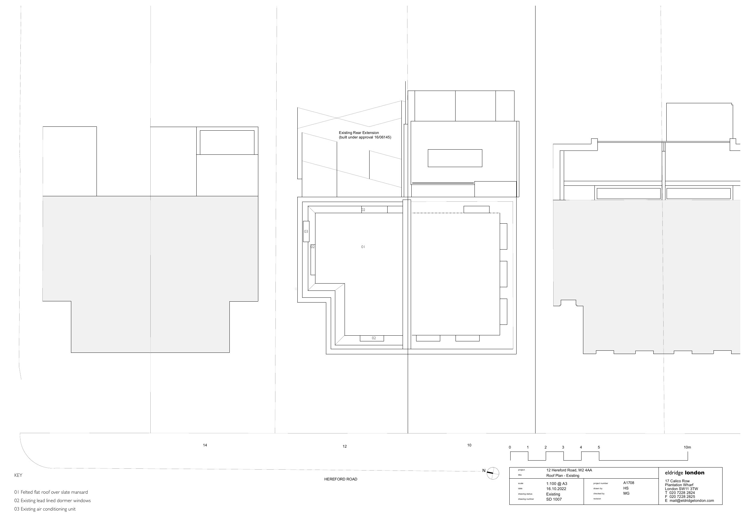
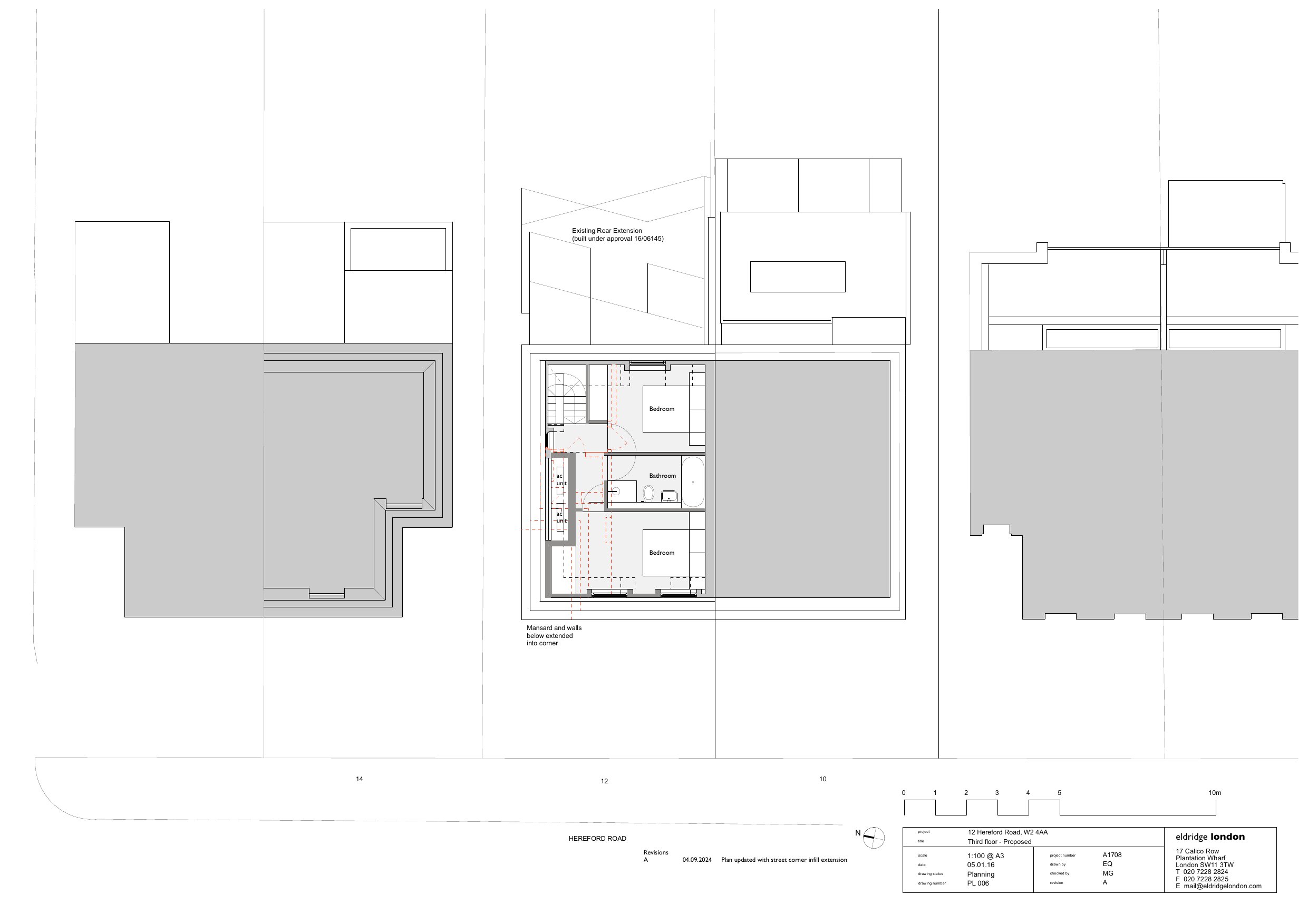
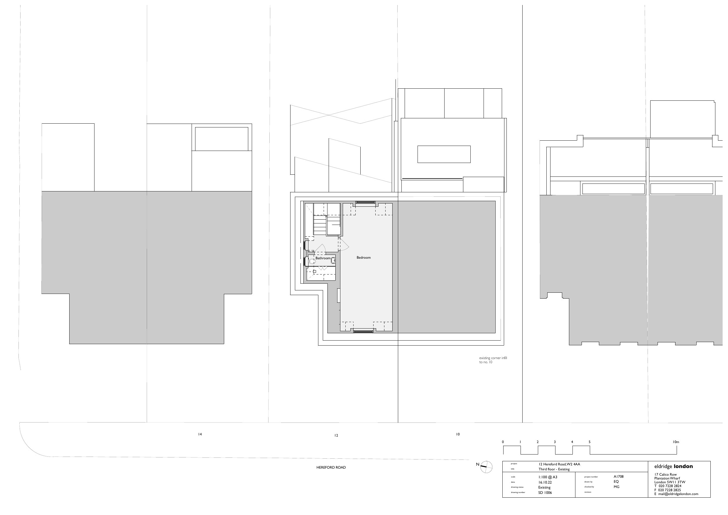
Erection of a front extension at ground, first and second floor level; extension of mansard roof over proposed front extension below, installation of new windows and doors.

Documents

Background Papers
Archived · Original link
Background Papers
Archived · Original link
Application Form
Archived · Original link
Background Papers
Archived · Original link
Background Papers
Archived · Original link
Report
Archived · Original link
Design and Access Statement
Archived · Original link
Background Papers
Archived · Original link
Background Papers
Archived · Original link
Drawing
Archived · Original link
Background Papers
Archived · Original link
Decision Notice
Archived · Original link
Drawing
Archived · Original link
Background Papers
Archived · Original link
Other
Archived · Original link
Drawing
Archived · Original link
Background Papers
Archived · Original link
Background Papers
Archived · Original link
Background Papers
Archived · Original link
Drawing
Archived · Original link
Drawing
Archived · Original link
Drawing
Archived · Original link
Drawing
Archived · Original link
Drawing
Archived · Original link

Have your say

Your comment matters. Councils must consider every representation that raises material planning considerations.

Write a comment