← City of Westminster

Status

Decided House extension
Received
17 Dec 2024
New homes
0

Summary

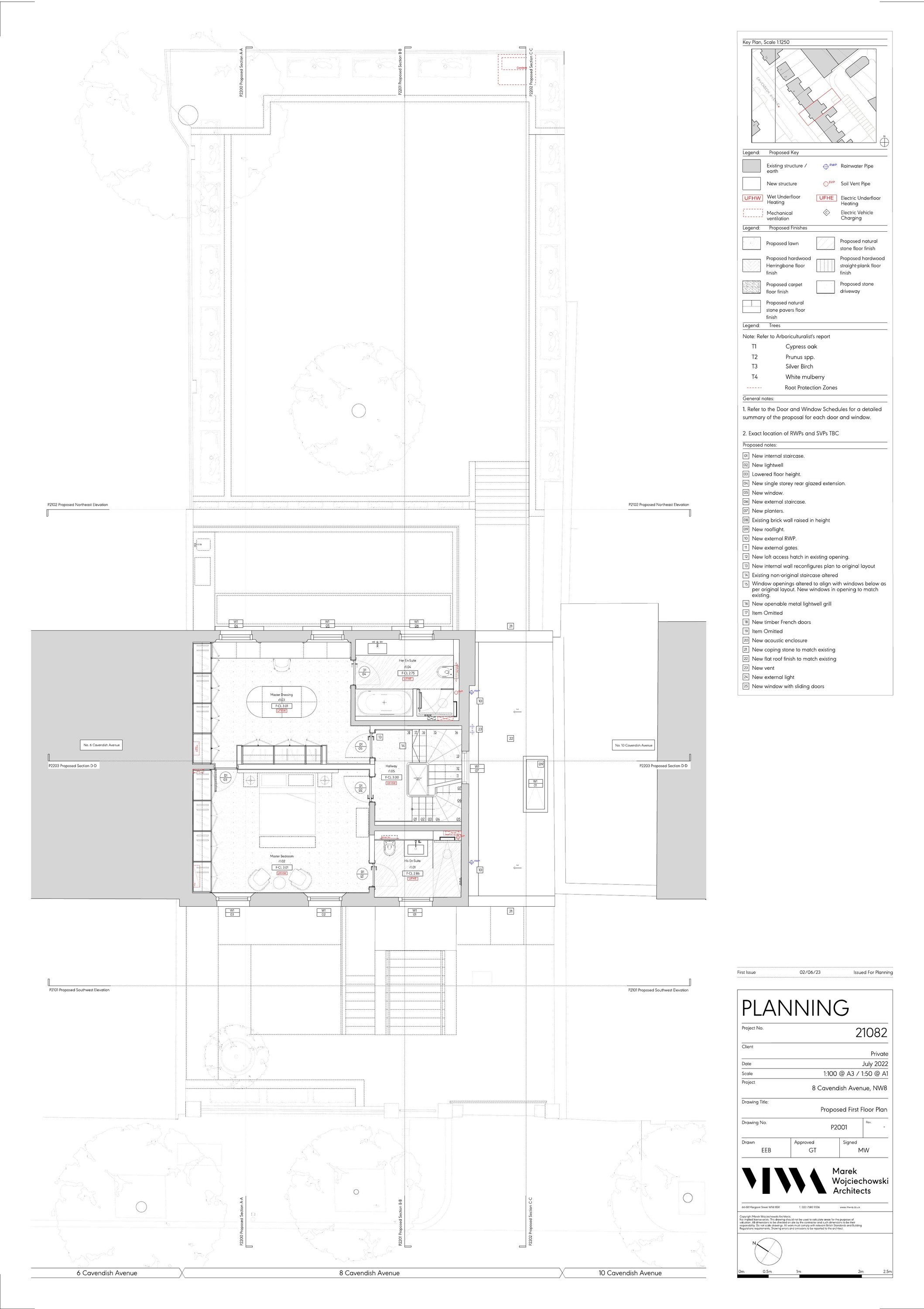
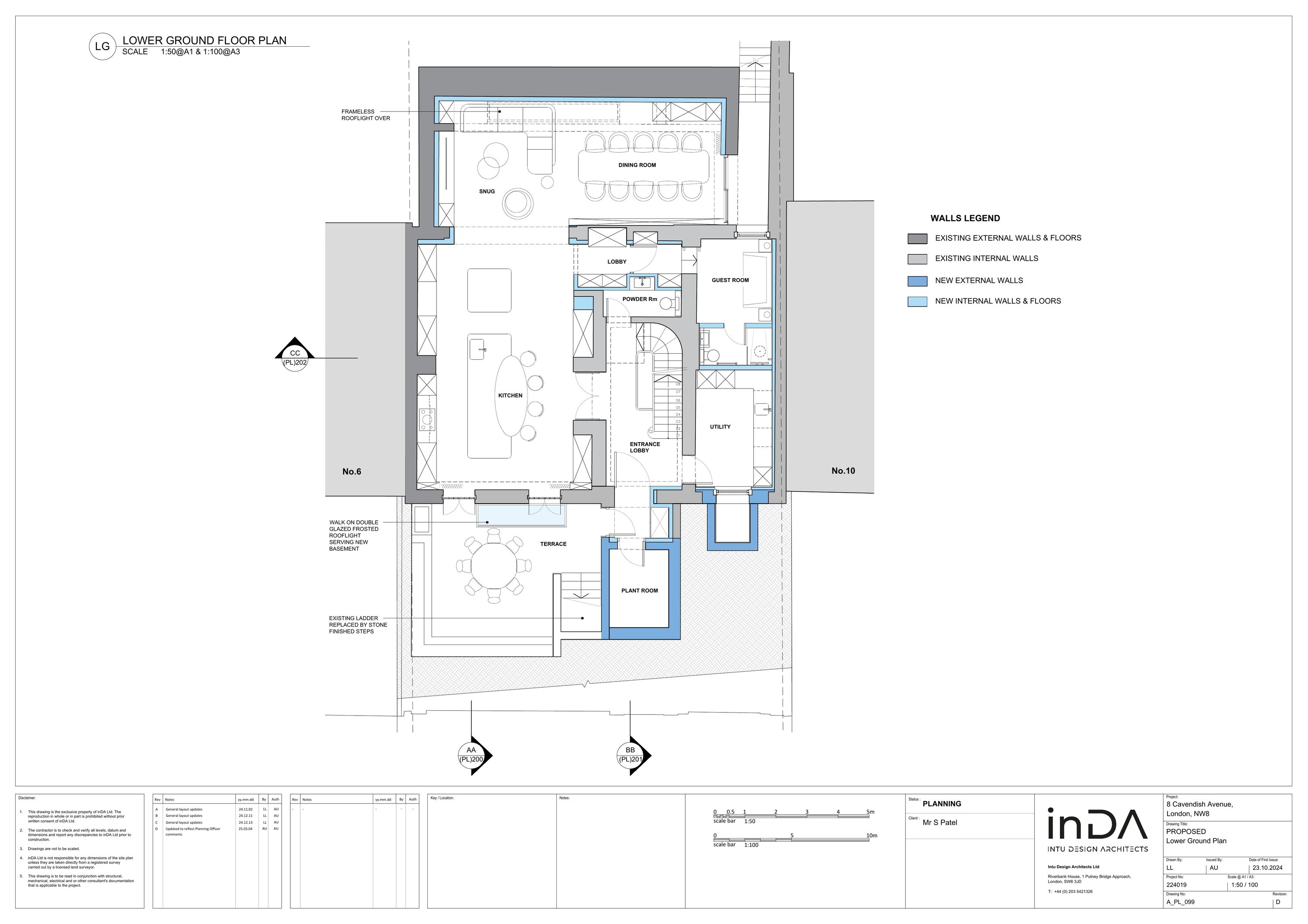
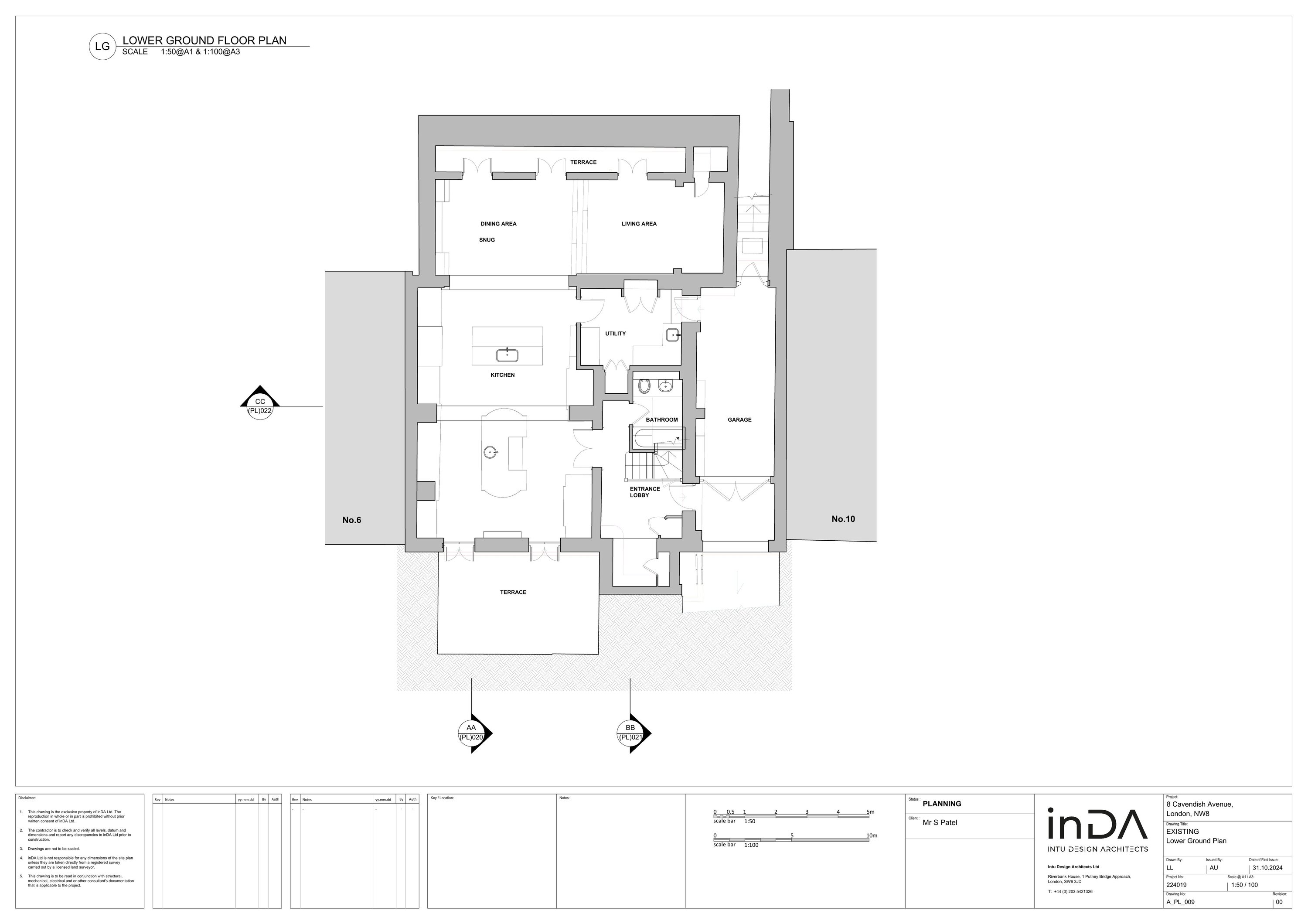
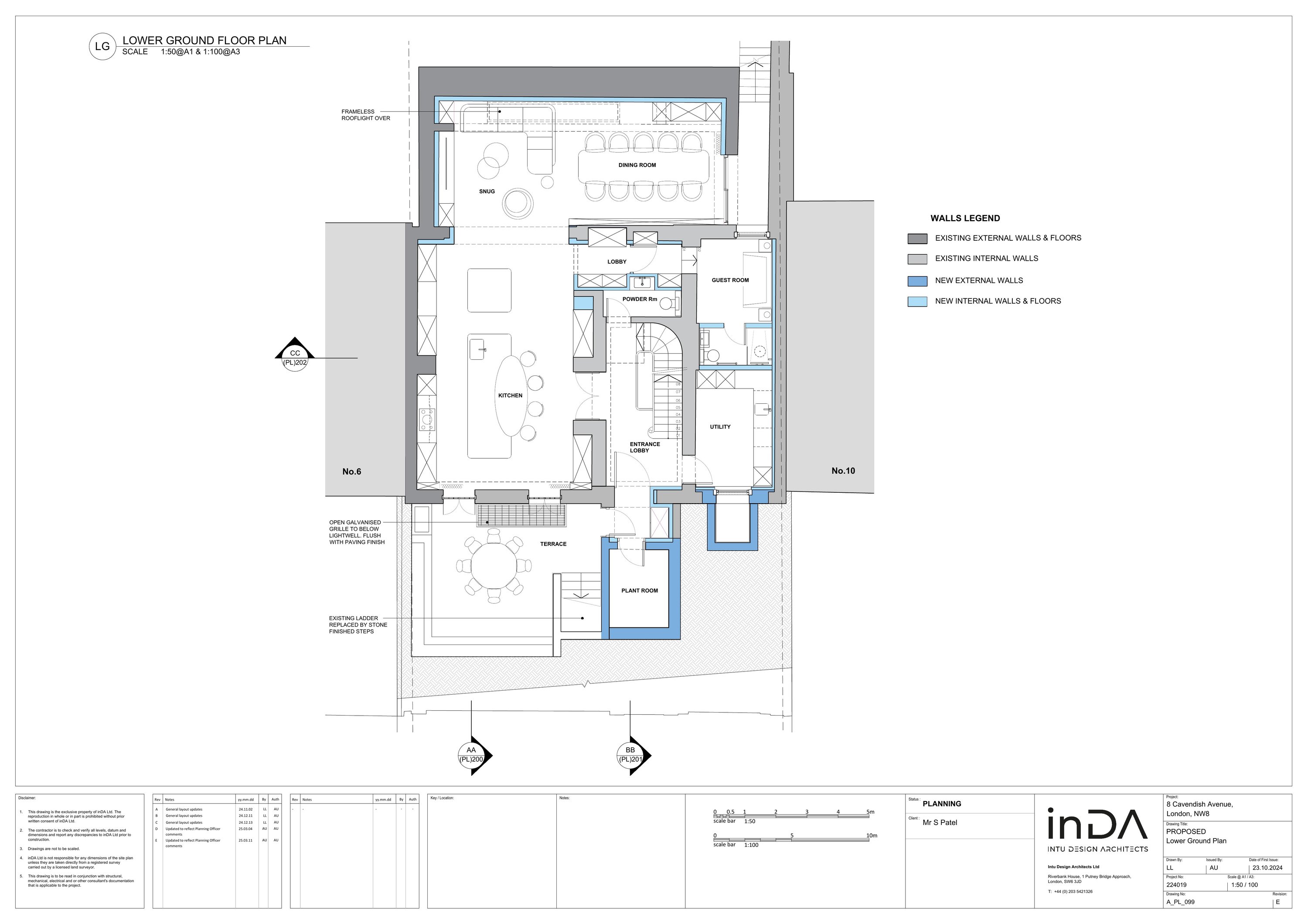
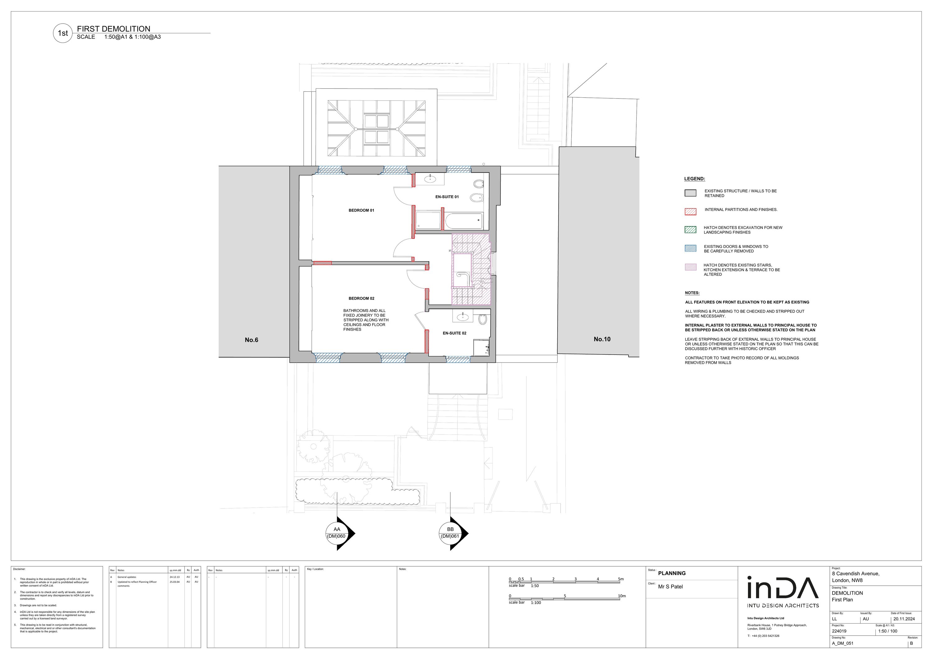
Excavate new basement, lower-ground front/rear extensions, garage conversion, window replacement and garden refurbishment.

Full proposal

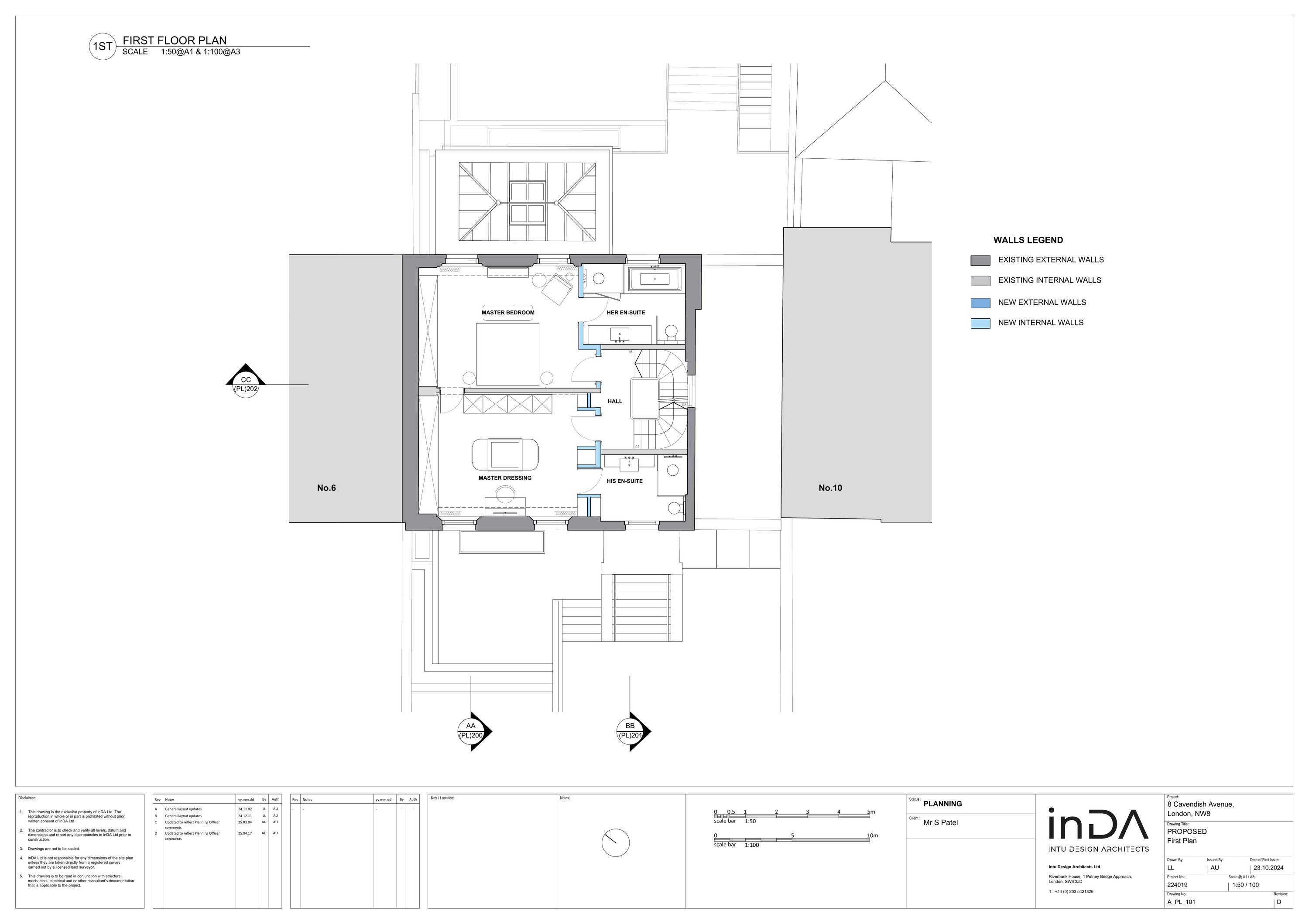
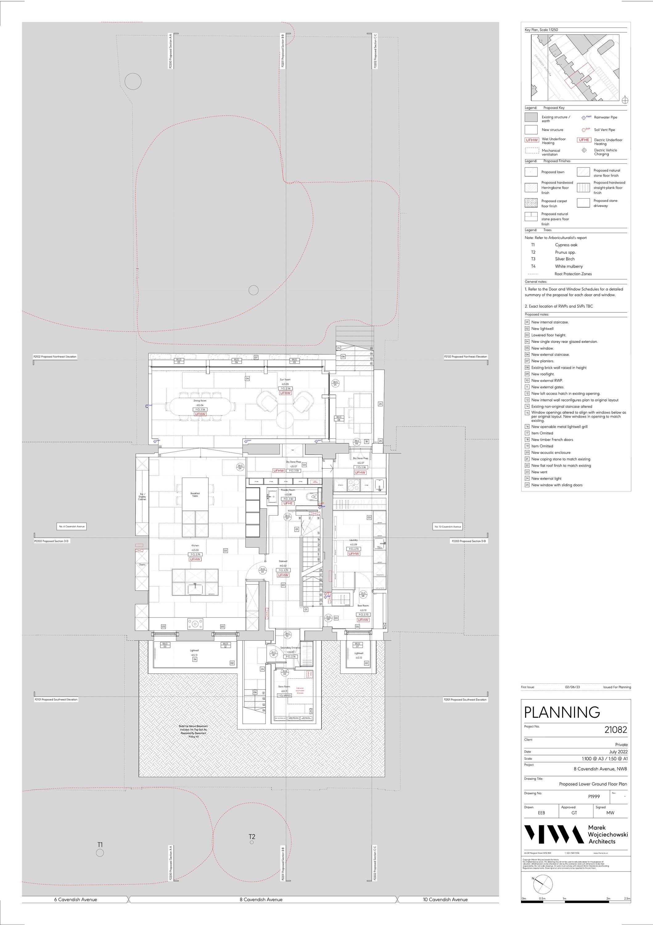
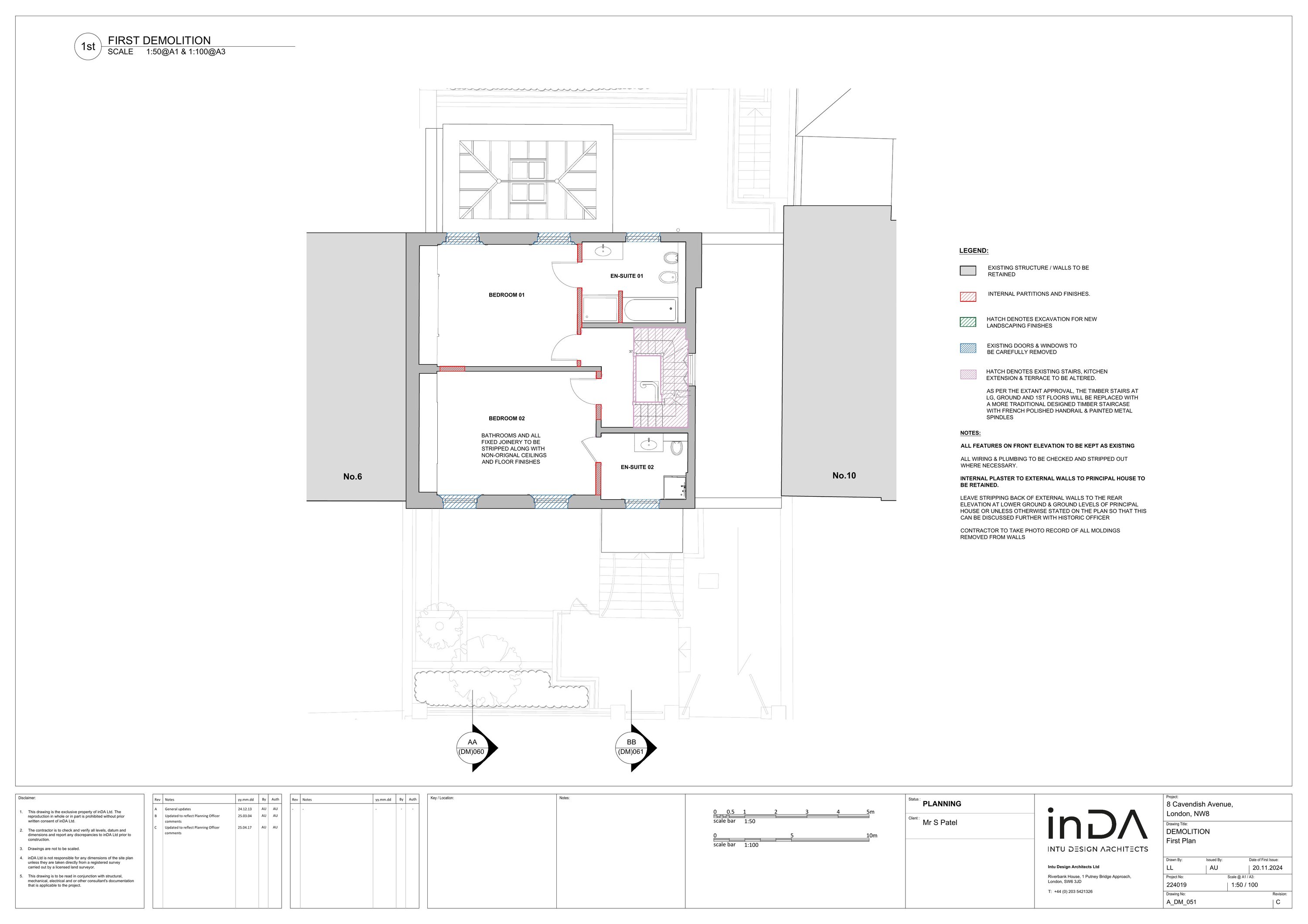
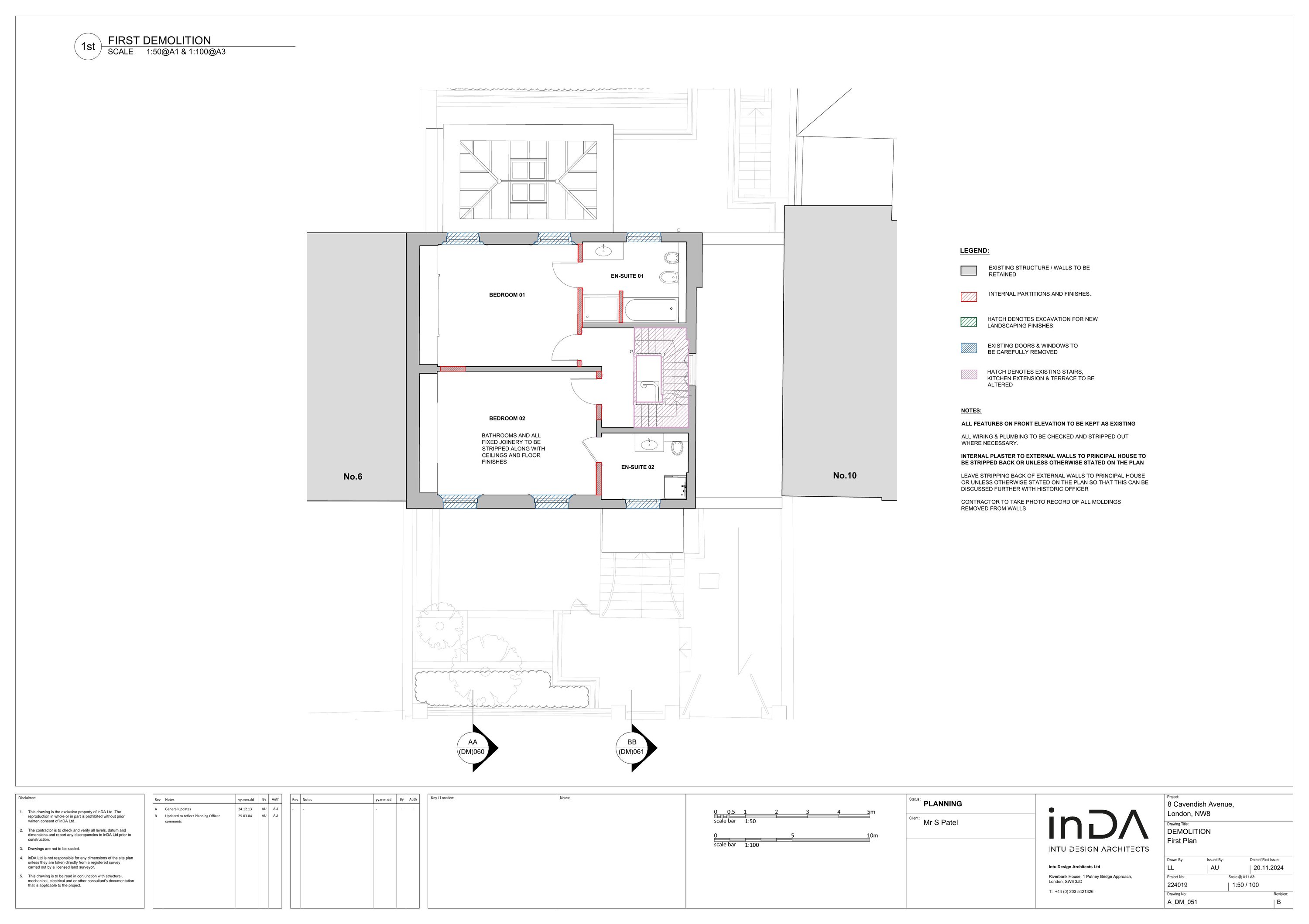
Excavation and construction of a new basement; front and rear extensions at the lower ground floor level; use of the garage for additional internal accommodation; replacement of windows throughout (part-retrospective) and refurbishment of garden house; landscaping proposals to the front and rear gardens; and internal alterations to the property. Installation of plant machinery to rear. (Linked with 24/08780/FULL)

Documents

Background Papers
Archived · Original link
Background Papers
Archived · Original link
Application Form
Archived · Original link
Background Papers
Archived · Original link
Background Papers
Archived · Original link
Background Papers
Archived · Original link
Background Papers
Archived · Original link
Background Papers
Archived · Original link
Background Papers
Archived · Original link
Background Papers
Archived · Original link
Background Papers
Archived · Original link
Background Papers
Archived · Original link
Background Papers
Archived · Original link
Report
Archived · Original link
Superseded document
Archived · Original link
Superseded document
Archived · Original link
Superseded document
Archived · Original link
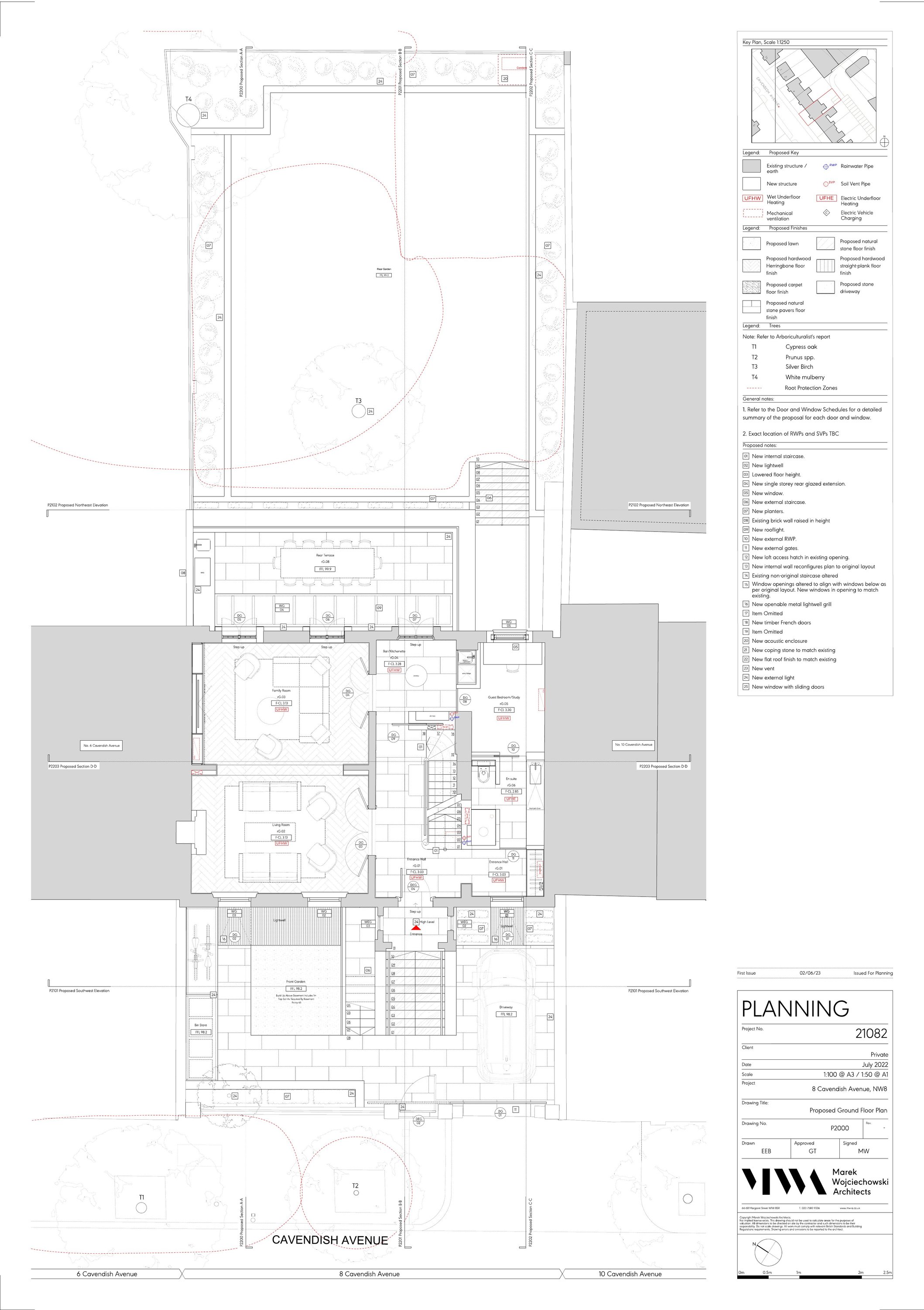
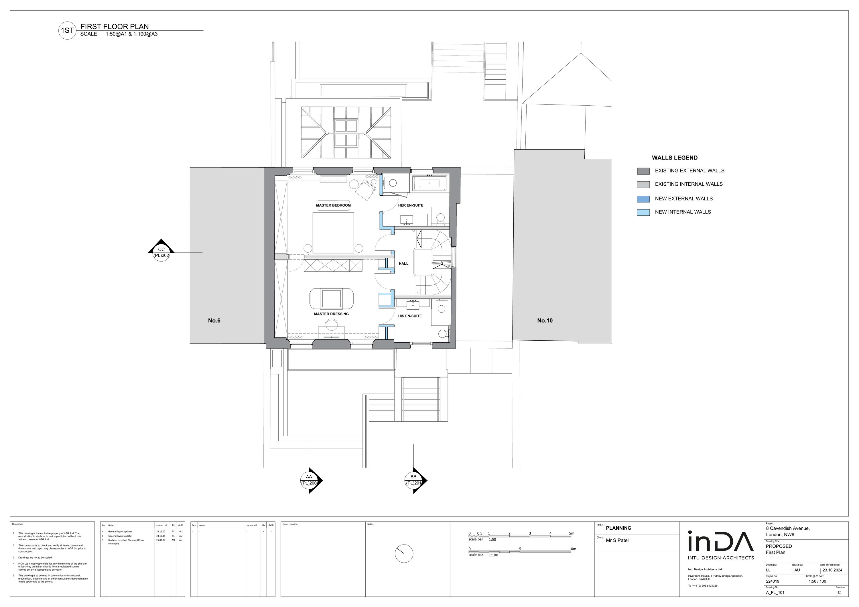
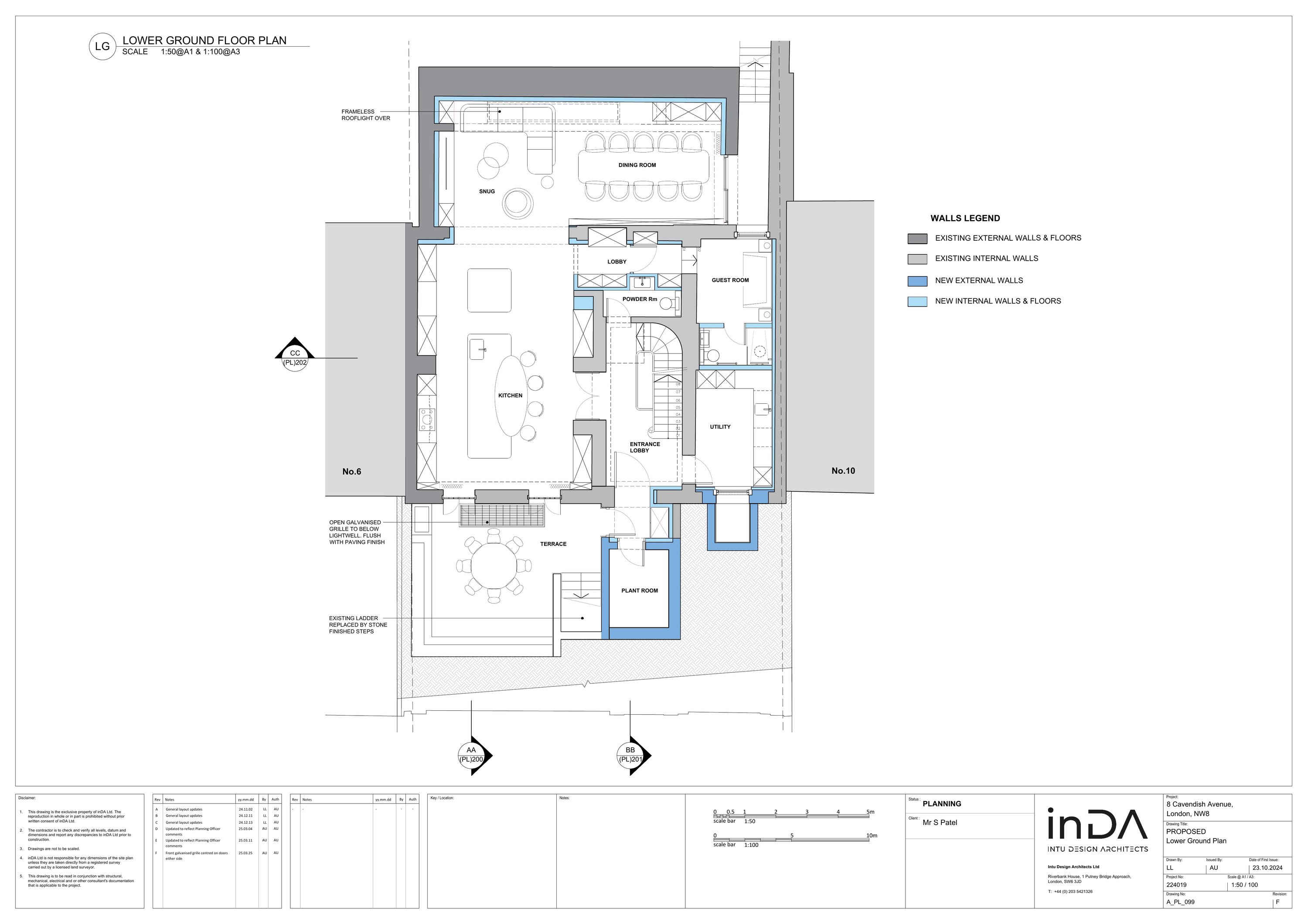
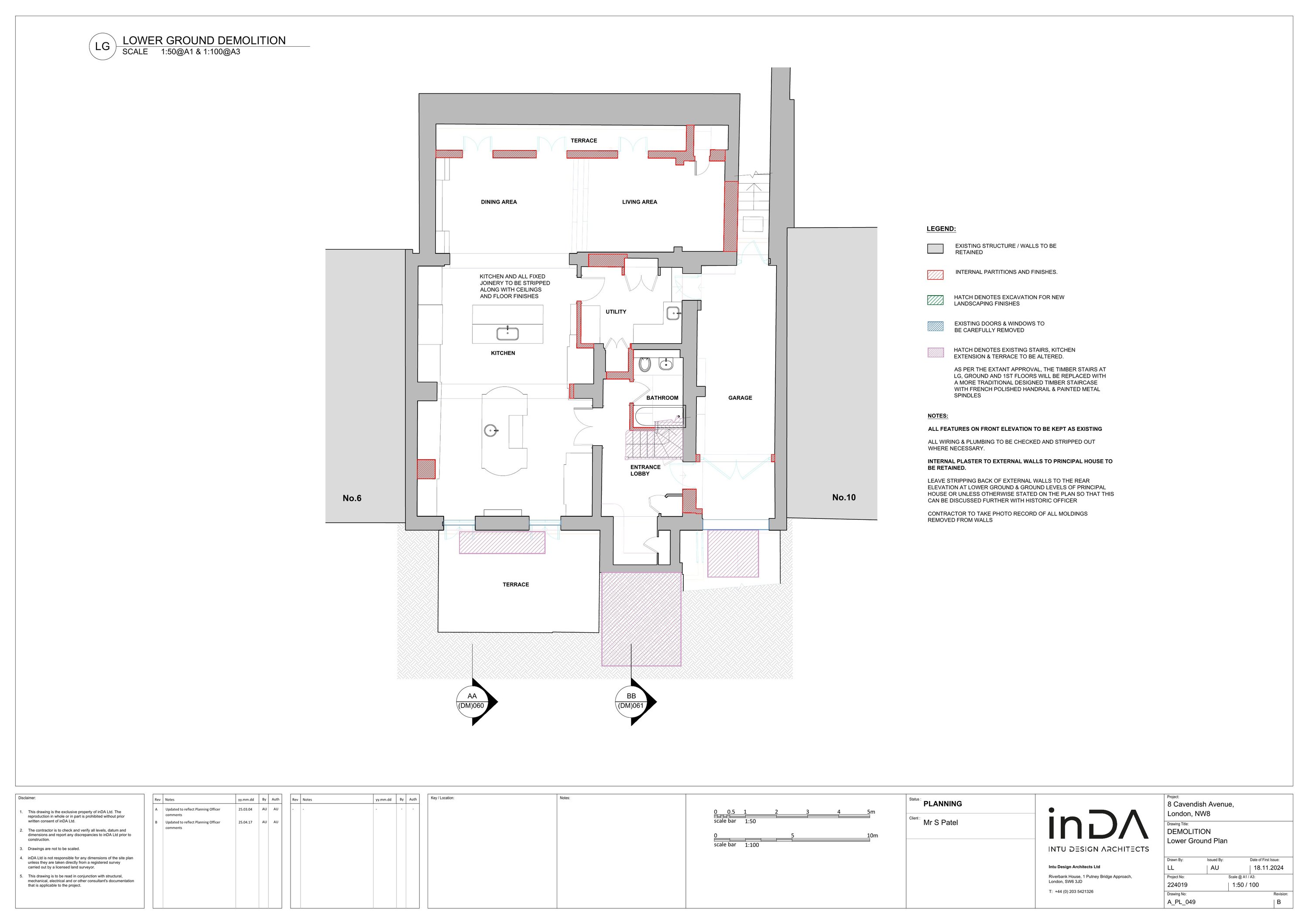
Drawing
Archived · Original link
Drawing
Archived · Original link
Superseded document
Archived · Original link
Superseded document
Archived · Original link
Superseded document
Archived · Original link
Superseded document
Archived · Original link
Design and Access Statement
Archived · Original link
Superseded document
Archived · Original link
Superseded document
Archived · Original link
Background Papers
Archived · Original link
Drawing
Archived · Original link
Heritage Statement
Archived · Original link
Acoustic report
Archived · Original link
Superseded document
Archived · Original link
Superseded document
Archived · Original link
Superseded document
Archived · Original link
Superseded document
Archived · Original link
Superseded document
Archived · Original link
Drawing
Archived · Original link
Superseded document
Archived · Original link
Superseded document
Archived · Original link
Superseded document
Archived · Original link
Superseded document
Archived · Original link
Superseded document
Archived · Original link
Superseded document
Archived · Original link
Superseded document
Archived · Original link
Superseded document
Archived · Original link
Drawing
Archived · Original link
Drawing
Archived · Original link
Superseded document
Archived · Original link
Superseded document
Archived · Original link
Superseded document
Archived · Original link
Superseded document
Archived · Original link
Superseded document
Archived · Original link
Location Plan
Archived · Original link
Structural survey
Archived · Original link
Design and Access Statement
Archived · Original link
Superseded document
Archived · Original link
Tree Survey
Archived · Original link
Superseded document
Archived · Original link

Have your say

Your comment matters. Councils must consider every representation that raises material planning considerations.

Write a comment