← City of Westminster

Status

Withdrawn House extension
Received
24 Dec 2024
New homes
0

Summary

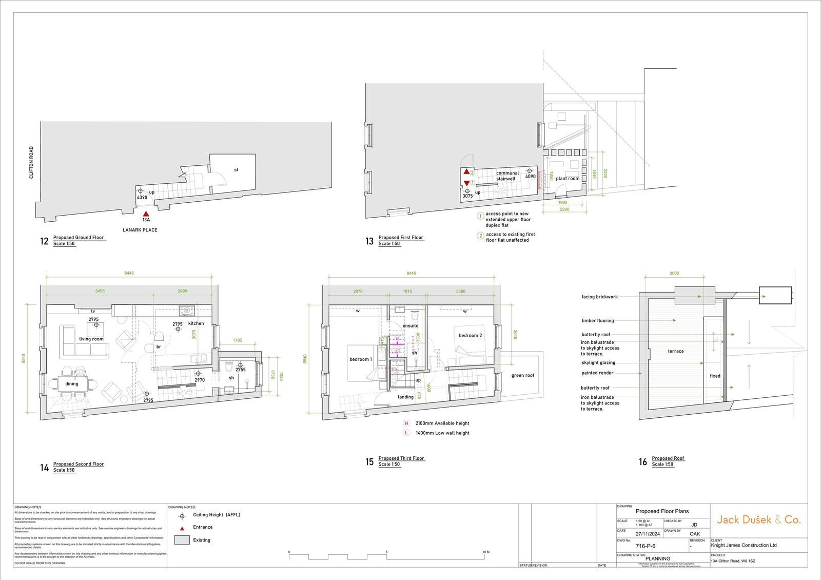
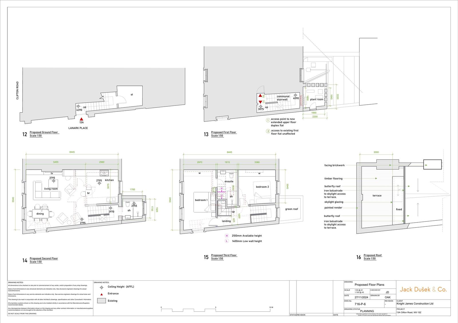
Two-storey rear extension at first and second floors, plant room, roof terrace, new windows, railings and skylights.

Full proposal

Erection of two storey rear extension at first and second floor levels, with plant room at first floor level: Replacement of windows and formation of new windows to side; Installation of railings to flat roof at first floor level to rear; Alterations to main roof to form rear terrace, with associated skylights for access and railings; and associated external alterations.

Documents

1ST INVALID LETTER
Background Papers
Not yet archived · Original link
APPLICATIONFORMREDACTED
Application Form
Not yet archived · Original link
APPLICATIONFORMREDACTED
Superseded document
Not yet archived · Original link
CNSLT-LA SOCIETY
Background Papers
Not yet archived · Original link
DESIGN AND ACCESS STATEMENT
Design and Access Statement
Not yet archived · Original link
ECNSLT-INTERNAL CONSULTS
Background Papers
Not yet archived · Original link
Superseded document
Archived · Original link
EXISTING CROSS SECTIONS
Drawing
Not yet archived · Original link
EXISTING CROSS SECTIONS
Superseded document
Not yet archived · Original link
EXISTING FLOOR PLANS
Drawing
Not yet archived · Original link
EXISTING FLOOR PLANS
Superseded document
Not yet archived · Original link
EXISTING FRONT AND REAR ELEVATIONS
Superseded document
Not yet archived · Original link
EXISTING FRONT AND REAR ELEVATIONS
Drawing
Not yet archived · Original link
EXISTING LONG SECTIONS
Superseded document
Not yet archived · Original link
EXISTING LONG SECTIONS
Drawing
Not yet archived · Original link
EXISTING SIDE ELEVATION
Superseded document
Not yet archived · Original link
EXISTING SIDE ELEVATION
Drawing
Not yet archived · Original link
FIRE SAFETY STRATEGY
Background Papers
Not yet archived · Original link
FLOOD RISK ASSESSMENT
Flood risk assessment
Not yet archived · Original link
LLFA COMMENT
Consultee Comment
Not yet archived · Original link
NEIGHBOUR NOTIFICATION LETTER (21D)
Background Papers
Not yet archived · Original link
NOISE IMPACT ASSESSMENT
Noise impact assessment
Not yet archived · Original link
PROPOSED CROSS SECTIONS
Superseded document
Not yet archived · Original link
PROPOSED CROSS SECTIONS
Drawing
Not yet archived · Original link
Superseded document
Archived · Original link
Drawing
Archived · Original link
PROPOSED FRONT AND REAR ELEVATIONS
Drawing
Not yet archived · Original link
PROPOSED FRONT AND REAR ELEVATIONS
Superseded document
Not yet archived · Original link
PROPOSED LONG SECTIONS
Drawing
Not yet archived · Original link
PROPOSED LONG SECTIONS
Superseded document
Not yet archived · Original link
PROPOSED SIDE ELEVATION
Drawing
Not yet archived · Original link
PROPOSED SIDE ELEVATION
Superseded document
Not yet archived · Original link
RECEIPT OF APPLICATION
ACKREC
Not yet archived · Original link
Location Plan
Archived · Original link
Superseded document
Archived · Original link
SITE NOTICE 21 OR 28 DAYS IF T&C APPL.
Background Papers
Not yet archived · Original link
STATEMENT OF HERITAGE SIGNIFICANCE
Heritage Statement
Not yet archived · Original link
STATEMENT OF HERITAGE SIGNIFICANCE
Superseded document
Not yet archived · Original link
SUSTAINABLE DESIGN STATEMENT
Background Papers
Not yet archived · Original link
WINDOW SECTION DRAWINGS
Drawing
Not yet archived · Original link

Have your say

Your comment matters. Councils must consider every representation that raises material planning considerations.

Write a comment