← City of Westminster

Status

Decided House extension
Received
24 Dec 2024
New homes
0

Full proposal

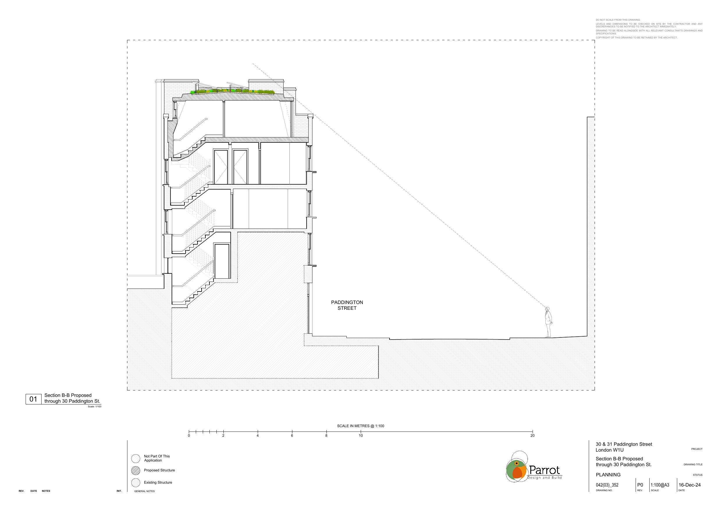
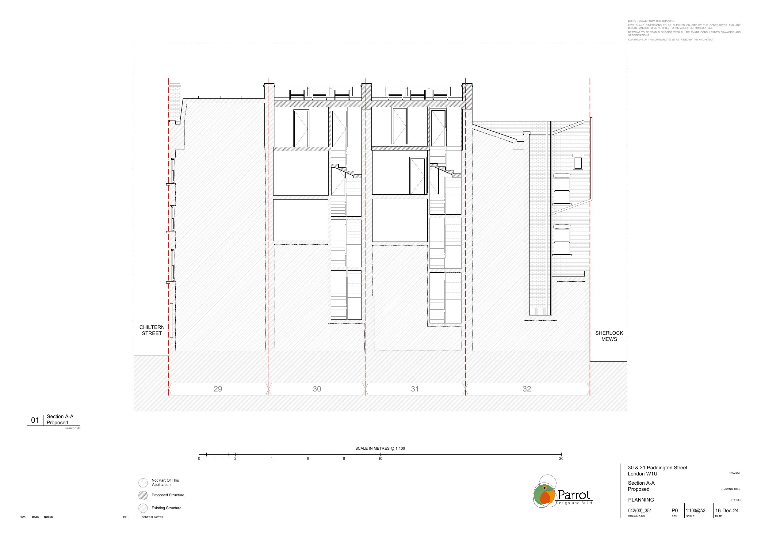
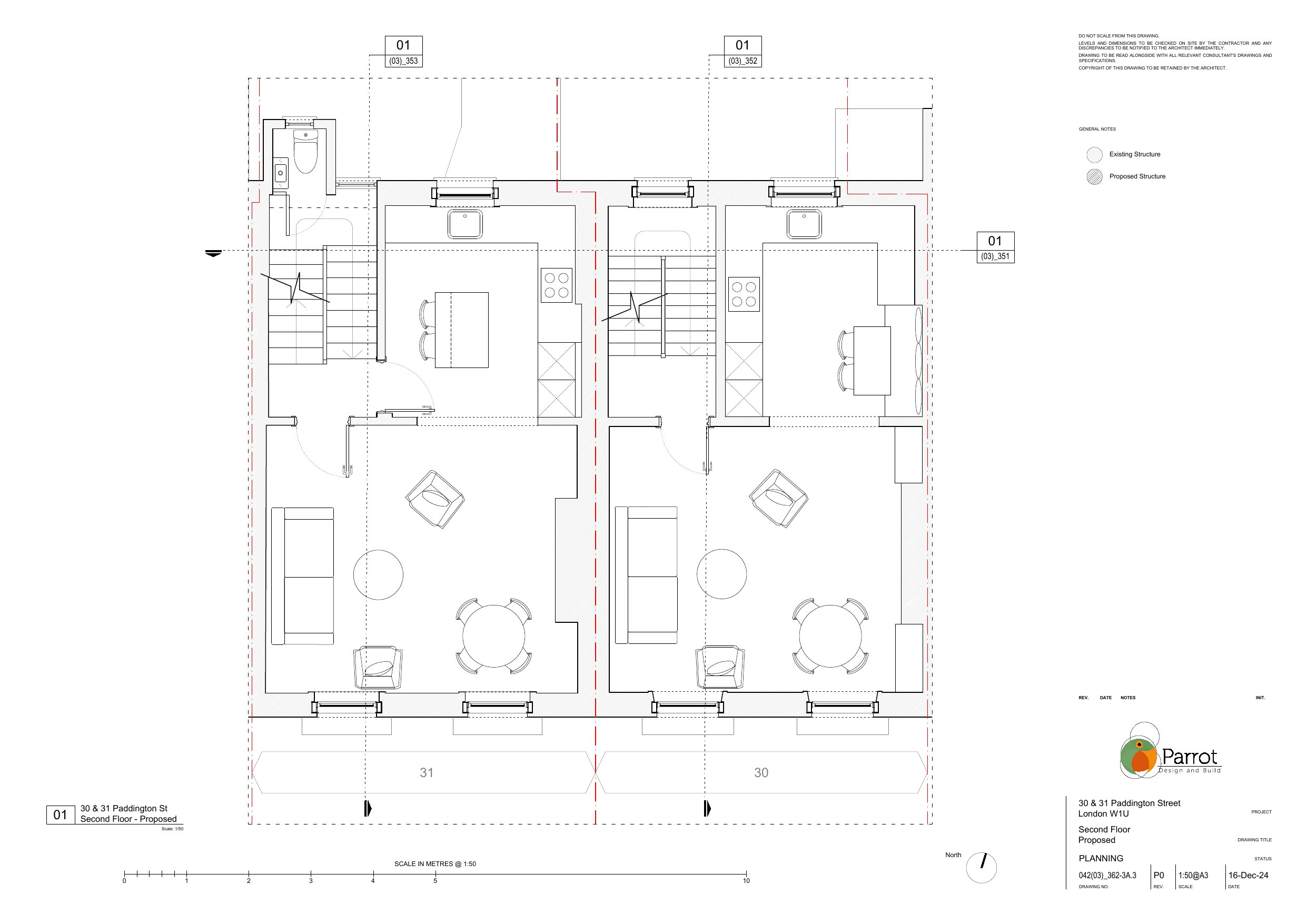
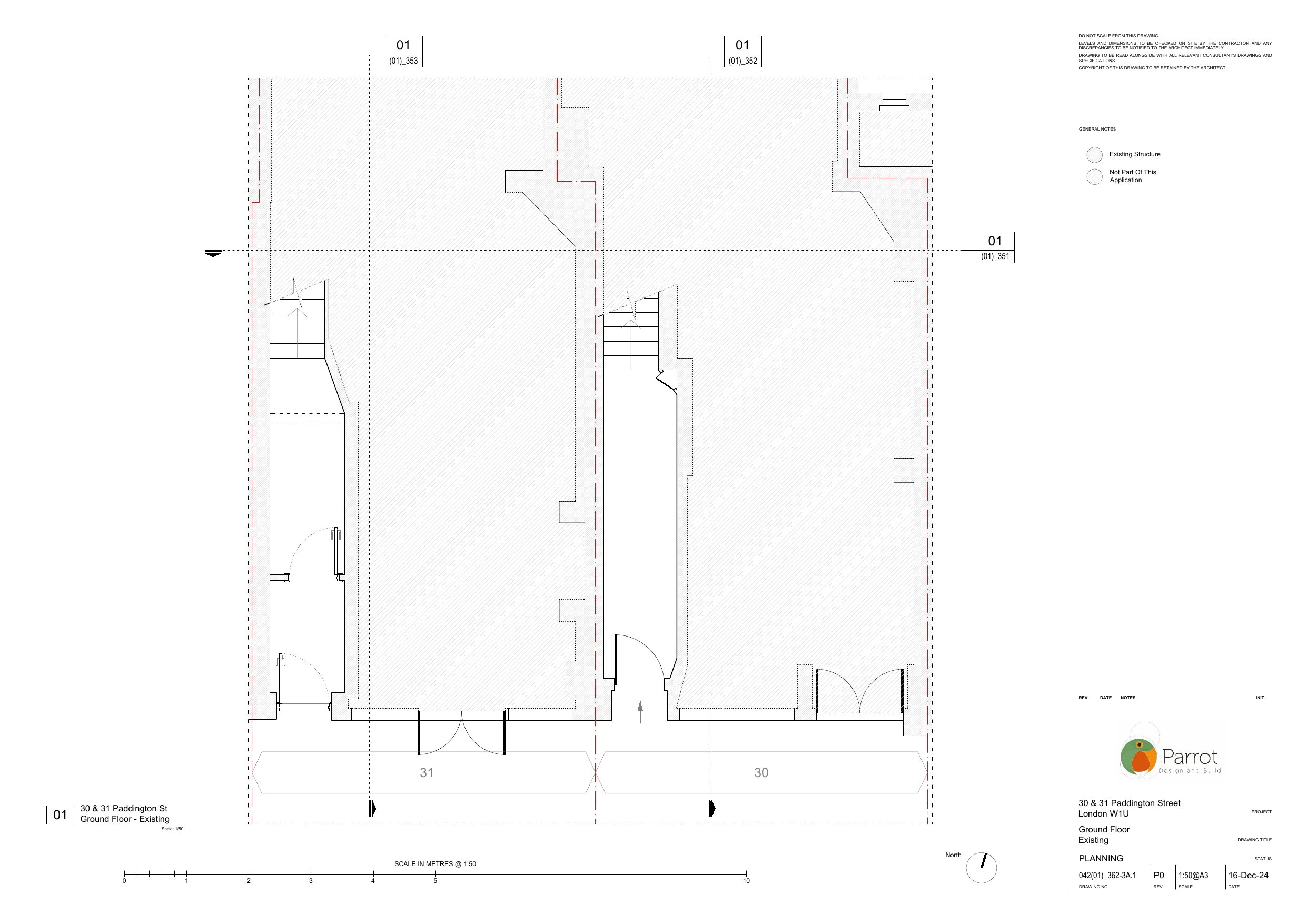
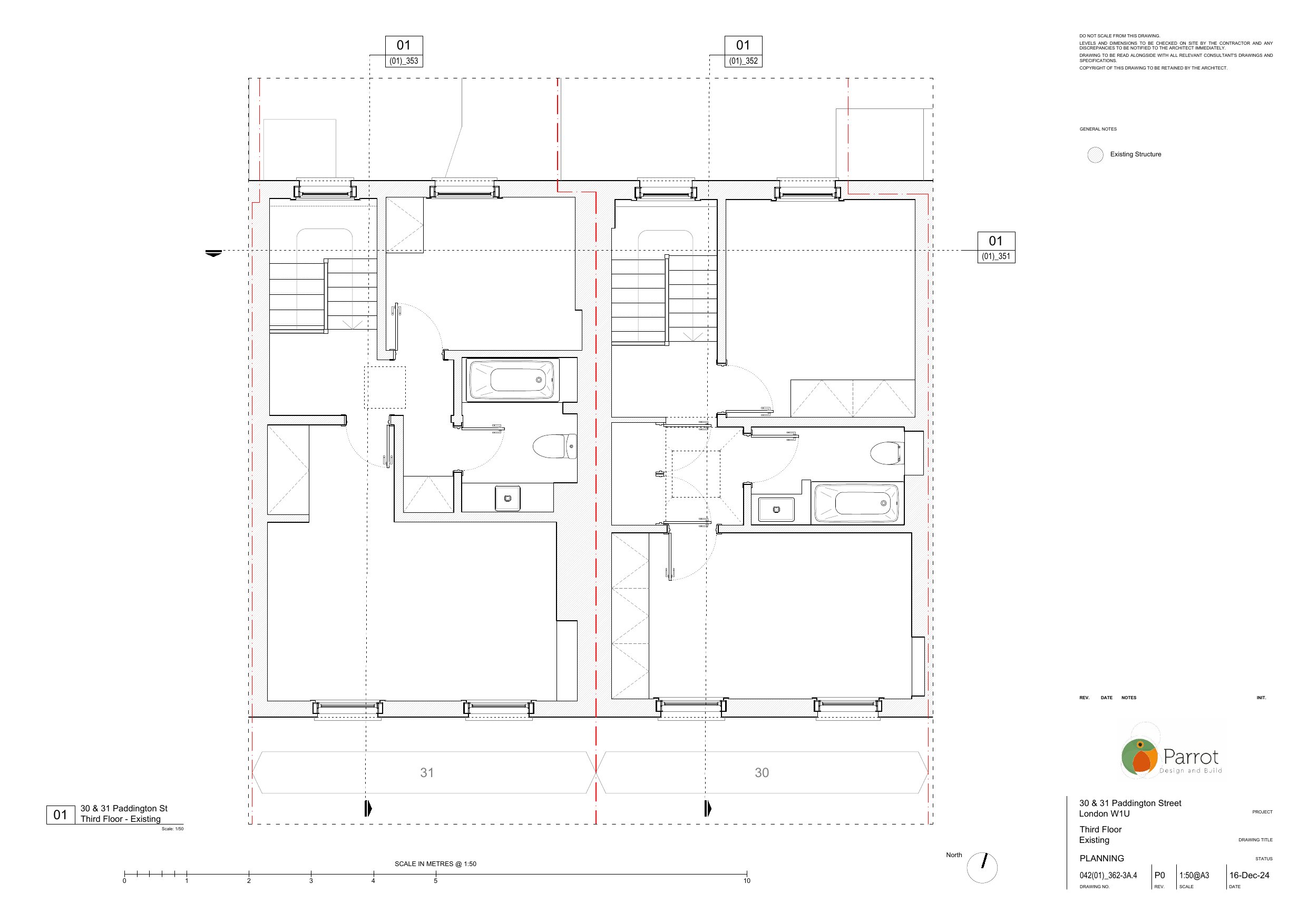
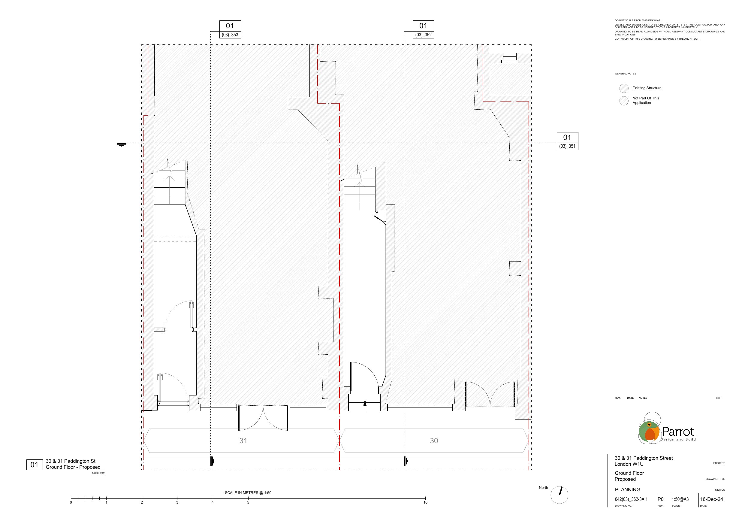
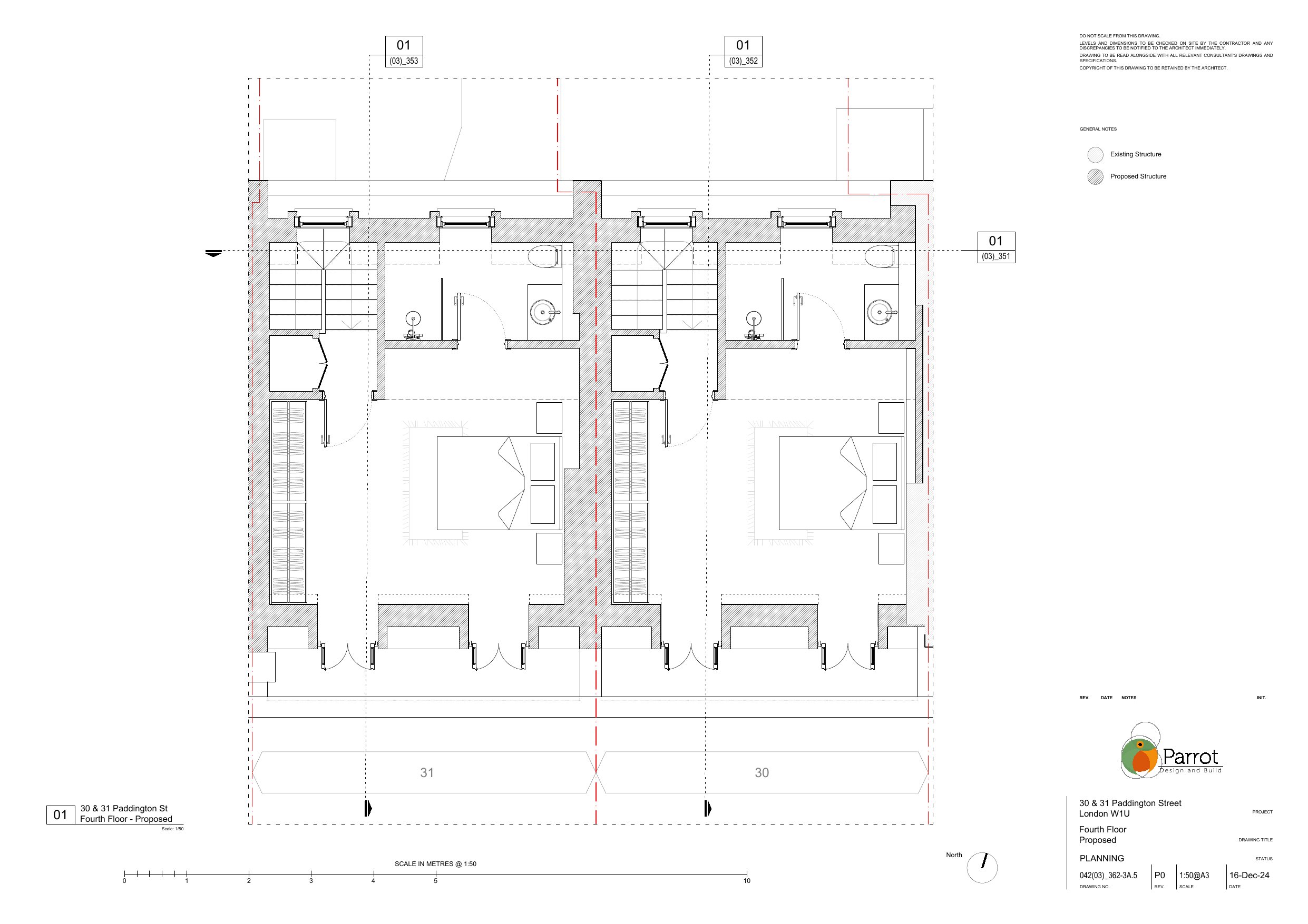
Erection of mansard extensions to enlarge dwellings (Class C3) [SITE INCLUDES 30 & 31 PADDINGTON STREET).

Documents

Background Papers
Archived · Original link
Background Papers
Archived · Original link
Background Papers
Archived · Original link
Background Papers
Archived · Original link
Background Papers
Archived · Original link
Background Papers
Archived · Original link
Report
Archived · Original link
Design and Access Statement
Archived · Original link
Decision Notice
Archived · Original link
Heritage Statement
Archived · Original link
Background Papers
Archived · Original link
Background Papers
Archived · Original link
Location Plan
Archived · Original link
Background Papers
Archived · Original link

Have your say

Your comment matters. Councils must consider every representation that raises material planning considerations.

Write a comment