← City of Westminster

Status

Decided House extension
Received
07 Jan 2025
New homes
0

Summary

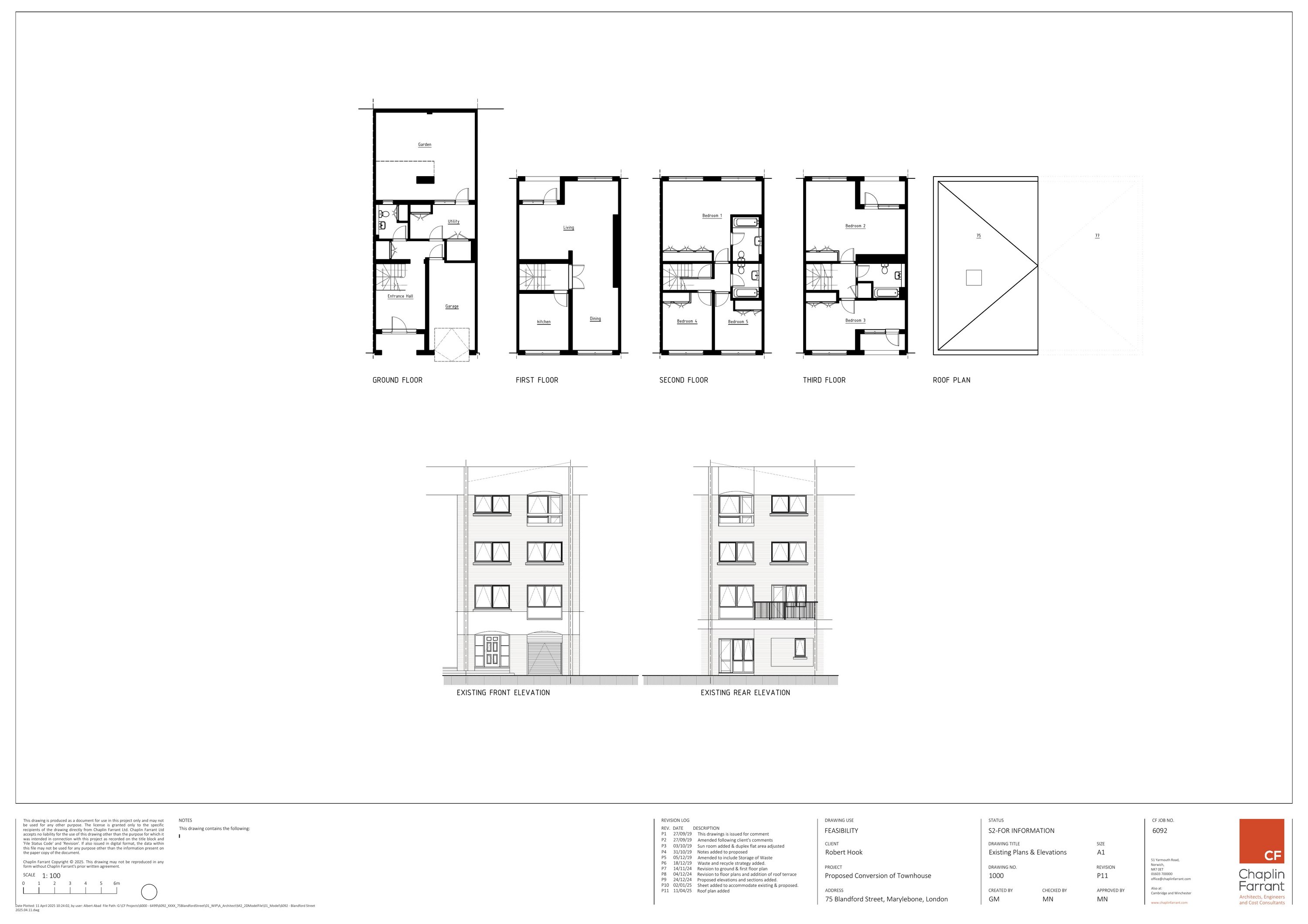
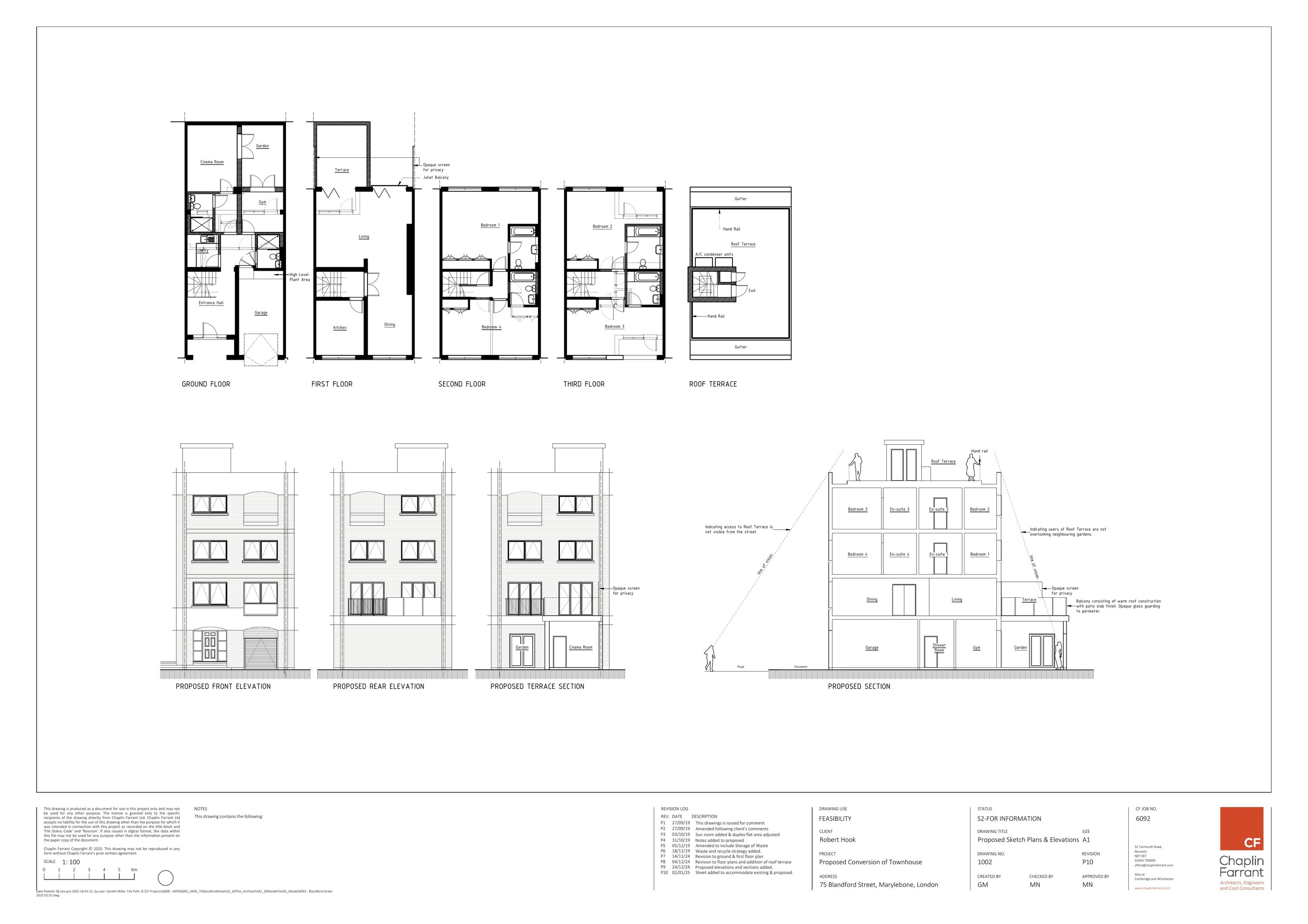
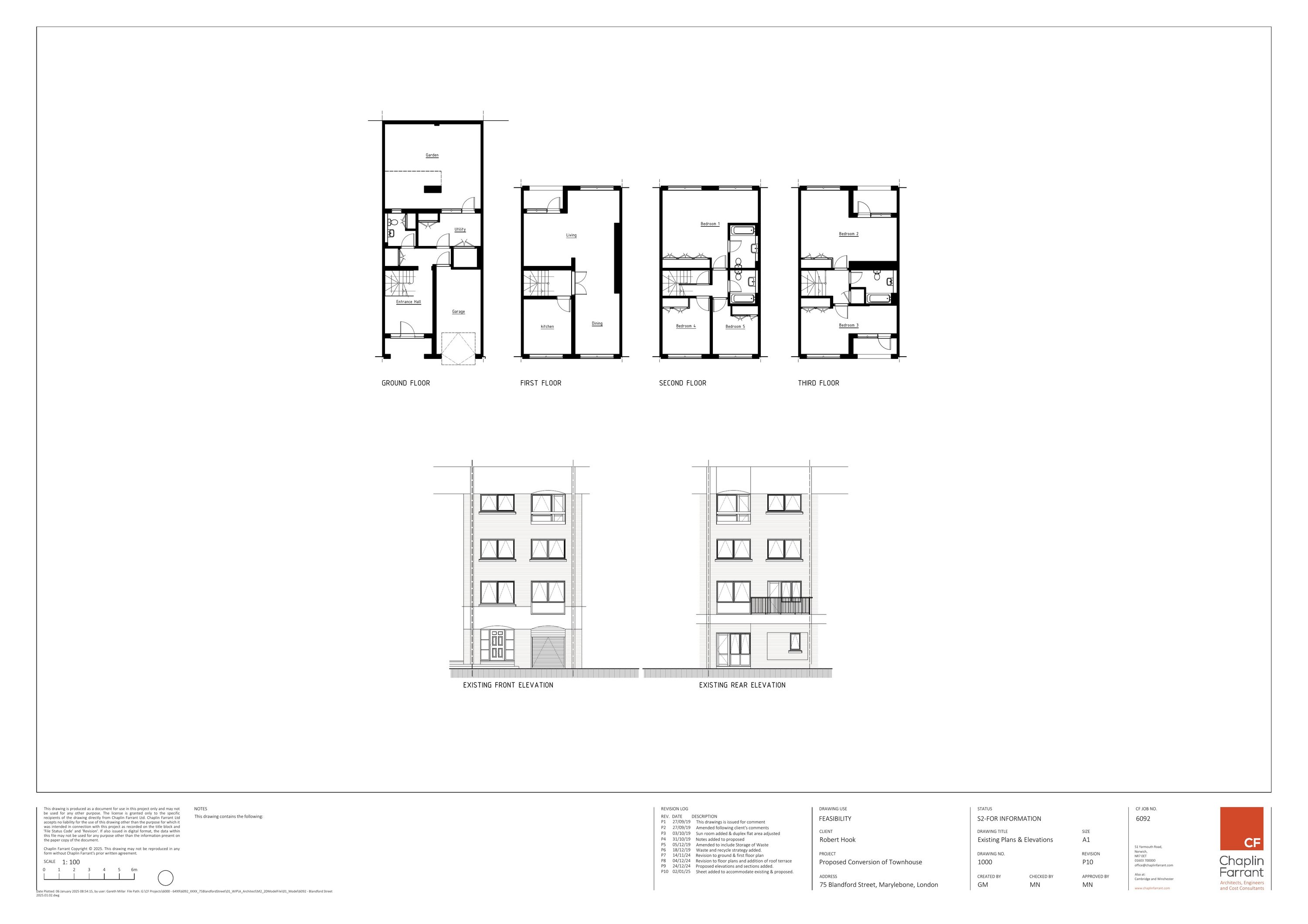
Single-storey rear extension, creation of roof terraces and internal alterations to existing dwelling (Class C3).

Full proposal

Removal of the existing hipped roof for the creation of a roof terrace at main roof level, the erection of a single storey rear extension at ground floor level including the provision for a roof terrace at first floor level in addition to internal alterations to the existing residential dwelling (Class C3).

Documents

Background Papers
Archived · Original link
Background Papers
Archived · Original link
Background Papers
Archived · Original link
Report
Archived · Original link
Background Papers
Archived · Original link
Decision Notice
Archived · Original link
Drawing
Archived · Original link
Background Papers
Archived · Original link
General Comment
Archived · Original link

Have your say

Your comment matters. Councils must consider every representation that raises material planning considerations.

Write a comment