← City of Westminster

Status

Decided House extension
Received
08 Jan 2025
New homes
0

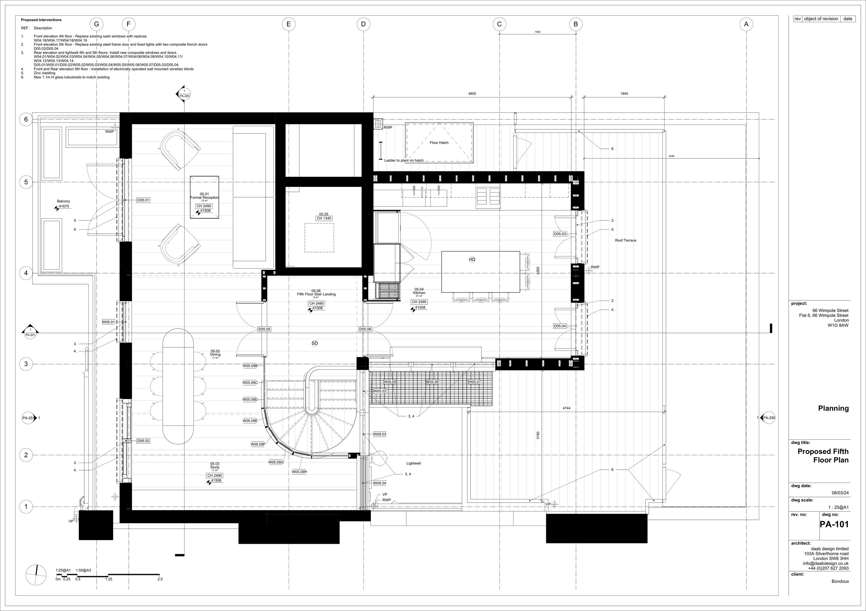
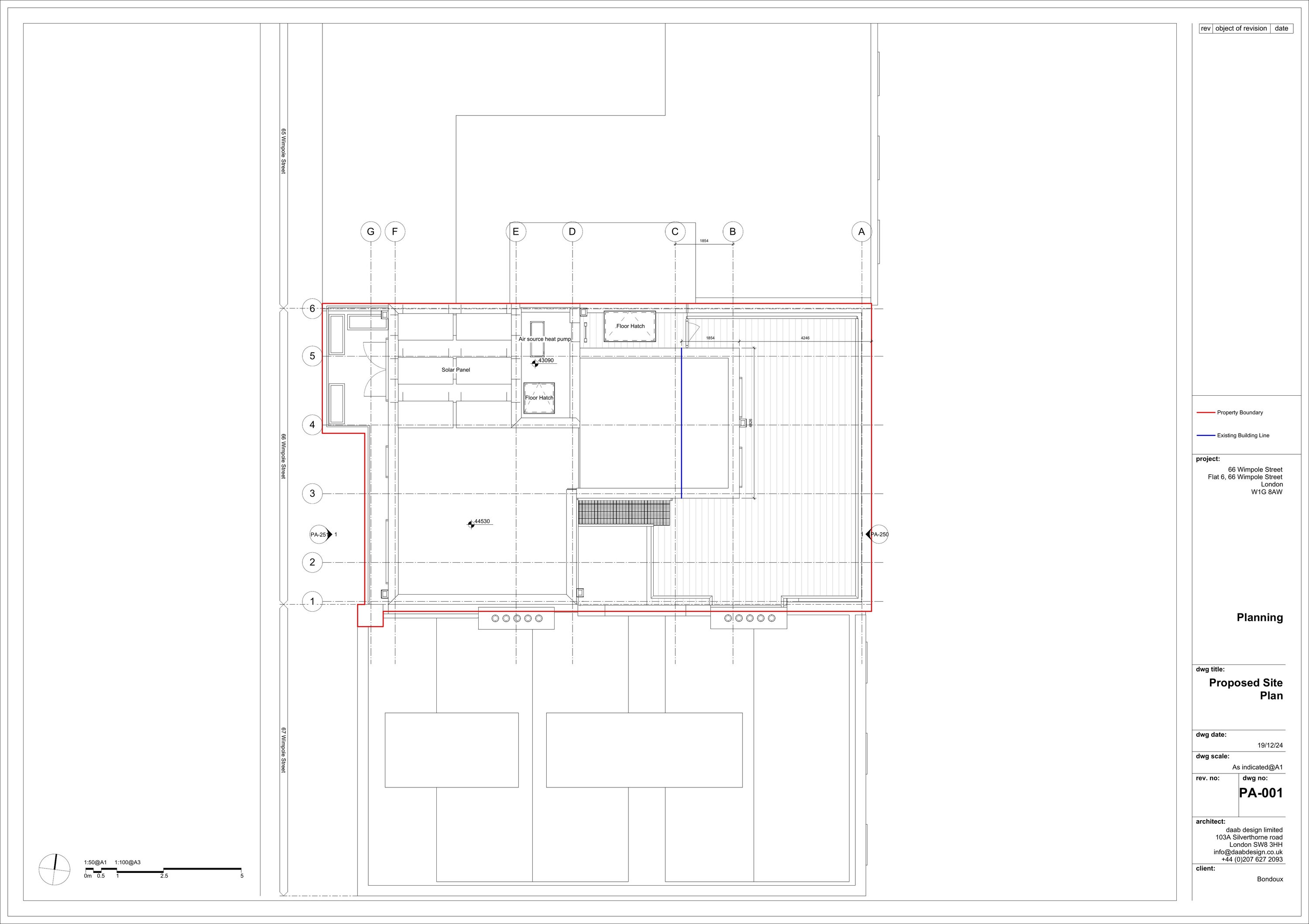
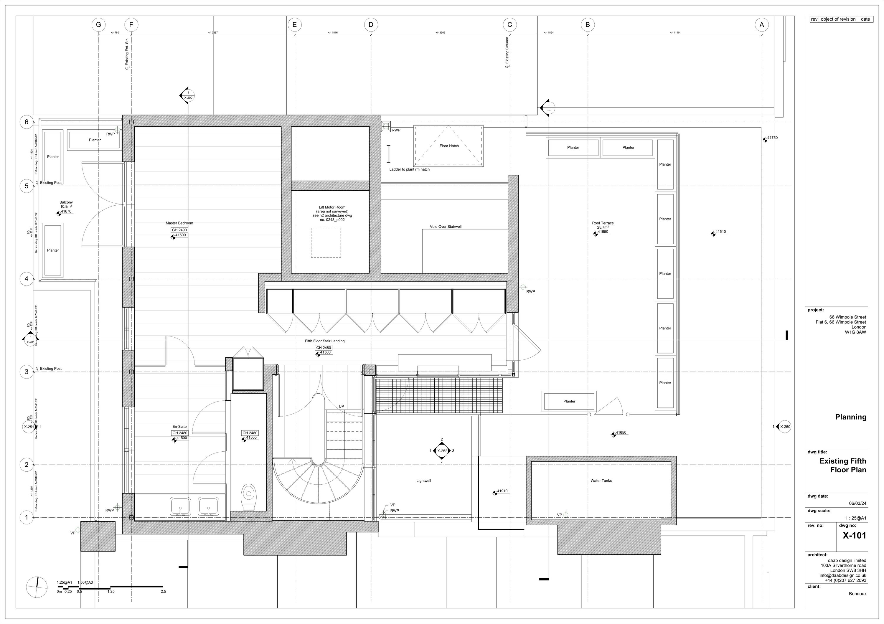
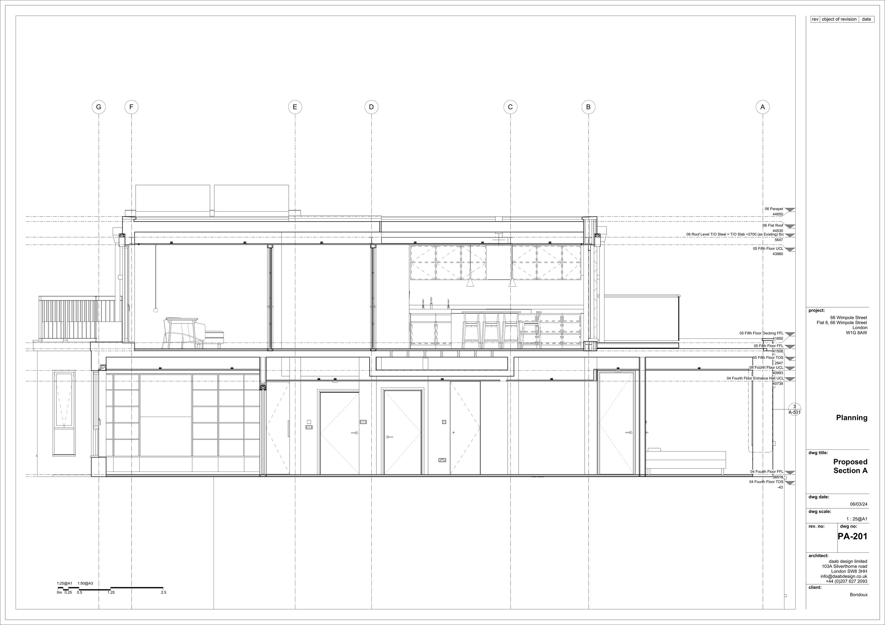
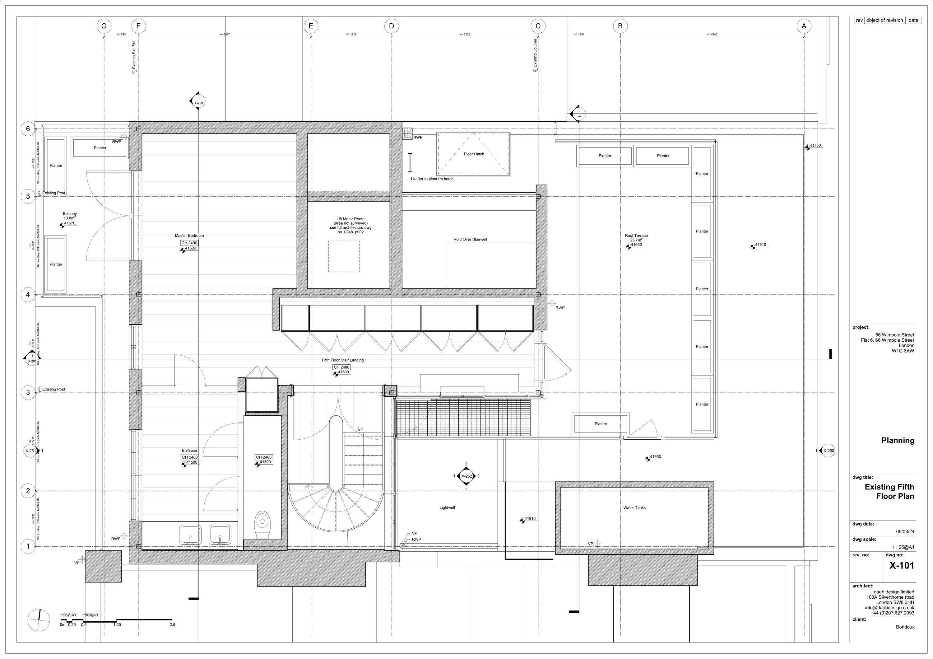
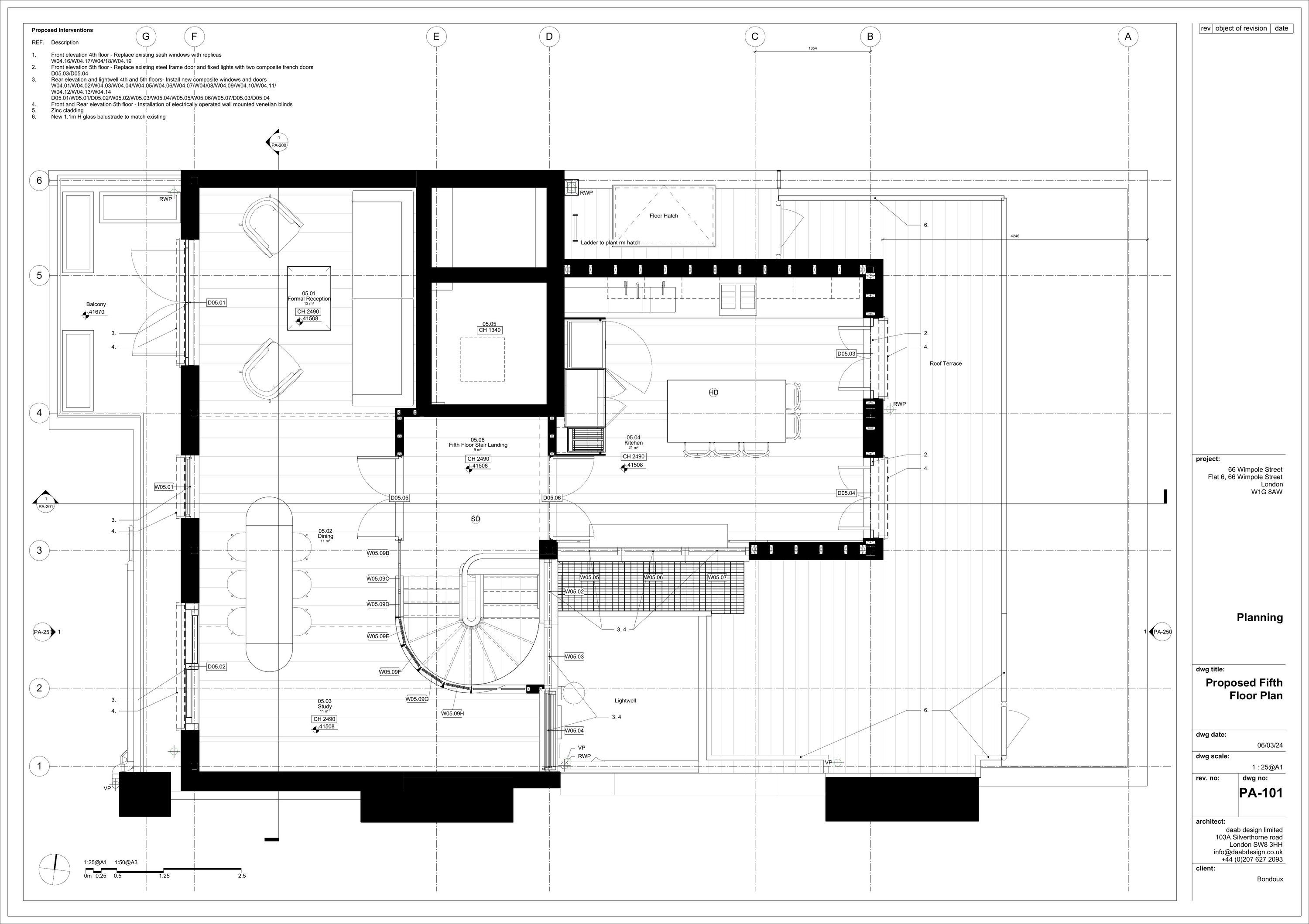
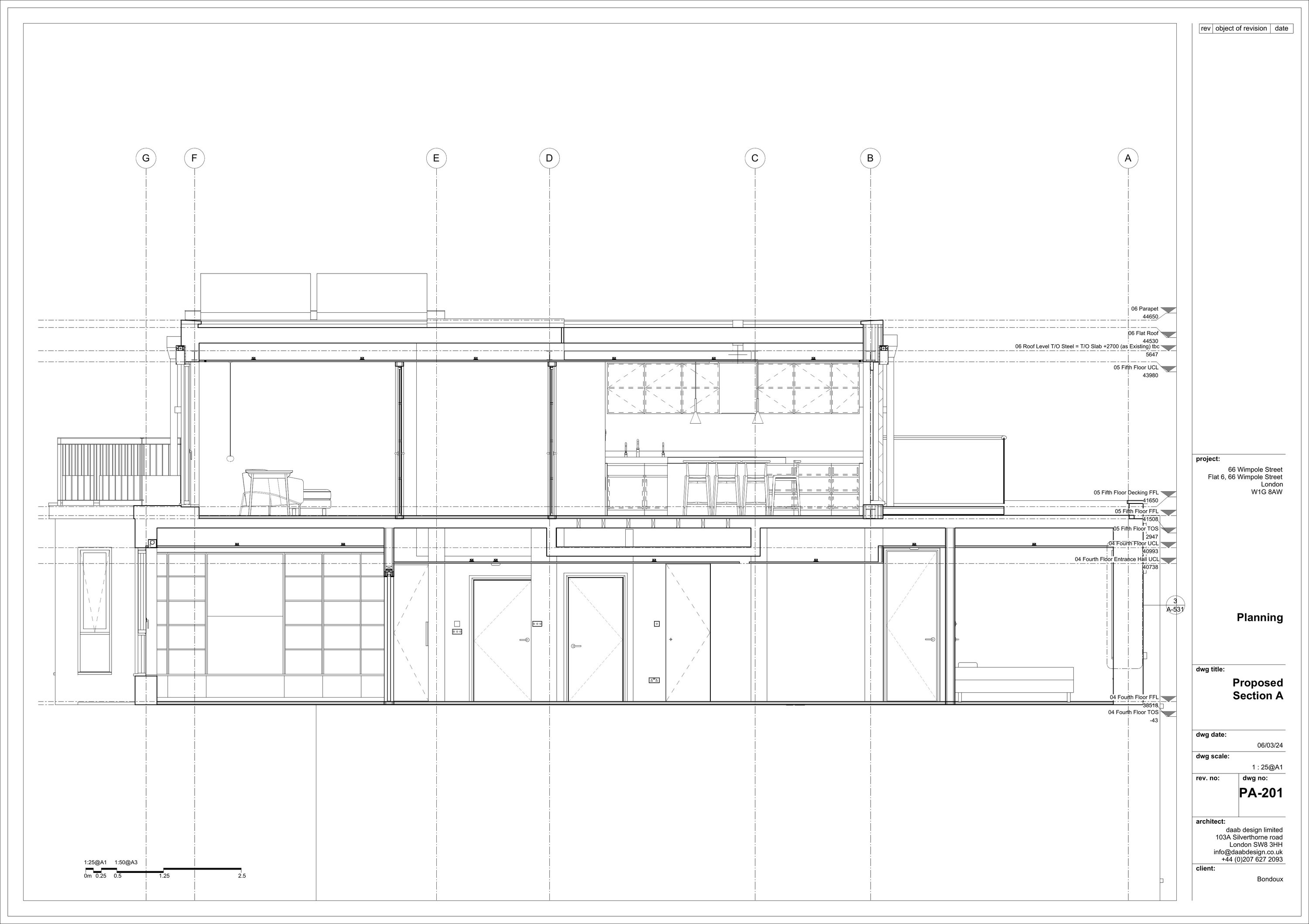
Full proposal

Replacement of windows including new glazing opening; covering of void over stairwell and enlargement of existing roof extension to create additional residential floorspace (Class C3); and addition of new PV panels to the roof.

Documents

Background Papers
Archived · Original link
Background Papers
Archived · Original link
Application Form
Archived · Original link
Background Papers
Archived · Original link
Report
Archived · Original link
Design and Access Statement
Archived · Original link
Background Papers
Archived · Original link
Superseded document
Archived · Original link
Superseded document
Archived · Original link
Drawing
Archived · Original link
Superseded document
Archived · Original link
Drawing
Archived · Original link
Superseded document
Archived · Original link
Background Papers Sensitive
Archived · Original link
Decision Notice
Archived · Original link
Location Plan
Archived · Original link
Background Papers
Archived · Original link
OBJECTION COMMENT
Objection Comment
Not yet archived · Original link
Superseded document
Archived · Original link
Superseded document
Archived · Original link
Drawing
Archived · Original link
Superseded document
Archived · Original link
Superseded document
Archived · Original link
Drawing
Archived · Original link

Have your say

Your comment matters. Councils must consider every representation that raises material planning considerations.

Write a comment