← City of Westminster

Status

Decided Listed building
Received
21 Jan 2025
New homes
0

Full proposal

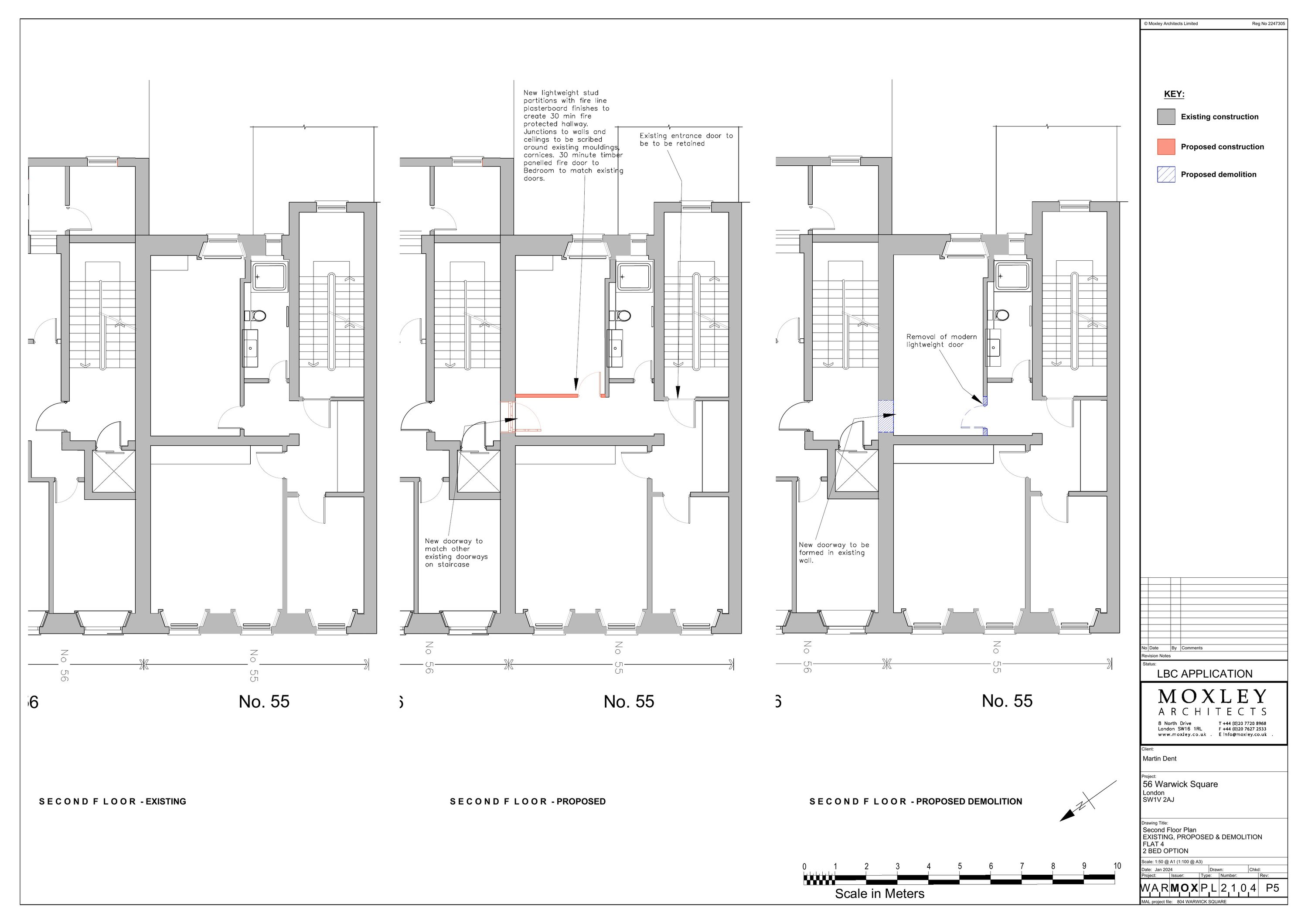
Internal works, including the creation of a new party wall opening and doorway at second floor level to connect Flat 4, 55 Warwick Square with the communal staircase and lift in 56 Warwick Square and the installation of partitions within Flat 4 to create a new hallway/ fire lobby in the rear room.

Have your say

Your comment matters. Councils must consider every representation that raises material planning considerations.

Write a comment