← City of Westminster

Status

Withdrawn Commercial
Received
22 Jan 2025
New homes
0

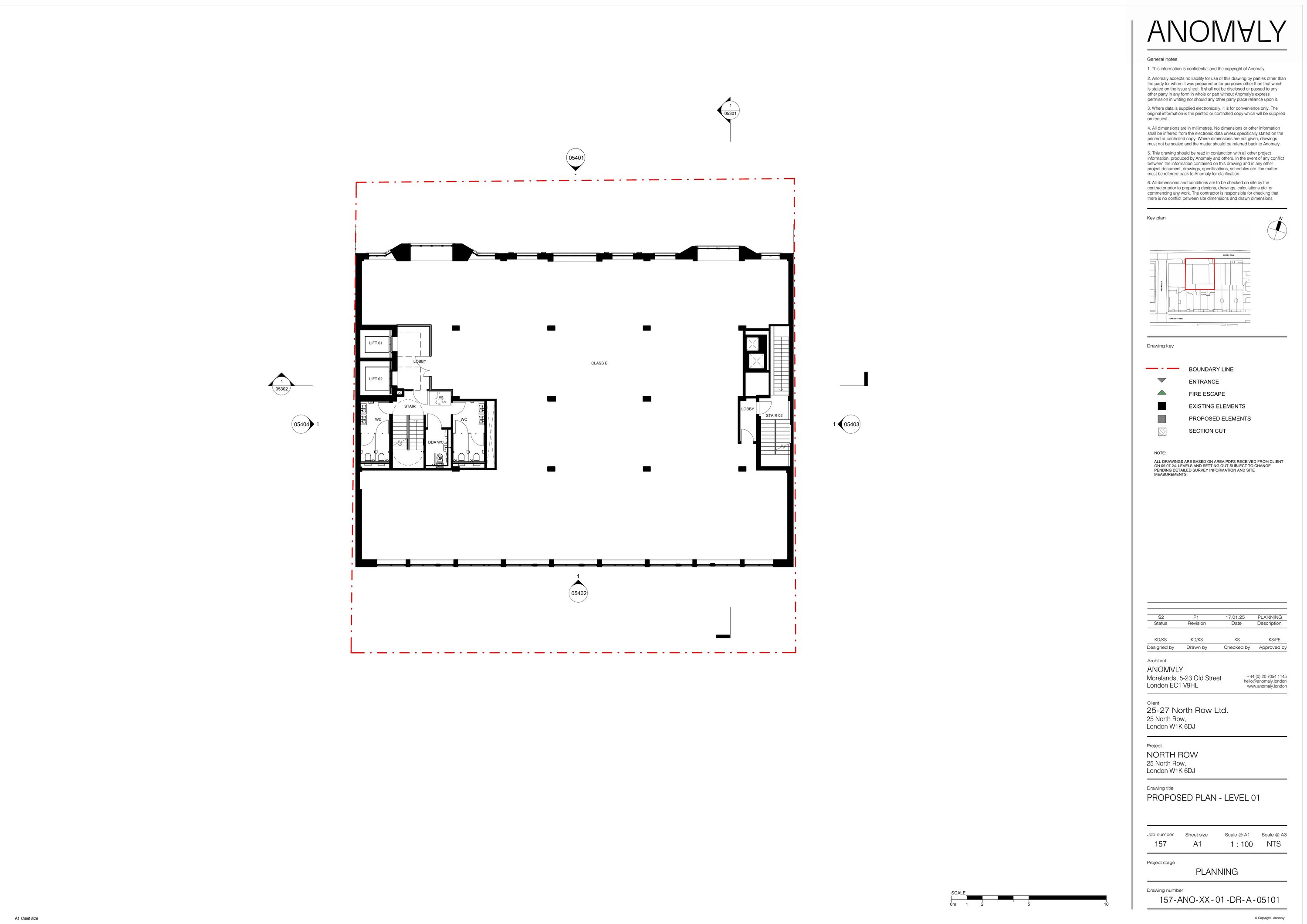
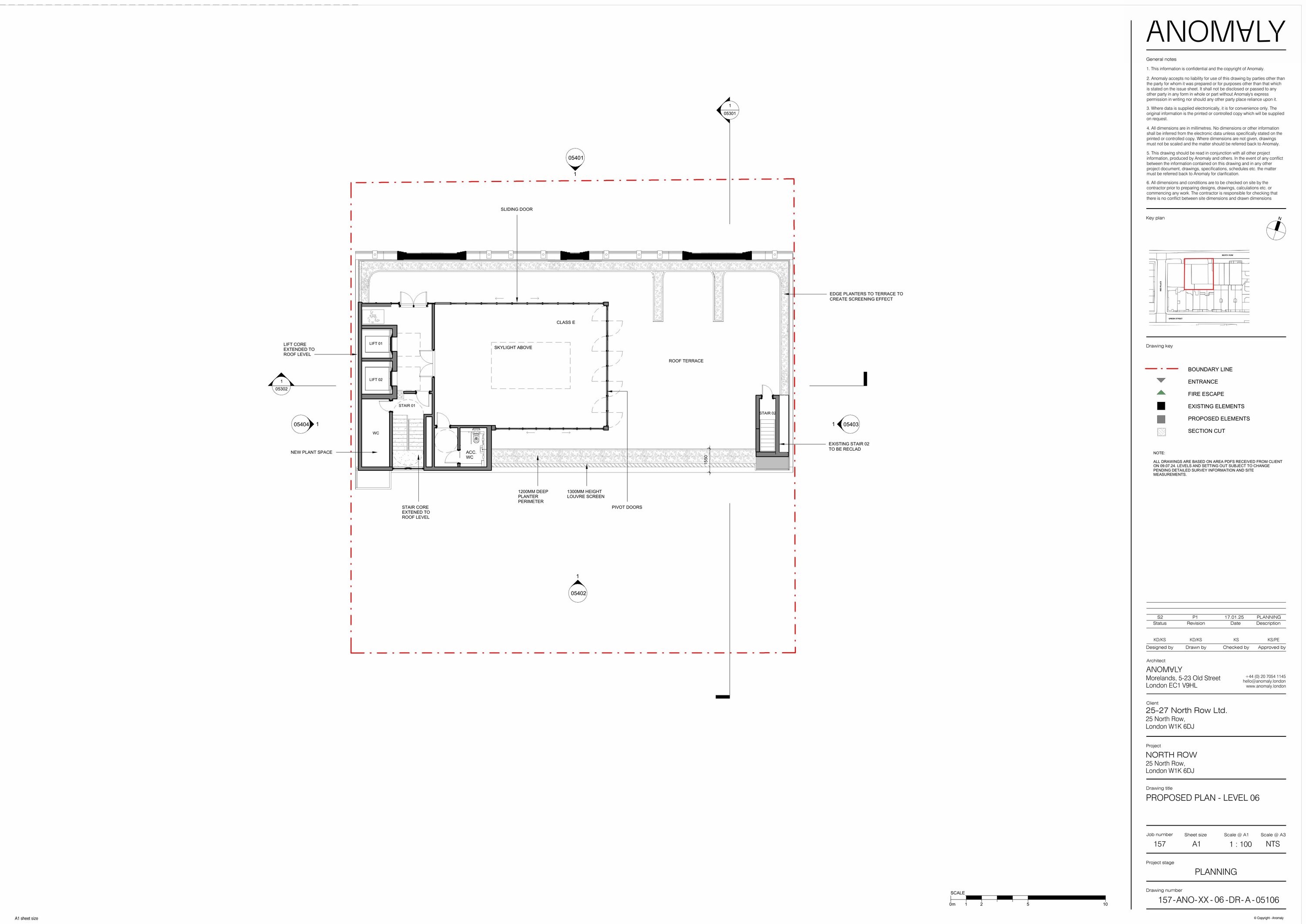
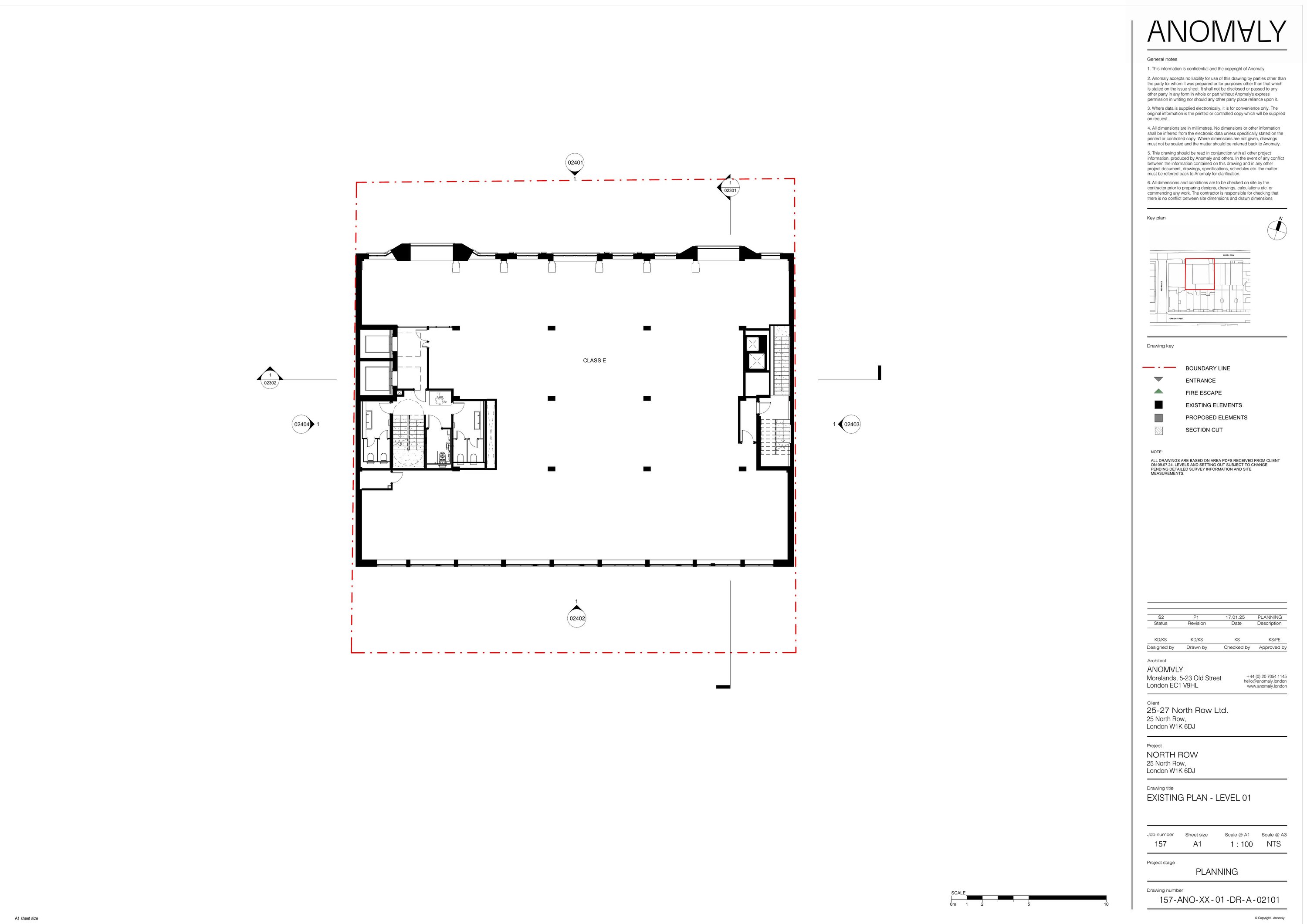
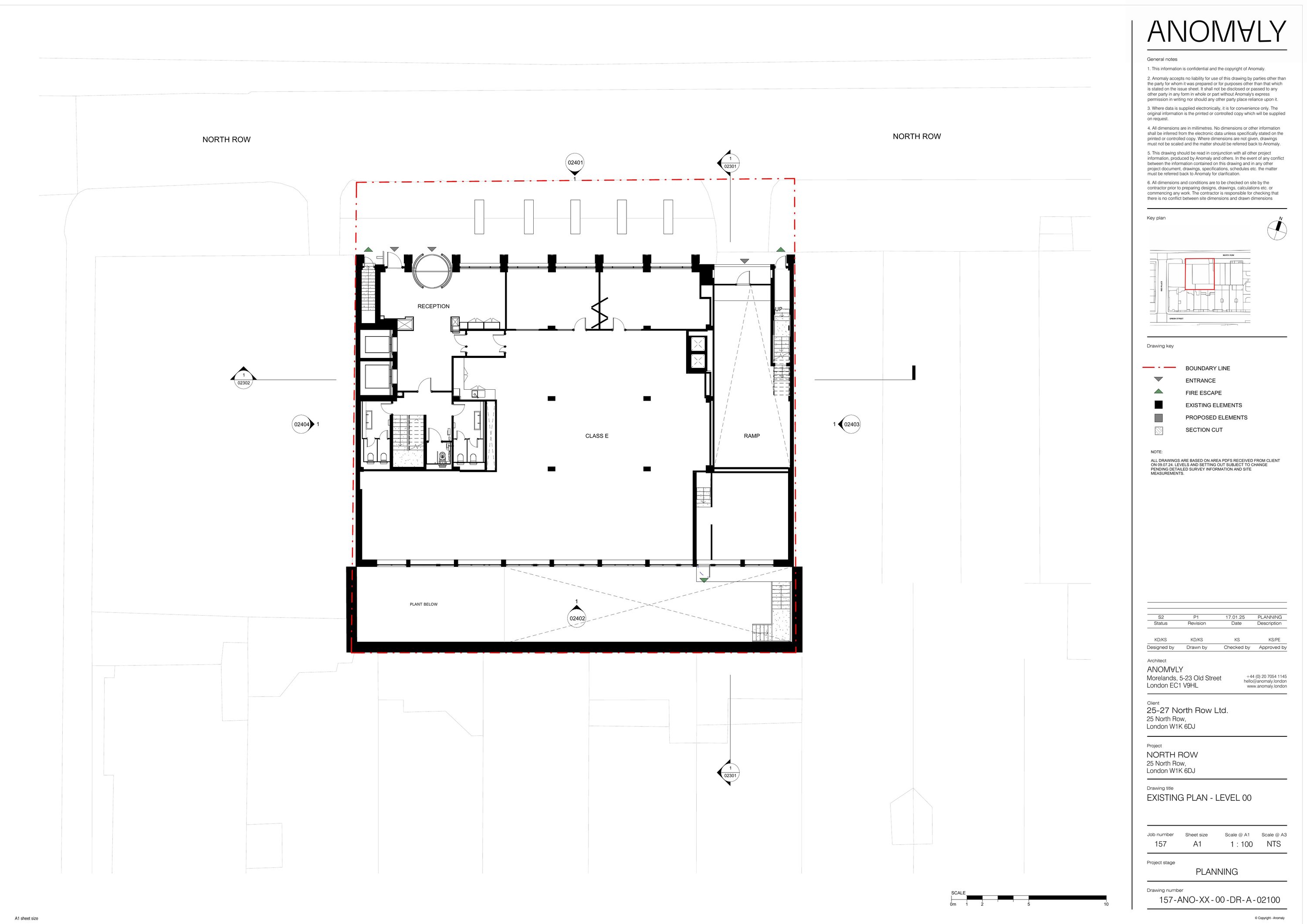
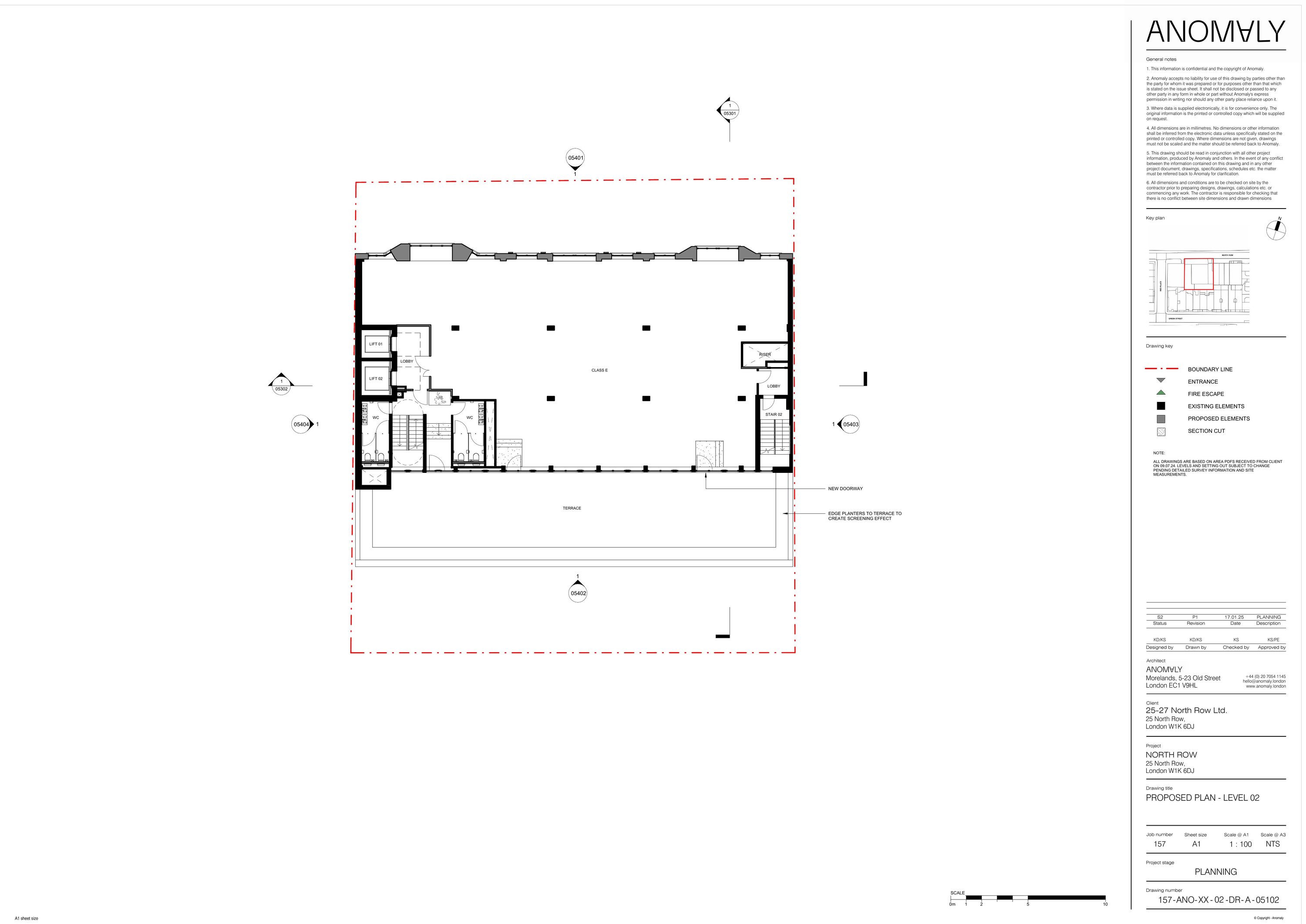
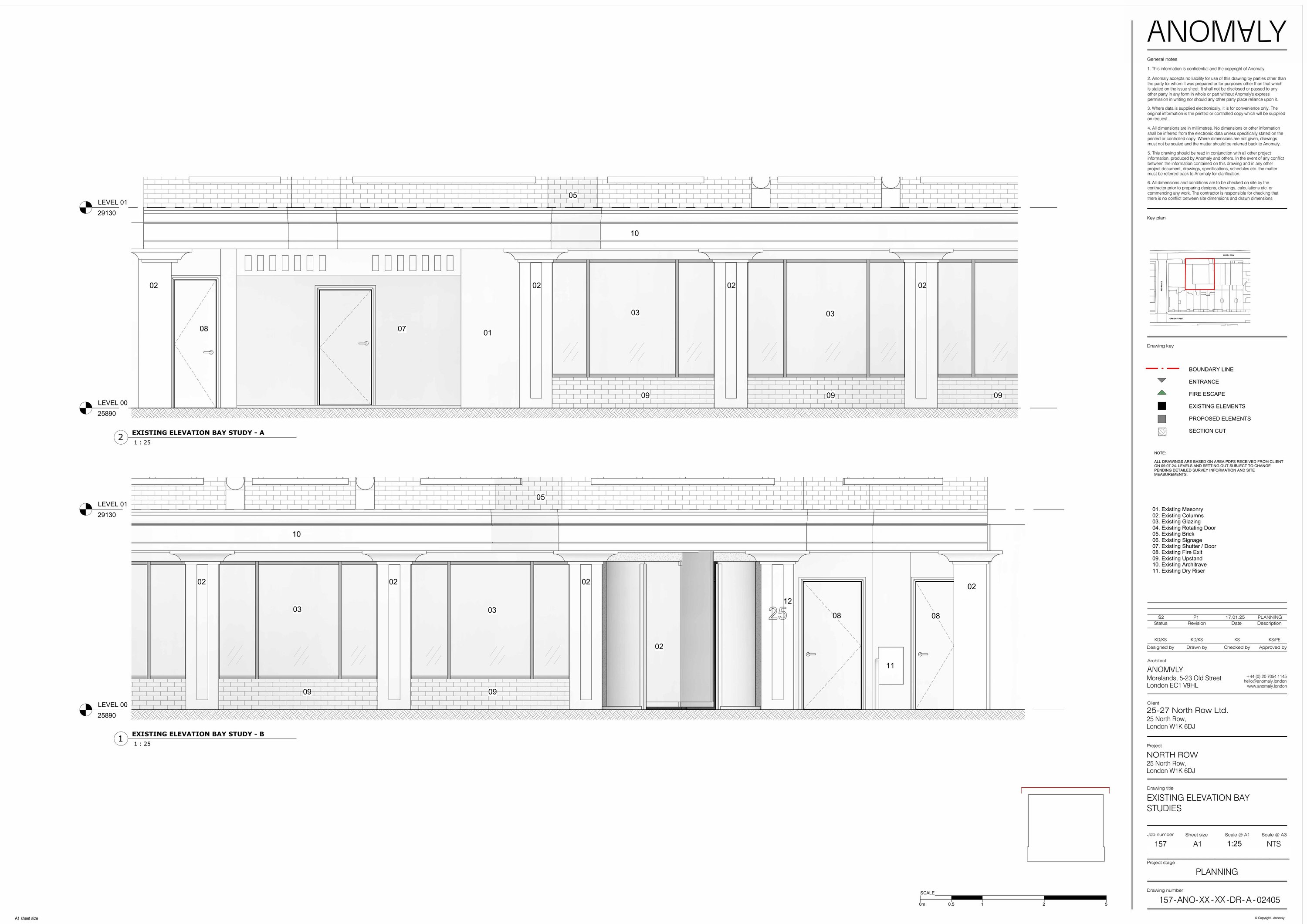
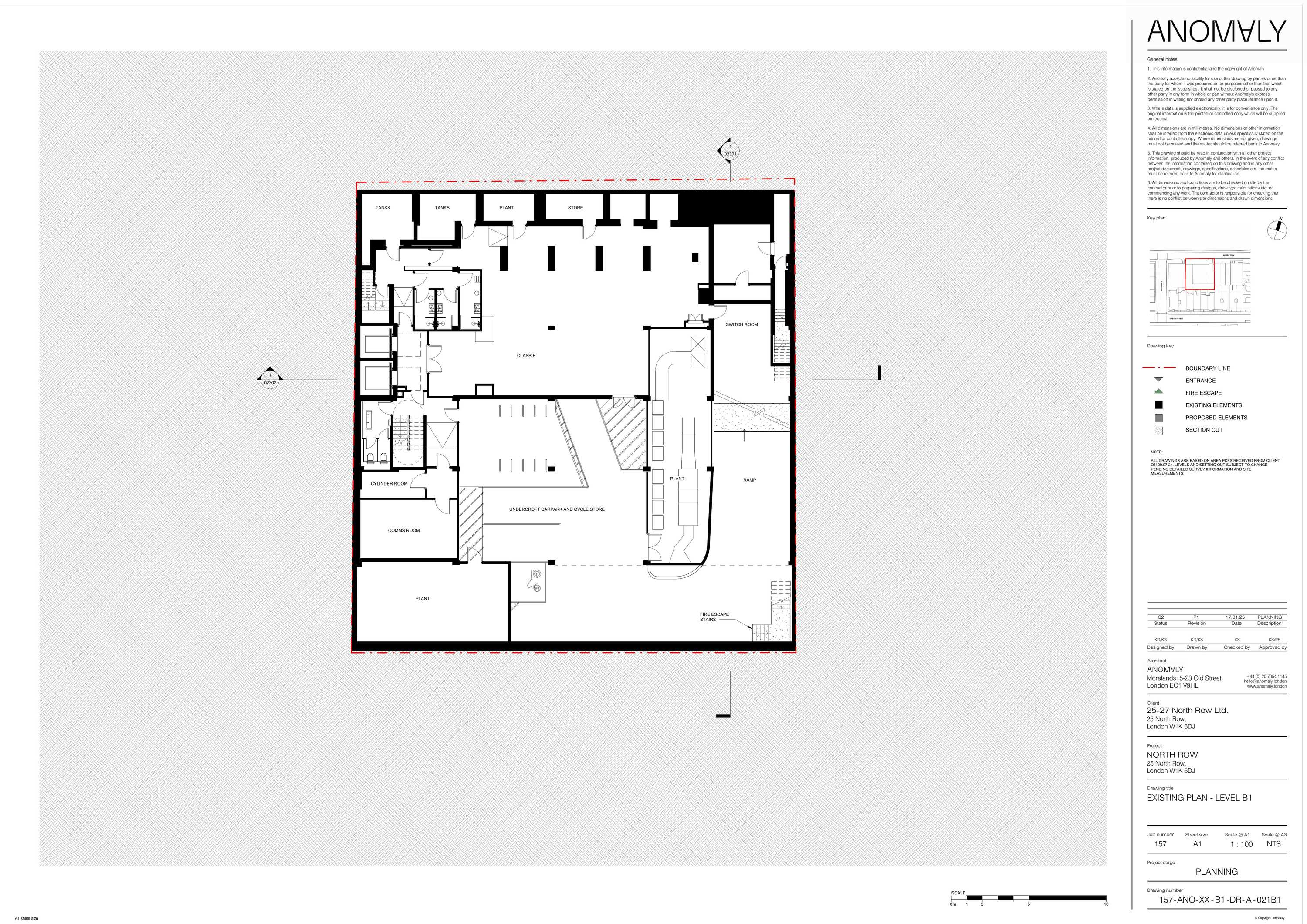
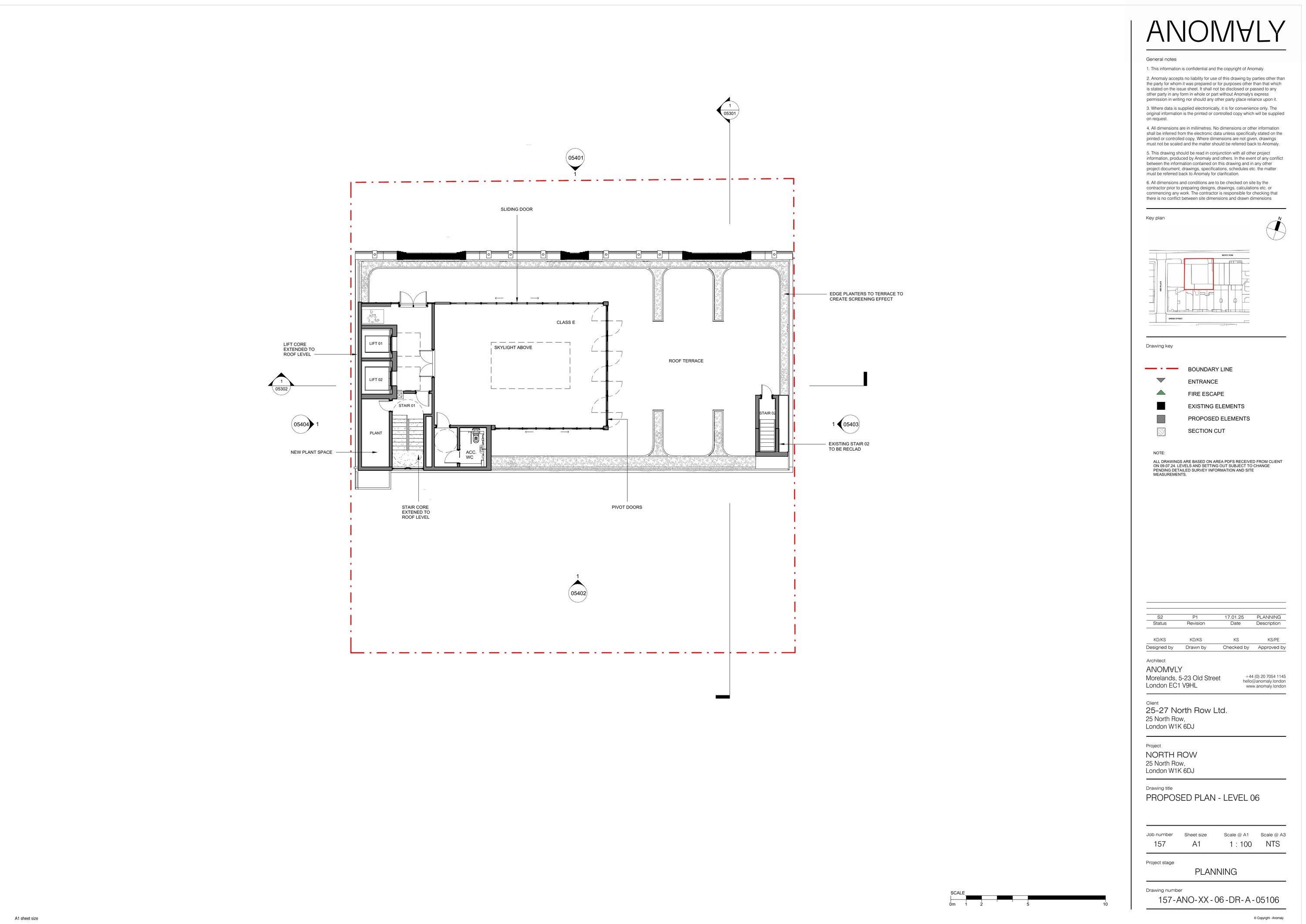
Full proposal

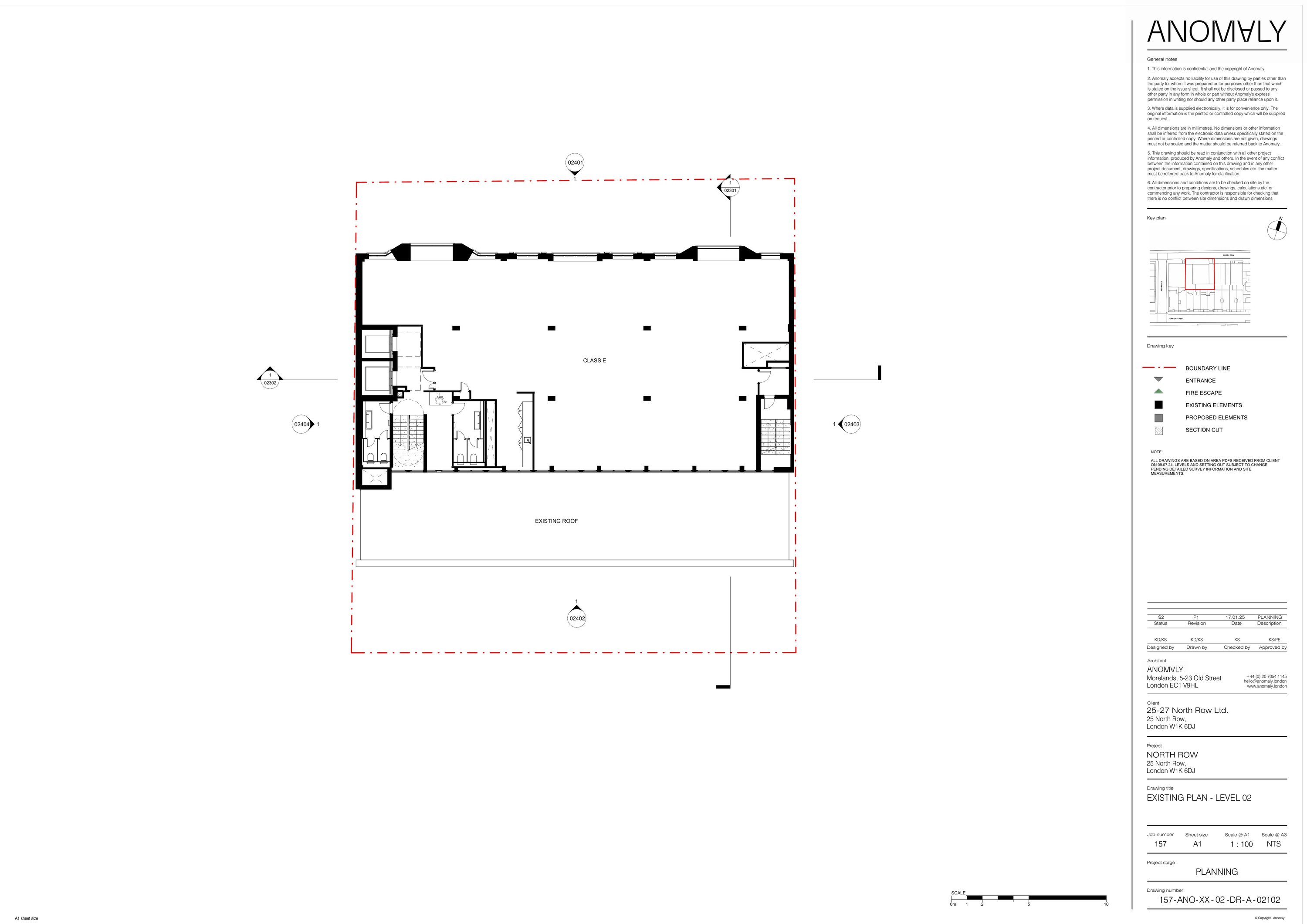
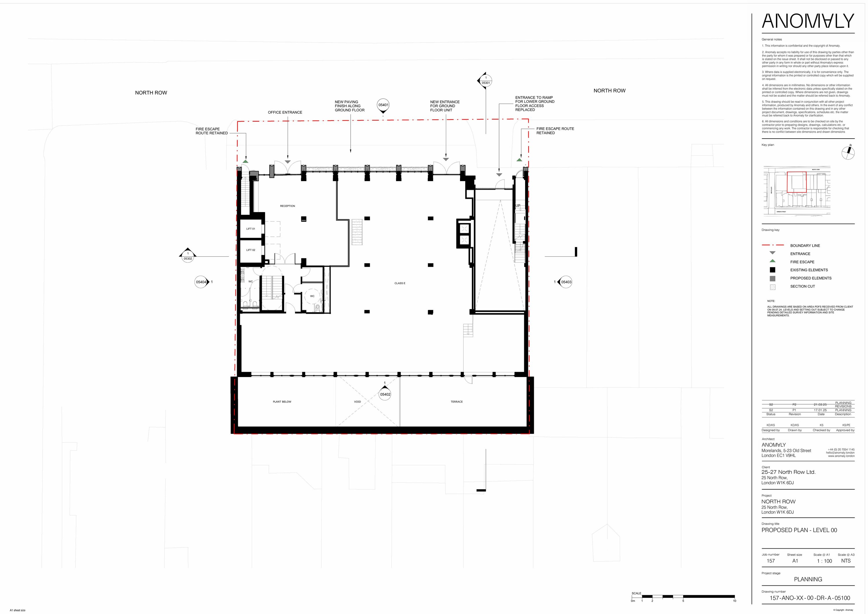
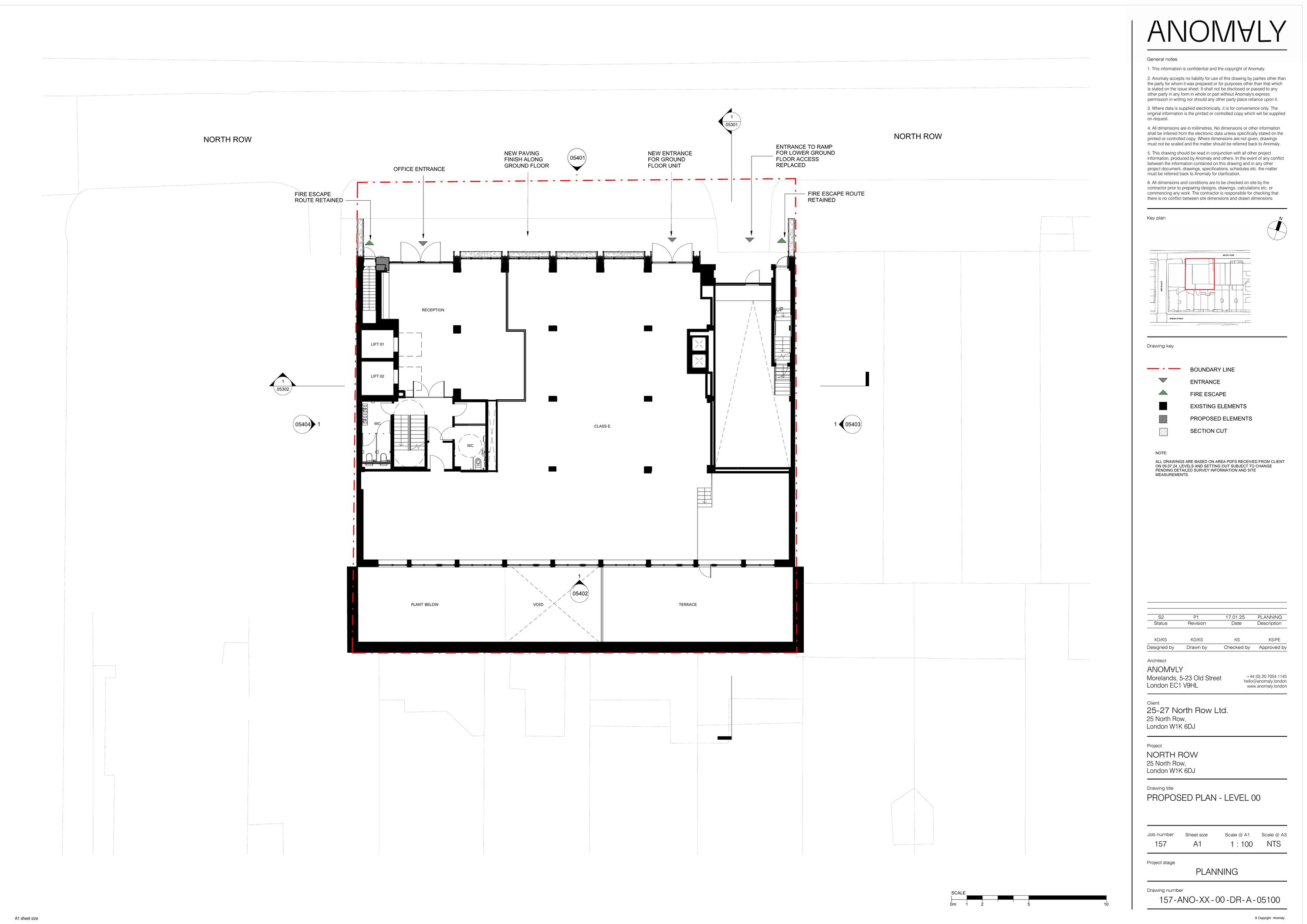
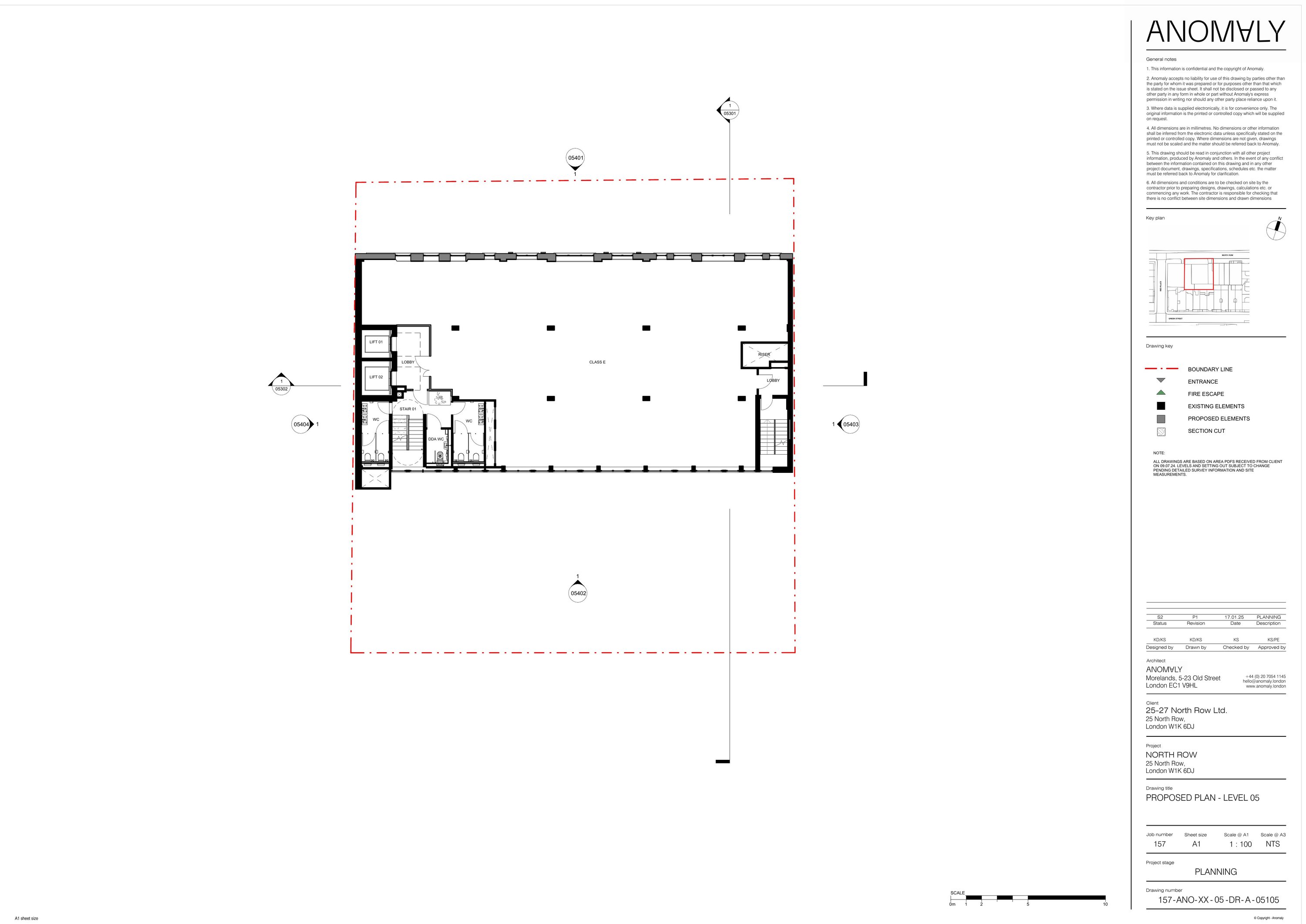
Refurbishment of existing Class E floorspace, changes to the ground floor frontage and entrance arrangement, introduction of a mezzanine level at lower ground level, creation of terraced amenity spaces on the ground floor, second floor and roof level and construction of a roof extension [amended plans].

Documents

Background Papers
Archived · Original link
Background Papers
Archived · Original link
Application Form
Archived · Original link
Background Papers
Archived · Original link
Background Papers
Archived · Original link
Background Papers
Archived · Original link
Background Papers
Archived · Original link
Background Papers
Archived · Original link
Background Papers
Archived · Original link
Background Papers
Archived · Original link
Background Papers
Archived · Original link
Background Papers
Archived · Original link
Background Papers
Archived · Original link
Design and Access Statement
Archived · Original link
Design and Access Statement
Archived · Original link
Design and Access Statement
Archived · Original link
Design and Access Statement
Archived · Original link
Design and Access Statement
Archived · Original link
Design and Access Statement
Archived · Original link
Design and Access Statement
Archived · Original link
Design and Access Statement
Archived · Original link
Design and Access Statement
Archived · Original link
Design and Access Statement
Archived · Original link
Design and Access Statement
Archived · Original link
Design and Access Statement
Archived · Original link
Design and Access Statement
Archived · Original link
Background Papers
Archived · Original link
Background Papers
Archived · Original link
Background Papers
Archived · Original link
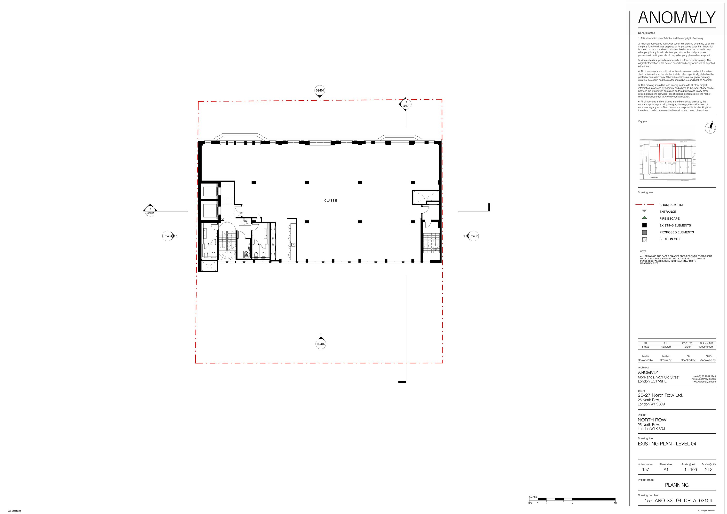
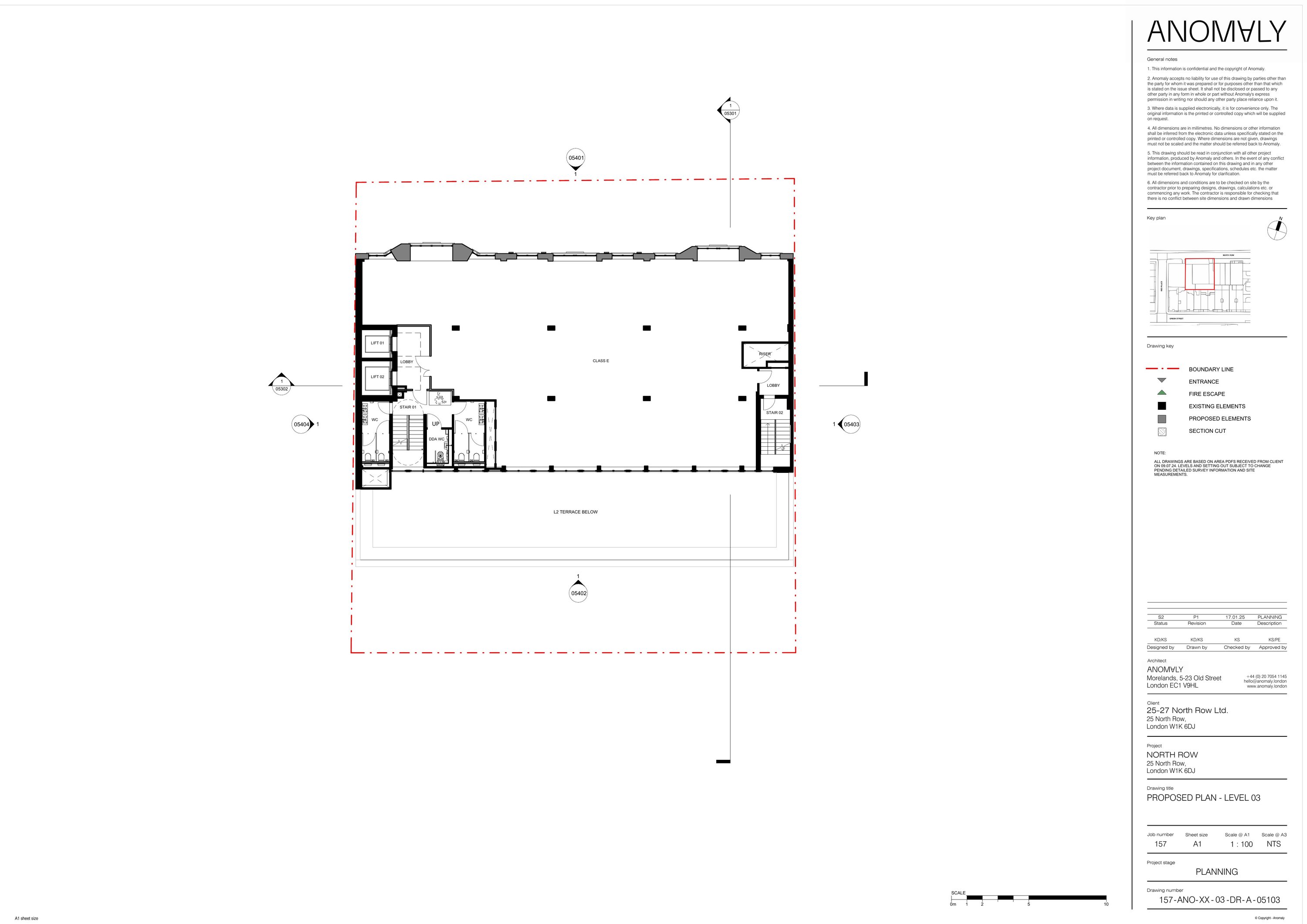
Drawing
Archived · Original link
Location Plan
Archived · Original link
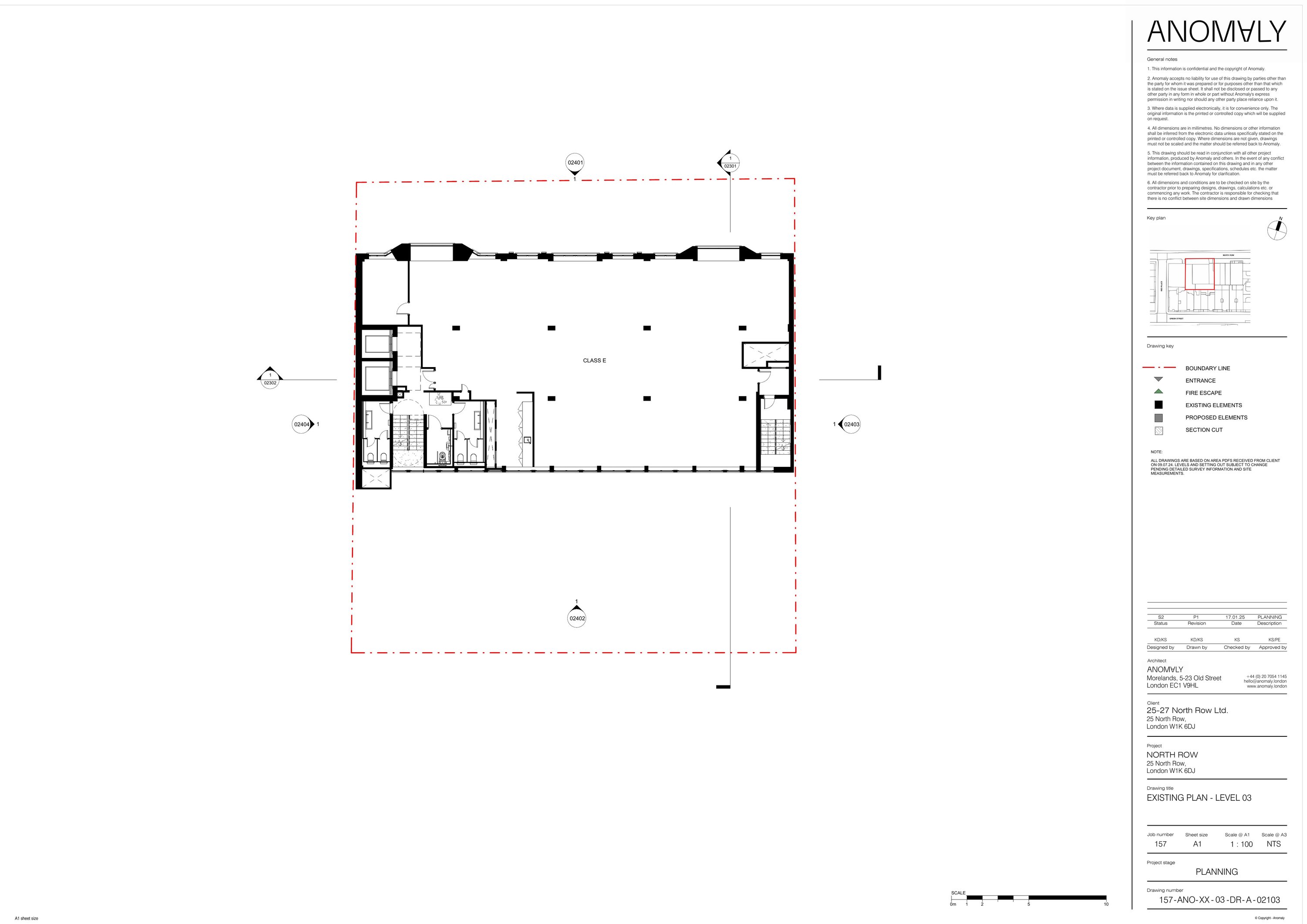
Drawing
Archived · Original link
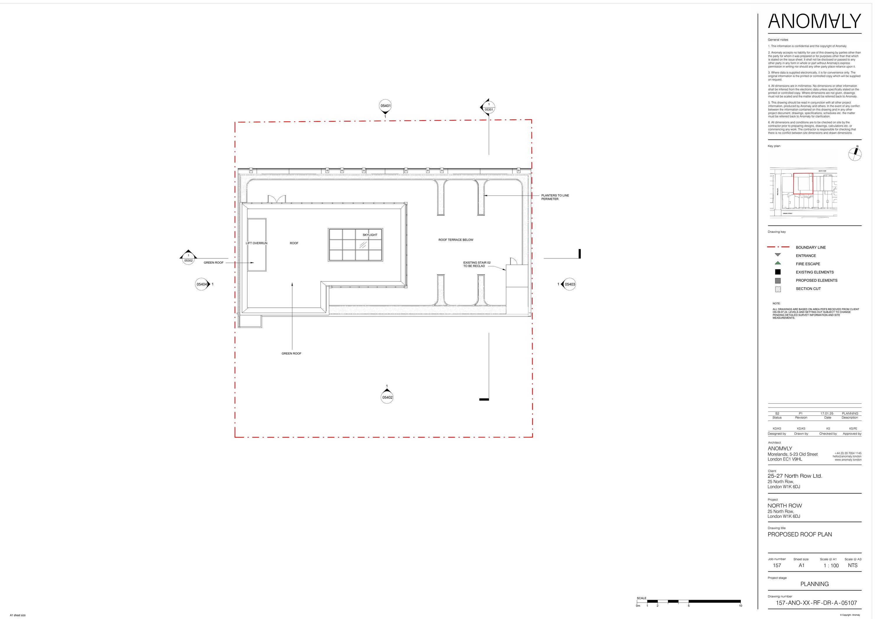
Drawing
Archived · Original link
Background Papers
Archived · Original link
Background Papers
Archived · Original link
Background Papers
Archived · Original link
Planning Statement
Archived · Original link
Background Papers
Archived · Original link
Superseded document
Archived · Original link
Superseded document
Archived · Original link
Superseded document
Archived · Original link
Superseded document
Archived · Original link
Superseded document
Archived · Original link
Superseded document
Archived · Original link
Superseded document
Archived · Original link
Superseded document
Archived · Original link
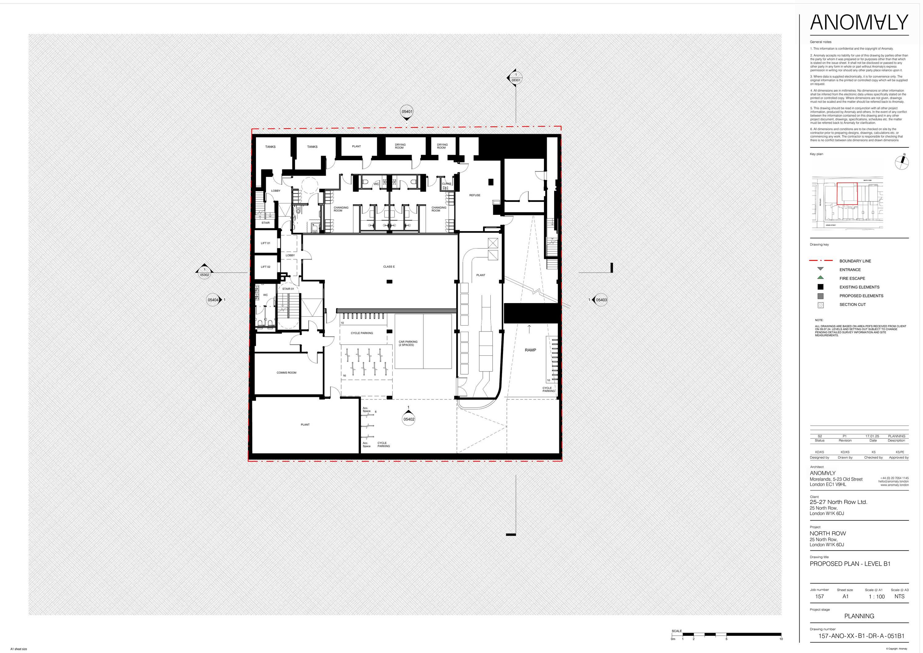
Drawing
Archived · Original link
Superseded document
Archived · Original link
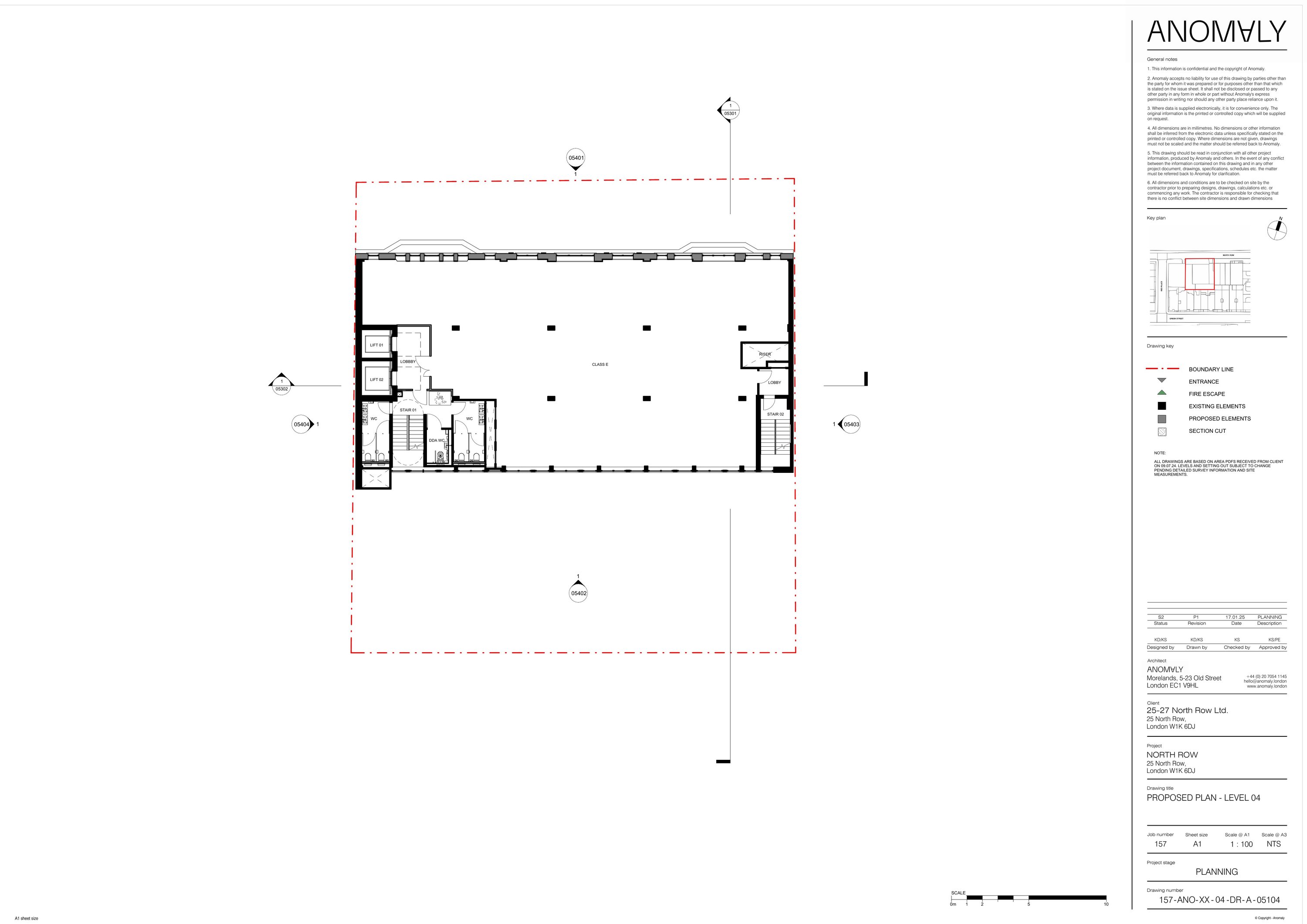
Drawing
Archived · Original link
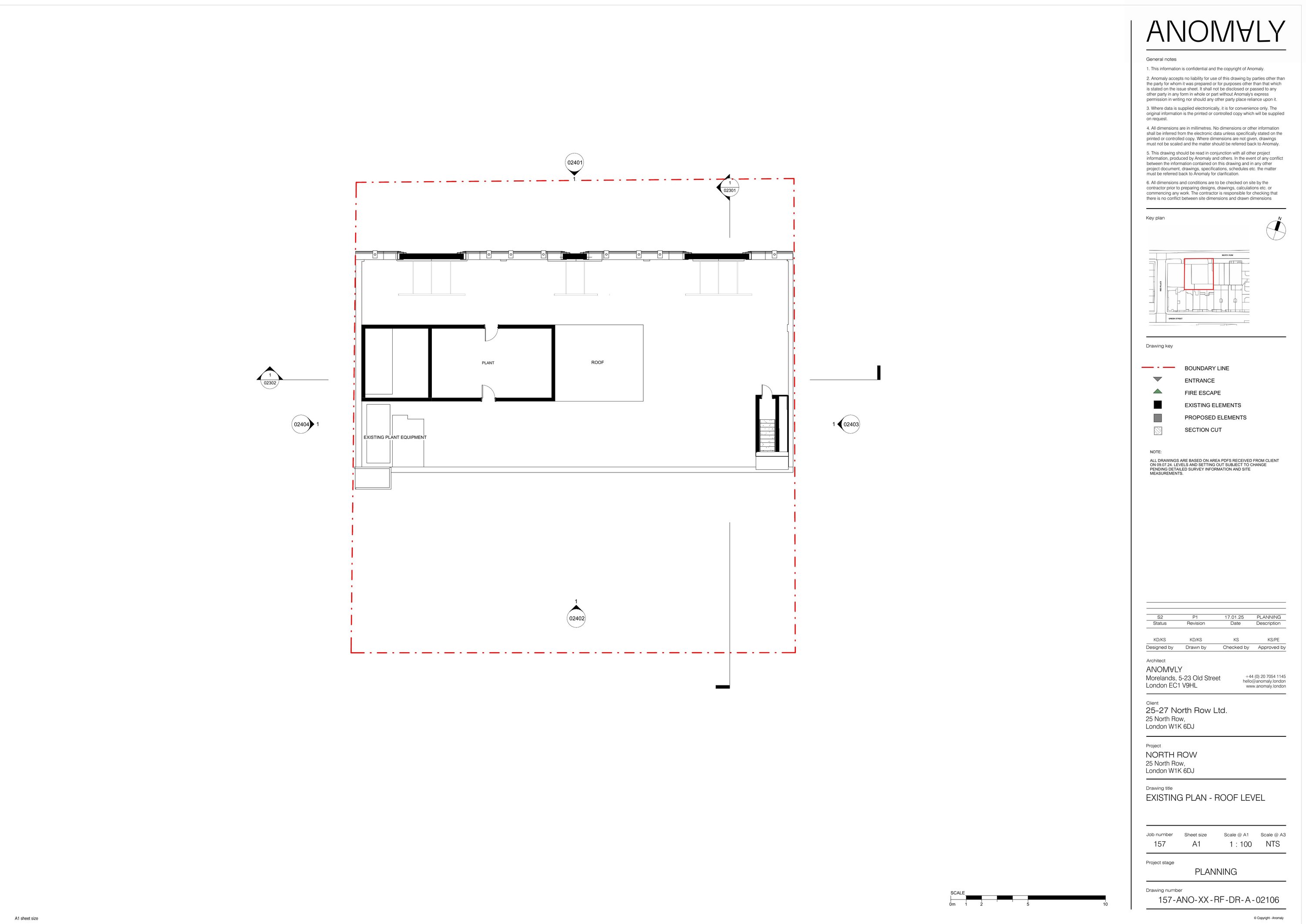
Drawing
Archived · Original link
Background Papers
Archived · Original link
Background Papers
Archived · Original link

Have your say

Your comment matters. Councils must consider every representation that raises material planning considerations.

Write a comment