← City of Westminster

Status

Decided House extension
Received
26 May 2025
New homes
0

Full proposal

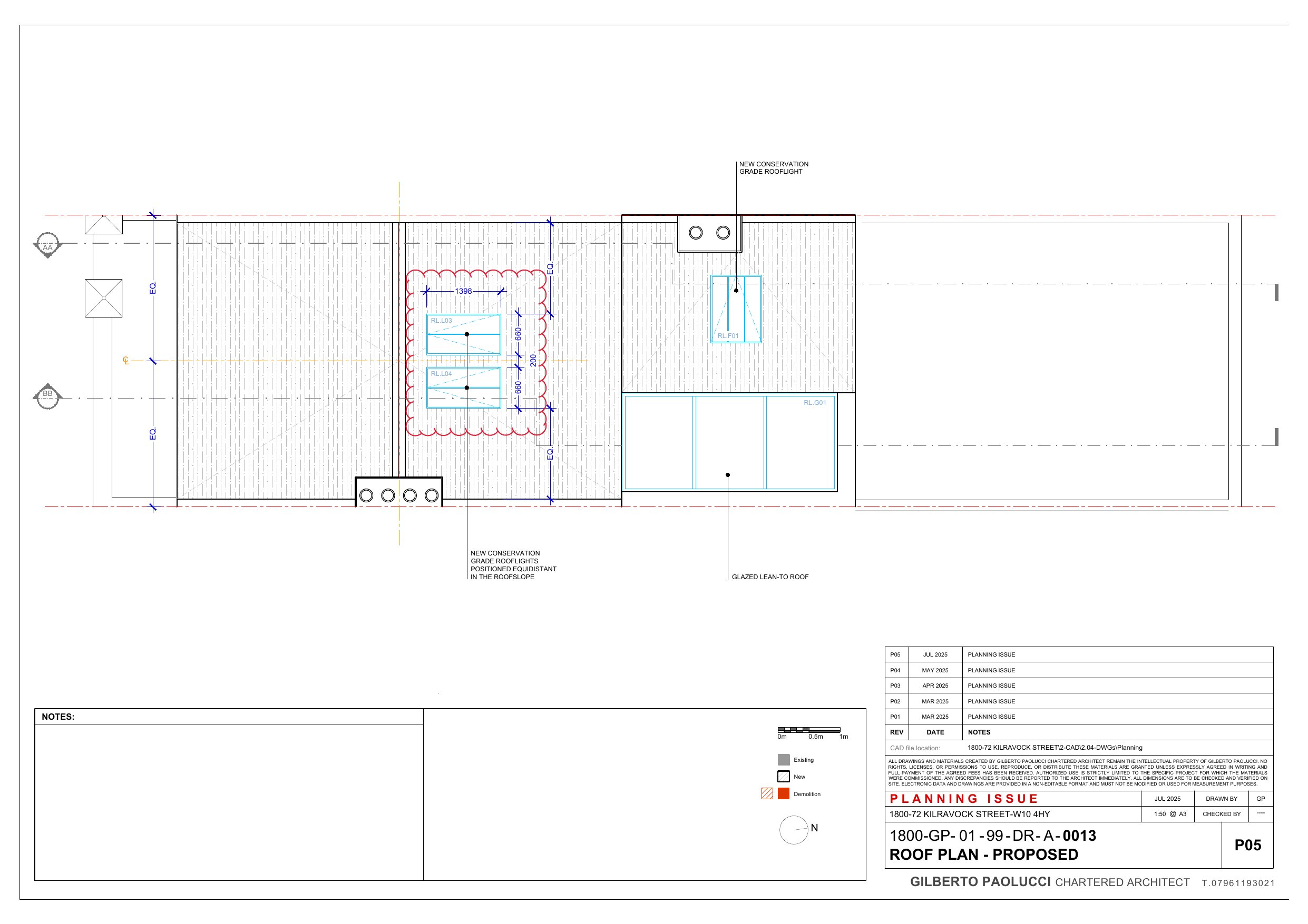
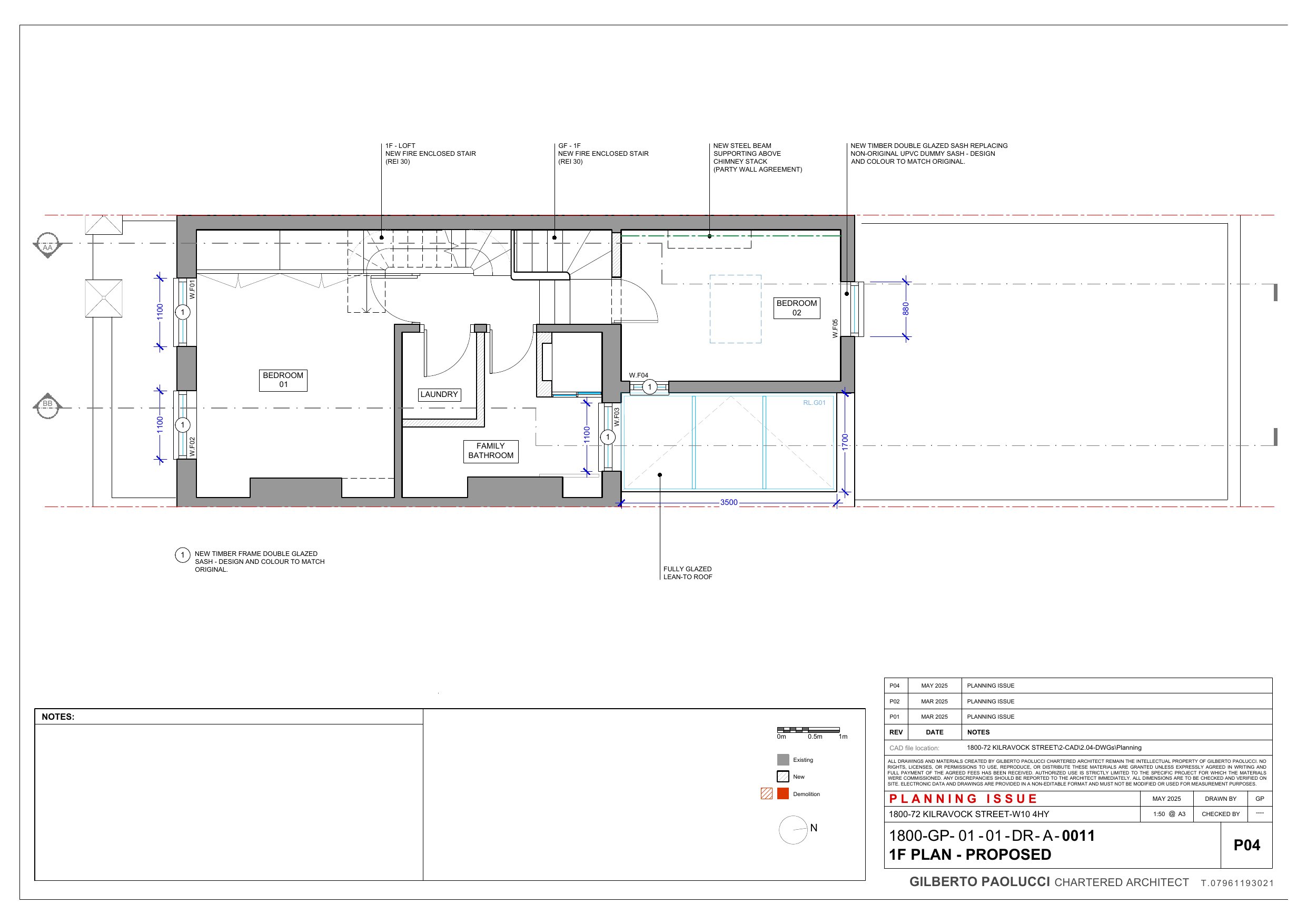
Erection of a single-storey side rear extension with a lean-to glass roof, and demolition of the eastern outrigger wall at ground floor level; replacement of two existing rooflights with two conservation rooflights on the main rear roof slope; installation of a new conservation rooflight on the outrigger roof; replacement of all single to double glazed windows; associated internal alterations.

Documents

Background Papers
Archived · Original link
Application Form
Archived · Original link
Background Papers
Archived · Original link
Background Papers
Archived · Original link
Superseded document
Archived · Original link
Report
Archived · Original link
Report
Archived · Original link
Design and Access Statement
Archived · Original link
Background Papers
Archived · Original link
Background Papers
Archived · Original link
Superseded document
Archived · Original link
Flood risk assessment
Archived · Original link
Drawing
Archived · Original link
Drawing
Archived · Original link
Decision Notice
Archived · Original link
Decision Notice
Archived · Original link
Heritage Statement
Archived · Original link
Sustainability appraisal
Archived · Original link
Drawing
Archived · Original link
Drawing
Archived · Original link
Superseded document
Archived · Original link
Background Papers
Archived · Original link
Drawing
Archived · Original link
Drawing
Archived · Original link
Drawing
Archived · Original link
Drawing
Archived · Original link
Drawing
Archived · Original link
Superseded document
Archived · Original link
Drawing
Archived · Original link
Drawing
Archived · Original link
Drawing
Archived · Original link
Drawing
Archived · Original link
Superseded document
Archived · Original link
Superseded document
Archived · Original link

Have your say

Your comment matters. Councils must consider every representation that raises material planning considerations.

Write a comment