← City of Westminster

Status

Decided New housing
Received
27 May 2025
New homes
4

Summary

Roof extension and additional set-back storey to provide four additional residential flats with PV.

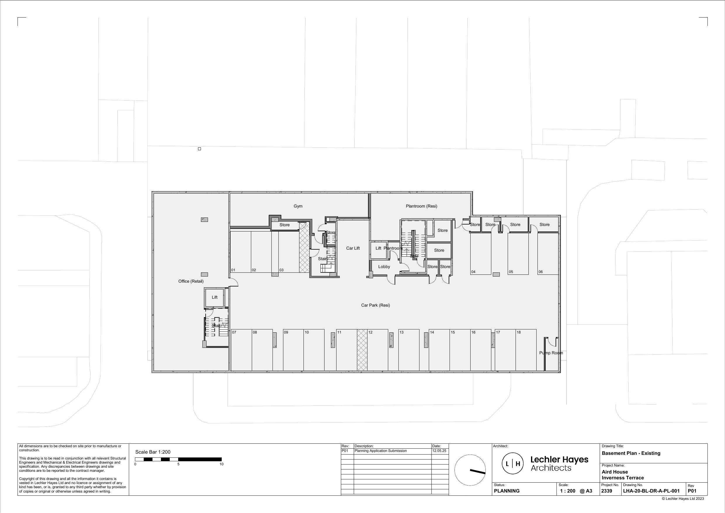
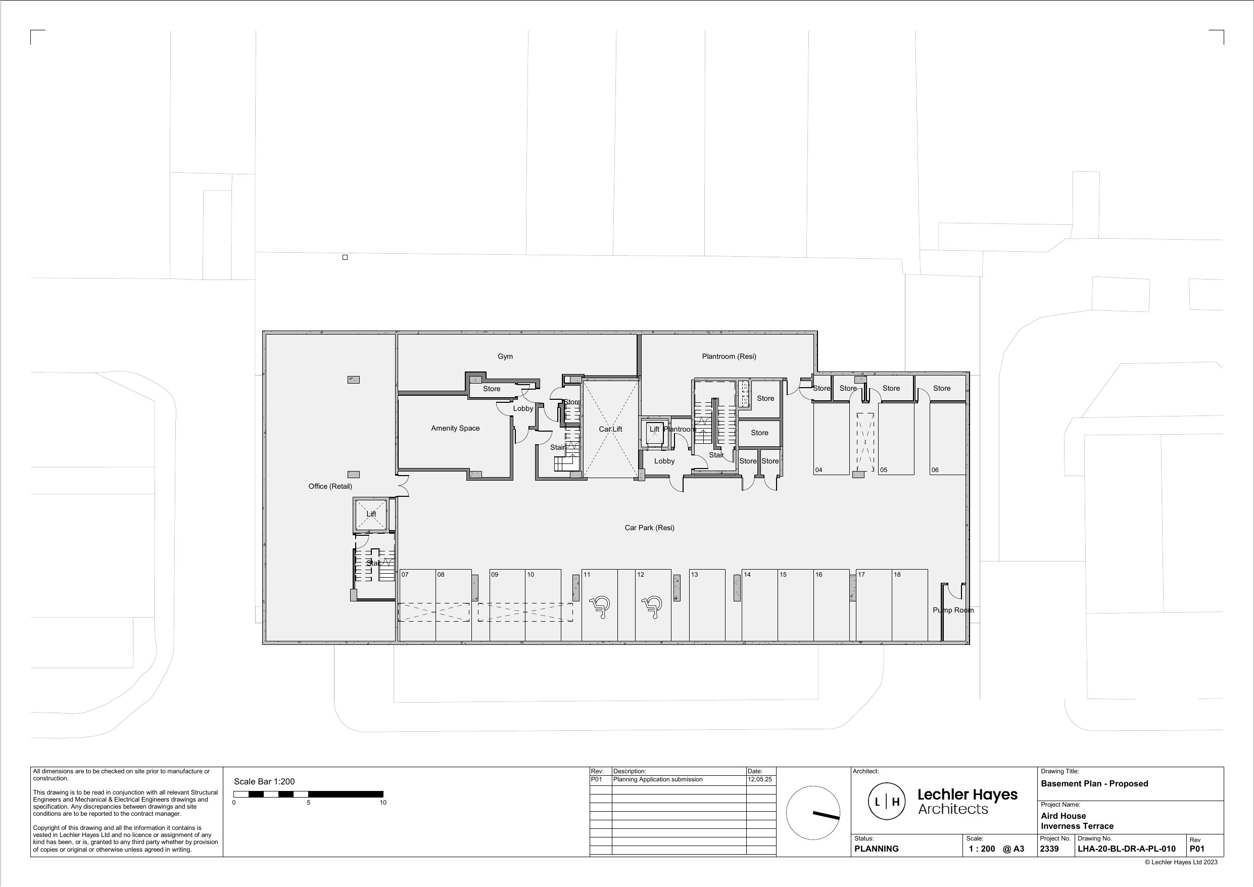
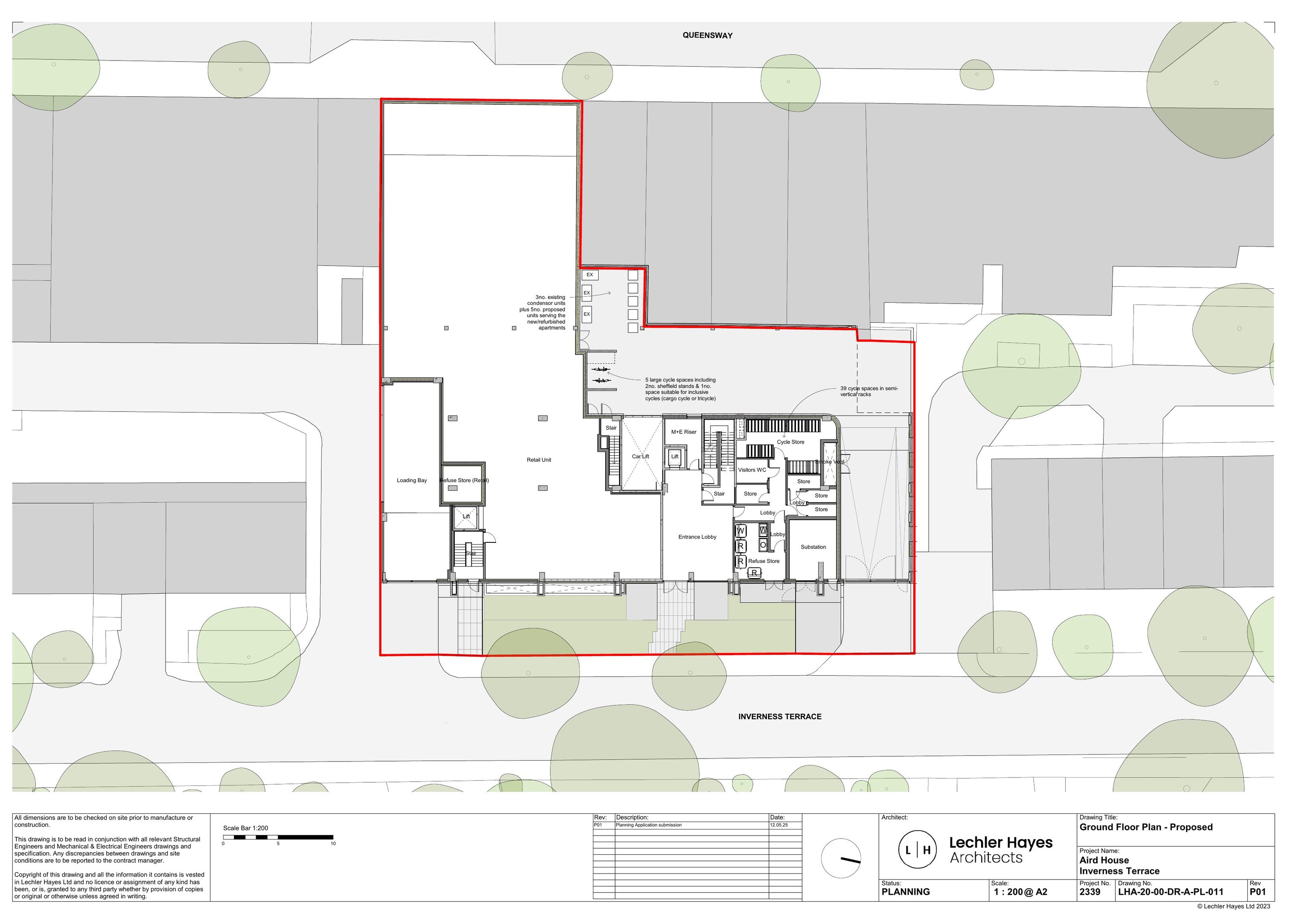
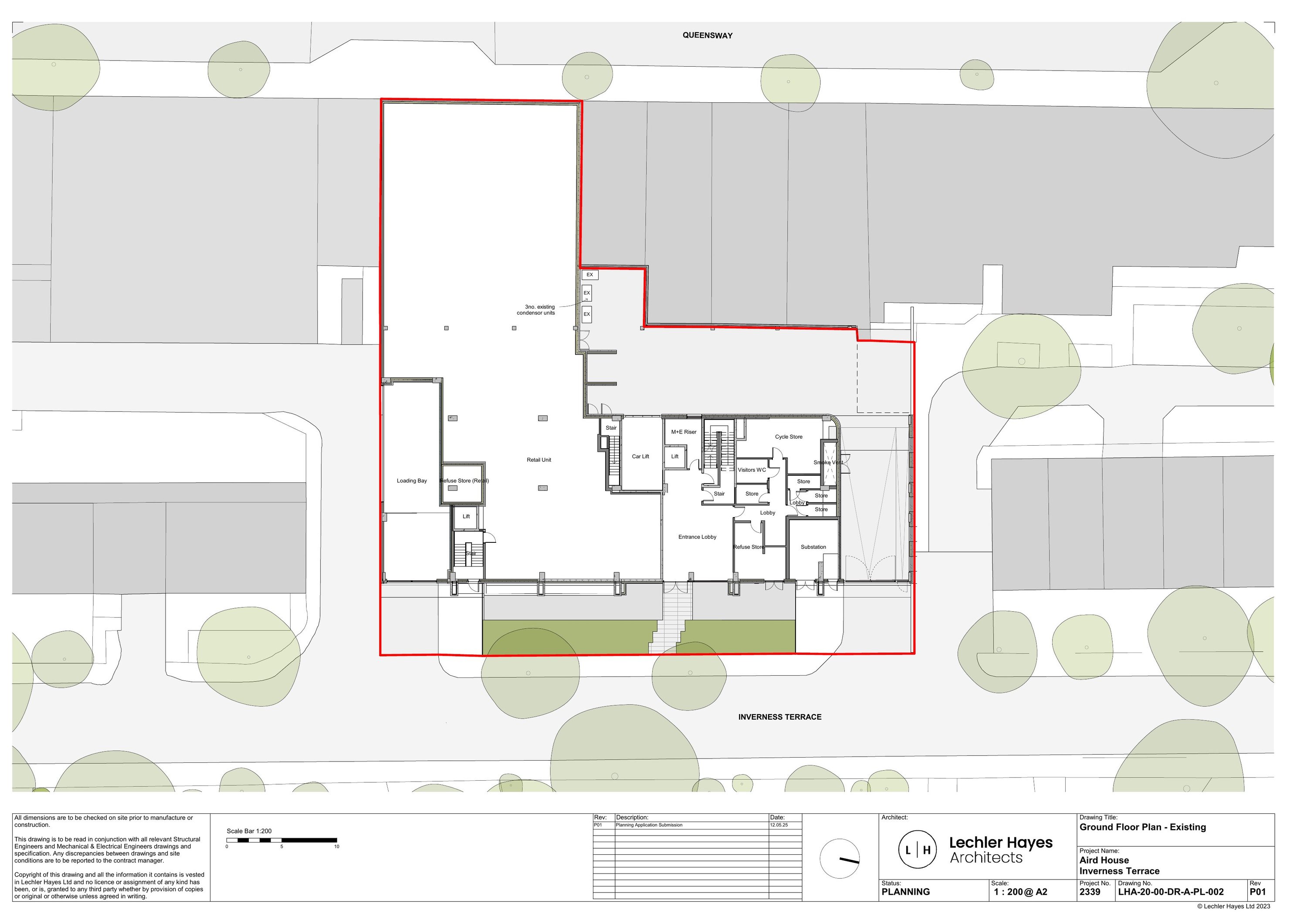
Full proposal

Construction of a roof extension and construction of one additional set back storey to provide 4 additional residential flats; associated works including installation of PV panels at roof level; new plant equipment and cycle storage at ground floor level and reconfigured waste and cycle stores at ground floor level.

Documents

Background Papers
Archived · Original link
AIRD HOUSE - BNG METRIC
Background Papers
Not yet archived · Original link
Background Papers
Archived · Original link
Background Papers
Archived · Original link
Background Papers
Archived · Original link
Background Papers
Archived · Original link
Design and Access Statement
Archived · Original link
Application Form
Archived · Original link
Background Papers
Archived · Original link
Background Papers
Archived · Original link
Background Papers
Archived · Original link
Background Papers
Archived · Original link
Background Papers
Archived · Original link
Report
Archived · Original link
Daylight and Sunlight assessment
Archived · Original link
DOCO 02.07.2025
Background Papers
Not yet archived · Original link
Background Papers
Archived · Original link
Background Papers
Archived · Original link
Background Papers
Archived · Original link
Background Papers
Archived · Original link
Background Papers
Archived · Original link
Background Papers
Archived · Original link
Background Papers
Archived · Original link
Flood risk assessment
Archived · Original link
Decision Notice
Archived · Original link
Consultee Comment
Archived · Original link
Drawing
Archived · Original link
Background Papers
Archived · Original link
Noise impact assessment
Archived · Original link
Drawing
Archived · Original link
Background Papers
Archived · Original link
Drawing
Archived · Original link
Drawing
Archived · Original link
Drawing
Archived · Original link
Background Papers
Archived · Original link
Sustainability appraisal
Archived · Original link

Have your say

Your comment matters. Councils must consider every representation that raises material planning considerations.

Write a comment