← City of Westminster

Status

Decided Listed building
Received
06 Nov 2025
New homes
0

Full proposal

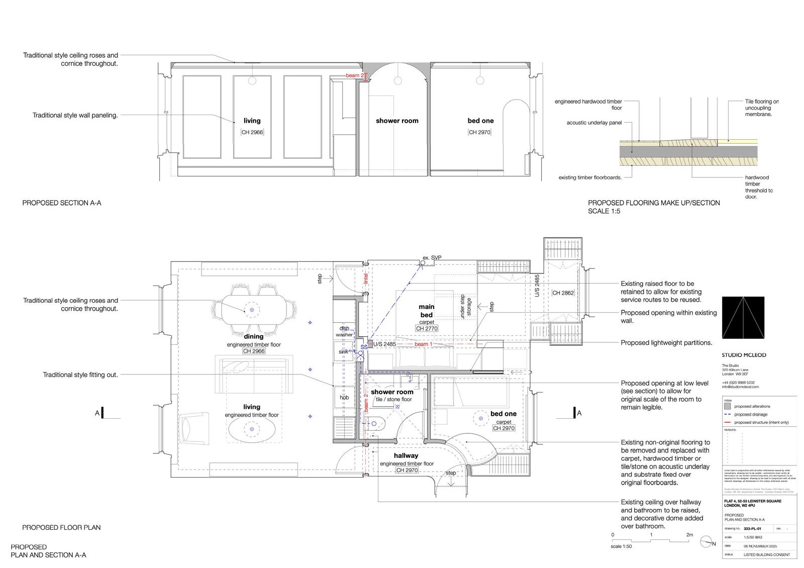
Internal alterations to reconfigure the layout of the second floor flat including the addition of 1no. bedroom and relocation of the kitchen including upgrades to existing lighting and small power, and lowering of the kitchen floor.

Documents

333-PH-02-SITE PHOTOS - OPENING UP
Background Papers
Not yet archived · Original link
Background Papers
Archived · Original link
333-PL-02 AND 03-04 REV A-PROPOSED INTERNAL ELEVATION
Background Papers
Not yet archived · Original link
333-SU-01 REV A -EXISTING PLAN AND SECTION
Background Papers
Not yet archived · Original link
ACK-GENERAL LETTER (G/P/C)
Background Papers
Not yet archived · Original link
APPLICATION FORM REDACTED
Application Form
Not yet archived · Original link
ATTACHMENT SUMMARY
Background Papers
Not yet archived · Original link
DELEGATED REPORT
Report
Not yet archived · Original link
EXISTING PLAN AND SECTION
Drawing
Not yet archived · Original link
EXISTING SITE PHOTOS
Photo
Not yet archived · Original link
FLOOR PLAN INCLUDED IN DETAIL DRAWING
Superseded document
Not yet archived · Original link
GRANT OF LISTED BUILDING CONSENT [PE]
Decision Notice
Not yet archived · Original link
HERTIAGE STATEMENT
Heritage Statement
Not yet archived · Original link
LOCATION PLAN
Location Plan
Not yet archived · Original link
PLANNING STATEMENT AND DESIGN AND ACCESS
Design and Access Statement
Not yet archived · Original link
PROPOSED INTERNAL ELEVATIONS
Drawing
Not yet archived · Original link
PROPOSED MATERIALS
Photo
Not yet archived · Original link
Drawing
Archived · Original link
RECEIPT OF APPLICATION
Other
Not yet archived · Original link
SECTION - EXISTING INCLUDED IN FLOOR PLAN - EXISTING
Superseded document
Not yet archived · Original link
SECTION - PROPOSED INCLUDED IN DETAIL DRAWING
Superseded document
Not yet archived · Original link

Have your say

Your comment matters. Councils must consider every representation that raises material planning considerations.

Write a comment