← City of Westminster

Status

Pending House extension
Received
13 Nov 2025
New homes
0

Full proposal

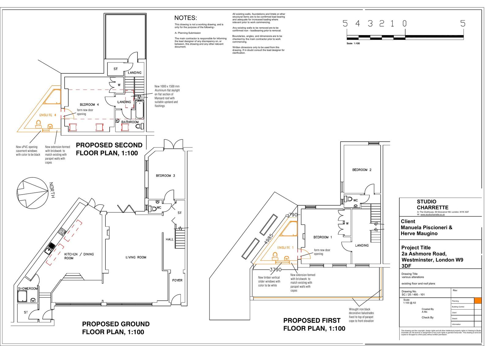
Erection of a first and second floor side extension, installation of new decorative wrought iron balustrade in association with the creation of first floor terrace, installation of new skylight in mansard roof and to first floor flat roof and installation of solar panals to first and second floor roof levels.

Documents

001 - BLOCK PLAN
Drawing
Not yet archived · Original link
001 - BLOCK PLAN (1)
Drawing
Not yet archived · Original link
101 - EXISTING FLOOR PLANS
Drawing
Not yet archived · Original link
102 - EXISTING ELEVATIONS
Drawing
Not yet archived · Original link
1ST INVALID LETTER
Background Papers
Not yet archived · Original link
1ST INVALID LETTER
Background Papers
Not yet archived · Original link
202 - PROPOSED ELEVATIONS
Drawing
Not yet archived · Original link
301 - EXISTING AND PROPOSED ROOF PLANS
Drawing
Not yet archived · Original link
ACK-GENERAL LETTER (G/P/C)
Background Papers
Not yet archived · Original link
APPLICATIONFORMREDACTED
Application Form
Not yet archived · Original link
CNSLT-LA SOCIETY
Background Papers
Not yet archived · Original link
ECNSLT-INTERNAL CONSULTS
Background Papers
Not yet archived · Original link
FLOOD RISK ASSESSMENT
Flood risk assessment
Not yet archived · Original link
HERITAGE STATEMENT
Heritage Statement
Not yet archived · Original link
LLFA
Consultee Comment
Not yet archived · Original link
LOCATION PLAN
Location Plan
Not yet archived · Original link
NEIGHBOUR NOTIFICATION LETTER (21D)
Background Papers
Not yet archived · Original link
Drawing
Archived · Original link
RECEIPT OF APPLICATION
Other
Not yet archived · Original link
SITE NOTICE 21 OR 28 DAYS IF T&C APPL.
Background Papers
Not yet archived · Original link
SUSTAINABLE DESIGN STATEMENT
Other
Not yet archived · Original link

Have your say

Your comment matters. Councils must consider every representation that raises material planning considerations.

Write a comment