← City of Westminster

Status

Pending Change of use
Received
17 Dec 2025
New homes
0

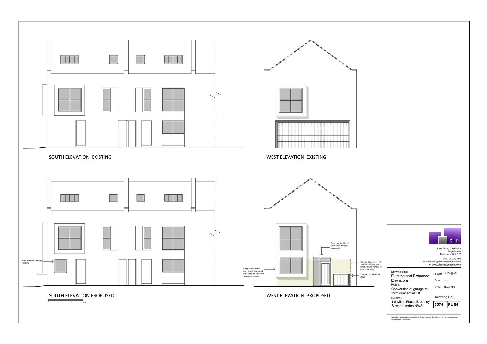
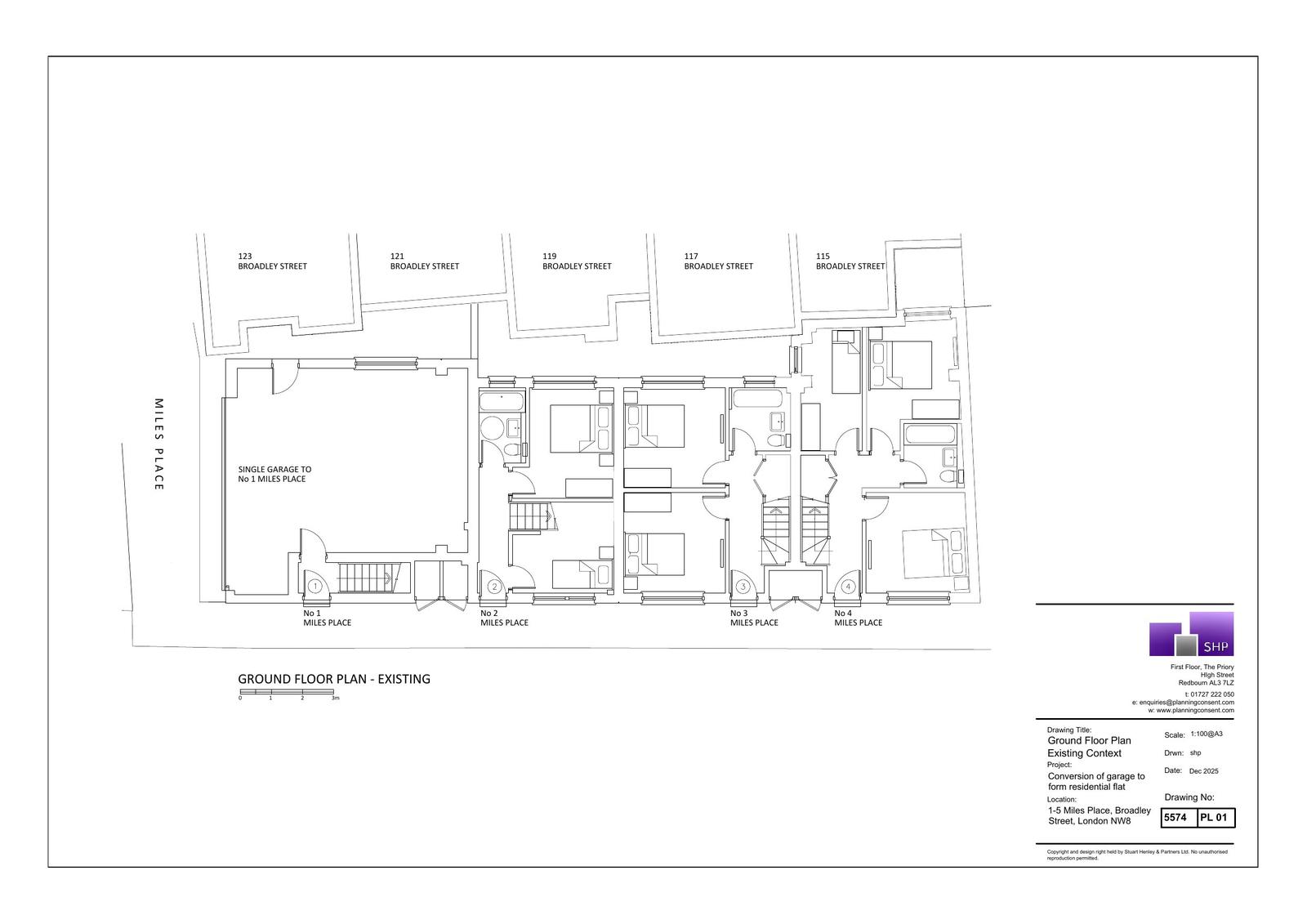
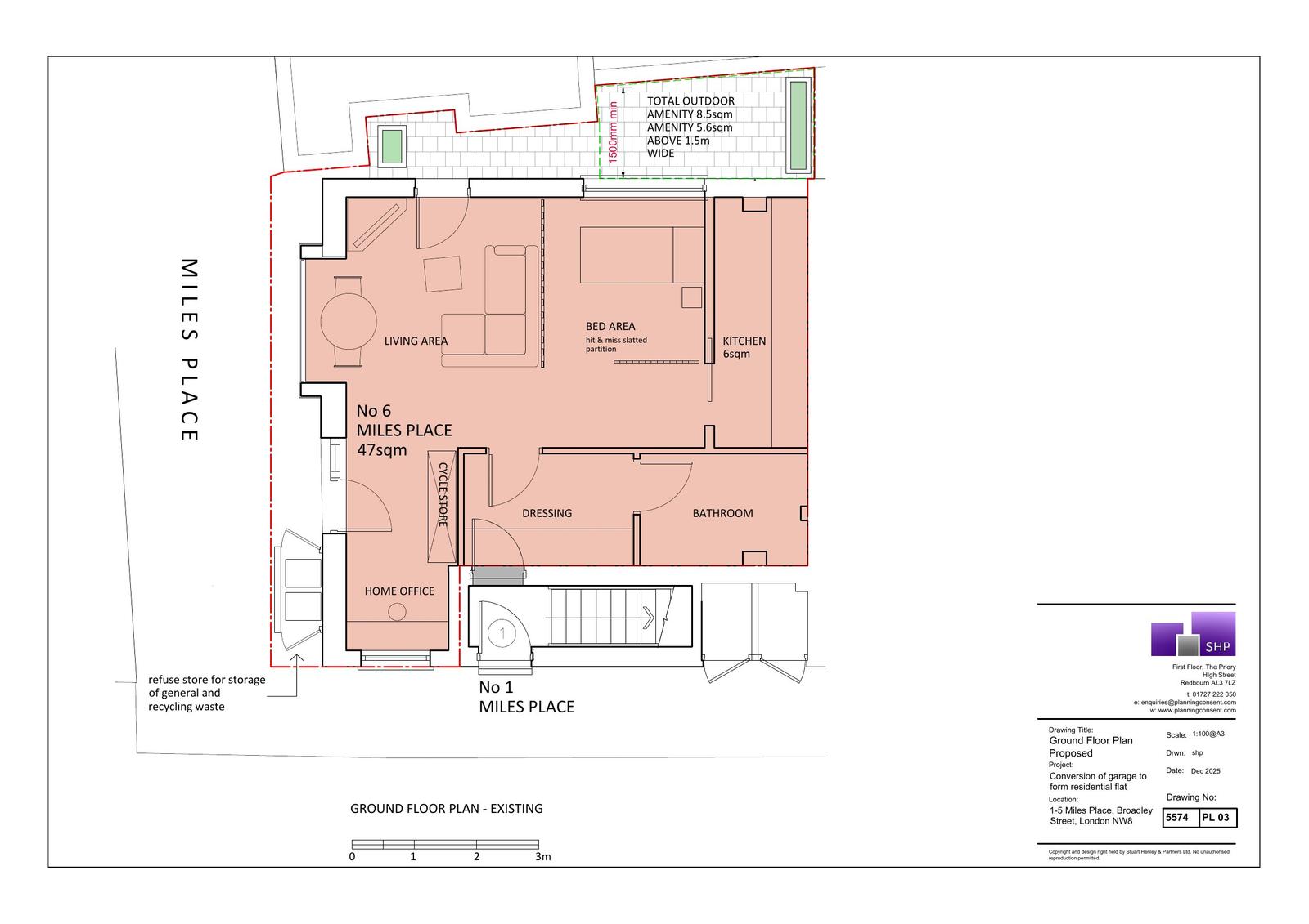
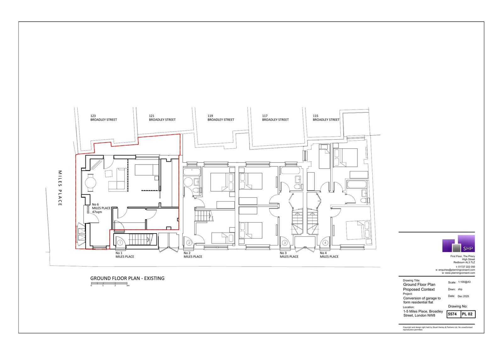
Full proposal

Conversion of existing garage into residential flat with associated external alterations

Documents

Background Papers
Archived · Original link
Application Form
Archived · Original link
Background Papers
Archived · Original link
Design and Access Statement
Archived · Original link
Background Papers
Archived · Original link
Background Papers
Archived · Original link

Have your say

Your comment matters. Councils must consider every representation that raises material planning considerations.

Write a comment