← City of Westminster

Status

Pending Listed building
Received
22 Dec 2025
New homes
0

Full proposal

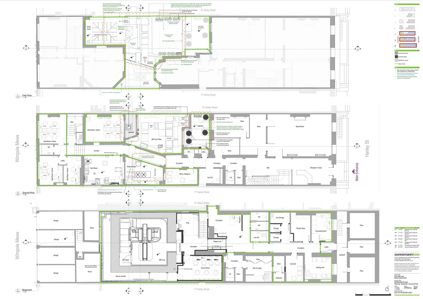
Internal alterations at basement and ground floor levels and external alterations including the removal of roof lanterns; installation of new plant within the lightwell at ground floor level and on the flat roof area at first floor level.

Documents

ACK-GENERAL LETTER (G/P/C)
Background Papers
Not yet archived · Original link
APPLICATION FORM REDACTED
Application Form
Not yet archived · Original link
DEMOLITION ELEVATIONS-PLANNING - ELEVATIONS
Drawing
Not yet archived · Original link
DEMOLITION PLANS-PLANNING - BASEMENT_GROUND _FIRST
Drawing
Not yet archived · Original link
DEMOLITION SECTIONS-PLANNING - SECTIONS
Drawing
Not yet archived · Original link
DRAWING ISSUE SHEET
Drawing
Not yet archived · Original link
DRAWING REGISTER-PLANNING APPLICATION
Drawing
Not yet archived · Original link
EXISTING ELEVATIONS - ELEVATIONS
Drawing
Not yet archived · Original link
EXISTING PLANS - BASEMENT GROUND FIRST
Drawing
Not yet archived · Original link
EXISTING SECTIONS
Drawing
Not yet archived · Original link
Drawing
Archived · Original link
LOCATION PLAN
Location Plan
Not yet archived · Original link
PHOTOGRAPHIC RECORD - PHOTOGRAPHS (1)
Photo
Not yet archived · Original link
PLANNING STATEMENT
Planning Statement
Not yet archived · Original link
PROPOSED ELEVATIONS
Drawing
Not yet archived · Original link
PROPOSED SECTIONS
Drawing
Not yet archived · Original link
SKETCH-PROPOSED 3D VIEW
Drawing
Not yet archived · Original link
SKETCH-PROPOSED 3D VIEW
Drawing
Not yet archived · Original link

Have your say

Your comment matters. Councils must consider every representation that raises material planning considerations.

Write a comment