← City of Westminster

Status

Pending Change of use
Received
21 Jan 2026
New homes
3

Full proposal

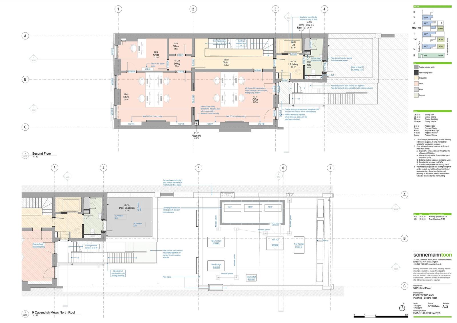
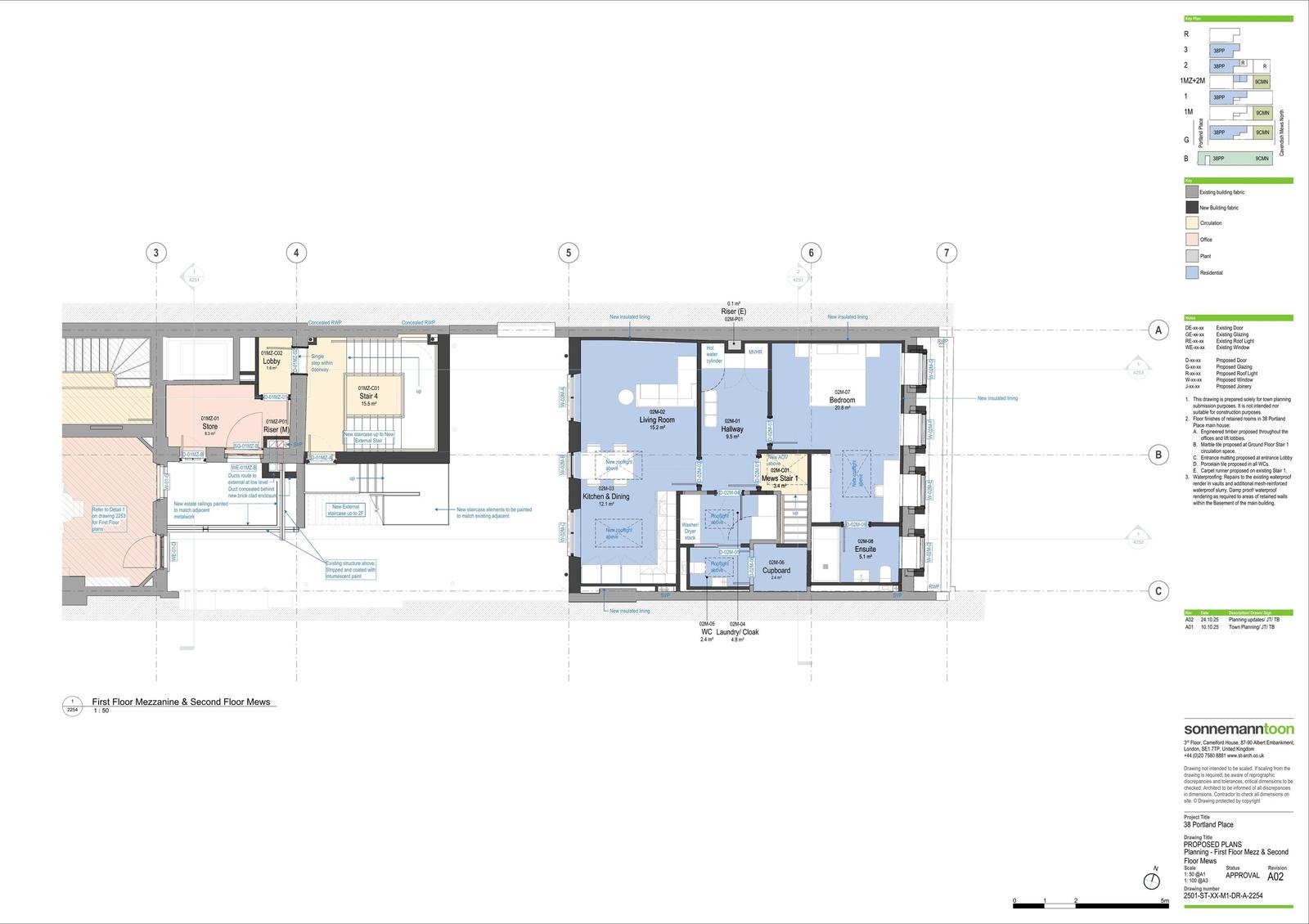
Internal alterations to 38 Portland Place throughout to change the use from sui generis (Institutional Use) to Class E office use throughout in connection with removal of link building between 38 Portland Place and 9 Cavendish Mews North at ground, first and second floors, formation of a new rear stair core to main building and new external fire escape stair. New terraces to office space in connection with plant space and the installation of air source heat pumps. Alterations to the front and rear facades of the mews building in connection with internal alterations to create new residential units and new plant space to mews roof level and new terrace spaces all in connection with the change of use of ground to first floors from sui generis (institutional use) and second floor Class E (office use) of 9 Cavendish Mews North to Class C3 residential use to form 3x 1 bedroom flats. (Part of a land swap with 1 Marylebone High Street and Moxon House). (Linked to 26/00351/FULL)

Documents

ACK-GENERAL LETTER (G/P/C)
Background Papers
Not yet archived · Original link
ACOUSTIC REPORT
Background Papers
Not yet archived · Original link
APPLICATIONFORMREDACTED
Application Form
Not yet archived · Original link
ATTACHMENTSUMMARY
Background Papers
Not yet archived · Original link
CNSLT-CONSULTEE CLOUD STD
Background Papers
Not yet archived · Original link
COVERING LETTER DECEMBER 2025
Background Papers
Not yet archived · Original link
DEMOLITION PLANS-PLANING - BASEMENT
Drawing
Not yet archived · Original link
DEMOLITION PLANS-PLANNING - FIRST FLOOR
Drawing
Not yet archived · Original link
DEMOLITION PLANS-PLANNING - GROUND FLOOR
Drawing
Not yet archived · Original link
DEMOLITION PLANS-PLANNING - THIRD FLOOR
Drawing
Not yet archived · Original link
DEMOLITION PLANS-PLANNING- ROOF
Drawing
Not yet archived · Original link
DEMOLITION PLANS-PLANNING- SECOND FLOOR
Drawing
Not yet archived · Original link
DEMOLITION PLANS-VOLUME
Drawing
Not yet archived · Original link
DEMOLITION SECTIONS-PLANNING - SECTION 3
Drawing
Not yet archived · Original link
DEMOLITION SECTIONS-PLANNING - SECTIONS 1 AND 2
Drawing
Not yet archived · Original link
DEMOLITION SECTIONS-PLANNING- SECTION 4
Drawing
Not yet archived · Original link
DESIGN AND ACCESSSTATEMENT
Design and Access Statement
Not yet archived · Original link
DETAILS - INTERNAL-RETAINED TIMBER FLOORS UPGRADE
Drawing
Not yet archived · Original link
ECNSLT-STD EXT CONSULTEES
Background Papers
Not yet archived · Original link
EXISTING ELEVATIONS-PLANNING - COURTYARD
Drawing
Not yet archived · Original link
EXISTING ELEVATIONS-PLANNING - EAST AND WEST
Drawing
Not yet archived · Original link
EXISTING ELEVATIONS-PLANNING - LIGHTWELL
Drawing
Not yet archived · Original link
EXISTING ELEVATIONS-PLANNING - PARTY WALLS
Drawing
Not yet archived · Original link
EXISTING PLANS-GIA
Drawing
Not yet archived · Original link
EXISTING PLANS-PLANNING - BASEMENT
Drawing
Not yet archived · Original link
EXISTING PLANS-PLANNING - FIRST FLOOR
Drawing
Not yet archived · Original link
EXISTING PLANS-PLANNING - FIRST FLOOR MEZZ AND SECON
Drawing
Not yet archived · Original link
EXISTING PLANS-PLANNING - GROUND FLOOR
Drawing
Not yet archived · Original link
EXISTING PLANS-PLANNING - ROOF
Drawing
Not yet archived · Original link
EXISTING PLANS-PLANNING - SECOND FLOOR
Drawing
Not yet archived · Original link
EXISTING PLANS-PLANNING - THIRD FLOOR
Drawing
Not yet archived · Original link
FEECALCULATION
Background Papers
Not yet archived · Original link
HERITAGE STATEMENT V3
Heritage Statement
Not yet archived · Original link
LAND SWAP SCHEDULE
Background Papers
Not yet archived · Original link
LOCATION AND SITE-LOCATION PLAN
Drawing
Not yet archived · Original link
LOCATION PLAN
Drawing
Not yet archived · Original link
PLANNING STATEMENT
Background Papers
Not yet archived · Original link
PROPOSED ELEVATIONS-PLANNING - EAST AND WEST
Drawing
Not yet archived · Original link
Drawing
Archived · Original link
RECEIPT OF APPLICATION
Other
Not yet archived · Original link
REPORTS-HISTORICFABRICTREATMENT - PART 1
Background Papers
Not yet archived · Original link
REPORTS-HISTORICFABRICTREATMENT - PART 2
Background Papers
Not yet archived · Original link
SCHEDULES-EXISTING RETAINED DOORS (EXT-INT)
Background Papers
Not yet archived · Original link
SCHEDULES-EXISTING RETAINED WINDOWS
Background Papers
Not yet archived · Original link
SCHEDULES-NEW EXTERNAL DOORS
Background Papers
Not yet archived · Original link
SCHEDULES-NEW INTERNAL DOORS
Background Papers
Not yet archived · Original link
SCHEDULES-NEW WINDOWS
Background Papers
Not yet archived · Original link
SCHEDULES-ROOFLIGHTS AND AOV
Background Papers
Not yet archived · Original link
SUSTAINABILITY SUMMARY-S2-P01
Background Papers
Not yet archived · Original link

Have your say

Your comment matters. Councils must consider every representation that raises material planning considerations.

Write a comment