← City of Westminster

Status

Pending Listed building
Received
Last month
New homes
0

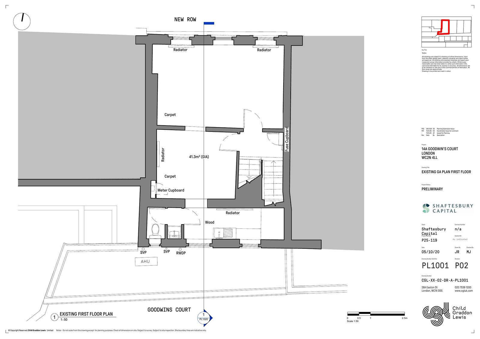
Full proposal

Installation of three air source heat pumps on rear first floor flat roof with associated acoustic enclosures, external pipework and safety anchor points (Linked 26/00911/FULL)

Documents

Background Papers
Archived · Original link
Application Form
Archived · Original link
Design and Access Statement
Archived · Original link
Design and Access Statement
Archived · Original link
Background Papers
Archived · Original link
Heritage Statement
Archived · Original link
Background Papers
Archived · Original link

Have your say

Your comment matters. Councils must consider every representation that raises material planning considerations.

Write a comment