← Westmorland and Furness Council
2024/1638/FPA
Westmorland and Furness Council
Status
StatusOfficer Consideration
Change of use
Received
20 Oct 2024
New homes
0
Full proposal
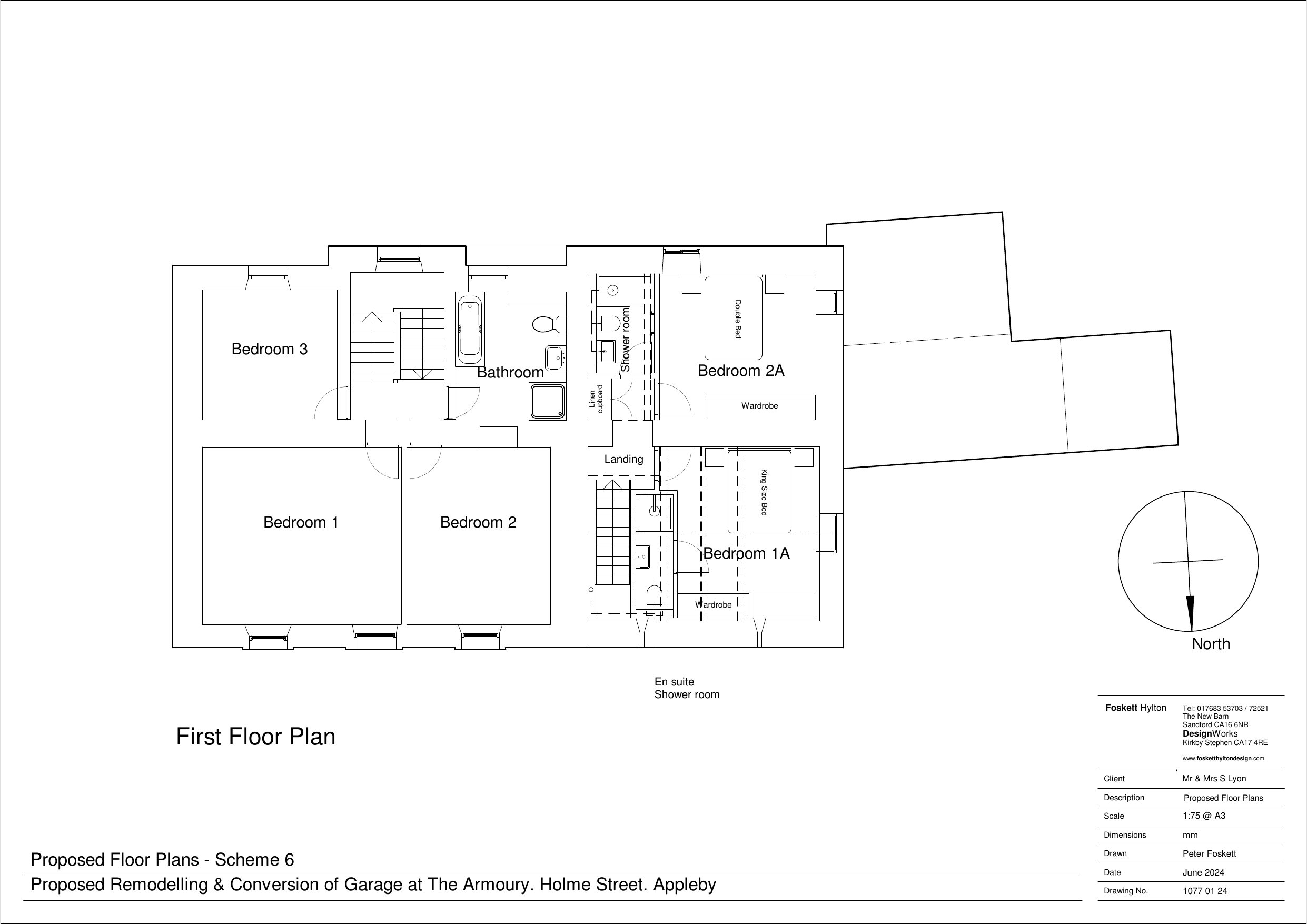
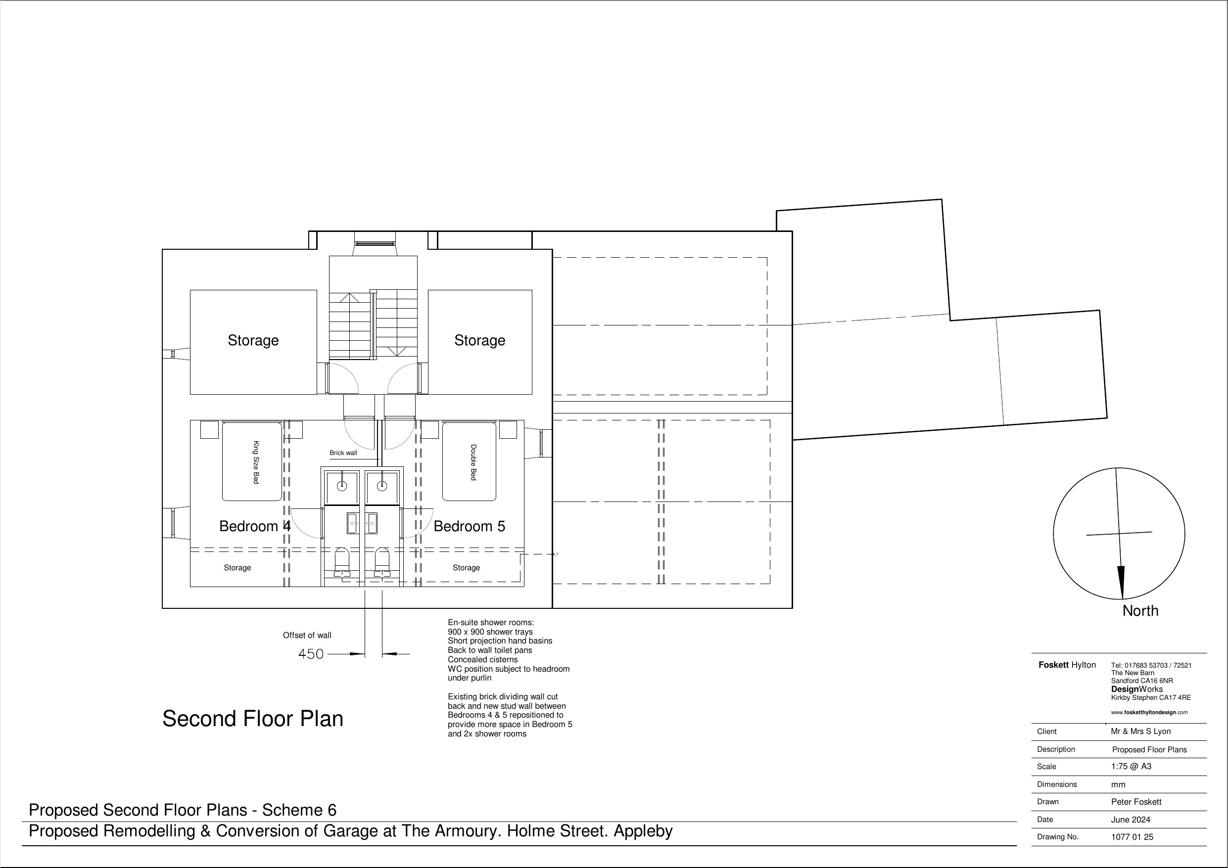
Proposal/DescriptionRemodelling of interior and conversion of garage and former armoury to form two bedroom ancillary annexe accommodation.
Documents
Have your say
Your comment matters. Councils must consider every representation that raises material planning considerations.