← Back to Westmorland and Furness Council

Status

StatusOfficer Consideration New housing
Received 21 May 2025
New dwellings 4

What you can do

Take Action

Make your voice heard. Authorities need to hear from people who support new homes.

Summary

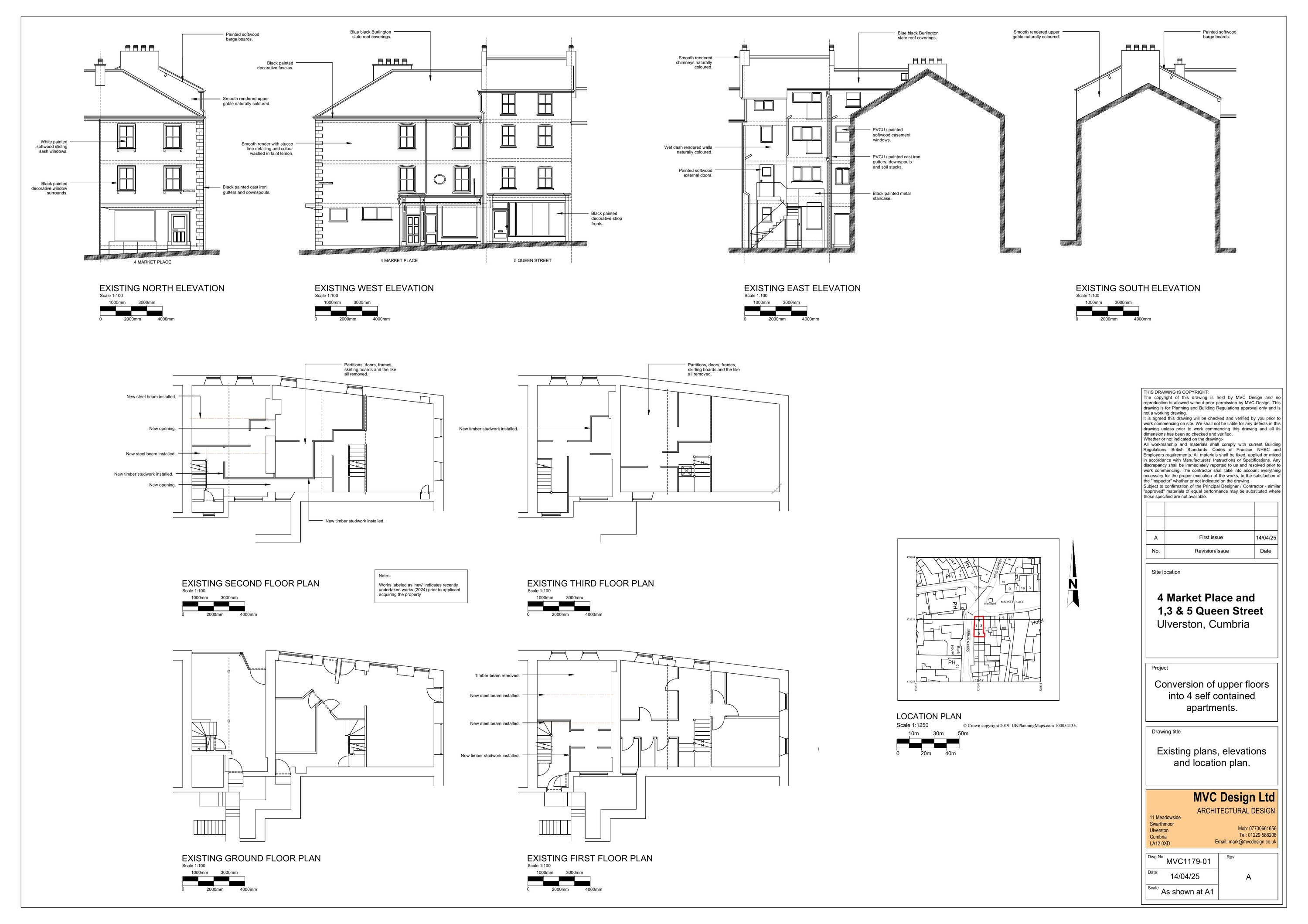
Conversion of upper floors of listed building into four self-contained apartments.

Full Proposal

Proposal/DescriptionListed Building application for the conversion of upper floors to form 4 self-contained apartments, including internal and external alterations and upgrades (Part retrospective)

Detail pages

Documents

-
Document
Not downloaded · Council link
-
Document
Not downloaded · Council link
-
Document
Not downloaded · Council link
-
Document
Not downloaded · Council link
-
Document
Not downloaded · Council link
MVC1179-01 - A
Document
Not downloaded · Council link
MVC1179-02 - B
Document
Archived copy · Council link