← Westmorland and Furness Council

Status

StatusConsultation Started House extension
Received
06 Feb 2026
New homes
0

Full proposal

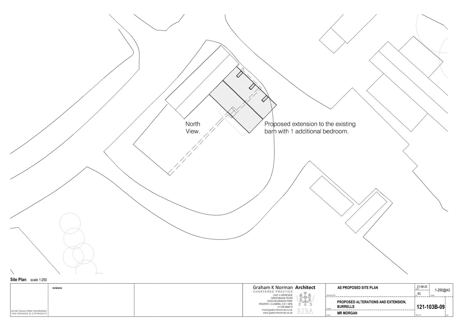
Proposal/DescriptionErection of an extension to dwelling.

Documents

-
Document
Not yet archived · Original link
-
Document
Not yet archived · Original link
-
Document
Not yet archived · Original link
-
Document
Not yet archived · Original link
Document
Archived · Original link
121-103B-02 - B
Document
Not yet archived · Original link
121-103B-03 - A
Document
Not yet archived · Original link
121-103B-04 -
Document
Not yet archived · Original link
121-103B-05 -
Document
Not yet archived · Original link
121-103B-06 - A
Document
Not yet archived · Original link
121-103B-07 - A
Document
Not yet archived · Original link
Document
Archived · Original link
Document
Archived · Original link

Have your say

Your comment matters. Councils must consider every representation that raises material planning considerations.

Write a comment