← Back to Westmorland and Furness Council
Application
2026/0074/HOU
Westmorland and Furness Council · MASTERGOV
Status
StatusConsultation Started
Received
18 days ago
New dwellings
n/a
What you can do
Take Action
Make your voice heard. Authorities need to hear from people who support new homes.
Full Proposal
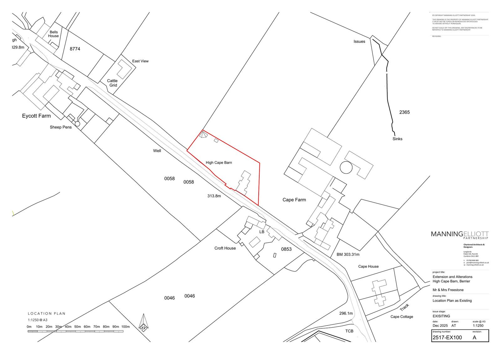
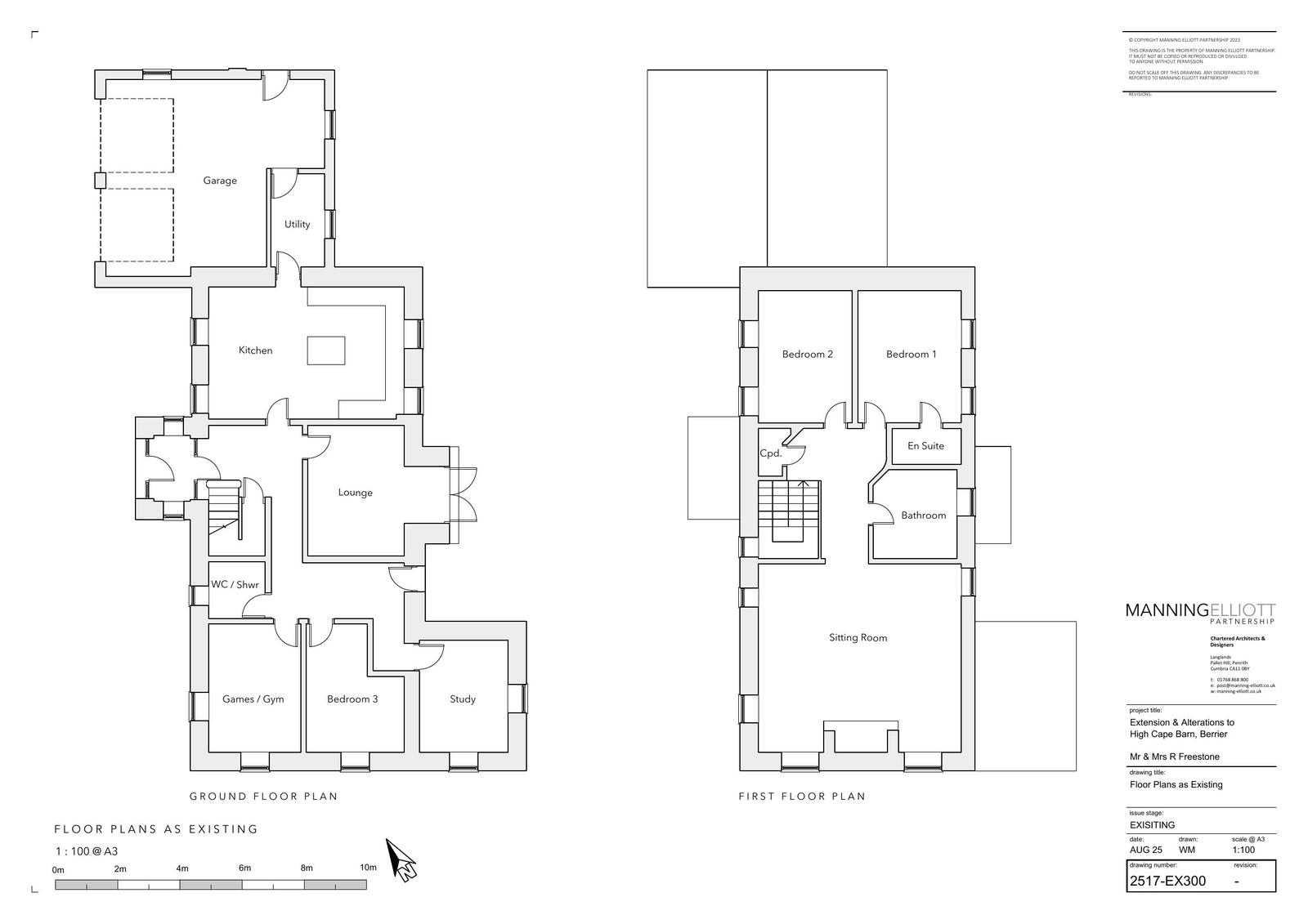
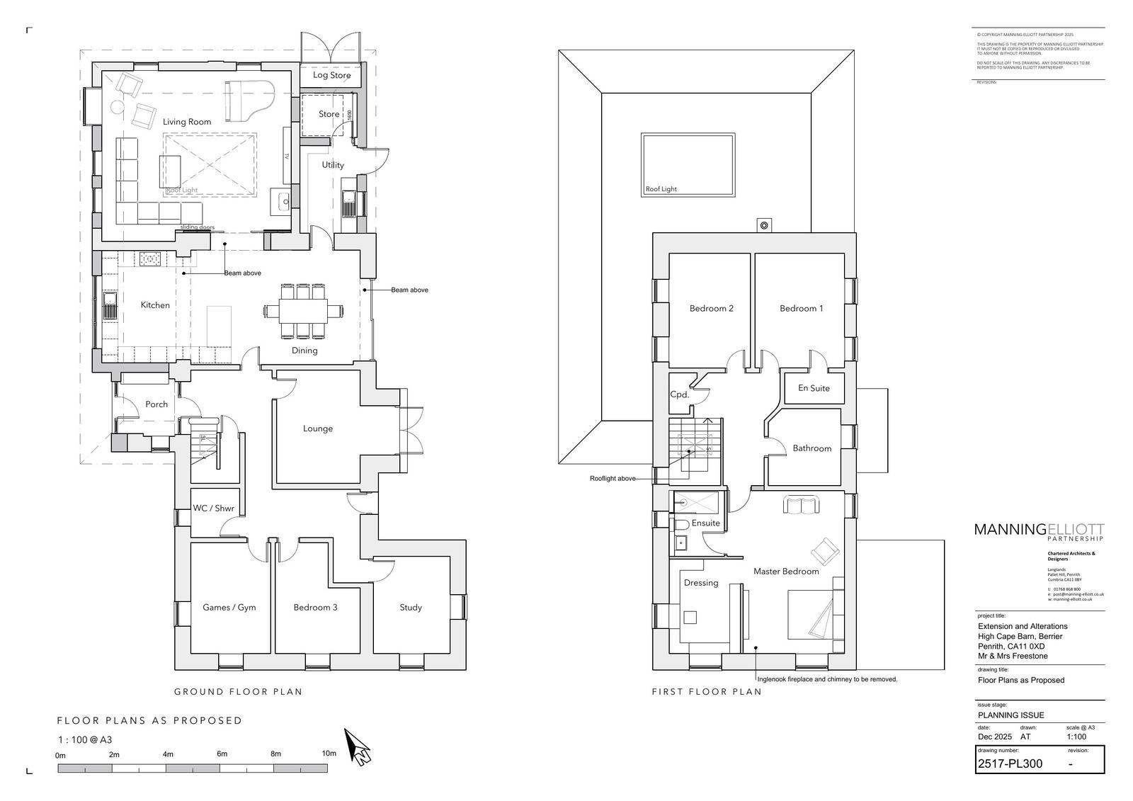
Proposal/DescriptionSingle storey extension and remodelling of dwelling, and erection of detached garage.
Detail pages
- View live detail on council site
- No archived detail page available.
Documents
-
Document
Not downloaded
· Council link
-
Document
Not downloaded
· Council link
2517-EX100 -
Document
Archived copy
· Council link
2517-EX200 - A
Document
Archived copy
· Council link
2517-EX300 -
Document
Not downloaded
· Council link
2517-EX500 -
Document
Not downloaded
· Council link
2517-EX501 -
Document
Not downloaded
· Council link
2517-PL200 -
Document
Archived copy
· Council link
2517-PL300 -
Document
Not downloaded
· Council link
2517-PL301 -
Document
Not downloaded
· Council link
2517-PL500 -
Document
Not downloaded
· Council link
2517-PL501 -
Document
Not downloaded
· Council link