← Westmorland and Furness Council

Status

StatusConsultation Started Change of use
Received
Last month
New homes
0

Full proposal

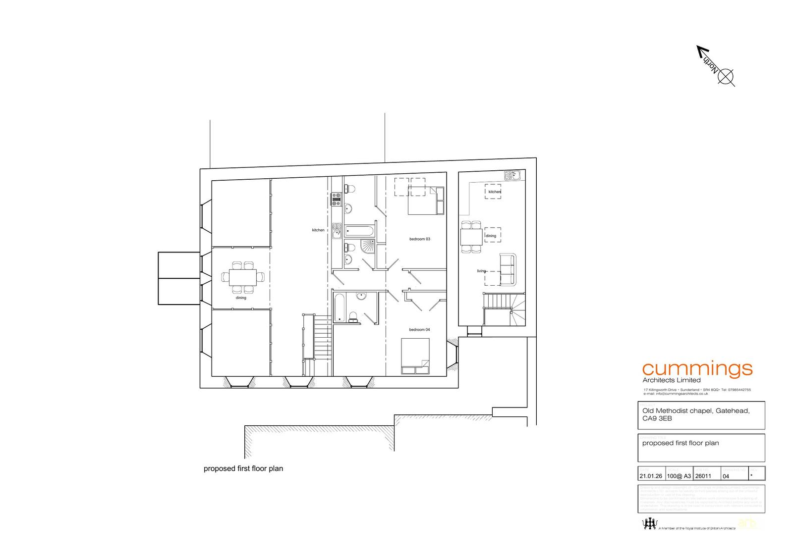
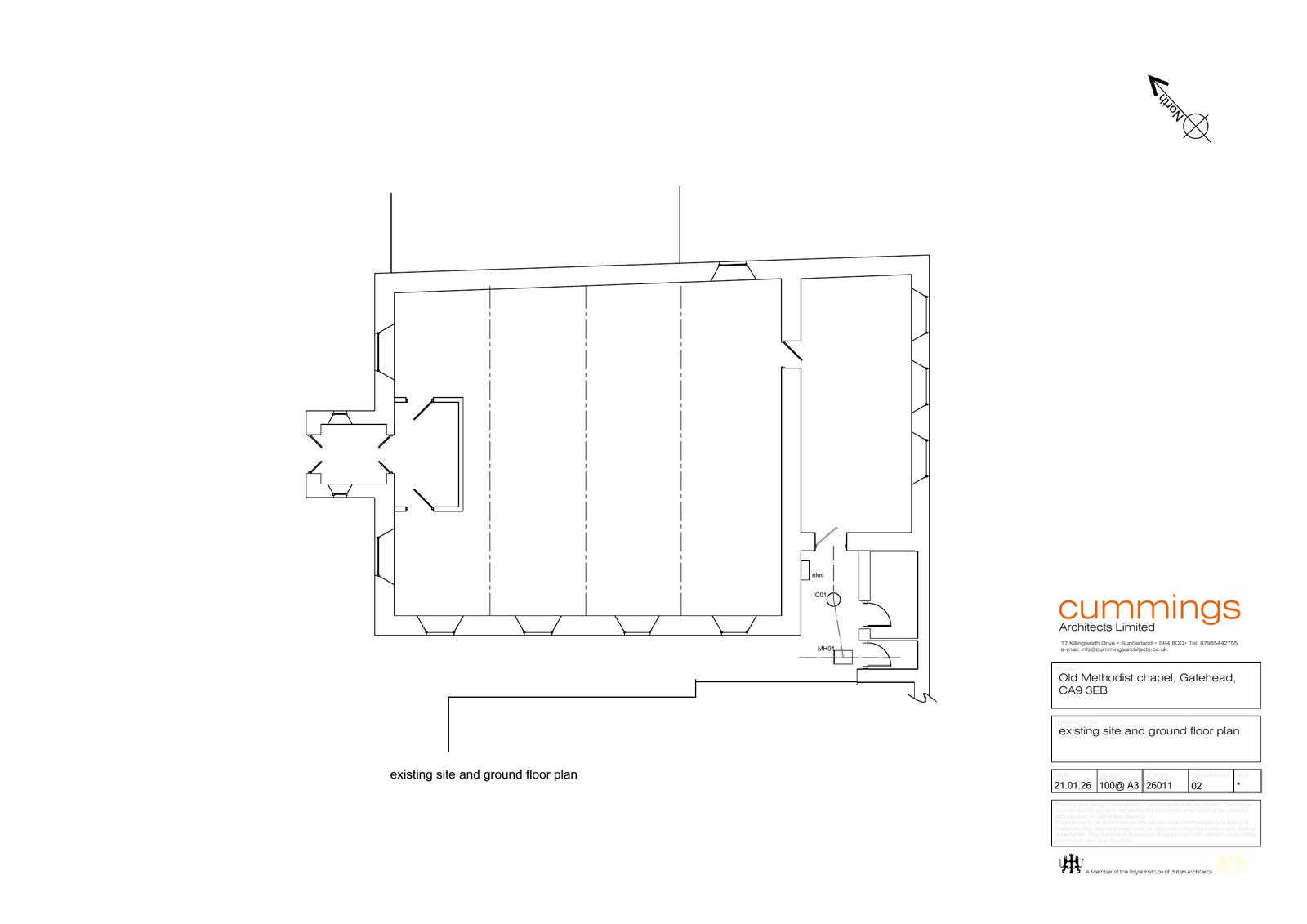
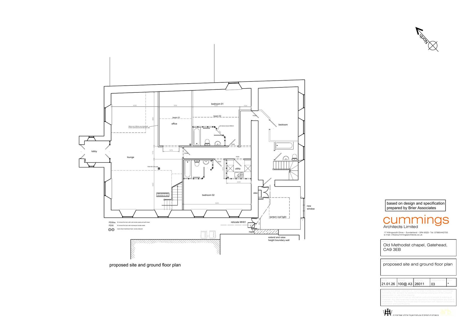
Proposal/DescriptionChange of use of residential dwelling to 2no holiday lets, part retrospective.

Documents

-
Document
Archived · Original link
-
Document
Not yet archived · Original link
Document
Archived · Original link
Document
Archived · Original link
Document
Archived · Original link
Document
Archived · Original link
Document
Archived · Original link

Have your say

Your comment matters. Councils must consider every representation that raises material planning considerations.

Write a comment