← Westmorland and Furness Council

Status

StatusConsultation Started Change of use
Received
Last month
New homes
2

Full proposal

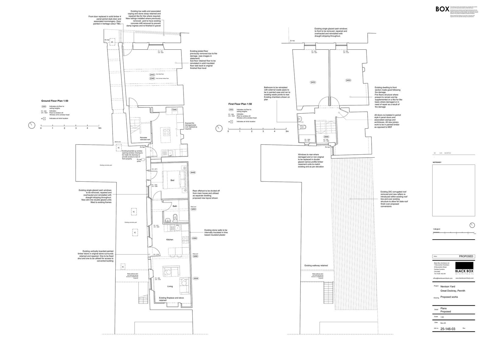
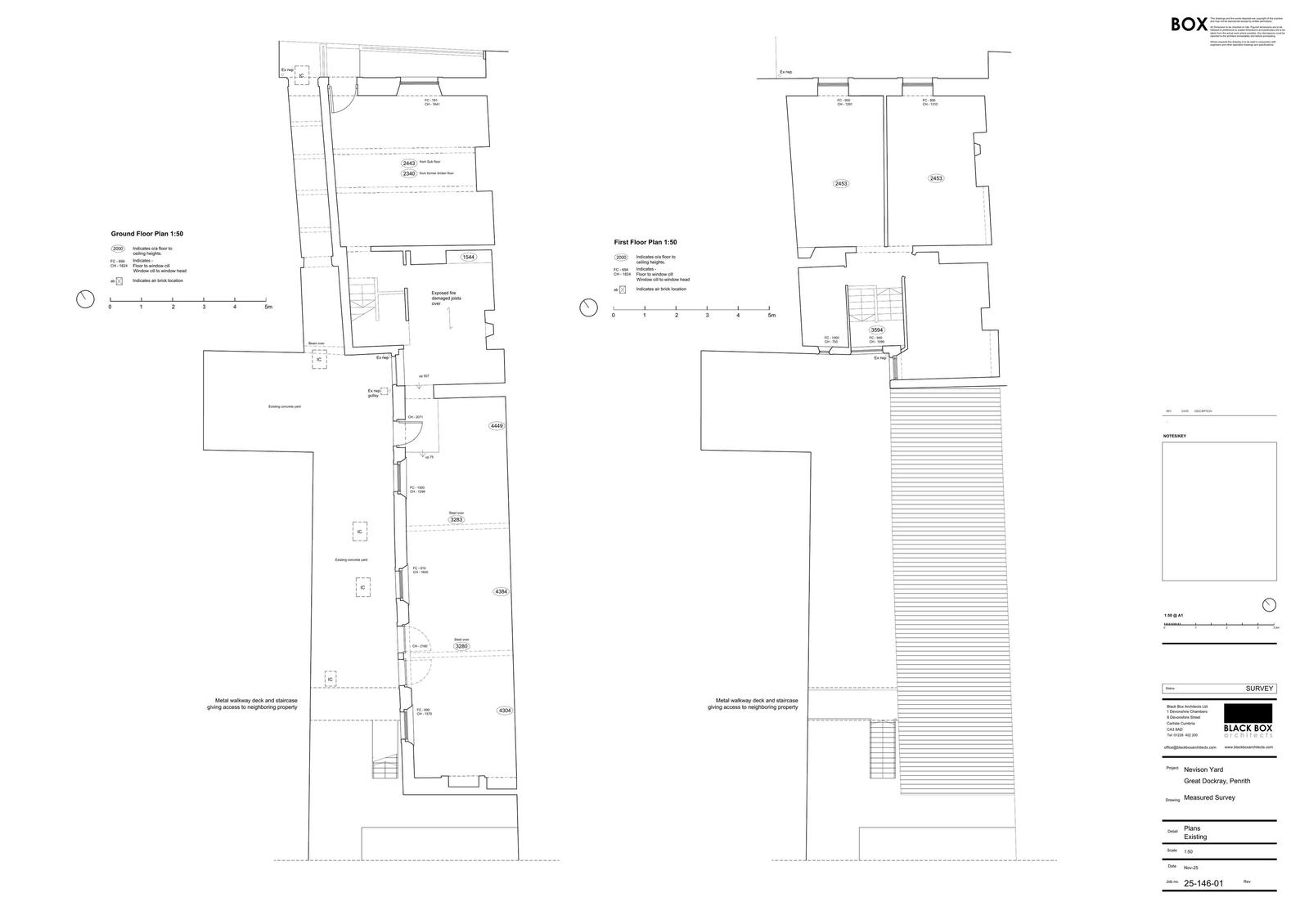
Proposal/DescriptionChange of use of buildings previously used for storage to form 2no dwellings. Works comprise renovation and repair of fire damaged front section, and internal and external alterations including replacement roof coverings, windows and doors.

Documents

-
Document
Archived · Original link
-
Document
Archived · Original link
-
Document
Not yet archived · Original link
-
Document
Archived · Original link
-
Document
Archived · Original link
-
Document
Archived · Original link
-
Document
Archived · Original link
-
Document
Archived · Original link
-
Document
Archived · Original link
-
Document
Archived · Original link
Document
Archived · Original link
Document
Archived · Original link
Document
Archived · Original link
Document
Archived · Original link

Have your say

Your comment matters. Councils must consider every representation that raises material planning considerations.

Write a comment