← Westmorland and Furness Council

Status

StatusConsultation Started House extension
Received
Last month
New homes
0

Full proposal

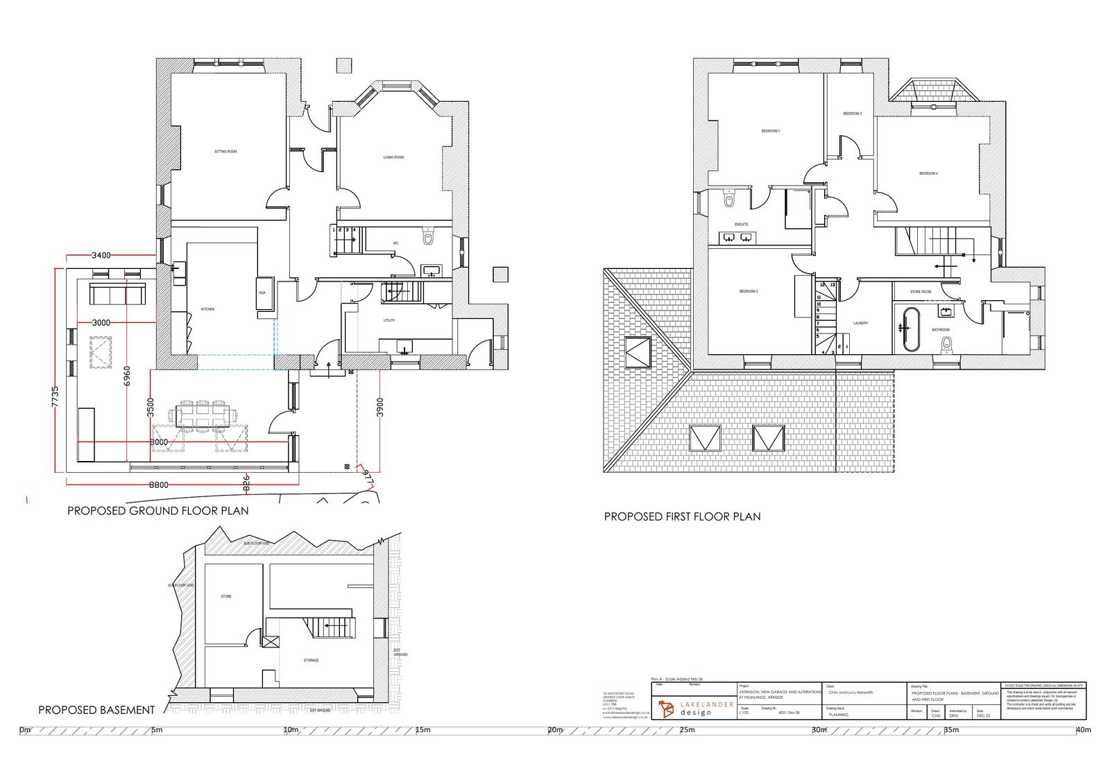
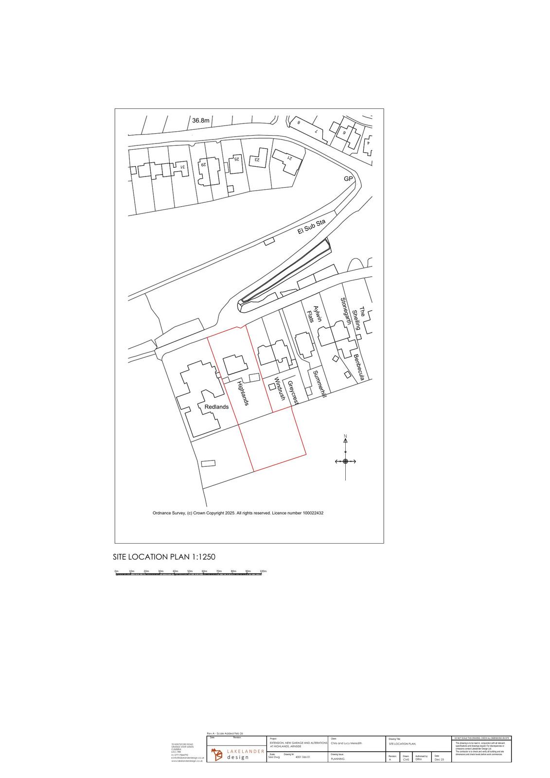
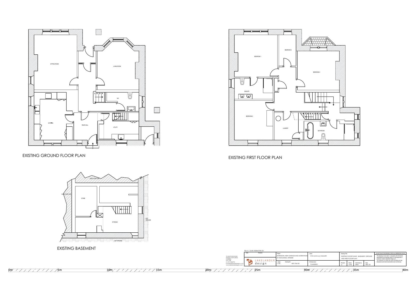
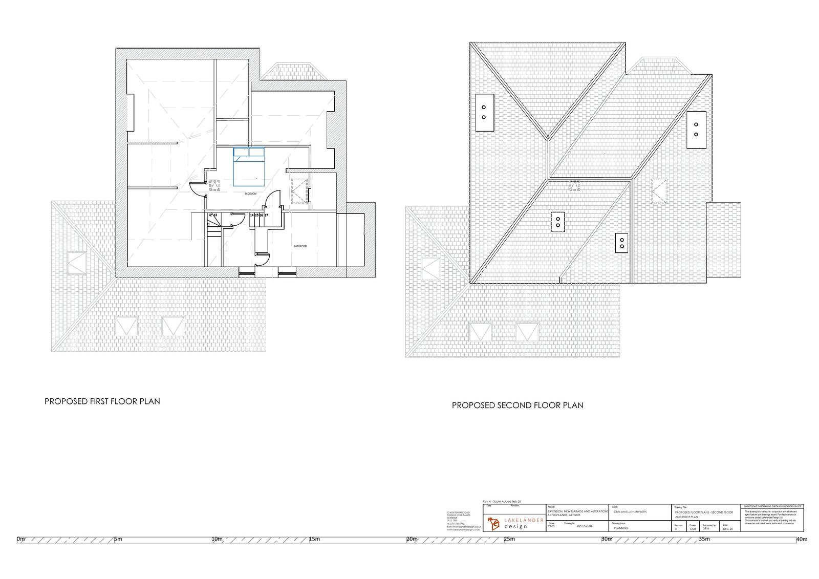
Proposal/DescriptionProposed single storey rear extension. Construction of a timber framed garage and store to the rear garden. Various landscaping works

Documents

-
Document
Archived · Original link
-
Document
Archived · Original link
-
Document
Not yet archived · Original link
-
Document
Archived · Original link
Document
Archived · Original link
Document
Archived · Original link
Document
Archived · Original link
Document
Archived · Original link
Document
Archived · Original link
Document
Archived · Original link
Document
Archived · Original link
Document
Archived · Original link
Document
Archived · Original link
Document
Archived · Original link
Document
Archived · Original link
Document
Archived · Original link
Document
Archived · Original link
Document
Archived · Original link
Document
Archived · Original link
Document
Archived · Original link

Have your say

Your comment matters. Councils must consider every representation that raises material planning considerations.

Write a comment