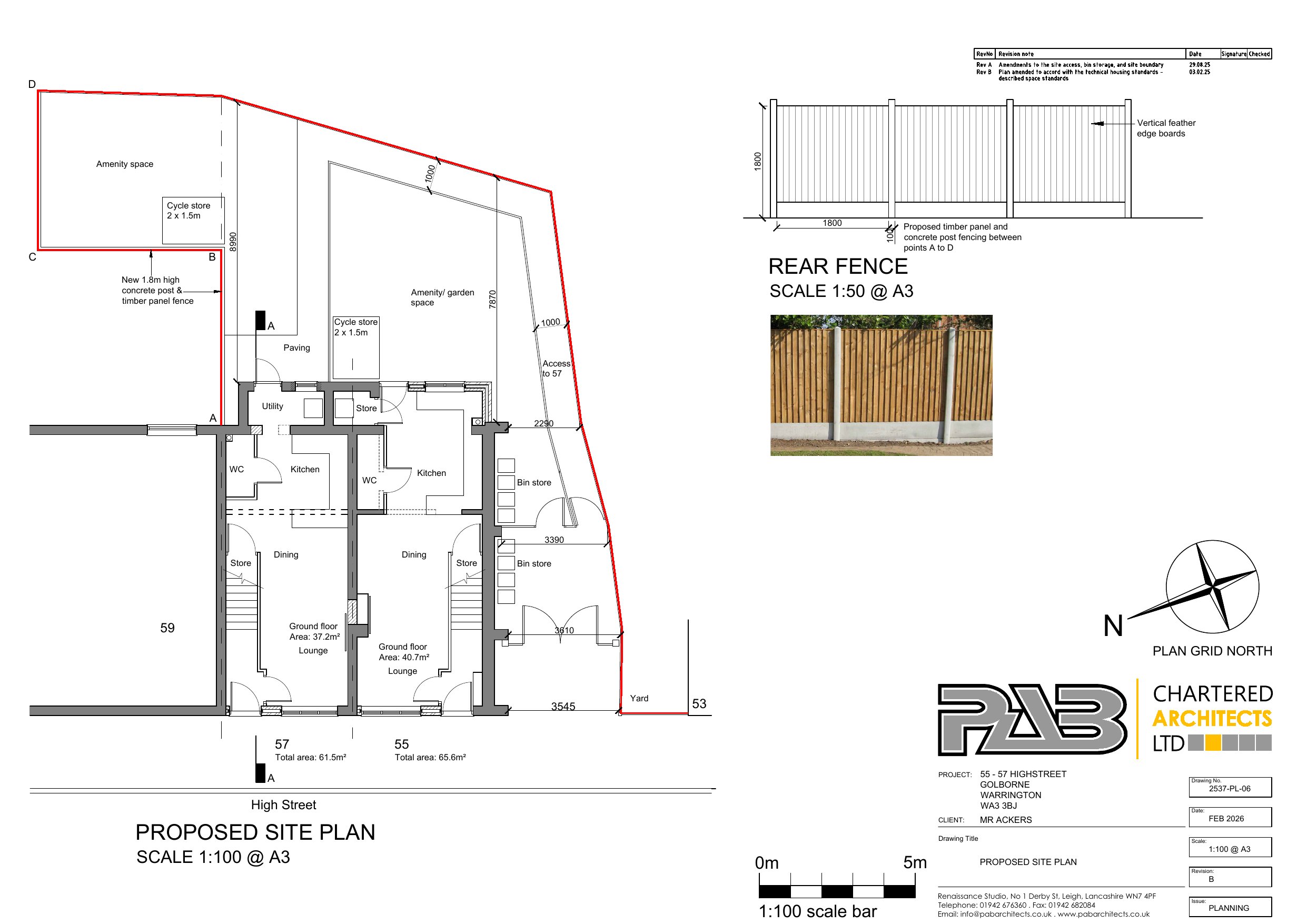
A/25/099844/FULL
Wigan Council
Status
Registered
Change of use
Received
15 Oct 2025
New homes
2
Full proposal
Conversion of two vacant shop premises (Use Class E(a)), to provide two terraced dwellings (Use Class 3) with single storey rear extension to 55 High Street, associated amenity/garden space, together with external alterations including new windows and doors to the front and rear elevations
Documents
2025-68_55_57_HIGHST_GOLBORNE_HERITAGESTATEMENT_ISSUED_11.11.25
Supporting Report
Not yet archived
· Original link
2537-PL-03 EXISTING GROUND AND FIRST FLOOR PLANS
Plans and Drawings
Not yet archived
· Original link
2537-PL-07 REV C - PROPOSED GROUND AND FIRST FLOOR PLANS
Plans and Drawings
Not yet archived
· Original link
2537.DESIGN AND ACCESS STATEMENT 55 TO 57 HIGH STREET
Supporting Report
Not yet archived
· Original link
Have your say
Your comment matters. Councils must consider every representation that raises material planning considerations.