← Back to Wigan Council

Status

Registered
Received 17 Oct 2025
New dwellings n/a

What you can do

Take Action

Make your voice heard. Authorities need to hear from people who support new homes.

Full Proposal

Erection of 41 dwellings with associated parking and landscaping together with public open space, new pedestrian link to public right of way and formation of a new access from Barn lane.

Detail pages

Documents

82-252-R4 BAT SURVEY REPORT LAND AT BARN LANE GOLBORNE
Supporting Report
Not downloaded · Council link
ACCESS ARRANGEMENTS
Plans and Drawings
Not downloaded · Council link
AFFORDABLE HOUSING LOCATION
Plans and Drawings
Not downloaded · Council link
APPLETHWAITE HOUSETYPE PACK GOLBORNE
Plans and Drawings
Not downloaded · Council link
APPLICATIONFORMREDACTED
Application Form
Not downloaded · Council link
AQA FINAL
Supporting Report
Not downloaded · Council link
BARN LANE ARBORICULTURAL IMPACT ASSESSMENT
Supporting Report
Not downloaded · Council link
BARN LANE COVERING LETTER REDACTED
Supporting Report
Not downloaded · Council link
BARN LANE DAS - FINAL
Supporting Report
Not downloaded · Council link
BARN LANE GOLBORNE ENERGY REPORT
Supporting Report
Not downloaded · Council link
BARN LANE PLANNING FOR HEALTH CHECKLIST
Supporting Report
Not downloaded · Council link
BARN LANE SCI 151025
Supporting Report
Not downloaded · Council link
BARN LANE SPS INCLUDING APPENDICES 151025
Supporting Report
Not downloaded · Council link
BIODIVERSITY METRIC TOOL
Supporting Report
Not downloaded · Council link
BNG REPORT DECEMBER 2025
Supporting Report
Not downloaded · Council link
BOUNDARY TREATMENTS
Plans and Drawings
Not downloaded · Council link
CANAL AND RIVER TRUST
Consultee Reply
Not downloaded · Council link
CRIME IMPACT STATEMENT
Supporting Report
Not downloaded · Council link
CROSS SECTION AND STREETSCENE
Plans and Drawings
Not downloaded · Council link
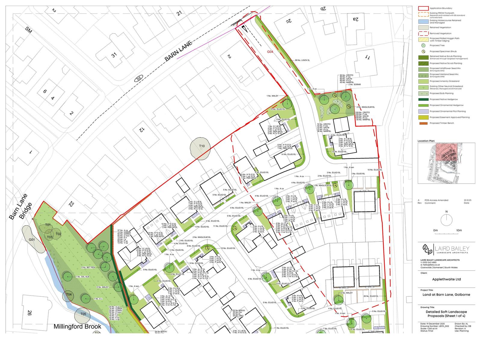
DETAILED SOFT LANDSCAPE PLAN REV 2A
Plans and Drawings
Not downloaded · Council link
DGC DRAINAGE STRATEGY PLAN
Plans and Drawings
Not downloaded · Council link
DRAINAGE STRATEGY PLAN
Plans and Drawings
Not downloaded · Council link
EV CHARGING PLAN
Plans and Drawings
Not downloaded · Council link
FLOOD RISK ASSESSMENT
Supporting Report
Not downloaded · Council link
FRA COMPRESSED
Supporting Report
Not downloaded · Council link
GENERAL ARRANGEMENTS
Plans and Drawings
Not downloaded · Council link
GENERAL ARRANGEMENTS COLOUR
Plans and Drawings
Not downloaded · Council link
GEO ENVIRONMENTAL INVESTIGATION REPORT COMPRESSED
Supporting Report
Not downloaded · Council link
HARD SURFACE MATERIALS
Plans and Drawings
Not downloaded · Council link
INDICATIVE STREET SCENE AND CROSS SECTION
Supporting Report
Not downloaded · Council link
LANDSCAPE STRATEGY REV1
Plans and Drawings
Not downloaded · Council link
LOCATION PLAN 1
Location Plan
Not downloaded · Council link
MINERALS RESOURCE ASSESSMENT FINAL
Supporting Report
Not downloaded · Council link
NOISE IMPACT ASSESSMENT FINAL
Supporting Report
Not downloaded · Council link
ONLINE COMMENT
Public Comment
Not downloaded · Council link
ONLINE COMMENT
Public Comment
Not downloaded · Council link
ONLINE COMMENT
Public Comment
Not downloaded · Council link
ONLINE COMMENT
Public Comment
Not downloaded · Council link
ONLINE COMMENT
Public Comment
Not downloaded · Council link
ONLINE COMMENT
Public Comment
Not downloaded · Council link
ONLINE COMMENT
Public Comment
Not downloaded · Council link
ONLINE COMMENT
Public Comment
Not downloaded · Council link
ONLINE COMMENT
Public Comment
Not downloaded · Council link
ONLINE COMMENT
Public Comment
Not downloaded · Council link
ONLINE COMMENT
Public Comment
Not downloaded · Council link
ONLINE COMMENT
Public Comment
Not downloaded · Council link
ONLINE COMMENT
Public Comment
Not downloaded · Council link
ONLINE COMMENT
Public Comment
Not downloaded · Council link
ONLINE COMMENT
Public Comment
Not downloaded · Council link
ONLINE COMMENT
Public Comment
Not downloaded · Council link
ONLINE COMMENT
Public Comment
Not downloaded · Council link
ORION BUILT HERITAGE TECHNICAL NOTE FINAL
Supporting Report
Not downloaded · Council link
OTTER AND WATER VOLE SURVEY REPORT FINAL
Supporting Report
Not downloaded · Council link
PARKING PLAN
Plans and Drawings
Not downloaded · Council link
PRELIMINARY ECOLOGICAL APPRAISAL FINAL
Supporting Report
Not downloaded · Council link
REFUSE MANAGEMENT
Supporting Report
Not downloaded · Council link
RETAINING WALL LOCATIONS AND DETAILS
Plans and Drawings
Not downloaded · Council link
STREET SCENE AND CROSS SECTION LOCATION
Plans and Drawings
Not downloaded · Council link
SURFACE WATER DRAINAGE STRATEGY AND MAINTENANCE REPORT
Supporting Report
Not downloaded · Council link
TOPOGRAPHICAL SURVEY REV A SHEET 1
Plans and Drawings
Not downloaded · Council link
TOPOGRAPHICAL SURVEY REV A SHEET 2
Plans and Drawings
Not downloaded · Council link
TRANSPORT STATEMENT
Supporting Report
Not downloaded · Council link
TREE CONSTRAINTS REPORT FINAL
Plans and Drawings
Not downloaded · Council link
TREE IMPACT PLAN - FINAL
Plans and Drawings
Not downloaded · Council link
WEB PRESS NOTICE
Supporting Report
Not downloaded · Council link
WIGAN LANDSCAPE MASTERPLAN 09102025
Plans and Drawings
Not downloaded · Council link