← Wigan Council

Status

Registered House extension
Received
Last month
New homes
0

Full proposal

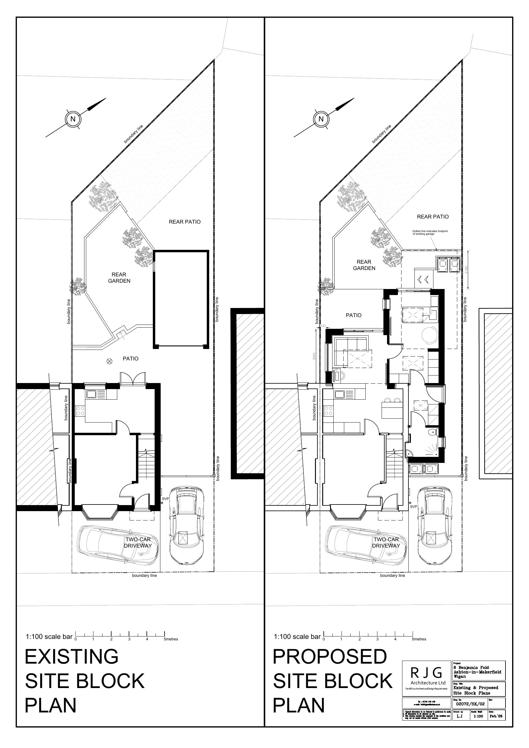
Single storey side and rear extension following demolition of garage

Documents

Plans and Drawings
Archived · Original link
Plans and Drawings
Archived · Original link
Application Form
Archived · Original link
Location Plan
Archived · Original link

Have your say

Your comment matters. Councils must consider every representation that raises material planning considerations.

Write a comment