A/26/100588/FULL
Wigan Council
Status
Registered
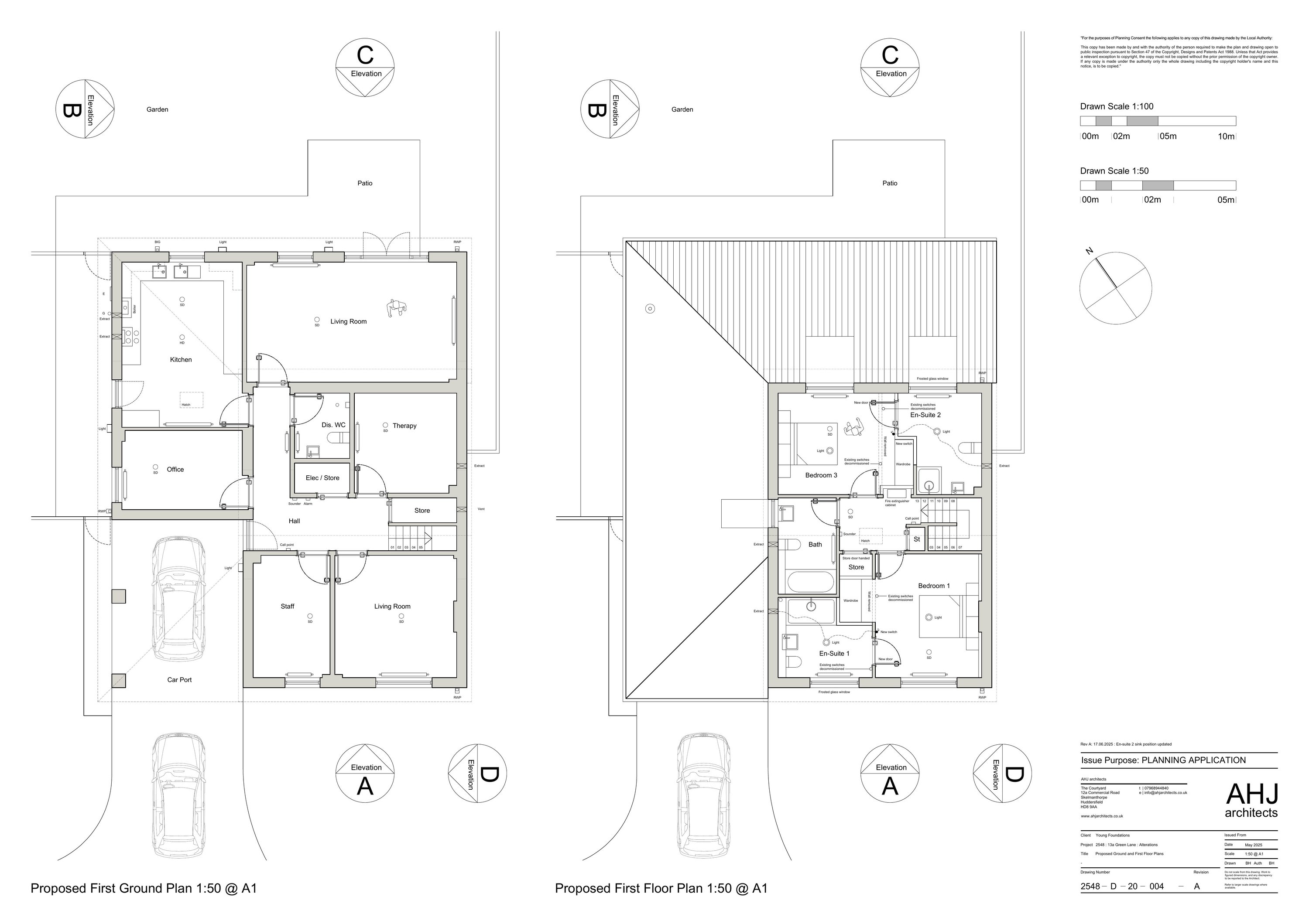
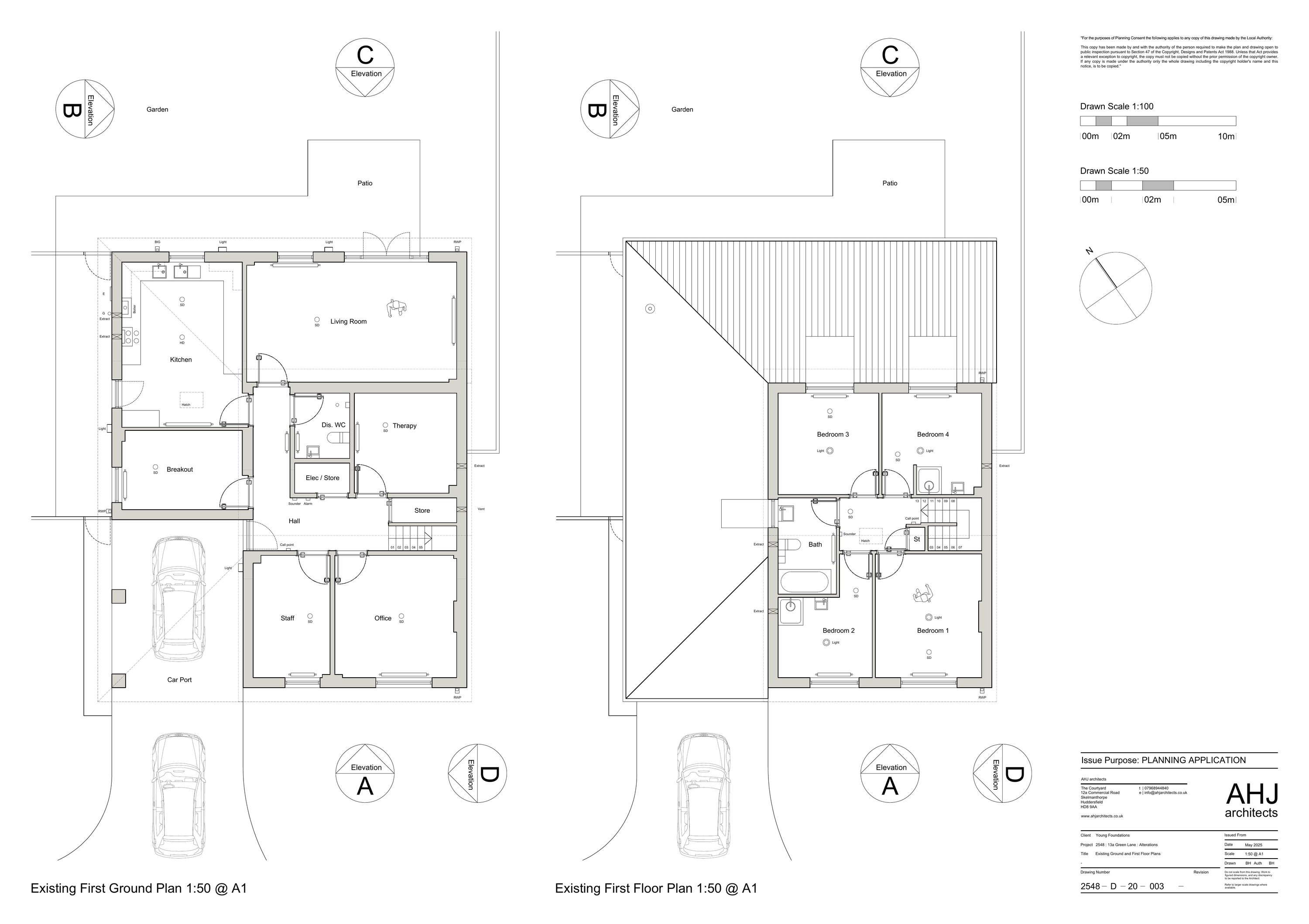
Change of use
Received
Last month
New homes
0
Full proposal
Change of use from dwellinghouse (Use Class C3) to childrens care home for up to two children (Use Class C2)
Documents
Have your say
Your comment matters. Councils must consider every representation that raises material planning considerations.