← Royal Borough of Windsor and Maidenhead

Status

Awaiting decision New housing
Received
30 Apr 2025
New homes
6

Full proposal

Erection of 6no. dwellings, solar panels, 4no. garages, 6no. bin stores, 6no. air source heat pumps, hardstanding, landscaping and new boundary treatment.

Documents

Affordable housing - commuted sum calculation
Supporting Information - General
Not yet archived · Original link
Application form - redacted
Application Forms
Not yet archived · Original link
Arboricultural impact assessment
Plans
Not yet archived · Original link
CIL Documents
CIL Documents
Not yet archived · Original link
Cil form
CIL Documents
Not yet archived · Original link
Covering letter
Correspondence - General
Not yet archived · Original link
Ecology comments
Supporting Information - Ecology
Not yet archived · Original link
Email 15.05.2025
Correspondence - General
Not yet archived · Original link
Email 26.08.2025
Correspondence - General
Not yet archived · Original link
Email 31.07.2025
Correspondence - General
Not yet archived · Original link
Energy strategy
Supporting Information - General
Not yet archived · Original link
Environment agency
Consultee - Comments
Not yet archived · Original link
Environment protection
Consultee - Comments
Not yet archived · Original link
Environmental protection
Consultee - Comments
Not yet archived · Original link
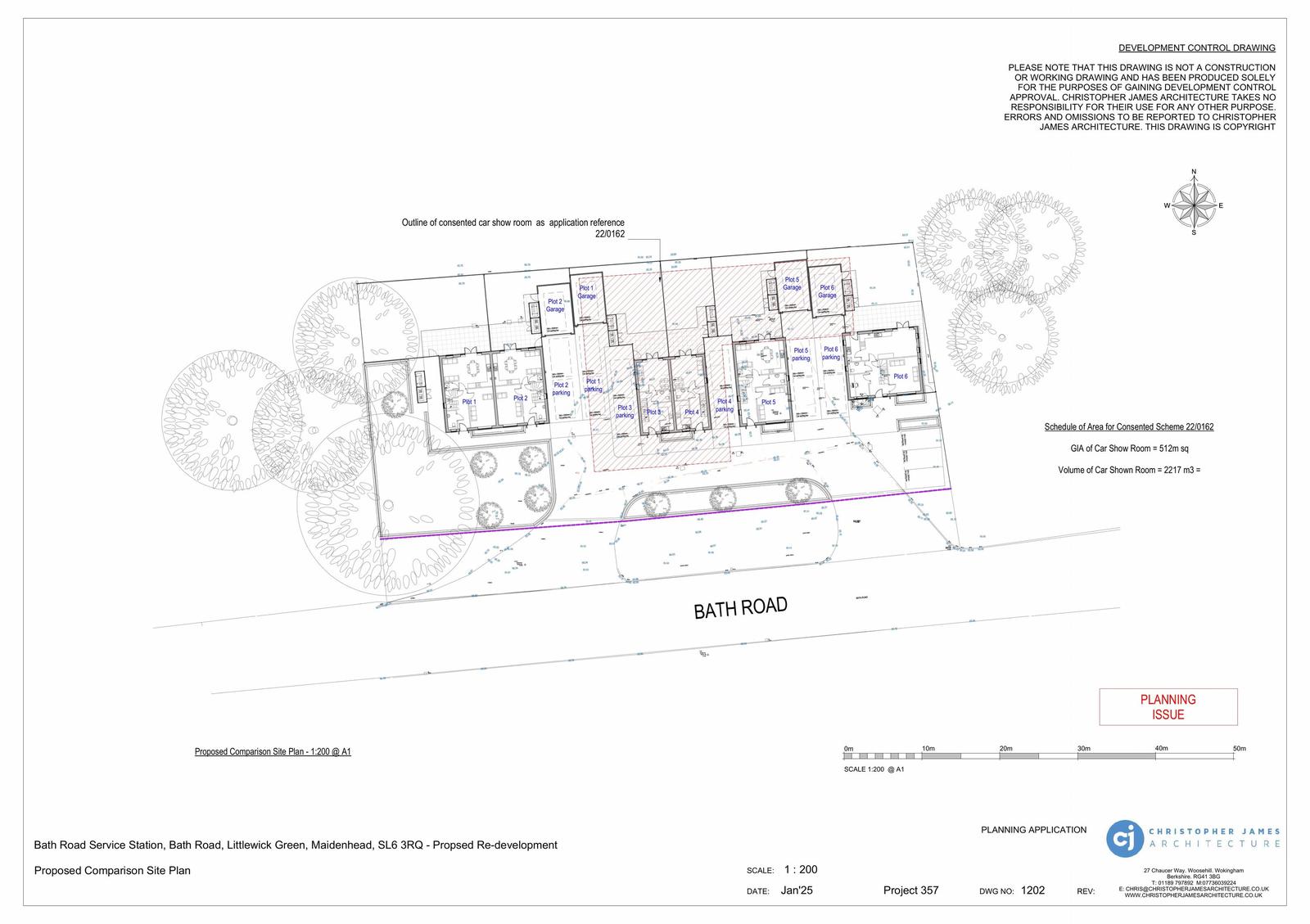
Plans
Archived · Original link
Final groundwater monitoring report
SUDS & drainage
Not yet archived · Original link
Highways
Consultee - Comments
Not yet archived · Original link
History log
Property History
Not yet archived · Original link
Housing comments
Consultee - Comments
Not yet archived · Original link
Hurley parish council comments on planning applications - 19th june 2025
Parish Council Comments
Not yet archived · Original link
Llfa comments
Consultee - Comments
Not yet archived · Original link
Location plan
Plans
Not yet archived · Original link
Planning statement
Planning Statement
Not yet archived · Original link
Proposed bin store elevations
Plans
Not yet archived · Original link
Proposed garage plan and elevations for plot 1 and plot 2
Plans
Not yet archived · Original link
Proposed garage plan and elevations for plot 5 and plot 6
Plans
Not yet archived · Original link
Proposed plot 1 and plot 2 floor plans and elevations
Plans
Not yet archived · Original link
Proposed plot 3 and plot 4 floor plans and elevations
Plans
Not yet archived · Original link
Proposed plot 5 floor plans and elevations
Plans
Not yet archived · Original link
Proposed plot 6 floor plans and elevations
Plans
Not yet archived · Original link
Plans
Archived · Original link
Proposed street scene and 3d views
Plans
Not yet archived · Original link
Site notice photos
Photographs
Not yet archived · Original link
Site notice photos
Photographs
Not yet archived · Original link
Site notice photos
Photographs
Not yet archived · Original link
Small sites metric statutory biodiversity metric
Supporting Information - General
Not yet archived · Original link
Sustainability officer
Consultee - Comments
Not yet archived · Original link
Technical note: biodiversity net gain
Supporting Information - General
Not yet archived · Original link
Transport statement
Supporting Information - Transport
Not yet archived · Original link
Tree survey and arboricultural impact assessment
Supporting Information - Trees
Not yet archived · Original link

Have your say

Your comment matters. Councils must consider every representation that raises material planning considerations.

Write a comment