← Royal Borough of Windsor and Maidenhead

Status

Awaiting decision Commercial
Received
30 May 2025
New homes
0

Full proposal

Demolition of the existing buildings and redevelopment of the site for employment buildings within Use Classes E(G), B2 and B8, surface car parking/service areas, landscaping and associated works.

Documents

Community Comments Object
Archived · Original link
Community Comments Object
Archived · Original link
Community Comments Object
Archived · Original link
Community Comments Object
Archived · Original link
1 public comment
Community Comments Object
Not yet archived · Original link
Community Comments Object
Archived · Original link
Community Comments Object
Archived · Original link
Consultee - Comments
Archived · Original link
Supporting Information - General
Archived · Original link
Supporting Information - General
Archived · Original link
Supporting Information - Flood Risk
Archived · Original link
Application Forms
Archived · Original link
Supporting Information - Trees
Archived · Original link
Supporting Information - General
Archived · Original link
Supporting Information - General
Archived · Original link
Consultee - Comments
Archived · Original link
Supporting Information - General
Archived · Original link
Supporting Information - General
Archived · Original link
CIL Documents
Archived · Original link
Cllr call in to Panel
Archived · Original link
Correspondence - General
Archived · Original link
Design and Access Statement
Archived · Original link
Consultee - Comments
Archived · Original link
Correspondence - General
Archived · Original link
Correspondence - General
Archived · Original link
Correspondence - General
Archived · Original link
Correspondence - General
Archived · Original link
Correspondence - General
Archived · Original link
Correspondence - General
Archived · Original link
Supporting Information - General
Archived · Original link
Supporting Information - General
Archived · Original link
Supporting Information - General
Archived · Original link
Supporting Information - General
Archived · Original link
Supporting Information - General
Archived · Original link
Supporting Information - General
Archived · Original link
Supporting Information - General
Archived · Original link
Supporting Information - General
Archived · Original link
Consultee - Comments
Archived · Original link
Extension of Time
Archived · Original link
Extension of Time
Archived · Original link
Extension of Time
Archived · Original link
Extension of Time
Archived · Original link
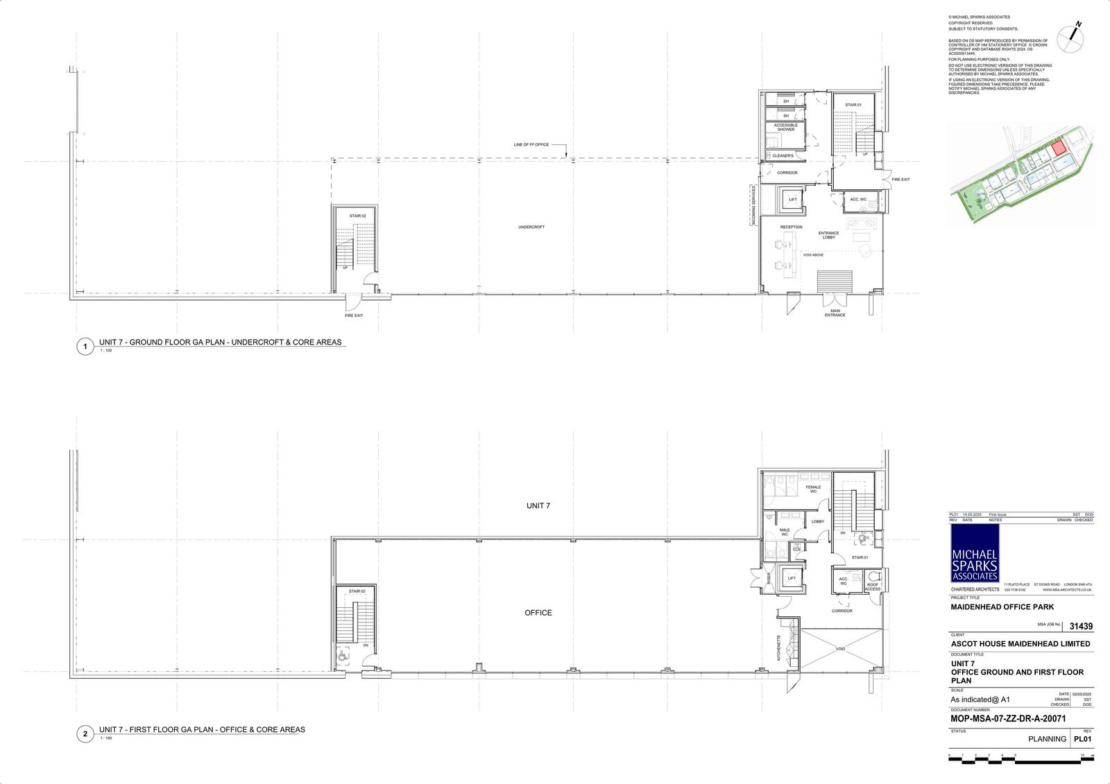
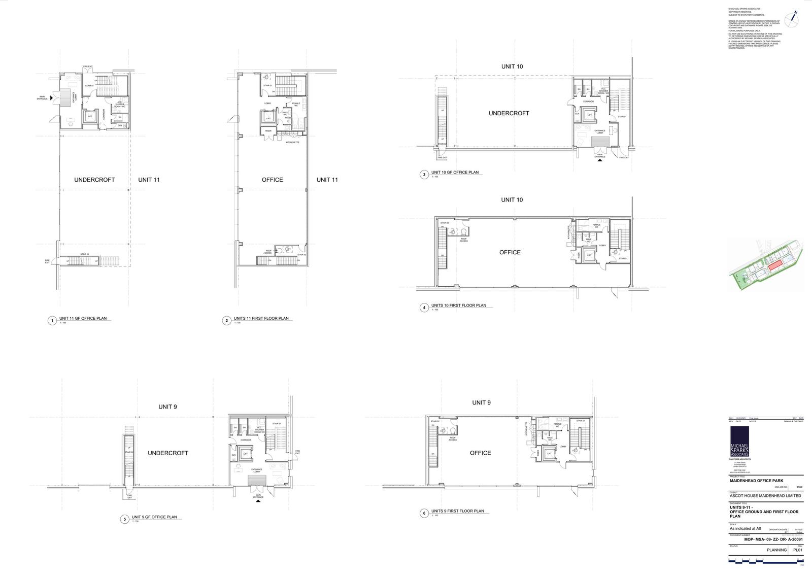
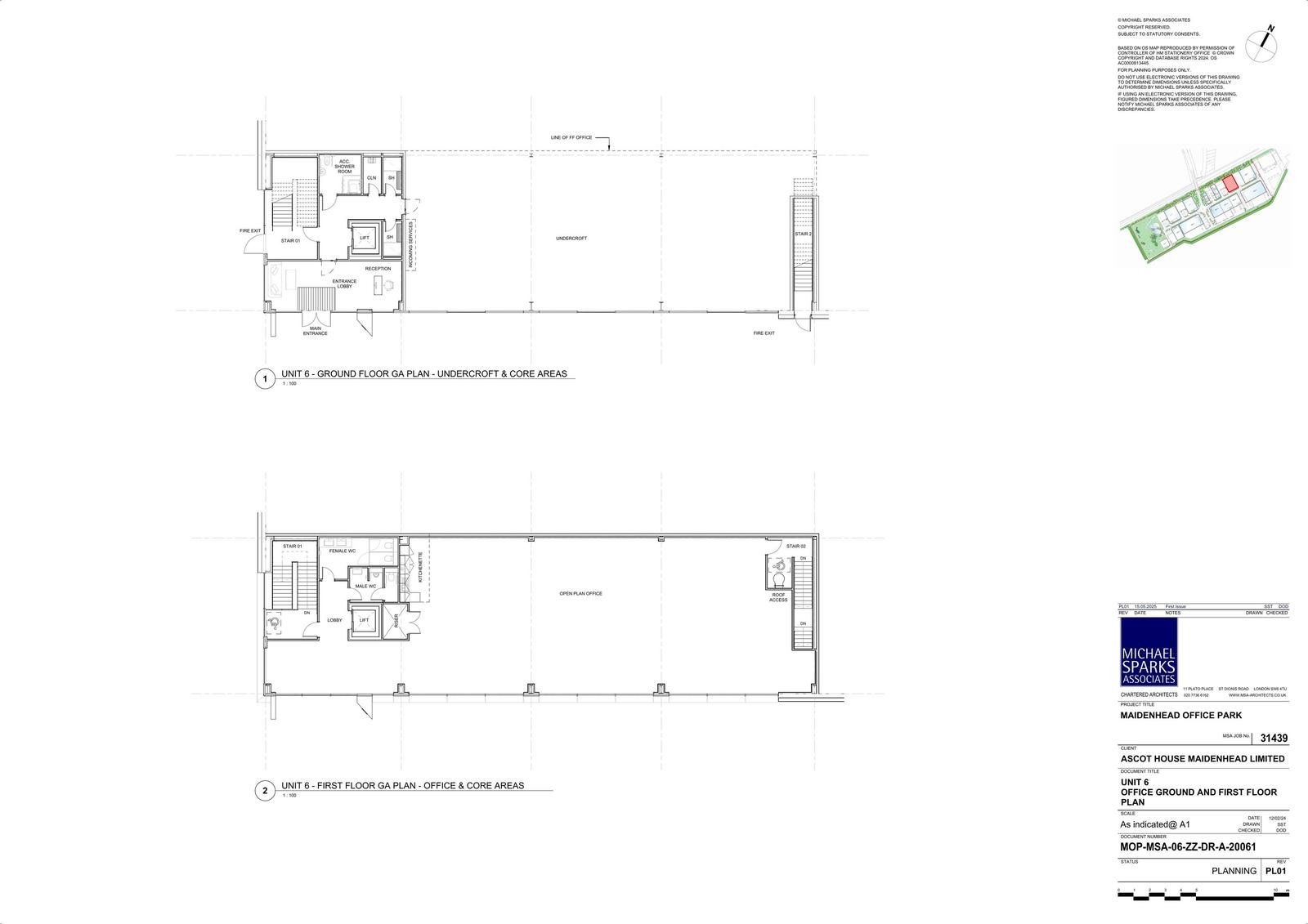
Plans
Archived · Original link
Extension of Time
Archived · Original link
Supporting Information - General
Archived · Original link
Supporting Information - General
Archived · Original link
Supporting Information - General
Archived · Original link
Supporting Information - Flood Risk
Archived · Original link
Supporting Information - Flood Risk
Archived · Original link
Supporting Information - Flood Risk
Archived · Original link
Additional Plans
Archived · Original link
Supporting Information - Flood Risk
Archived · Original link
Supporting Information - Transport
Archived · Original link
Supporting Information - General
Archived · Original link
Property History
Archived · Original link
Parish Council Comments
Archived · Original link
Consultee - Comments
Archived · Original link
Supporting Information - Landscape
Archived · Original link
Supporting Information - Landscape
Archived · Original link
Supporting Information - Landscape
Archived · Original link
Supporting Information - Landscape
Archived · Original link
Supporting Information - Landscape
Archived · Original link
Supporting Information - Landscape
Archived · Original link
Consultee - Comments
Archived · Original link
Consultee - Comments
Archived · Original link
Consultee - Comments
Archived · Original link
Supporting Information - General
Archived · Original link
Consultee - Comments
Archived · Original link
Consultee - Comments
Archived · Original link
Consultee - Comments
Archived · Original link
Neighbour Notification List
Archived · Original link
Consultee - Comments
Archived · Original link
Supporting Information - General
Archived · Original link
Part_l_2021_gla_carbon_emission_reporting_spreadsheet
Supporting Information - General
Not yet archived · Original link
Planning Statement
Archived · Original link
Supporting Information - General
Archived · Original link
Supporting Information - General
Archived · Original link
Supporting Information - General
Archived · Original link
Supporting Information - General
Archived · Original link
Community Comments General
Archived · Original link
Plans
Archived · Original link
Plans
Archived · Original link
Supporting Information - General
Archived · Original link
Supporting Information - General
Archived · Original link
Consultee - Comments
Archived · Original link
Consultee - Comments
Archived · Original link
Supporting Information - General
Archived · Original link
Supporting Information - Transport
Archived · Original link
Supporting Information - Transport
Archived · Original link
Supporting Information - Transport
Archived · Original link
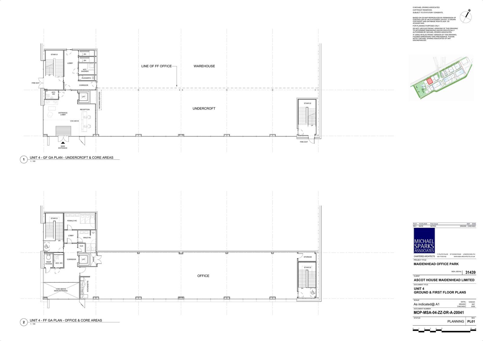
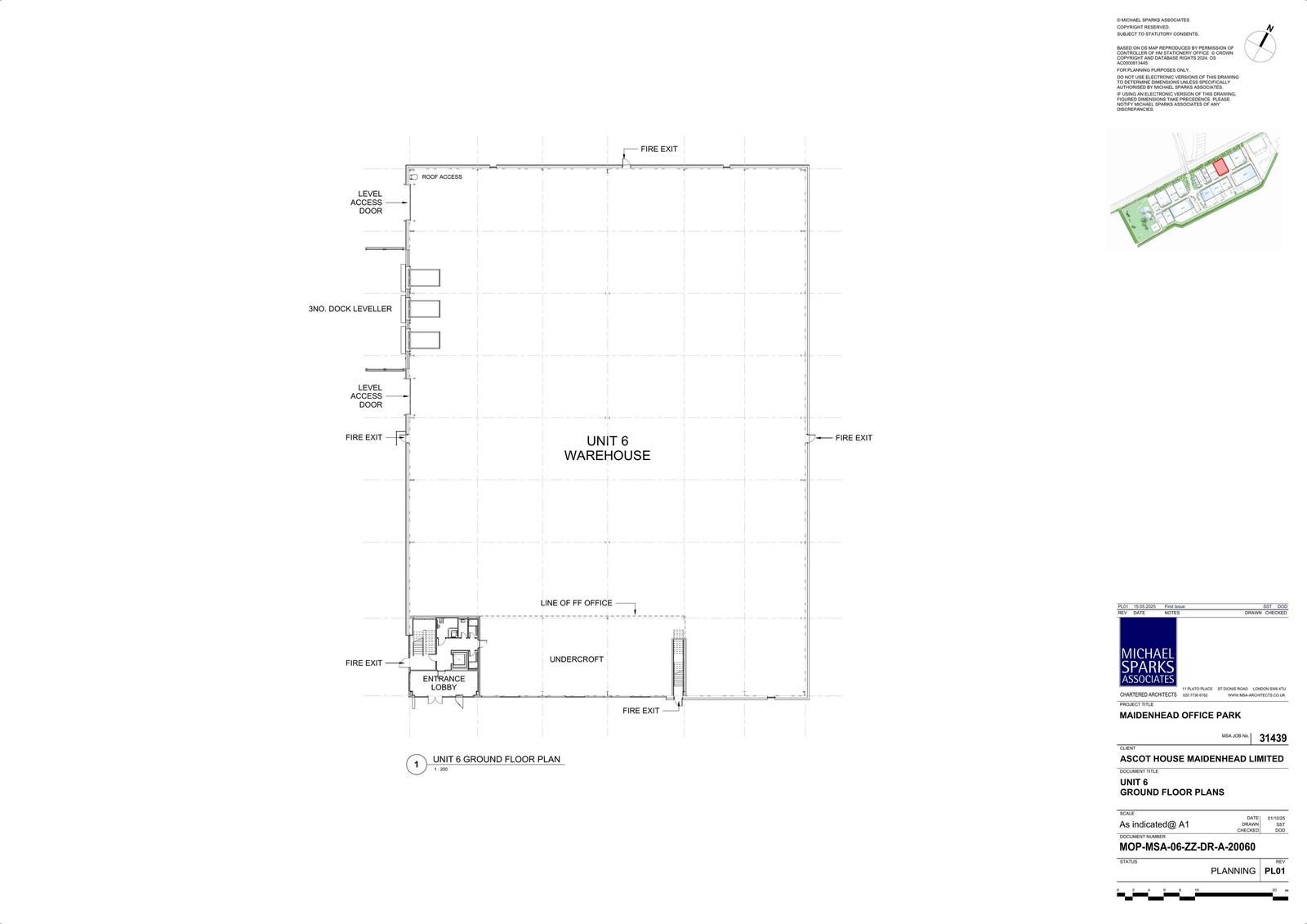
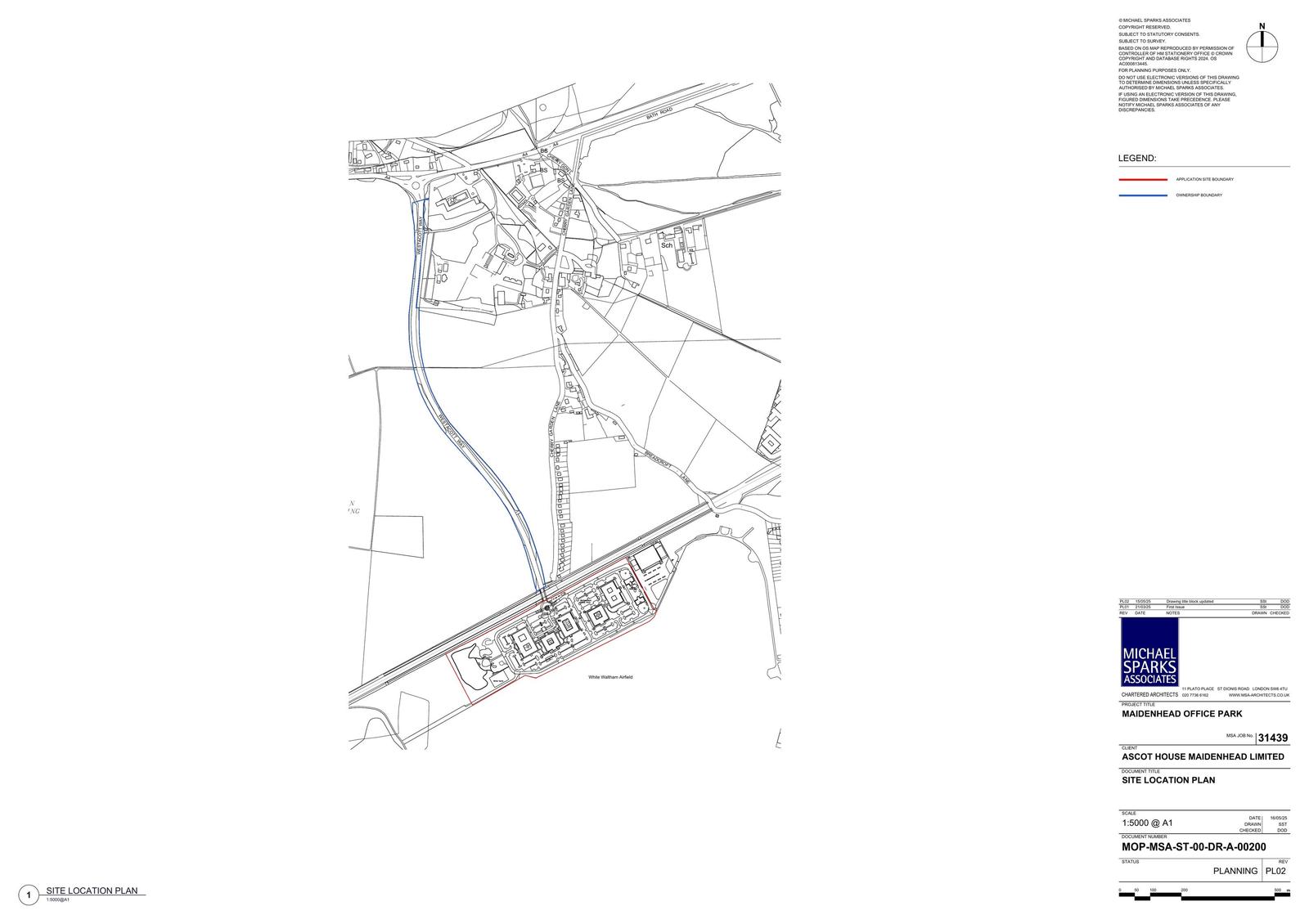
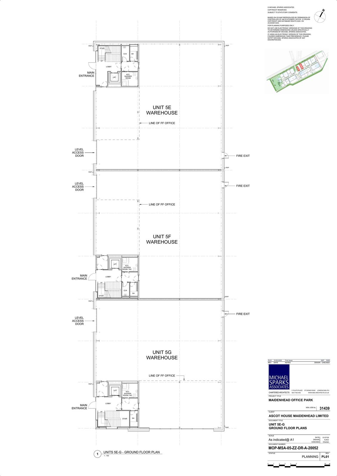
Plans
Archived · Original link
Additional Plans
Archived · Original link
Plans
Archived · Original link
Plans
Archived · Original link
Plans
Archived · Original link
Plans
Archived · Original link
Plans
Archived · Original link
Plans
Archived · Original link
Plans
Archived · Original link

Have your say

Your comment matters. Councils must consider every representation that raises material planning considerations.

Write a comment