← Royal Borough of Windsor and Maidenhead

Status

Awaiting decision New housing
Received
05 Jun 2025
New homes
3

Full proposal

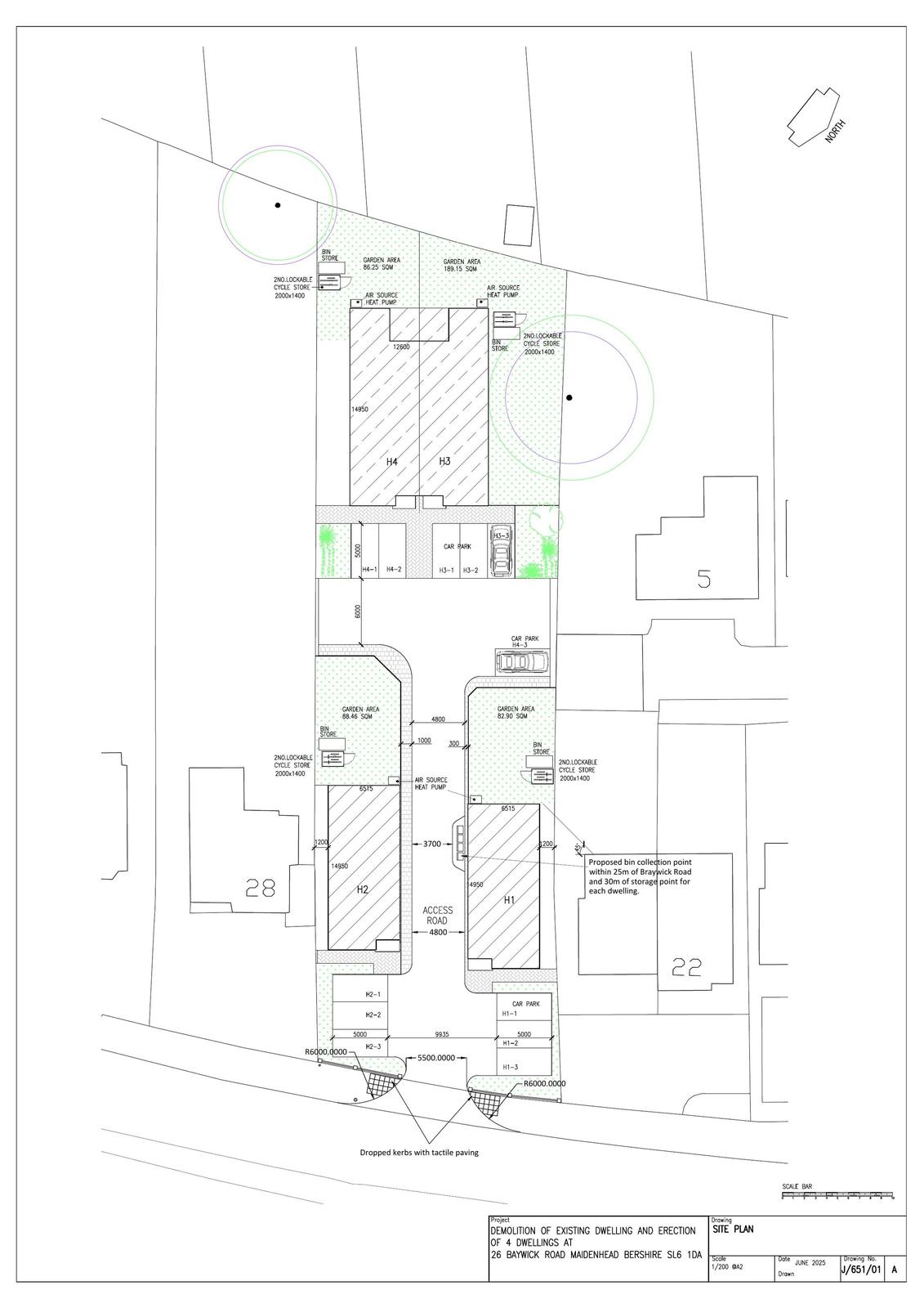
3 no. dwellings with associated access, hardstanding, cycle and refuse, following demolition of existing dwelling

Documents

1 public comment
Community Comments Object
Not yet archived · Original link
651-01
Superseded Plans
Not yet archived · Original link
Application form
Application Forms
Not yet archived · Original link
Application form - redacted
Application Forms
Not yet archived · Original link
Arboricultural impact assessment, method statement & tree protection plan
Supporting Information - Trees
Not yet archived · Original link
Biodiversity net gain assessment
Supporting Information - General
Not yet archived · Original link
Bng
Supporting Information - General
Not yet archived · Original link
Cil form
CIL Documents
Not yet archived · Original link
Consultee - Comments
Consultee - Comments
Not yet archived · Original link
Consultee - Comments
Consultee - Comments
Not yet archived · Original link
Daylight & sunlight report
Supporting Information - General
Not yet archived · Original link
Design rationale & planting specification
Supporting Information - Trees
Not yet archived · Original link
Ecology comment
Consultee - Comments
Not yet archived · Original link
Elevations
Superseded Plans
Not yet archived · Original link
Elevations
Amended Plans
Not yet archived · Original link
Elevations
Superseded Plans
Not yet archived · Original link
Elevations
Superseded Plans
Not yet archived · Original link
Elevations
Amended Plans
Not yet archived · Original link
Elevations
Amended Plans
Not yet archived · Original link
Energy statement
Supporting Information - General
Not yet archived · Original link
Energy statement
Supporting Information - General
Not yet archived · Original link
Environment protection
Consultee - Comments
Not yet archived · Original link
Existing and proposed street scene
Superseded Plans
Not yet archived · Original link
Existing and proposed street scene
Amended Plans
Not yet archived · Original link
Existing elevations
Superseded Plans
Not yet archived · Original link
Existing elevations
Superseded Plans
Not yet archived · Original link
Existing plans
Superseded Plans
Not yet archived · Original link
Existing topographic plan
Superseded Plans
Not yet archived · Original link
Extension of time email
Correspondence - General
Not yet archived · Original link
First floor plan
Amended Plans
Not yet archived · Original link
Flood risk assessment
Supporting Information - Flood Risk
Not yet archived · Original link
Floor plans
Amended Plans
Not yet archived · Original link
Gla carbon emissions reporting spreadsheet
Supporting Information - General
Not yet archived · Original link
Ground floor plan
Amended Plans
Not yet archived · Original link
Highways
Consultee - Comments
Not yet archived · Original link
Highways officer
Consultee - Comments
Not yet archived · Original link
History log
Property History
Not yet archived · Original link
House 1 design stage report
Supporting Information - General
Not yet archived · Original link
House 2 design stage report
Supporting Information - General
Not yet archived · Original link
House 3 design stage report
Supporting Information - General
Not yet archived · Original link
House 4 design stage report
Supporting Information - General
Not yet archived · Original link
Llfa comment
Consultee - Comments
Not yet archived · Original link
Llfa comment
Consultee - Comments
Not yet archived · Original link
Location plan
Plans
Not yet archived · Original link
Location plan
Plans
Not yet archived · Original link
Loft floor plan
Amended Plans
Not yet archived · Original link
Materials schedule
Supporting Information - General
Not yet archived · Original link
Neighbour notification list
Neighbour Notification List
Not yet archived · Original link
Network and traffic management - highway team
Consultee - Comments
Not yet archived · Original link
Planning, design & access statement
Design and Access Statement
Not yet archived · Original link
Plans
Superseded Plans
Not yet archived · Original link
Plans
Superseded Plans
Not yet archived · Original link
Plans
Superseded Plans
Not yet archived · Original link
Re drainage - email from applicant
Correspondence - General
Not yet archived · Original link
Roof and loft plans
Amended Plans
Not yet archived · Original link
Roof plan
Amended Plans
Not yet archived · Original link
Section a-a
Amended Plans
Not yet archived · Original link
Sections
Superseded Plans
Not yet archived · Original link
Semi left side house easy pv project report.
Supporting Information - General
Not yet archived · Original link
Semi right side house easy pv project report
Design and Access Statement
Not yet archived · Original link
Superseded Plans
Archived · Original link
Amended Plans
Archived · Original link
Summary for input data
Supporting Information - General
Not yet archived · Original link
Summary for input data
Supporting Information - General
Not yet archived · Original link
Summary for input data
Supporting Information - General
Not yet archived · Original link
Sustainability officer
Consultee - Comments
Not yet archived · Original link
Sustainability officer
Consultee - Comments
Not yet archived · Original link
Sustainability officer
Consultee - Comments
Not yet archived · Original link
Sustainable drainage assessment
SUDS & drainage
Not yet archived · Original link
Swept path analysis of a large car
Amended Plans
Not yet archived · Original link
Thames water - letter from applicant re connection
Correspondence - General
Not yet archived · Original link
Transport note
Supporting Information - Transport
Not yet archived · Original link
Wed mar 19 2025 easy pv project report (1)
Supporting Information - General
Not yet archived · Original link

Have your say

Your comment matters. Councils must consider every representation that raises material planning considerations.

Write a comment