← Royal Borough of Windsor and Maidenhead
25/03155/FULL
Royal Borough of Windsor and Maidenhead
Status
Awaiting decision
Change of use
Received
02 Dec 2025
New homes
12
Full proposal
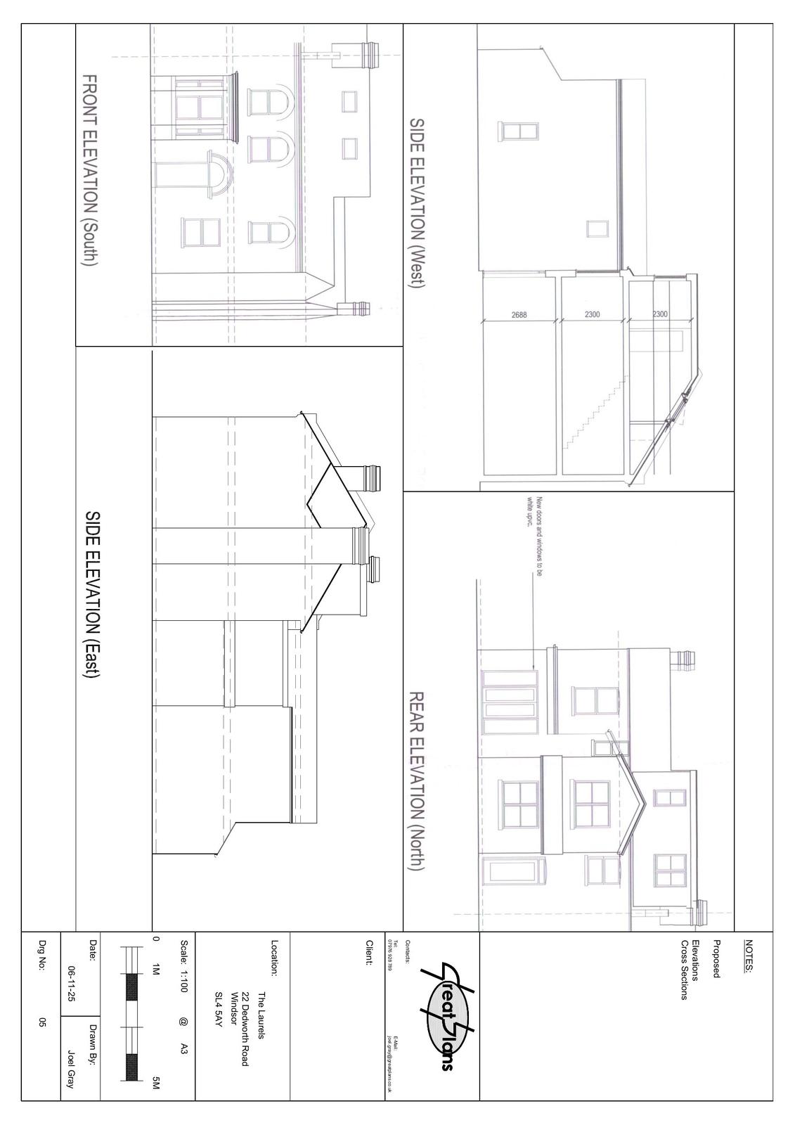
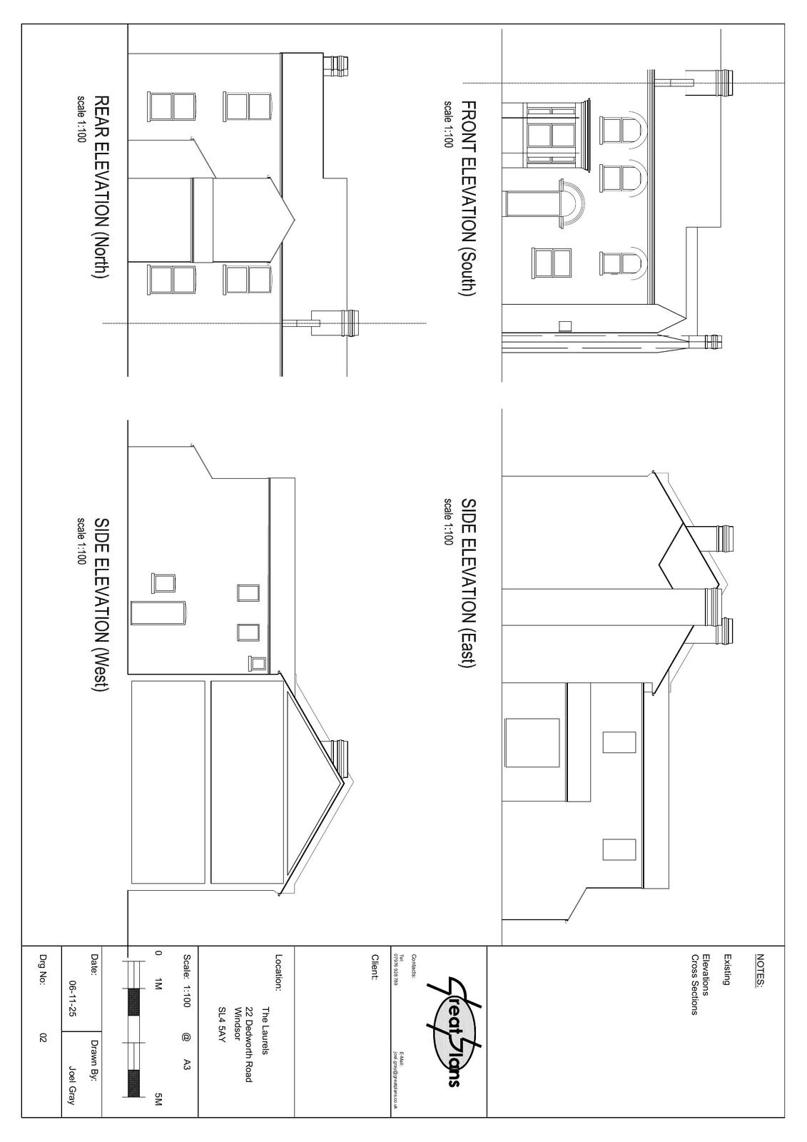
Part change of use to a 12 rooms 12 person HMO, part single part two storey rear/side extension, 1no. rear dormer, alterations to fenestration and 1no. bicycle storage.
Documents
Have your say
Your comment matters. Councils must consider every representation that raises material planning considerations.