← Royal Borough of Windsor and Maidenhead

Status

Awaiting decision Other
Received
09 Dec 2025
New homes
0

Full proposal

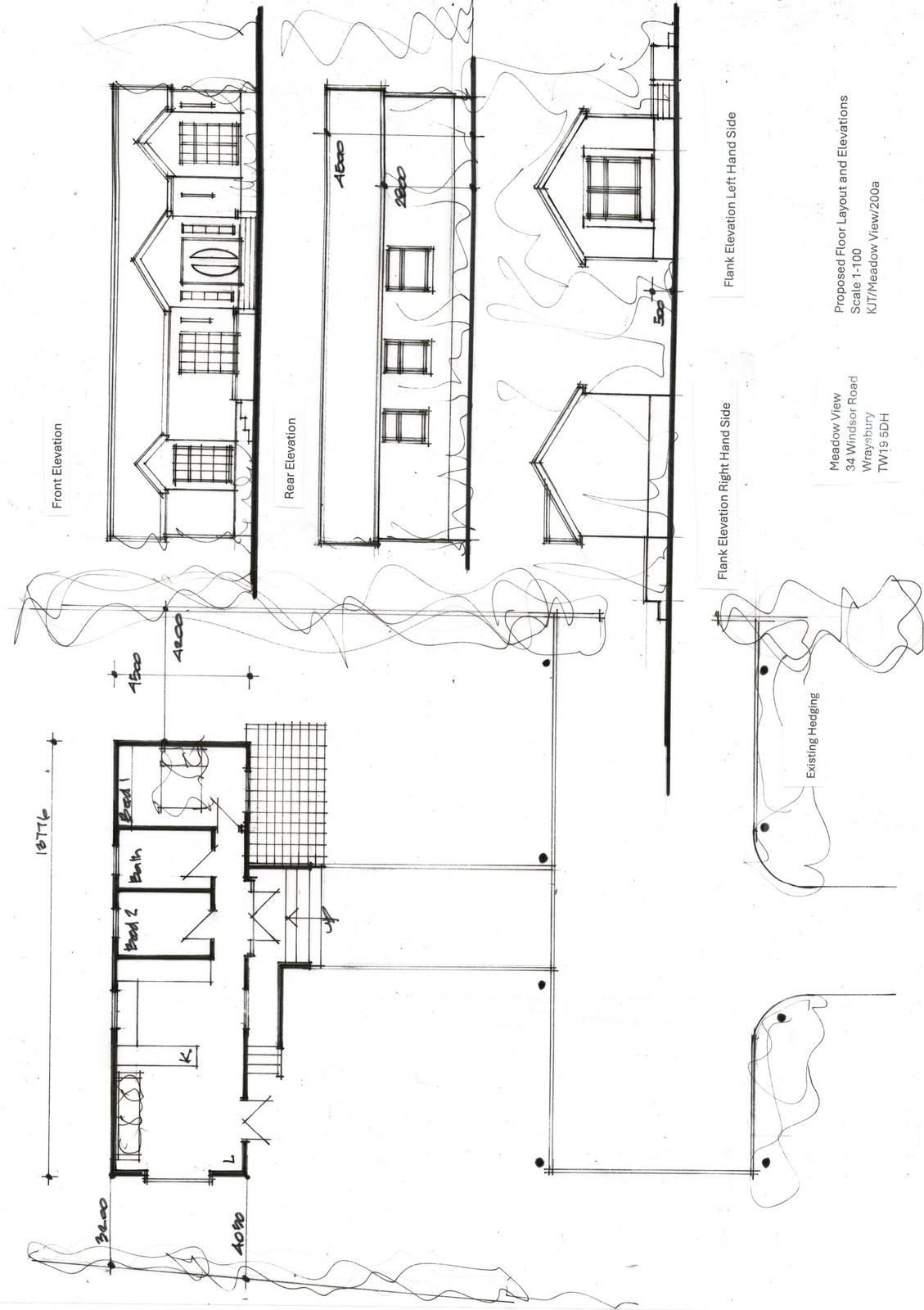
Siting of 1no. raised mobile home ancillary to the main dwellings and hardstanding (Retrospective).

Have your say

Your comment matters. Councils must consider every representation that raises material planning considerations.

Write a comment