← Royal Borough of Windsor and Maidenhead
25/03375/FULL
Royal Borough of Windsor and Maidenhead
Status
Awaiting decision
House extension
Received
22 Dec 2025
New homes
0
Full proposal
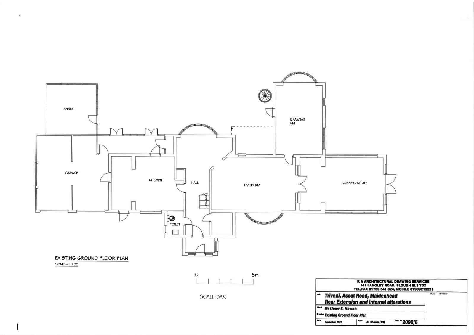
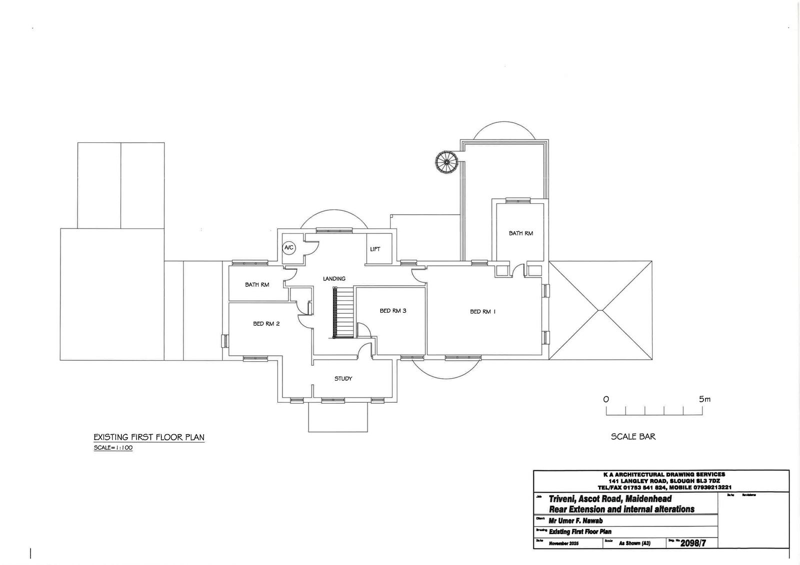
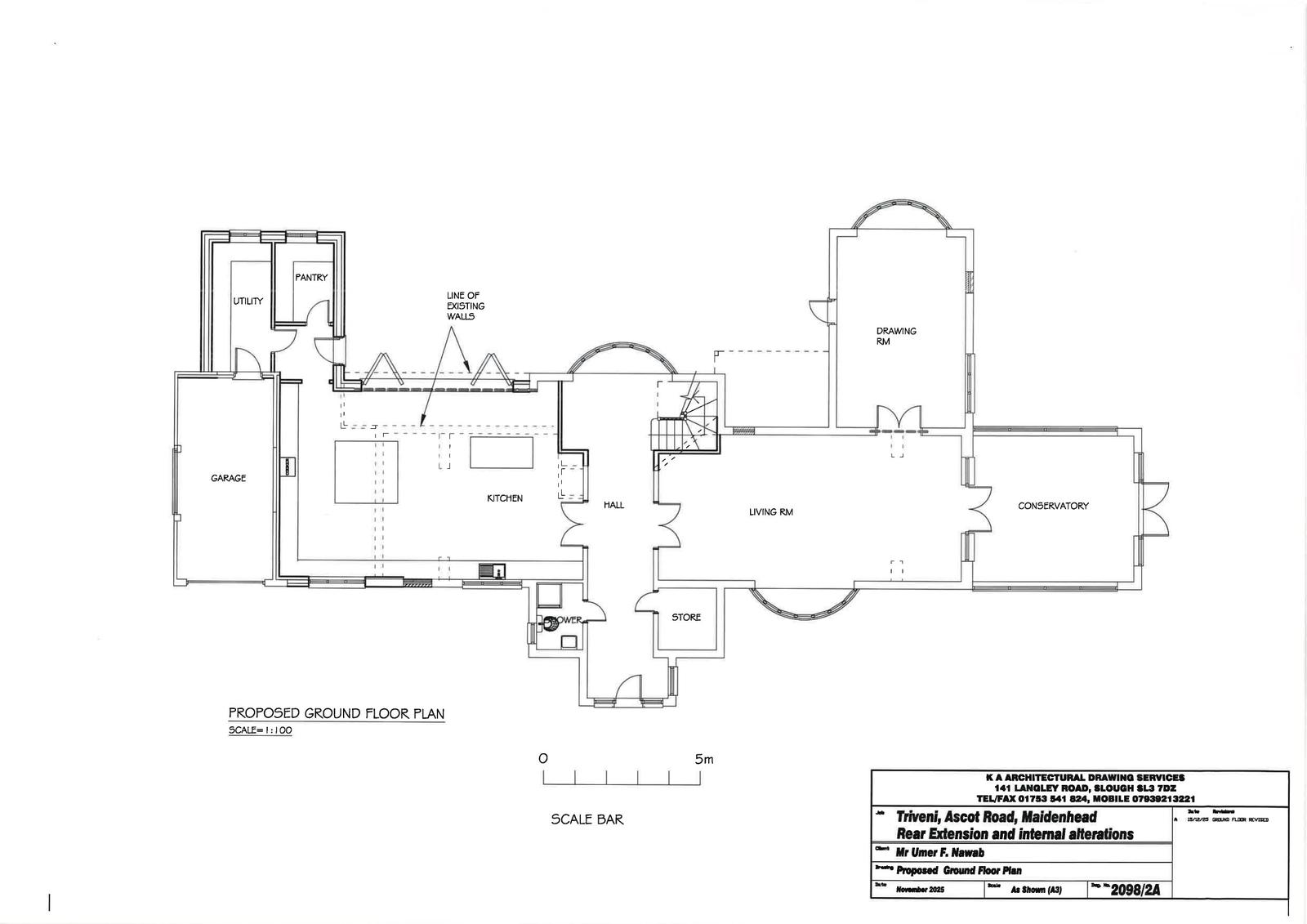
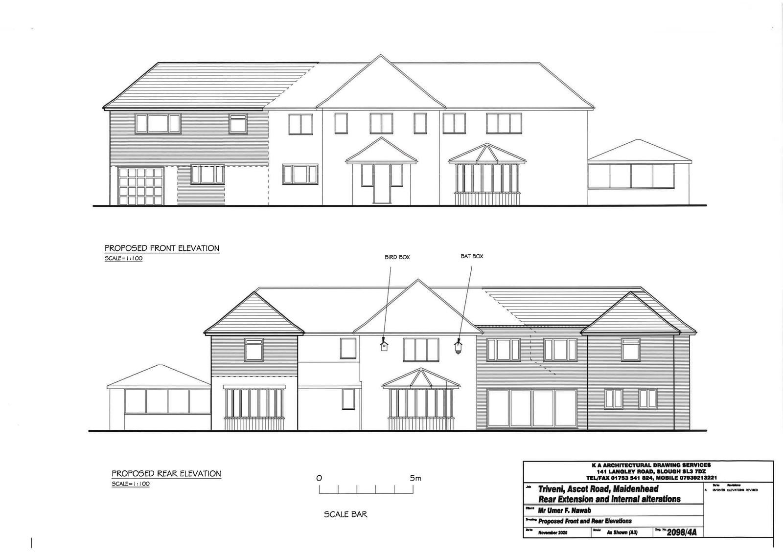
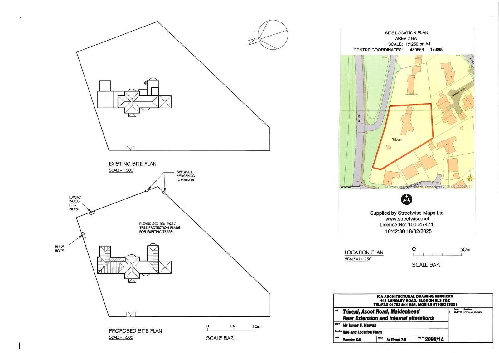
Part two storey, part first floor side/rear extension, first floor rear extension, part garage conversion and alterations to fenestration.
Documents
Have your say
Your comment matters. Councils must consider every representation that raises material planning considerations.