← Royal Borough of Windsor and Maidenhead

Status

Awaiting decision Change of use
Received
22 Dec 2025
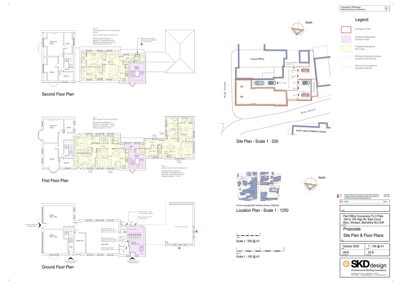
New homes
3

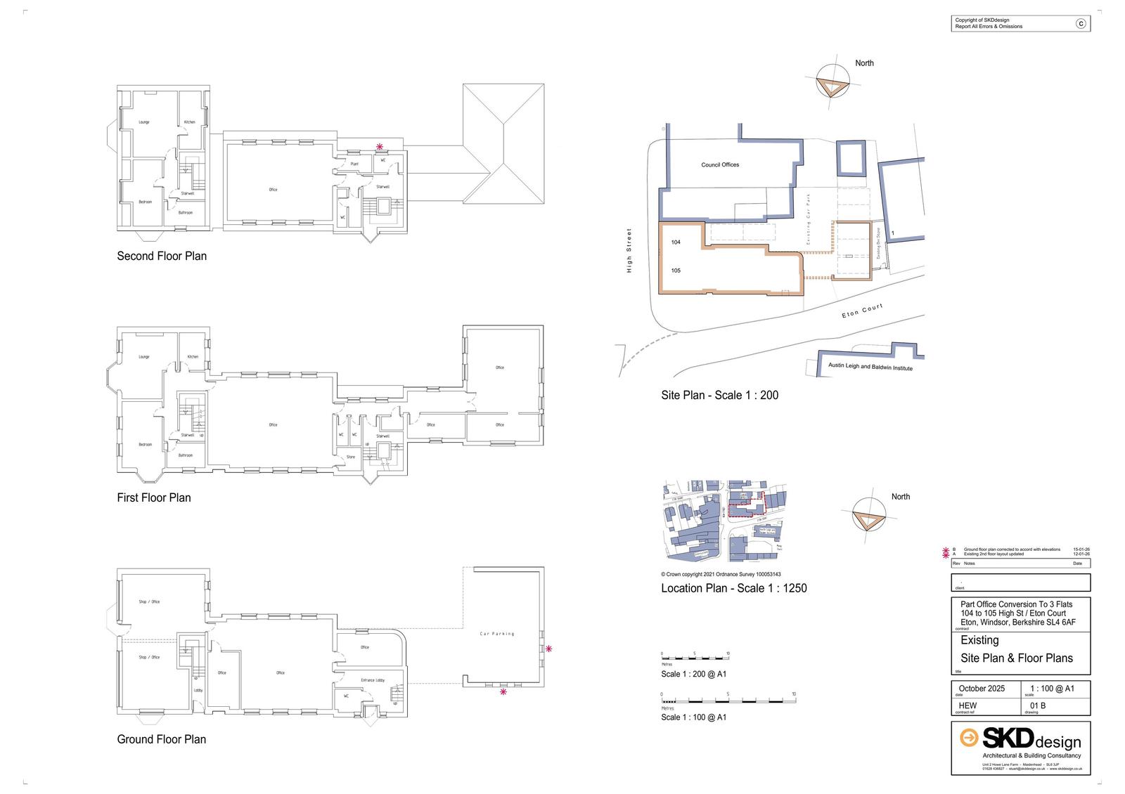
Full proposal

Partial conversion and change of use of the existing first and second floor offices to create 2no. two bedroom flats and 1no. one bedroom flat with access to a ground floor communal entrance and cycle store.

Documents

Design and Access Statement
Archived · Original link
Plans
Archived · Original link
Amended Plans
Archived · Original link
Amended Plans
Archived · Original link
Sustainability
Consultee - Comments
Not yet archived · Original link

Have your say

Your comment matters. Councils must consider every representation that raises material planning considerations.

Write a comment