← Royal Borough of Windsor and Maidenhead
26/00070/FULL
Royal Borough of Windsor and Maidenhead
Status
Awaiting decision
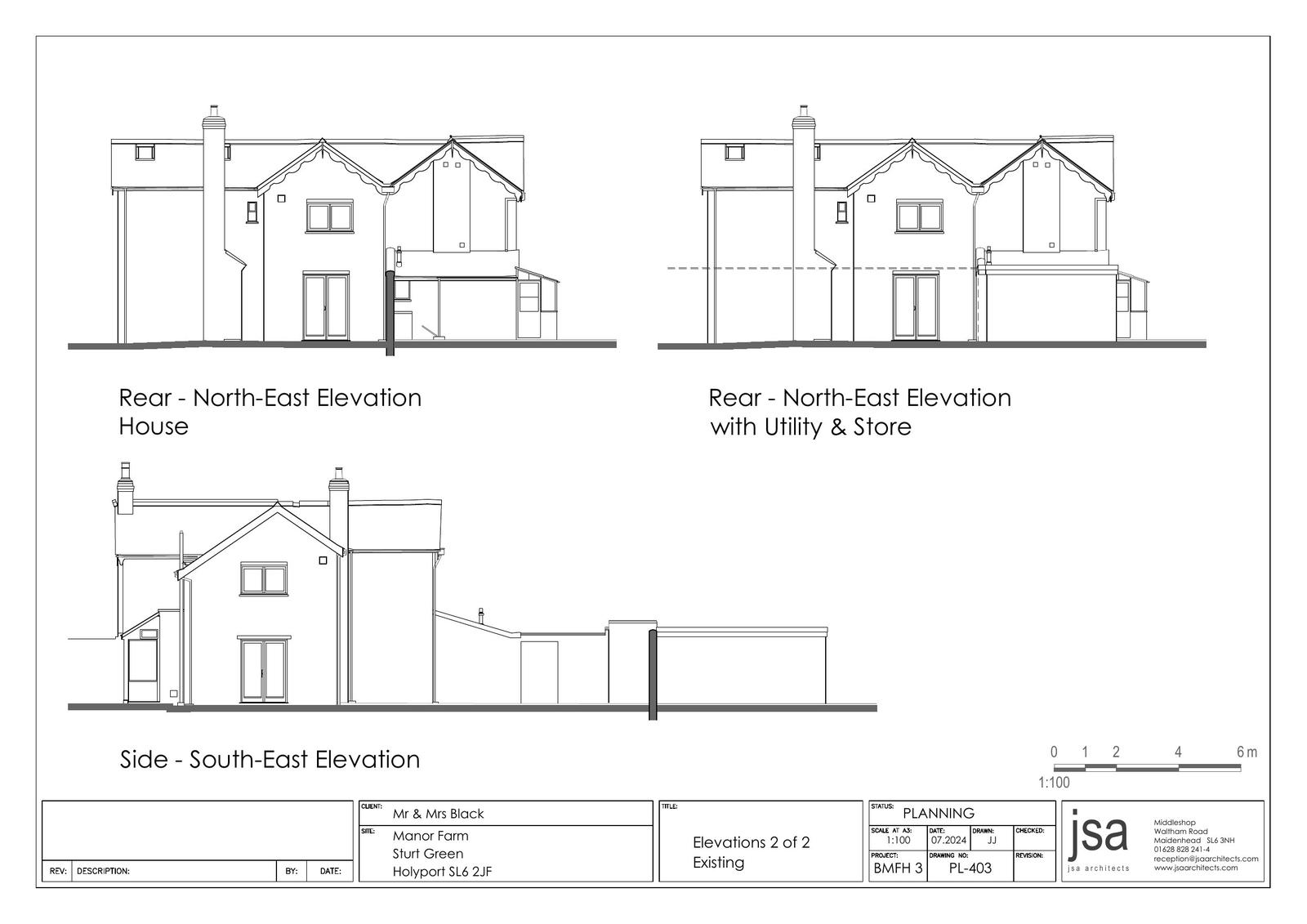
House extension
Received
12 Jan 2026
New homes
0
Full proposal
Part two storey part first floor front/side extension following demolition of existing elements.
Documents
Have your say
Your comment matters. Councils must consider every representation that raises material planning considerations.