← Royal Borough of Windsor and Maidenhead
26/00144/FULL
Royal Borough of Windsor and Maidenhead
Status
Awaiting decision
Change of use
Received
20 Jan 2026
New homes
0
Full proposal
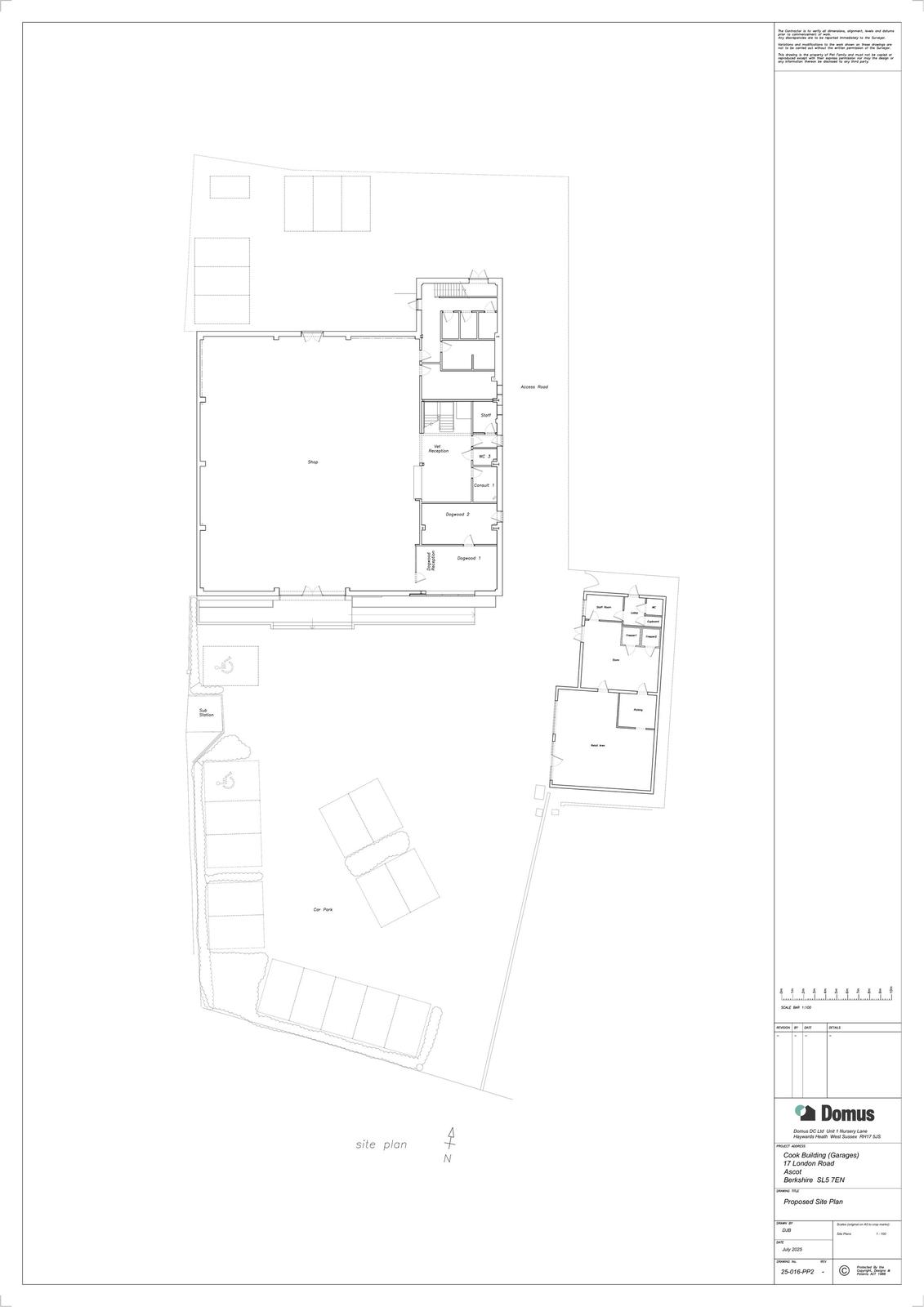
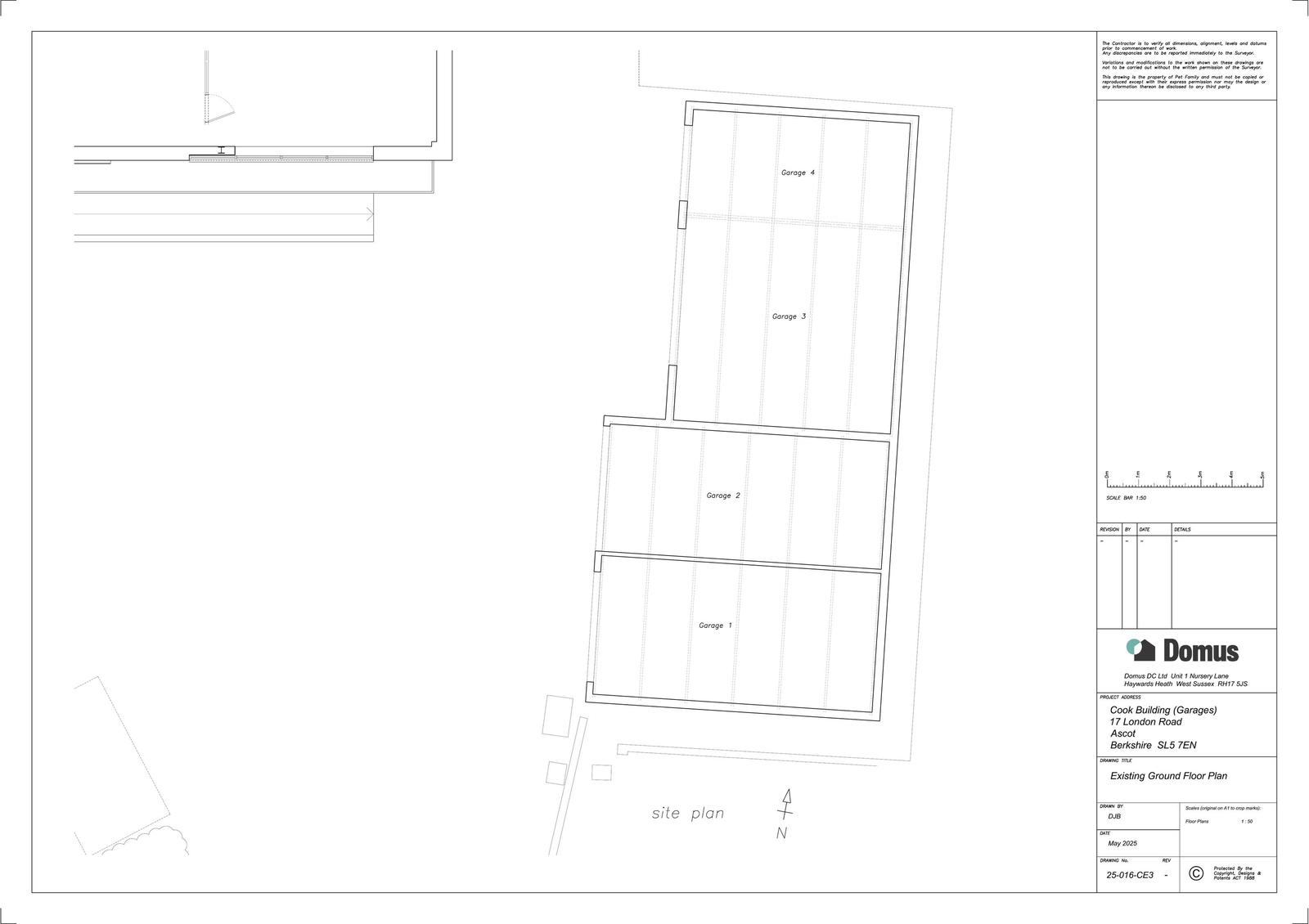
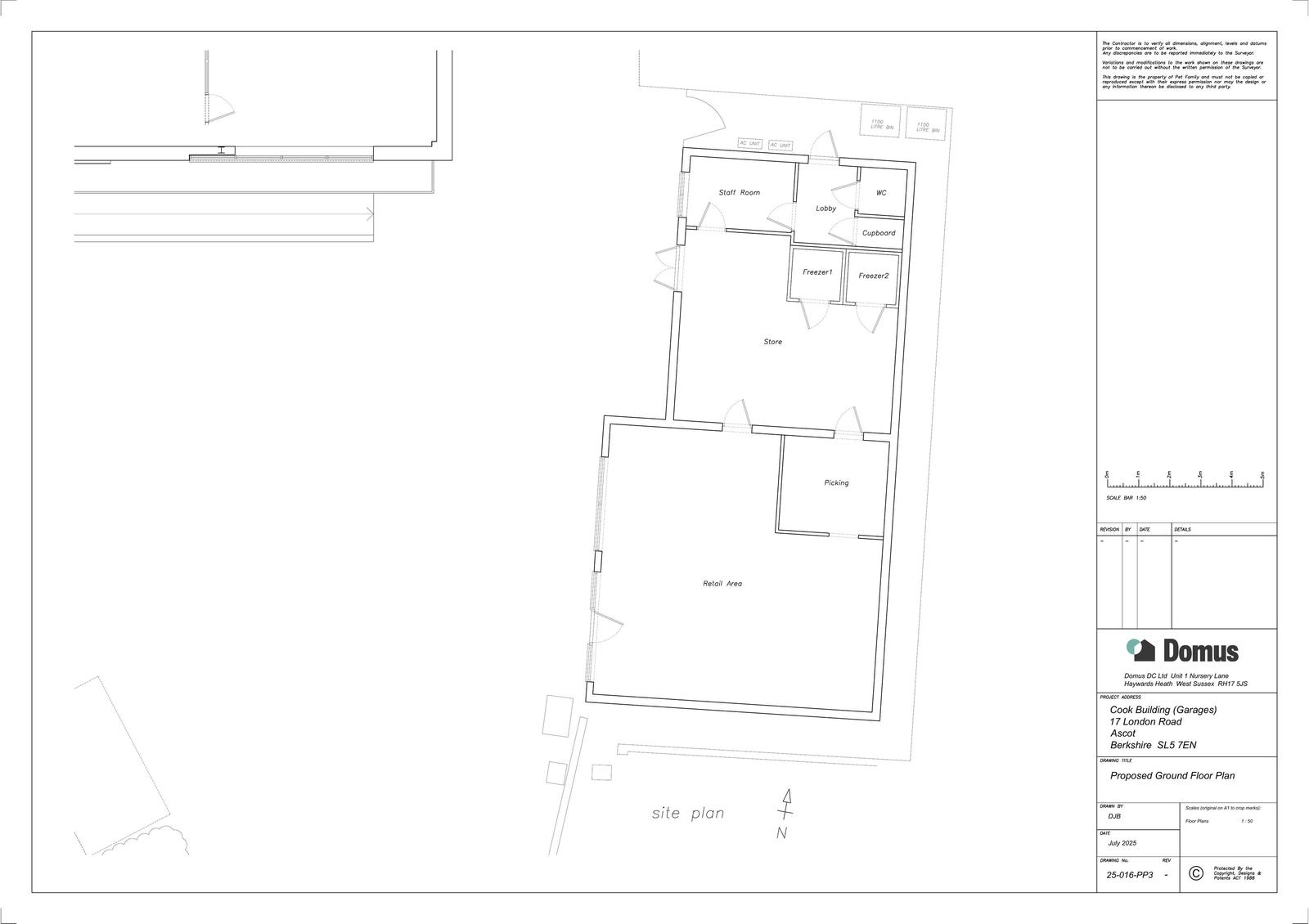
Change of use from class B2 to class E, new roof, new shopfront, signage, 2no. AC units and gate and alterations to fenestration following part demolition of existing element.
Documents
Have your say
Your comment matters. Councils must consider every representation that raises material planning considerations.