← Royal Borough of Windsor and Maidenhead
26/00518/FULL
Royal Borough of Windsor and Maidenhead
Status
Awaiting decision
House extension
Received
Last month
New homes
0
Full proposal
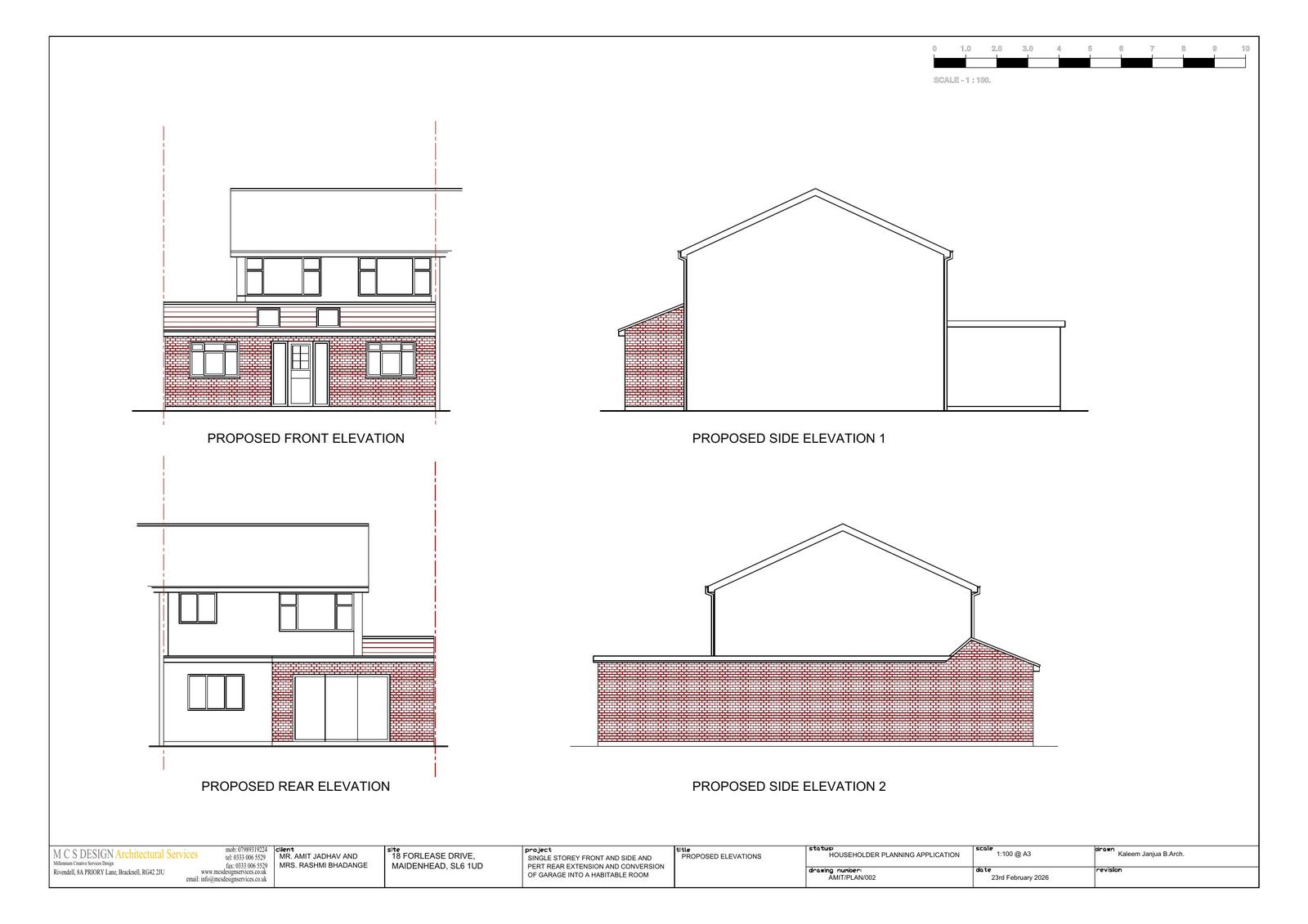
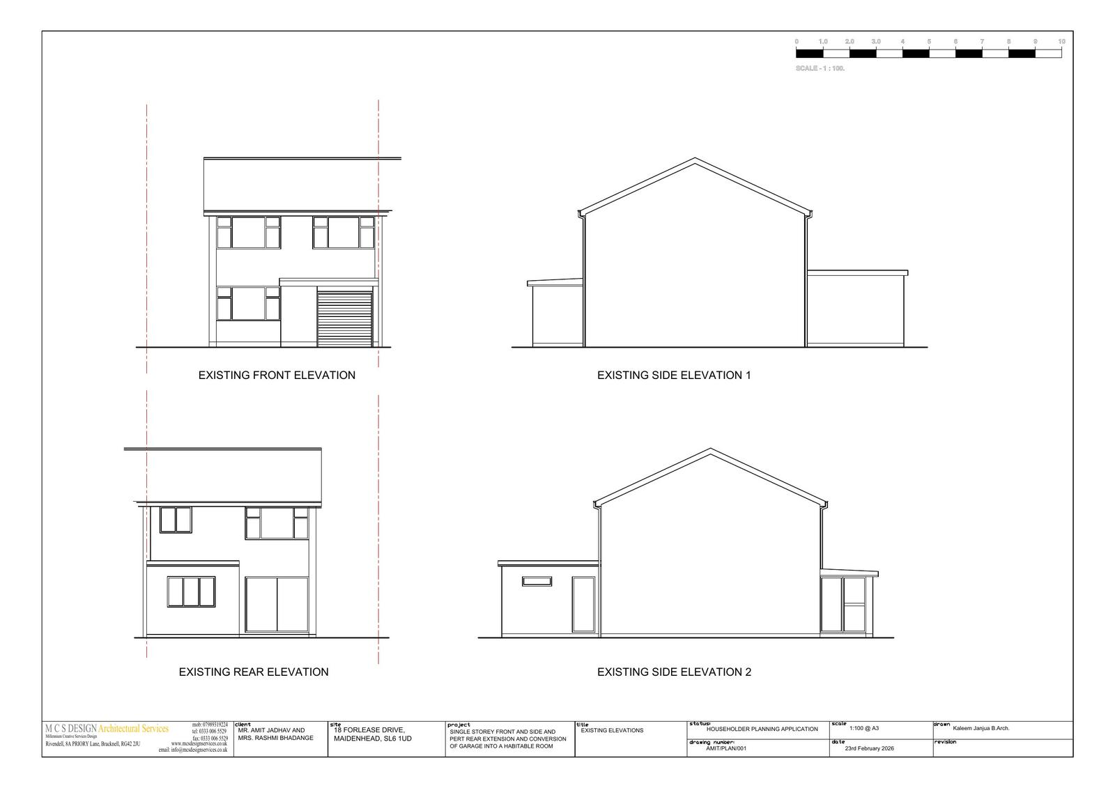
Garage conversion and single storey front/side extension.
Documents
Have your say
Your comment matters. Councils must consider every representation that raises material planning considerations.